naiyousanfentian
作品详情
  • Details of the work 标题横线
    头像或者logo
    图片 潘吉 华浔品味装饰集团特约推荐
    城市:镇江
    公司: 华浔品味装饰江苏集团公司镇江分公司
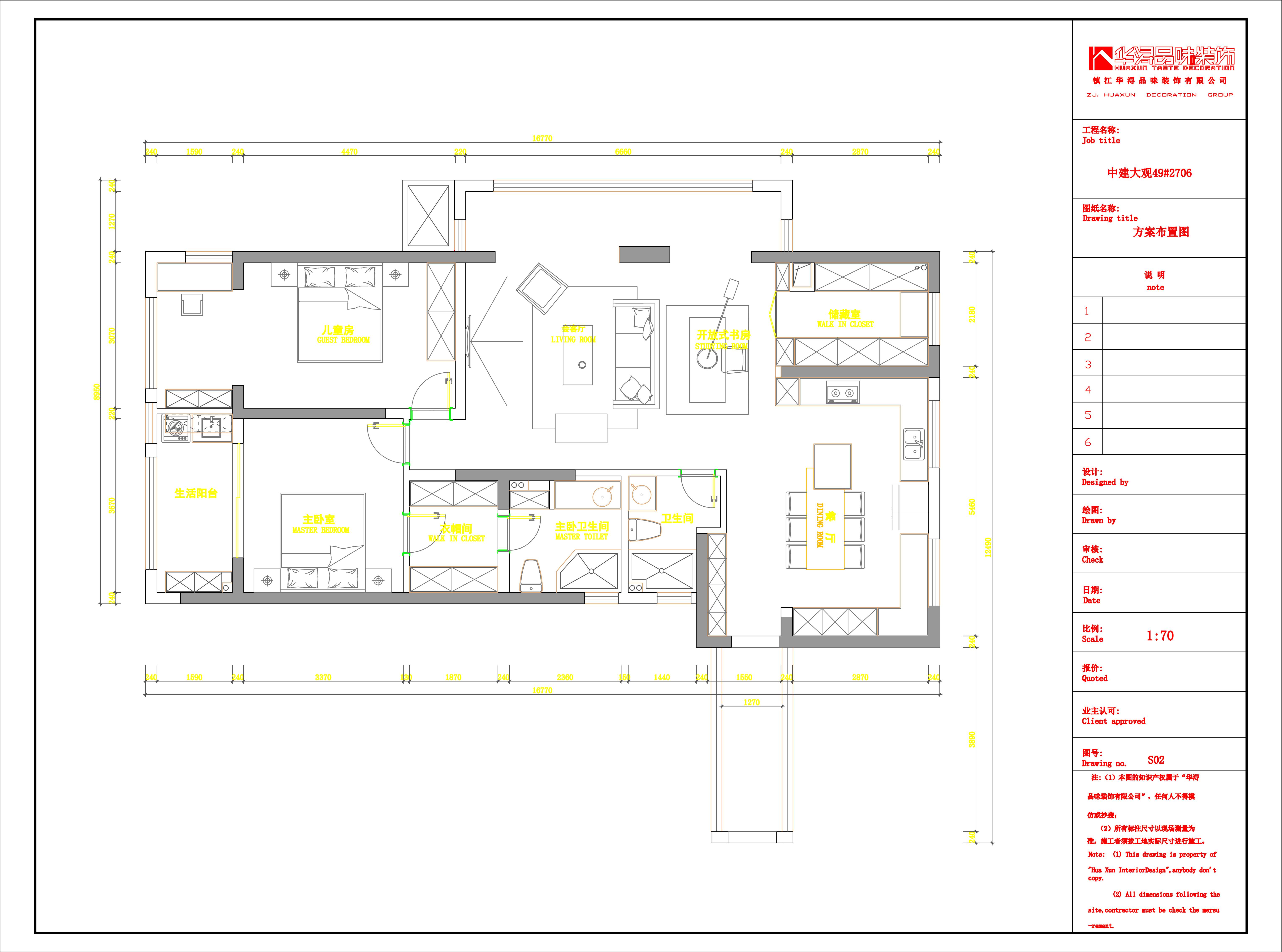
    参赛作品: 奶油三分甜
    空间类型:公寓(150㎡以下)
    个人/公司简介:
    姓名: 潘吉 公司:华浔品味装饰江苏集团公司镇江分公司 职务:首席设计师 个人简历: 从业时间:2005年至今 江苏大学艺术学院,艺术设计系环境艺术设计专业 本科学历学士学位 金马克2021年全国年度陈设艺术类TOP50 金堂奖2022年城市地域影响力设计师TOP10 国际室内设计师/室内兼职设计师 IADA认证会员设计师 国际室内兼职设计协会认证B级设计师 作品: 中建大观简约美式作品【流光】 北固湾地中海作品【蓝色萨拉丁】 恒美山庄美式田园作品【天使爱美丽】 江山美洲法式田园作品【凡尔赛玫瑰】 中南世纪城美式经典作品【绿草莱茵】 江山名洲紫苑简约美式【天空之境】【巧克力城堡】等
    设计说明 | Design Instruction
  • 1.本案例业主是一家三口,夫妻两带着一个12岁的男孩生活,几乎没有其他人留宿,也没有老人共同居住,所以根据业主的实际需求,把四房的房子改成了两房三厅的结构。 2.日式奶油风格,大面积的莫兰迪纯色墙面搭配偏黄木纹撞色奶油白的木作定制,整体奶油质感突出,更显家庭氛围的温暖。 3.软装家具以木纹色为主,凸显墙面的艺术漆的纯粹和质感,使得整个设计更加温柔,家的感觉让拼搏了一天的上班族得到了充分的休息。
  • 图片
  • 图片
  • 图片
  • 图片
  • 图片
  • 图片
  • 图片
  • 图片
  • 图片
  • 图片
  • 图片
  • 图片
  • 图片
  • 图片
  • 图片
  • 图片
  • 图片
  • 图片
  • 图片
  • 图片
  • 上一个 下一个
    《金腾奖优秀作品年鉴》 私宅丨地产丨餐饮丨酒店丨办公丨商业丨公共丨产品丨公益丨人气 jintengAWARD(小金_金腾奖组委会) 广州市海珠区琶洲大道68号华新中心21楼
    金腾奖视频号 金腾奖小红书号 监制:闫虹
    统筹:吴佳佳
    运营:朱倩仪 王赫萱 张芷莹 胡岚恩 小金
    新媒体:王贝贝 严洁 侯乐 鹅姐
    经纪:刘译遥 石征 曹凯月
    技术:张桐 黄天佑
    最终解释权归金腾奖主办方所有