Grey · Decoration World
作品详情
  • Details of the work 标题横线
    头像或者logo
    图片 朱吉煜 华浔品味装饰集团特约推荐
    城市:中山市
    公司:
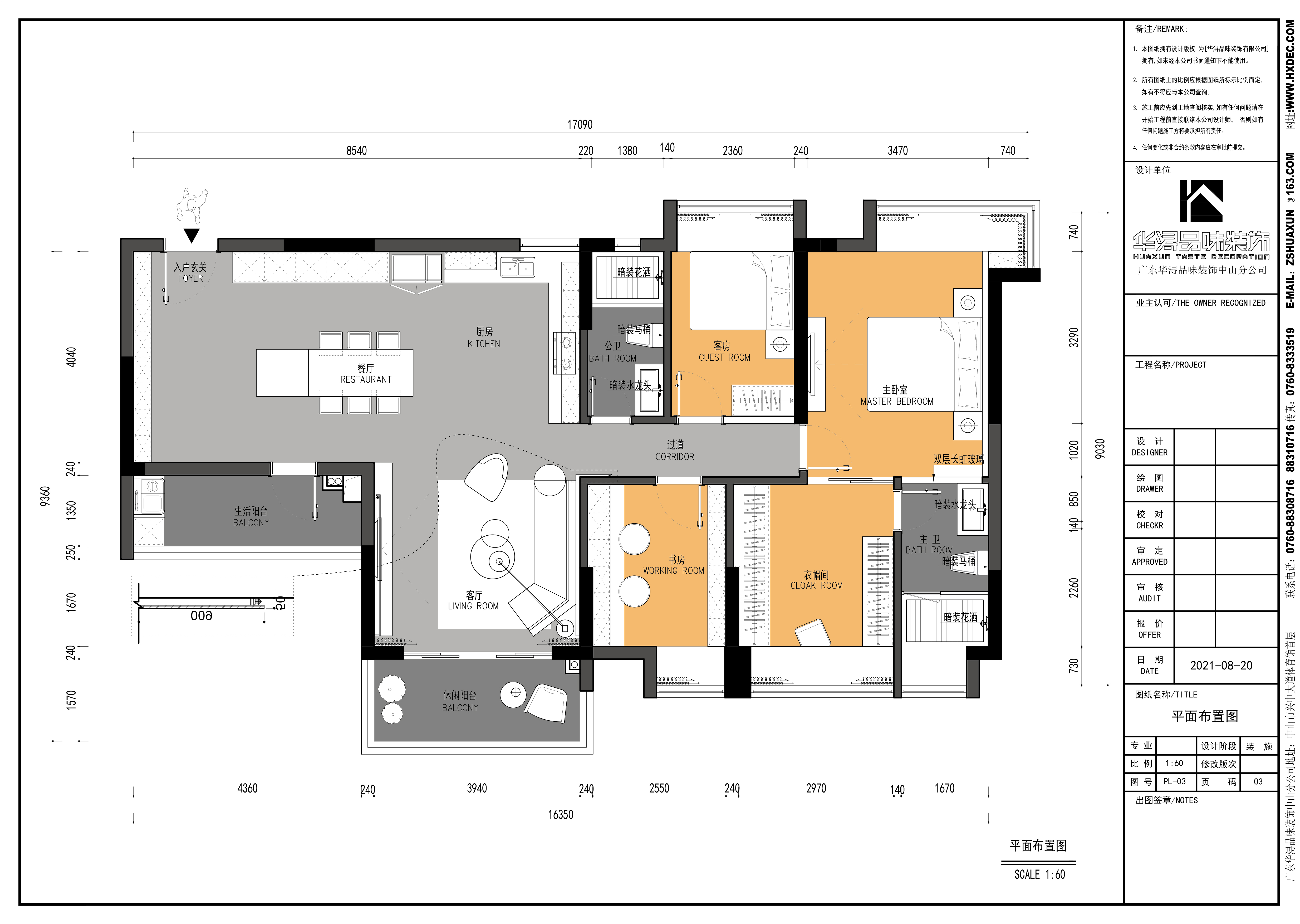
    参赛作品: 灰·饰界
    空间类型:公寓(150㎡以下)
    个人/公司简介:
    广东省高新设计专业 先后成为IFDA国际装饰协会会员、中国室内装饰协会会员。 荣获40UNDER40中国设计杰出青年(2019-2020)中山榜 广东省中山设计力量之“我最喜爱的家居设计大赛”入围奖\ 华浔品味装饰中山大区2019年度优秀设计师 2022年皮阿诺“独创杯”国际设计大赛TOP人气奖 代表案例:奥园别墅 君汇湾(280平方)中澳滨河湾 大信海岸家园 天水湖 品江一号 时代云图,御滨名门,凯茵·雅湖半岛,奕翠园,保利国际,中仪国际,远洋城新悦,康桥活力城,蓝天金地,中泰上境,品江一号,御水湾,臻园,荔园,剑桥郡 世纪新城 从业经历:7年设计的探索之旅,时间的沉淀以及对时尚有着敏锐的嗅觉只为打造品味空间。
    设计说明 | Design Instruction
  • 家,是有温度,且温柔的。我想这套作品打动人的地方是它有温度的灰,静谧的空间同时也映照出主人的热情 本案中与业主的沟通以及感知造就了最后的的呈现。 业主是一对小年轻,简单,时尚的同时也夹杂着毫不掩饰的热情,所以在几处空间都添加了一抹热情的色彩。 在意式轻奢满天飞的环境下业主毅然决然的选择了现代诧寂风,诧寂风起源宋朝流入日本,在与现在极简的高度融合下更加体现了线条带来的视觉盛宴。 从硬装到软装包括到开关面板都是采用的柔光,哑光材质,让微水泥和整个空间做出了更好的融合
  • 图片
  • 图片
  • 图片
  • 图片
  • 图片
  • 图片
  • 图片
  • 图片
  • 图片
  • 图片
  • 图片
  • 图片
  • 图片
  • 图片
  • 图片
  • 图片
  • 图片
  • 图片
  • 图片
  • 图片
  • 图片
  • 图片
  • 图片
  • 图片
  • 图片
  • 图片
  • 图片
  • 上一个 下一个
    《金腾奖优秀作品年鉴》 私宅丨地产丨餐饮丨酒店丨办公丨商业丨公共丨产品丨公益丨人气 jintengAWARD(小金_金腾奖组委会) 广州市海珠区琶洲大道68号华新中心21楼
    金腾奖视频号 金腾奖小红书号 监制:闫虹
    统筹:吴佳佳
    运营:朱倩仪 王赫萱 张芷莹 胡岚恩 小金
    新媒体:王贝贝 严洁 侯乐 鹅姐
    经纪:刘译遥 石征 曹凯月
    技术:张桐 黄天佑
    最终解释权归金腾奖主办方所有