return home
作品详情
  • Details of the work 标题横线
    头像或者logo
    图片 谢文涛 华浔品味装饰集团特约推荐
    城市:中山市
    公司: 华浔品味装饰(中山公司)
    参赛作品: 归家
    空间类型:公寓(150㎡以下)
    个人/公司简介:
    2012年毕业于江西庐山西海国际艺术学院 2013年初进入广东华浔品味装饰湖州分公司任设计师助理; 2014年底进入中山华浔品味装饰任施工图人员; 2015年底进入中山华浔品味装饰任设计师; 2016年进入庐山特训营继续深造两个月; 2017-2018进入浙江某公司担任设计师职位; 2020年底回到中山华浔品味装饰继续担任设计师至今 荣誉及获奖: 中国建筑协会室内设计分会会员 中国注册高级室内建筑师 设计理念: 让灵感自由释放 创造一个心灵渴望的空间
    设计说明 | Design Instruction
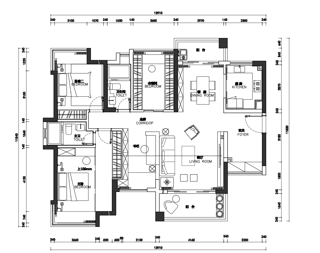
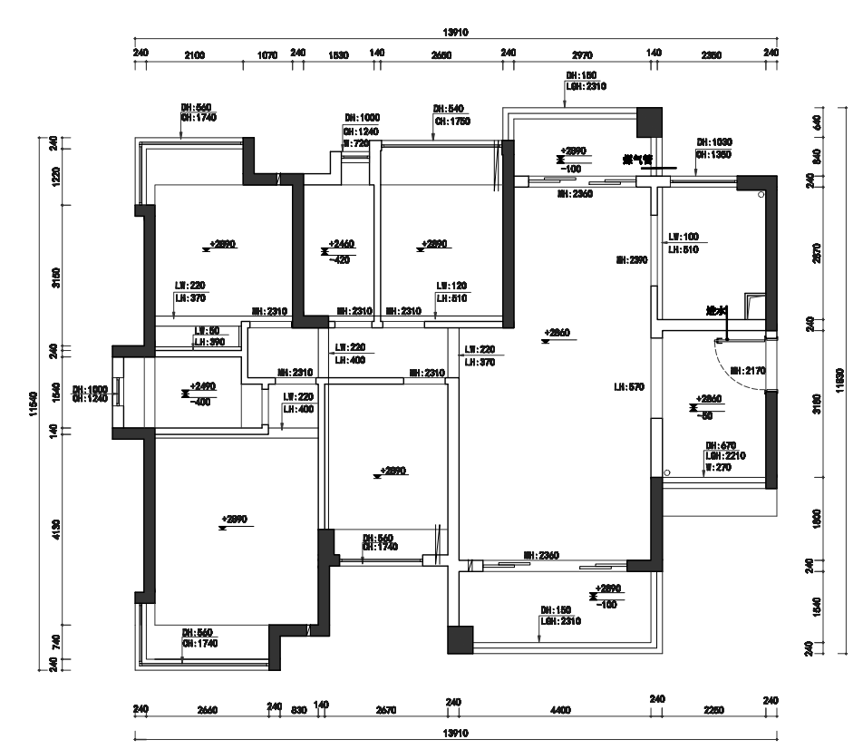
  • 工程名称:完美金鹰半山花园 设计说明: 本案围绕“归家”为主题、将时尚与现代相结合、以简洁明亮的设计为主调设计的一个半跃层居室、创造一个温馨、健康的家庭环境。
  • 图片
  • 图片
  • 图片
  • 图片
  • 图片
  • 图片
  • 图片
  • 图片
  • 图片
  • 图片
  • 图片
  • 图片
  • 图片
  • 图片
  • 图片
  • 图片
  • 图片
  • 图片
  • 图片
  • 图片
  • 图片
  • 图片
  • 图片
  • 图片
  • 上一个 下一个
    《金腾奖优秀作品年鉴》 私宅丨地产丨餐饮丨酒店丨办公丨商业丨公共丨产品丨公益丨人气 jintengAWARD(小金_金腾奖组委会) 广州市海珠区琶洲大道68号华新中心21楼
    金腾奖视频号 金腾奖小红书号 监制:闫虹
    统筹:吴佳佳
    运营:朱倩仪 王赫萱 张芷莹 胡岚恩 小金
    新媒体:王贝贝 严洁 侯乐 鹅姐
    经纪:刘译遥 石征 曹凯月
    技术:张桐 黄天佑
    最终解释权归金腾奖主办方所有