hengxutongquetai
作品详情
  • Details of the work 标题横线
    头像或者logo
    图片 谭春林 华浔品味装饰集团特约推荐
    城市:宜宾
    公司: 华浔品味装饰(宜宾分公司)
    参赛作品: 恒旭·铜雀台
    空间类型:公寓(150㎡以下)
    个人/公司简介:
    心之所向、解人之所忧 职 位 华浔品味装饰(宜宾分公司) 设计二中心    首席设计师:谭春林 资 历 从业八年 毕业于四川建筑学院 2015-2016年泸州名匠装饰 2017-2022年宜宾华浔品味装饰 中国建筑装饰协会会员 宜宾市室内设计师协会会员 获奖情况 获第七届全国创意设计大赛优秀奖 获宜宾市软装设计大赛最佳创意奖 获宜宾第四届家装设计师创意大赛优秀奖 典型案例 泸州:碧桂园吴总雅居、天立观澜国际冯姐雅居 恒利兰庭段总雅居、未来锦城鲁姐雅居 宜宾:丽雅龙城王总、金帝庄园吴姐雅居 华彩城李姐、丽雅大院薛姐、华侨城罗老师 邦泰天誉何姐、邦泰天玺陈哥....
    设计说明 | Design Instruction
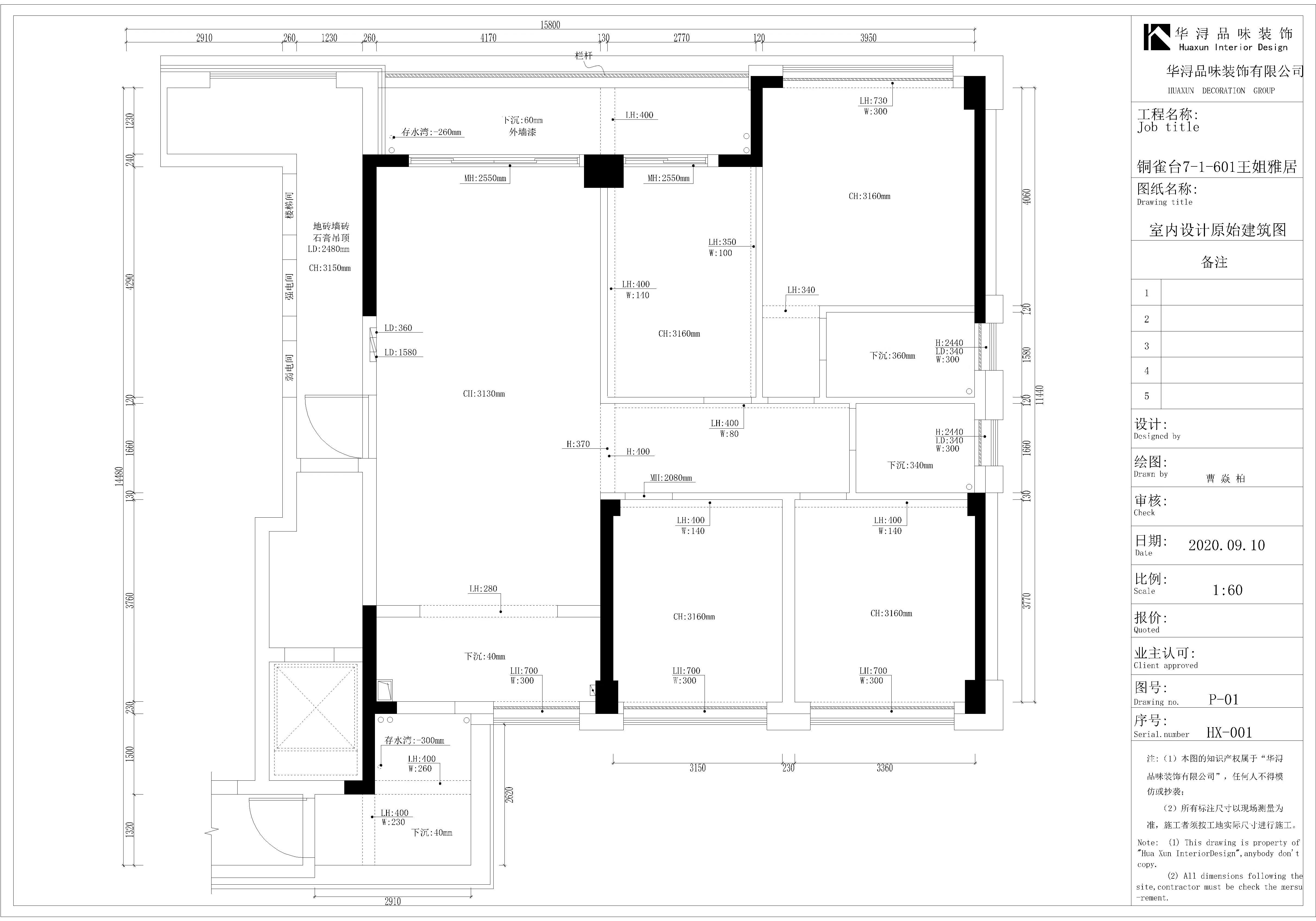
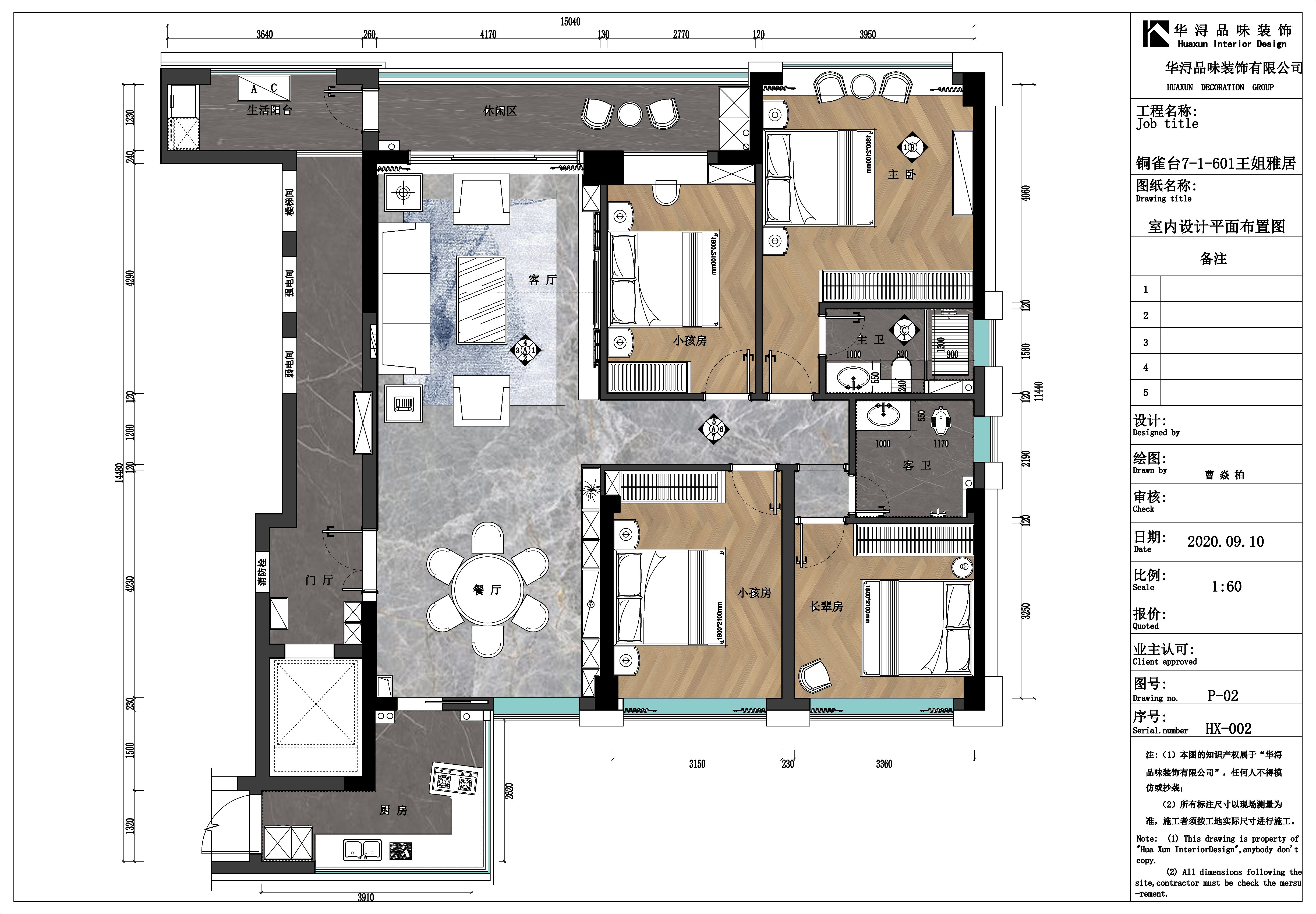
  • 【楼盘名称】:恒旭·铜雀台   【项目面积】:170㎡      【装修风格】:现代           【全案设计】:谭春林     客餐厅篇 开放式的客餐厅 从视觉上扩展了空间的通透性 统一风格的地砖通铺 大气感油然而生 客厅深色家具奠定了沉稳基调 电视墙右侧设置了对称的储物柜 增加客厅置物收纳 不同材质的混搭沉淀出空间质感 理性中不失时尚与优雅 主卧篇 空间以米色为主 延展出一些温馨和温暖 带来了平静与宁静 干净整洁的空间填写了生活原本的模样 经过岁月的沉淀 将更加优雅成熟、内敛含蓄 小孩房篇 在这场造梦之旅中 设计师用最梦幻的色彩 为每一个孩子打造了专属空间 一切可爱灵动的事物齐聚 造就了孩子生活的小天地 赋予了孩子梦的空间 卫生间篇 主卫通铺灰色大理石砖 营造视觉上的整体感 黑色盥洗台搭配黑边镜面 以现代主义的高度理性 减少陈设的构成元素 于现代主义中流露出写意之美 简雅而素淡
  • 图片
  • 图片
  • 图片
  • 图片
  • 图片
  • 图片
  • 图片
  • 图片
  • 图片
  • 图片
  • 图片
  • 图片
  • 图片
  • 图片
  • 图片
  • 图片
  • 图片
  • 图片
  • 图片
  • 图片
  • 图片
  • 图片
  • 图片
  • 图片
  • 图片
  • 图片
  • 图片
  • 上一个 下一个
    《金腾奖优秀作品年鉴》 私宅丨地产丨餐饮丨酒店丨办公丨商业丨公共丨产品丨公益丨人气 jintengAWARD(小金_金腾奖组委会) 广州市海珠区琶洲大道68号华新中心21楼
    金腾奖视频号 金腾奖小红书号 监制:闫虹
    统筹:吴佳佳
    运营:朱倩仪 王赫萱 张芷莹 胡岚恩 小金
    新媒体:王贝贝 严洁 侯乐 鹅姐
    经纪:刘译遥 石征 曹凯月
    技术:张桐 黄天佑
    最终解释权归金腾奖主办方所有