jinxiulongcheng
作品详情
  • Details of the work 标题横线
    头像或者logo
    图片 朱露清 华浔品味装饰集团特约推荐
    城市:宜宾
    公司: 华浔品味装饰(宜宾分公司)
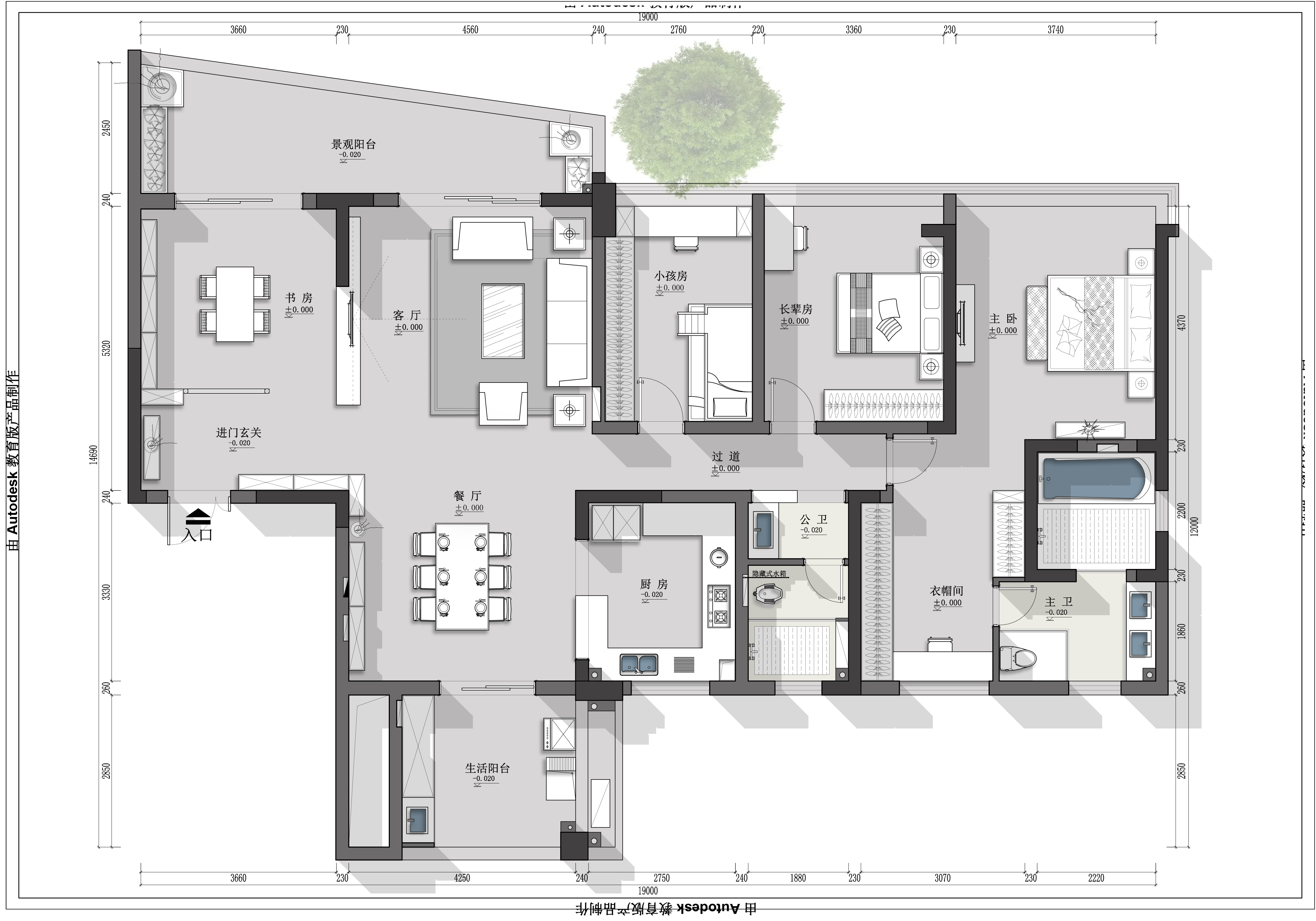
    参赛作品: 锦绣龙城
    空间类型:公寓(150㎡以下)
    个人/公司简介:
    资历 从业十四年 中国设计中级软装设计师 中国室内设计联盟设计师会员 中国达人室内联盟设计师会员 广东华浔品味装饰集团宜宾公司设计师总监 获奖荣誉 2009广东惠州市家装设计大赛优秀青年设计师 2010华浔品味装饰集团金马克杯入围奖 2011中国室内设计大赛住宅、别墅类优秀奖 2012室内达人设计联盟优秀设计称号 2013华浔品味装饰集团金马克杯二等奖 2014宜宾第四届西南轻工博览城年度十大优秀设计师称号 2015木兰奖年度人物。 2018广东华浔品味装饰“全国设计之星” 2018广东华浔品味装饰“回头客冠军奖” 2019广东华浔品味装饰“金牌员工荣誉称号” 2020金住奖中国(百强)居住空间设计师获2021年度别墅住宅类TOP50
    设计说明 | Design Instruction
  • 客厅整体采用白色与咖色、黑色搭配 用电视背景墙做客厅与书房的隔断 让客餐厅和书房既有整体性 又有明显的区块划分 咖色底纹的岩板电视墙搭浅咖色地砖 与奶咖麂皮沙发相互呼应 蓝色单人位大沙发的加入 为空间增添一抹跳跃的颜色 餐桌选用转盘大圆桌 家人日常用餐亦或朋友聚会都能承载 餐桌颜色的选择和桌椅相互融合 餐边柜选用同色系木板 整体空间更为融洽和谐 陈列柜加上超长白玻 在灯带的照耀下为陈列品增添光芒 半开放式的厨房让对话空间更加自由 半开放式的厨房采用白玻作为隔断 让空间有秩序感又不显得封闭 延续客厅整体颜色的前提下 加入黑色木质艺术桌角的书桌 和开放格的颜色相得益彰 特别选用的红色系背景板 让空间多出一份优雅又不喧宾夺主 灯带让陈列品都鲜活起来 超大卧房空间让睡眠体验升级 蓝色系床品和咖色护墙板形成视觉反差 浅色原木木地板让空间更加温暖 特别增加电视嵌入式的设计 闲暇时光在卧房观影更加放松自在 衣柜采用白玻相结合 黑色线条和线性灯成为空间点睛之笔 定制梳妆台拥有超大自然采光 化妆也能享有好心情 阳台增加休闲娱乐功能 现代感十足的茶桌与整体风格更为统一 不出门的日子养养绿植 晒晒太阳喝喝茶 欣赏着窗边江景吹着和煦的微风 轻松度过悠闲时光
  • 图片
  • 图片
  • 图片
  • 图片
  • 图片
  • 图片
  • 图片
  • 图片
  • 图片
  • 图片
  • 图片
  • 图片
  • 图片
  • 图片
  • 图片
  • 图片
  • 图片
  • 图片
  • 图片
  • 图片
  • 图片
  • 图片
  • 图片
  • 图片
  • 图片
  • 图片
  • 上一个 下一个
    《金腾奖优秀作品年鉴》 私宅丨地产丨餐饮丨酒店丨办公丨商业丨公共丨产品丨公益丨人气 jintengAWARD(小金_金腾奖组委会) 广州市海珠区琶洲大道68号华新中心21楼
    金腾奖视频号 金腾奖小红书号 监制:闫虹
    统筹:吴佳佳
    运营:朱倩仪 王赫萱 张芷莹 胡岚恩 小金
    新媒体:王贝贝 严洁 侯乐 鹅姐
    经纪:刘译遥 石征 曹凯月
    技术:张桐 黄天佑
    最终解释权归金腾奖主办方所有