Xingwenbocheng
作品详情
  • Details of the work 标题横线
    头像或者logo
    图片 黄高亮
    城市:宜宾
    公司: 广东华浔品味装饰集团
    参赛作品: 兴文僰城首席
    空间类型:公寓(150㎡以下)
    个人/公司简介:
    设计师:黄高亮 从业十余年 中国室内装饰协会中级室内设计师 中国室内设计联盟设计师会员 中国达人室内联盟设计师会员 设计理念: 一套成功的设计作品,不仅仅局限于观者所能看到的色彩与形态,亦指眼睛所不能看到的作品表现手法、内部工艺等等。那些认为室内设计仅仅是画布局效果图的想法是非常片面和狭隘的。设计师不应仅仅局限于对空间如布局,作图及分割线等等作如何处理的构想,而应该像以为电影导演一样,立于创作的中心,统筹规划,使空间达到最完美的效果。 获奖荣誉: 获2009年广东佛山市家装设计大赛优秀青年设计师 获2009年华浔品味装饰集团优秀设计师称号 获2010年华浔品味装饰集团金马克杯入围奖 获2011年中国室内设计大赛住宅、别墅类优秀奖 获2012年室内达人设计联盟优秀设计称号 获2013年华浔品味装饰集团金马克杯二等奖 荻2014年宜宾第四届西南轻工博览城年度十大优秀设计师称号 获2015年广东华浔品味装饰金牌员工称号 获2018年广东华浔品味装饰“全国设计之星〞 获2018年广东华浔品味装饰“过头客冠军奖〞 经典案例: 丽雅龙城、锦绣龙城、丽雅大院 山水原著、美好和居、邦泰天誉 华侨城、绿地、碧桂园时代之光
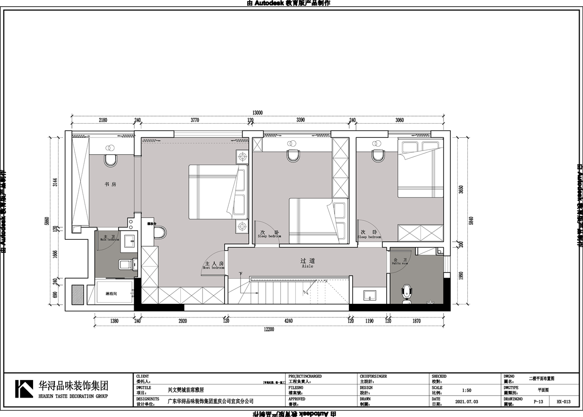
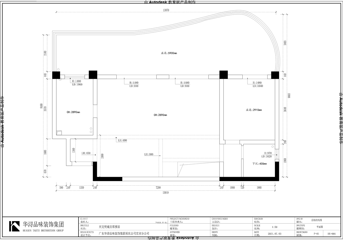
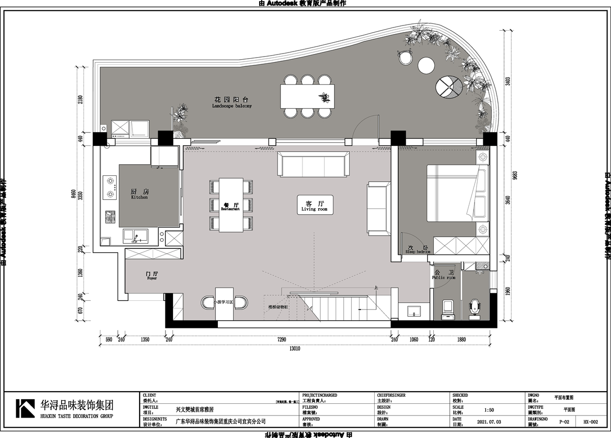
    设计说明 | Design Instruction
  • 本案屋主是一对年轻夫妻,有着多元化的教育背景,喜欢白色,希望家是一个放松身心的地方,不拘束。所以在设计上运用法式的基调,整体以白色浅色为主,搭配精致的软装,结合原始户型独特的异形结构,打造浪漫优雅的居住环境。 大面积白色+绿色作为装修的主基调 拱形的门洞,白色的墙面 简单石膏线条、棕红色系家具 再加上极简的家具、配饰 颜色鲜明,优雅与轻奢共存 搭配原木风地板,如山风般简单干净 与白色、淡色为主的风格相呼应 原木的花纹,木本的色调 色彩淡雅清爽,线条简单 在柔和的灯光下 整个家居简洁、舒适而温馨 搭配原木风地板,如山风般简单干净 与白色、淡色为主的风格相呼应 原木的花纹,木本的色调色彩淡雅清爽,线条简单在柔和的灯光下整个家居简洁、舒适而温馨 窗边的绿色顺延到厨房 淡绿色橱柜让人眼前一亮 清新雅致兼具收纳功能 推拉门确保厨房所需密闭要求 给予厨房与餐厅更多交流互动 绿色系餐椅与空间色系相辅相成 花团锦簇搭配素色餐桌台面 让用餐空间显得更加情趣优雅 软装着重颜色和质感的搭配 在冷暖之间取得平衡 别具一番风味 主卧以女主人喜爱的法式简约风为前提 大面积素色的运用,色泽均匀,轻盈通透 简单且精致的线框线条 白色窗帘、不规则梳妆镜 颜色跳脱的梳妆台 为整个空间增添一丝柔美温和 流动着纯净温馨的气息 女儿房嵌入淡粉色点缀的衣柜 增加趣味的同时 铺开了一段恬静、温柔的放松时光 可爱兔耳朵床头样式设计 妥妥的公主寝殿 男孩房延续整屋轻法式风格 造型独特的儿童床 带有浓浓童趣的装饰与床品 营造属于孩子的小天地 所谓无绿植不成园 业主对绿植种植颇有心得 要求设计“绿植观赏区” 美丽可爱,魅力无限 尽情享受自然状态下的静谧与惬意
  • 图片
  • 图片
  • 图片
  • 图片
  • 图片
  • 图片
  • 图片
  • 图片
  • 图片
  • 图片
  • 图片
  • 图片
  • 图片
  • 图片
  • 图片
  • 图片
  • 图片
  • 图片
  • 图片
  • 图片
  • 图片
  • 图片
  • 图片
  • 图片
  • 图片
  • 图片
  • 图片
  • 图片
  • 图片
  • 图片
  • 图片
  • 上一个 下一个
    《金腾奖优秀作品年鉴》 私宅丨地产丨餐饮丨酒店丨办公丨商业丨公共丨产品丨公益丨人气 jintengAWARD(小金_金腾奖组委会) 广州市海珠区琶洲大道68号华新中心21楼
    金腾奖视频号 金腾奖小红书号 监制:闫虹
    统筹:吴佳佳
    运营:朱倩仪 王赫萱 张芷莹 胡岚恩 小金
    新媒体:王贝贝 严洁 侯乐 鹅姐
    经纪:刘译遥 石征 曹凯月
    技术:张桐 黄天佑
    最终解释权归金腾奖主办方所有