NanCheng
作品详情
  • Details of the work 标题横线
    头像或者logo
    图片 李文斌
    城市:宜宾
    公司: 华浔品味装饰集团
    参赛作品: 南城
    空间类型:公寓(150㎡以下)
    个人/公司简介:
    设计师:李文斌 资 历: 从业10年 华浔设计总监 高级室内设计师 中国建筑装饰协会设计委员会 中国室内设计联盟设计师会员 中国达人室内联盟设计师会员 获 奖 荣 誉  : 2014年获宜宾第四届西南轻工博览城年度十大优秀设计师称号 2015年获广东华浔品味装饰金牌员工称号 2018年获广东华浔品味装饰“全国设计之星” 2019年获广东华浔品味装饰“金牌员工荣誉称号” 2020年获金住奖 中国(宜宾)十大居住空间设计师 经 典 案 例  : 丽雅龙城、锦绣龙城、丽雅大院 山水原著、美好和居、邦泰天玺、邦泰天誉 华侨城、绿地、碧桂园时代之光
    设计说明 | Design Instruction
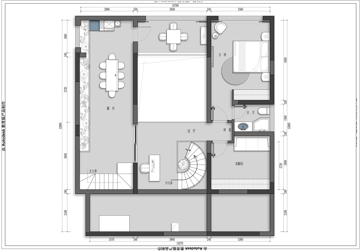
  • 本案是三代同堂,女业主要求设计要与众不同,个性化的改造,特别是楼梯位置希望是一个亮点。所以我们把原有楼梯位置改造出来让它成为房子的装饰点,动线上也更加的灵活。 因为之前餐厅位置处在动线上,所以楼梯位置及放在原有餐厅位置,设计师把另外的一间卧室打开做为现在的餐厅空间,把餐厅放到了一个静态的位置处,合理的避开了处在过道区域,让整个餐厅与楼梯间空间有一个互动 增加空间的视觉感。 厨房设计把原有的厨房移动生活阳台处,让进门的空间感显很大得,厨房巧妙的设计双动线 入户进厨房、厨房出餐厅让客户的家更加的实用 本案楼梯设于客餐厅之间,入户可见,沿大理石踏步蜿蜒而上,线条简洁流畅,富有韵律之美,又兼具石材的硬朗属性,软硬结合,恰到好处。
  • 图片
  • 图片
  • 图片
  • 图片
  • 图片
  • 图片
  • 图片
  • 图片
  • 图片
  • 图片
  • 图片
  • 图片
  • 图片
  • 图片
  • 图片
  • 图片
  • 图片
  • 图片
  • 图片
  • 图片
  • 图片
  • 图片
  • 图片
  • 图片
  • 图片
  • 图片
  • 图片
  • 图片
  • 上一个 下一个
    《金腾奖优秀作品年鉴》 私宅丨地产丨餐饮丨酒店丨办公丨商业丨公共丨产品丨公益丨人气 jintengAWARD(小金_金腾奖组委会) 广州市海珠区琶洲大道68号华新中心21楼
    金腾奖视频号 金腾奖小红书号 监制:闫虹
    统筹:吴佳佳
    运营:朱倩仪 王赫萱 张芷莹 胡岚恩 小金
    新媒体:王贝贝 严洁 侯乐 鹅姐
    经纪:刘译遥 石征 曹凯月
    技术:张桐 黄天佑
    最终解释权归金腾奖主办方所有