JINSHUIWANZHANGZHAI
作品详情
  • Details of the work 标题横线
    头像或者logo
    图片 苏俊
    城市:株洲
    公司: 墨砚设计
    参赛作品: 金水湾张宅
    空间类型:公寓(150㎡以下)
    个人/公司简介:
    苏 骏 墨砚设计联合创始人 设计总监 中国建筑装饰协会高级住宅室内设计师 湖南省建筑室内设计学会分会(HIID)常务理事 《IID室内设计》长沙工作站编委 40 UNDER 40中国设计杰出青年 湖南建筑装饰装修行业杰出优秀设计师 米兰理工大学设计学院硕士 清华大学美术学院建筑高研班毕业 2022年顶峰设计奖家居实景类--金奖 2022年红棉设计奖-最美潮居空间设计奖 2015年作品获“上海金外滩奖”最佳景观设计奖 2014年作品获国际空间设计“艾特奖” ; 2014年作品获 湖南省第14届室内设计大赛 家居空间实例类铜奖 2014年作品获 “上海金外滩奖”最佳照明设计奖 2013年作品获 湖南省第13届室内设计大赛 工装实例类铜奖 2013年作品获 “上海金外滩奖”入围奖 2012年作品获 湖南省第12届室内设计大赛 家居实例类铜奖 2012年作品获 “上海金外滩奖”最佳居住空间奖
    设计说明 | Design Instruction
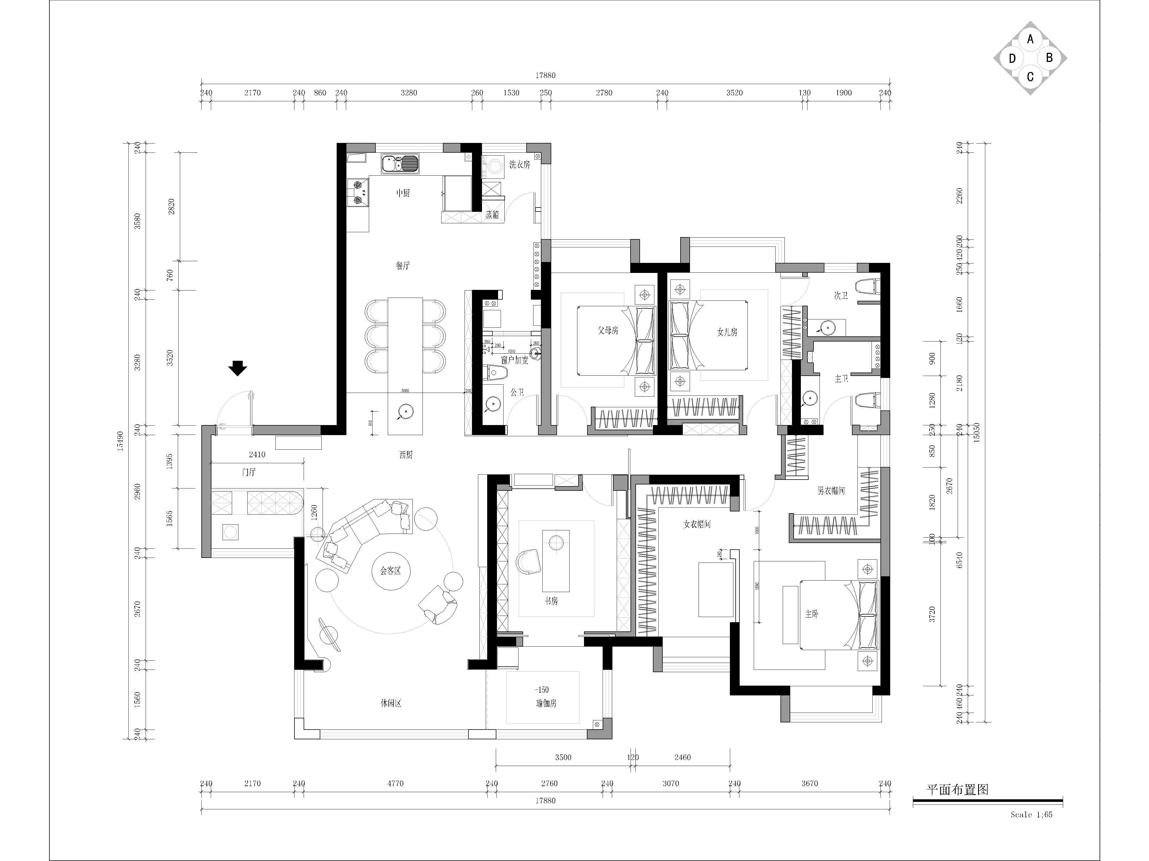
  • 本案是一个江景大平层,有很好的视野和很好的通风采光,唯一的缺陷是餐厅的开间有点小,餐厅和客厅的比例不协调,从使用功能来看也不合理。 客厅没有传统意义的电视背景墙的设计,取而代之的是一面墙的书柜,这和客户的职业和爱好有关,电视变成一个辅助的功能,而不是重要的功能,沙发的摆放位置也不是靠墙,而是把沙发放在整个空间的中间,面向室外的江景,让空间的感觉更随意和自然,营造一种比较休闲慵懒的氛围,也很好的发挥了江景视野的优势,餐厅和厨房做成开放式的设计,解决餐厅开间小的问题,把西厨岛台做成一体式设计,更实用,也更有设计感和仪式感。 玄关的设计做了悬挂式的设计,即是形式也是功能,是进门的一个鞋柜的,也是入户的玄关,把功能和形式完美的结合在一起。 卧室的设计主要以功能为主,打造大的衣帽间,书房和客厅是一个可开可合的一个空间。一个地台的空间链接客厅与餐厅,这里可以是瑜伽的空间,也可以是喝茶会客的空间,也可以是阅读的空间。
  • 图片
  • 图片
  • 图片
  • 图片
  • 图片
  • 图片
  • 图片
  • 图片
  • 图片
  • 图片
  • 图片
  • 图片
  • 图片
  • 图片
  • 图片
  • 图片
  • 图片
  • 图片
  • 图片
  • 上一个 下一个
    《金腾奖优秀作品年鉴》 私宅丨地产丨餐饮丨酒店丨办公丨商业丨公共丨产品丨公益丨人气 jintengAWARD(小金_金腾奖组委会) 广州市海珠区琶洲大道68号华新中心21楼
    金腾奖视频号 金腾奖小红书号 监制:闫虹
    统筹:吴佳佳
    运营:朱倩仪 王赫萱 张芷莹 胡岚恩 小金
    新媒体:王贝贝 严洁 侯乐 鹅姐
    经纪:刘译遥 石征 曹凯月
    技术:张桐 黄天佑
    最终解释权归金腾奖主办方所有