KONGGEZHIJIAN
作品详情
  • Details of the work 标题横线
    头像或者logo
    图片 苏俊
    城市:株洲
    公司: 墨砚设计
    参赛作品: 空格之间
    空间类型:公寓(150㎡以下)
    个人/公司简介:
    苏 骏 墨砚设计联合创始人 设计总监 中国建筑装饰协会高级住宅室内设计师 湖南省建筑室内设计学会分会(HIID)常务理事 《IID室内设计》长沙工作站编委 40 UNDER 40中国设计杰出青年 湖南建筑装饰装修行业杰出优秀设计师 米兰理工大学设计学院硕士 清华大学美术学院建筑高研班毕业 2022年顶峰设计奖家居实景类--金奖 2022年红棉设计奖-最美潮居空间设计奖 2015年作品获“上海金外滩奖”最佳景观设计奖 2014年作品获国际空间设计“艾特奖” ; 2014年作品获 湖南省第14届室内设计大赛 家居空间实例类铜奖 2014年作品获 “上海金外滩奖”最佳照明设计奖 2013年作品获 湖南省第13届室内设计大赛 工装实例类铜奖 2013年作品获 “上海金外滩奖”入围奖 2012年作品获 湖南省第12届室内设计大赛 家居实例类铜奖 2012年作品获 “上海金外滩奖”最佳居住空间奖
    设计说明 | Design Instruction
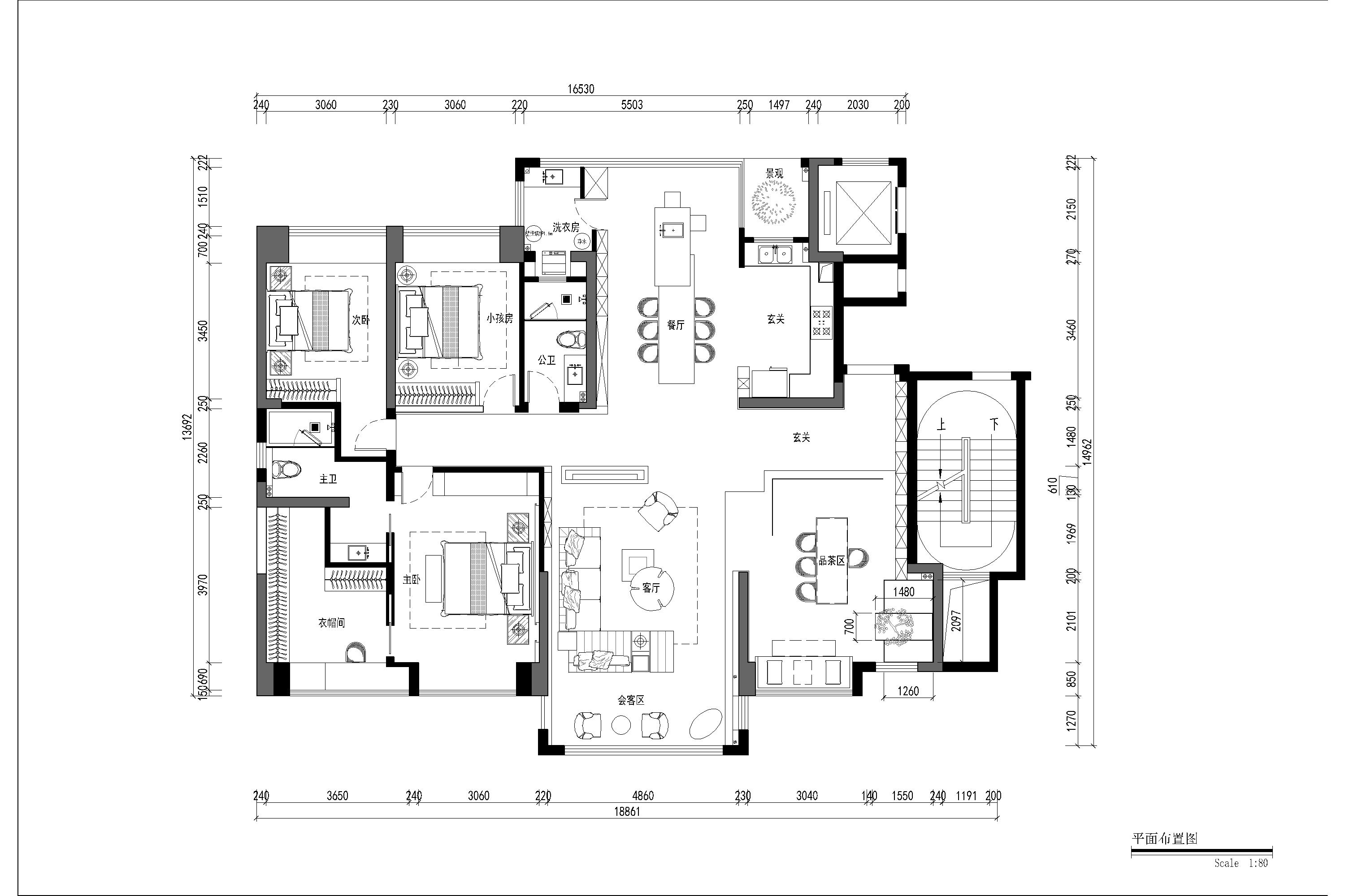
  • 本案以空间设计作为设计的主导,因为常住人口不多,所以把公共空间打开,把大平层 的气质和尺度彰显出来,在空间的格局上也不是一味的空与大,有空也有隔,在适当的位置 也做一些比较有形式感的隔墙,比如 入口和茶室之间的钢板材质的板片,形成空间上隔而 不断的视觉感受,同时也体现一种材质上轻薄感,入户鞋柜延续到茶室空间,让入户和茶室 形成一种隔而不断空间互动延续的效果。客厅的布局方式有别与常规客厅的布局方式,没有 所谓的电视背景墙,电视作为辅助功能放在侧面的悬空的板片上,这个板片是客餐厅的区隔 的形式语言,更重要的功能是阻挡卫生间的门,解决坐在客厅不要看到卫生间的门,从卫生 间出来不看到客厅的空间,形式语言和功能相结合,让空间简约而不简单,过道的房门做成 隐藏门的效果,使空间化零为整。
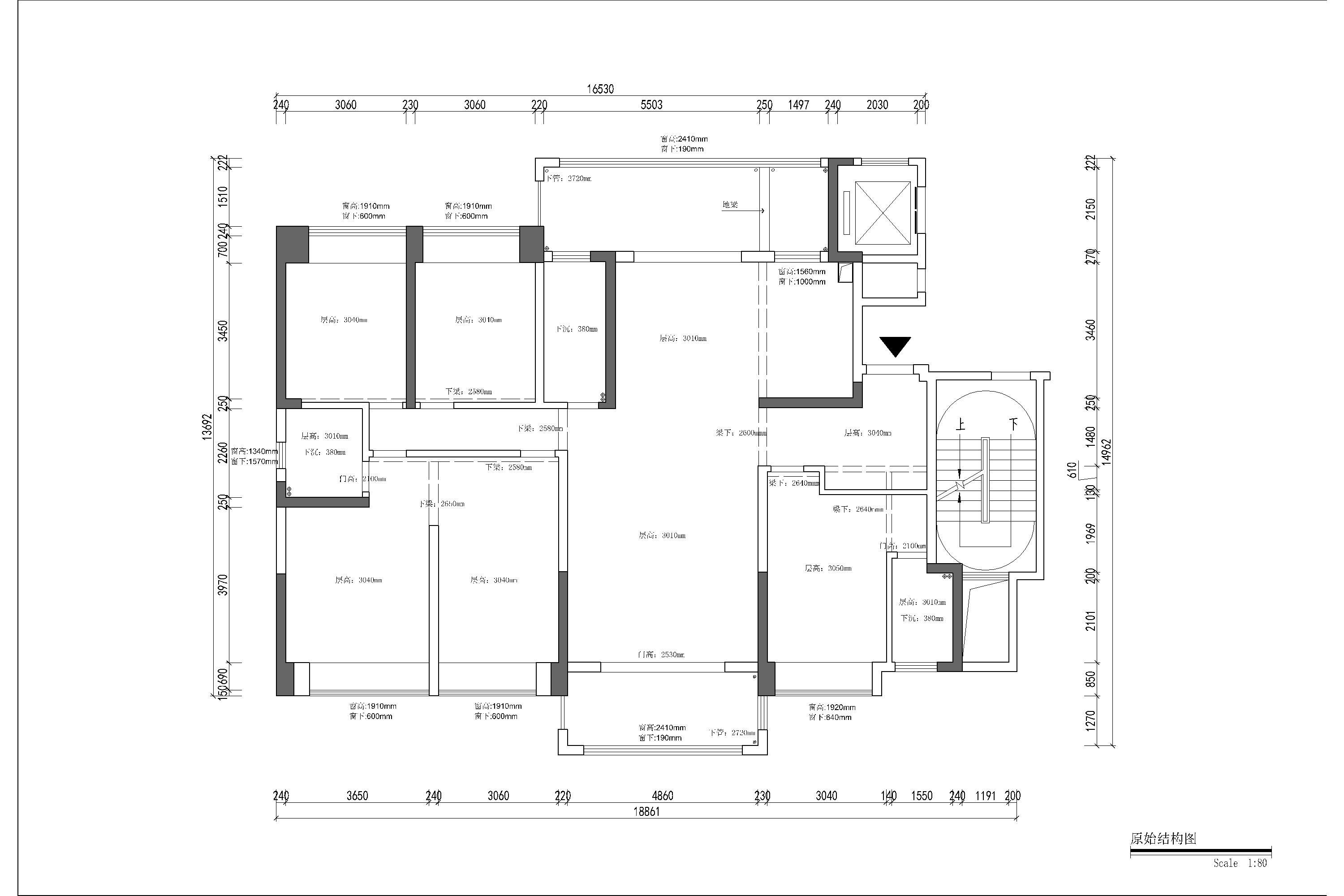
  • 图片
  • 图片
  • 图片
  • 图片
  • 图片
  • 图片
  • 图片
  • 图片
  • 图片
  • 图片
  • 图片
  • 图片
  • 图片
  • 图片
  • 图片
  • 上一个 下一个
    《金腾奖优秀作品年鉴》 私宅丨地产丨餐饮丨酒店丨办公丨商业丨公共丨产品丨公益丨人气 jintengAWARD(小金_金腾奖组委会) 广州市海珠区琶洲大道68号华新中心21楼
    金腾奖视频号 金腾奖小红书号 监制:闫虹
    统筹:吴佳佳
    运营:朱倩仪 王赫萱 张芷莹 胡岚恩 小金
    新媒体:王贝贝 严洁 侯乐 鹅姐
    经纪:刘译遥 石征 曹凯月
    技术:张桐 黄天佑
    最终解释权归金腾奖主办方所有