WANFENGSHANGYUANDENGZHAI
作品详情
  • Details of the work 标题横线
    头像或者logo
    图片 苏俊
    城市:株洲
    公司: 墨砚设计
    参赛作品: 万丰上院-邓宅
    空间类型:公寓(150㎡以下)
    个人/公司简介:
    苏 骏 墨砚设计联合创始人 设计总监 中国建筑装饰协会高级住宅室内设计师 湖南省建筑室内设计学会分会(HIID)常务理事 《IID室内设计》长沙工作站编委 40 UNDER 40中国设计杰出青年 湖南建筑装饰装修行业杰出优秀设计师 米兰理工大学设计学院硕士 清华大学美术学院建筑高研班毕业 2022年顶峰设计奖家居实景类--金奖 2022年红棉设计奖-最美潮居空间设计奖 2015年作品获“上海金外滩奖”最佳景观设计奖 2014年作品获国际空间设计“艾特奖” ; 2014年作品获 湖南省第14届室内设计大赛 家居空间实例类铜奖 2014年作品获 “上海金外滩奖”最佳照明设计奖 2013年作品获 湖南省第13届室内设计大赛 工装实例类铜奖 2013年作品获 “上海金外滩奖”入围奖 2012年作品获 湖南省第12届室内设计大赛 家居实例类铜奖 2012年作品获 “上海金外滩奖”最佳居住空间奖
    设计说明 | Design Instruction
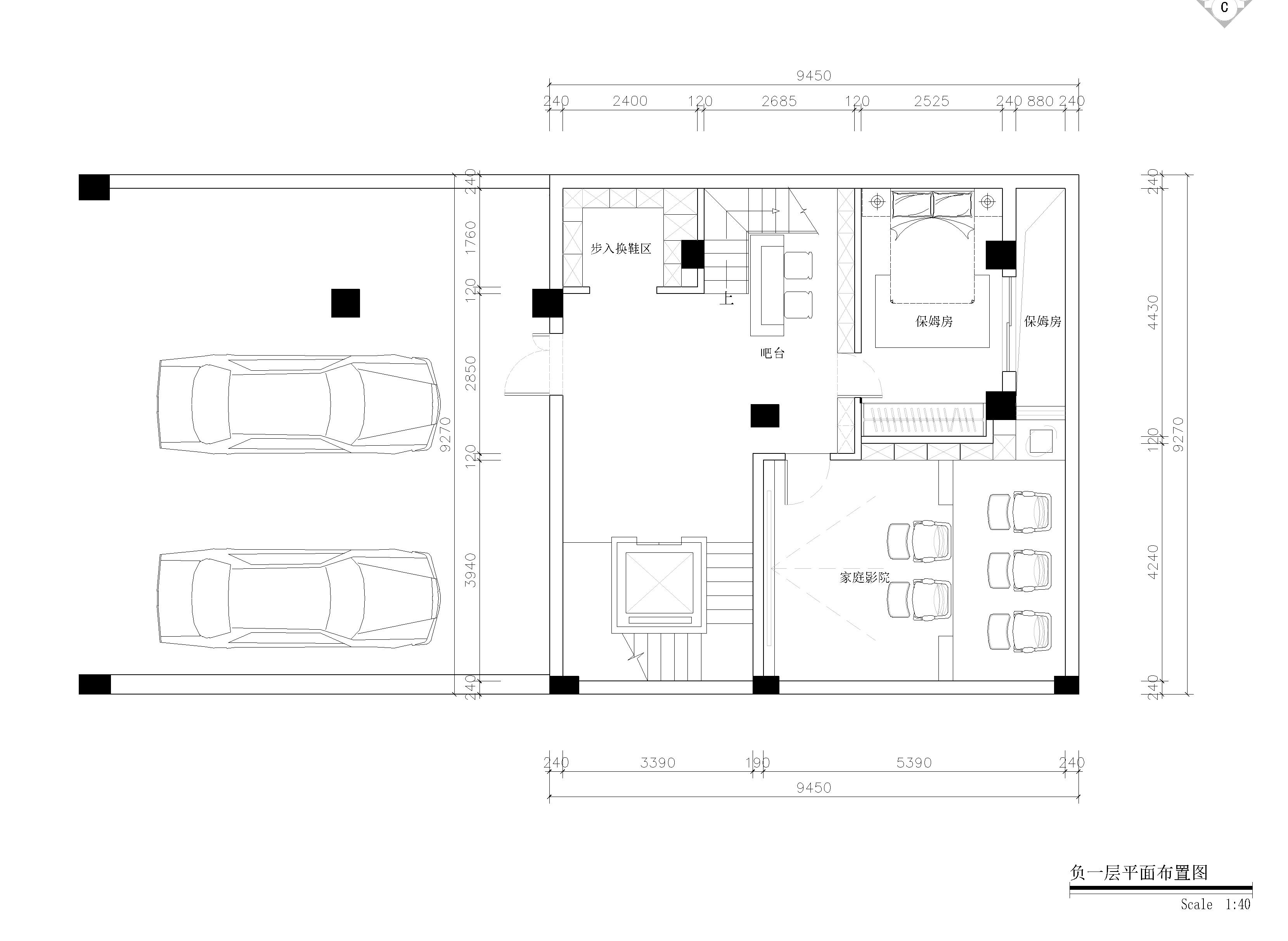
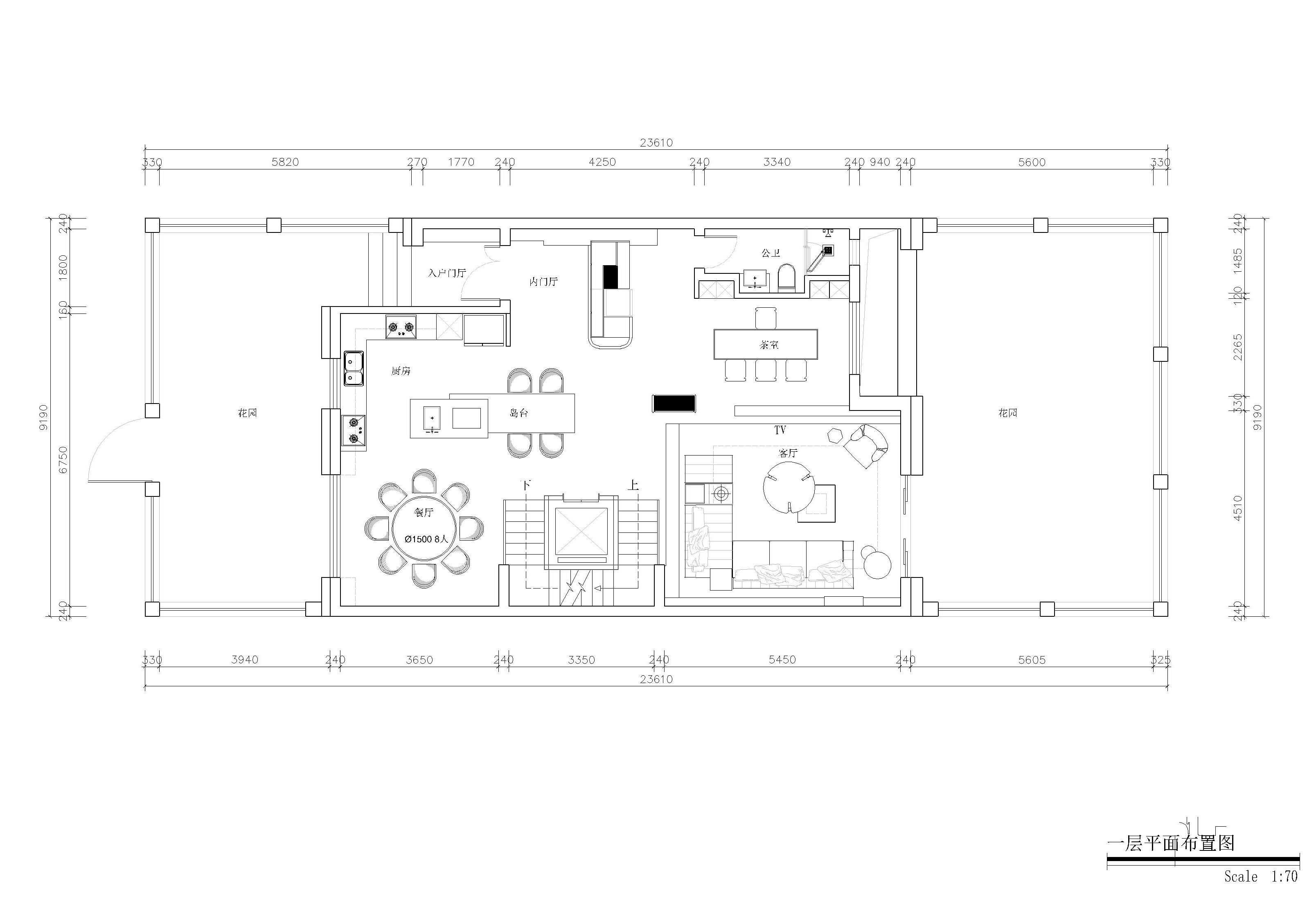
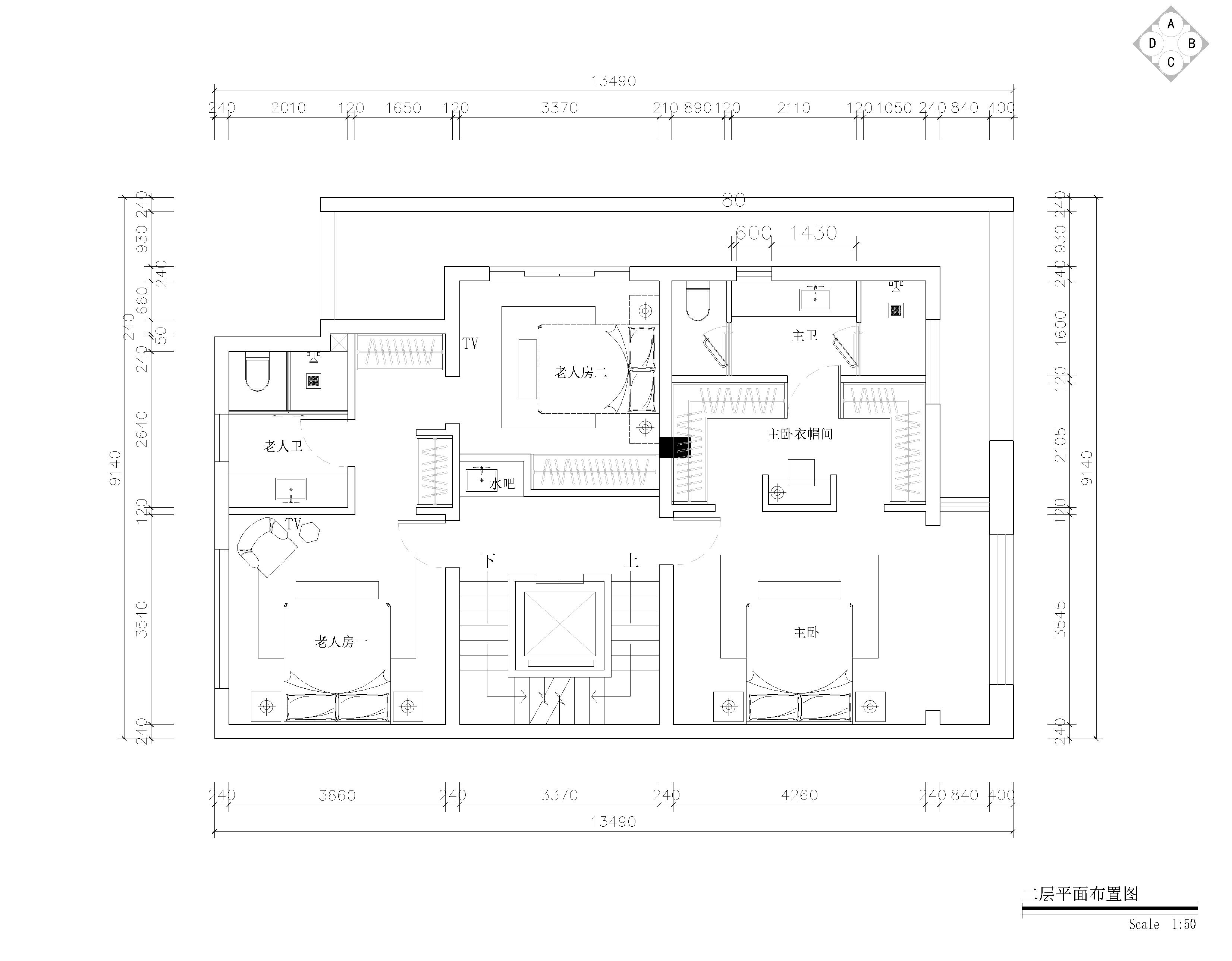
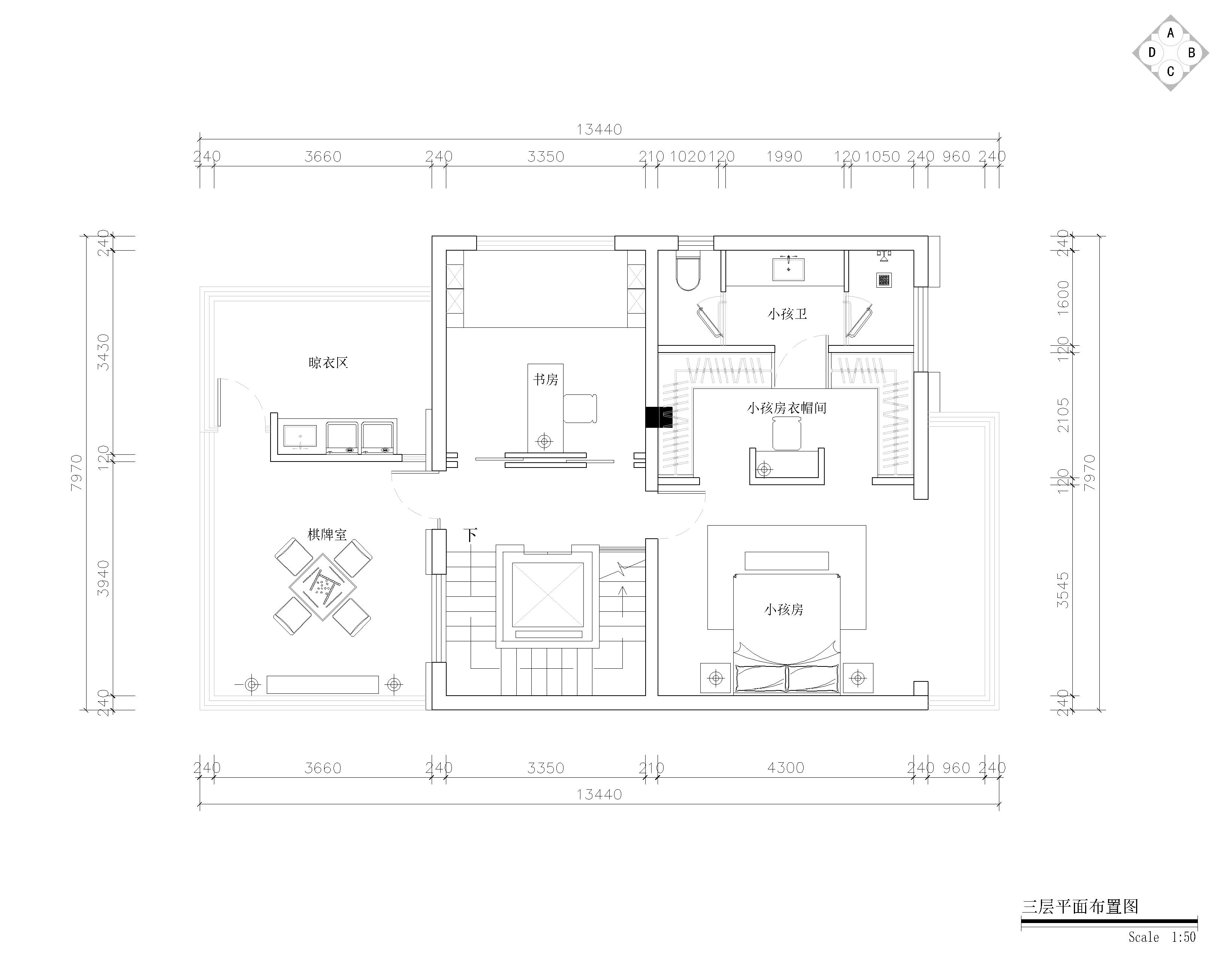
  • 本案是一个联排别墅,地下一层,地面三层,负一层是娱乐层,音影室,瑜伽室,水吧品酒等娱乐休闲功能,一层是餐厅,西厨,会客,品茗等,二层三层是卧室休息区。 项目以现代的设计手法,打造整个的居家空间,以生活方式为导向来提升和设计整个功能。一层整个功能区都是通透的连贯的,要开放空间有一个很好的视野和采光,同时也拥有很好的通风,房子最重要的是通风和采光,尤其是别墅的采光显得尤为重要,特别是地下室的通风和采光。厨房设计了中厨和西厨的空间,别墅的功能要尽量细化,要有专属的功能,这样才能提升别墅的居住品质。能尽量去实现业主的爱好和兴趣,这也是别墅和平层的一个最大的区别。 作为别墅而言,院子庭院的设计是非常重要的,庭院的设计也是设计师本人一同设计,为了使园林和室内有一个很好的连贯性,也为了人呆在室内有一个好的庭院视野。
  • 图片
  • 图片
  • 图片
  • 图片
  • 图片
  • 图片
  • 图片
  • 图片
  • 图片
  • 图片
  • 图片
  • 图片
  • 图片
  • 图片
  • 图片
  • 图片
  • 图片
  • 图片
  • 图片
  • 图片
  • 图片
  • 图片
  • 图片
  • 上一个 下一个
    《金腾奖优秀作品年鉴》 私宅丨地产丨餐饮丨酒店丨办公丨商业丨公共丨产品丨公益丨人气 jintengAWARD(小金_金腾奖组委会) 广州市海珠区琶洲大道68号华新中心21楼
    金腾奖视频号 金腾奖小红书号 监制:闫虹
    统筹:吴佳佳
    运营:朱倩仪 王赫萱 张芷莹 胡岚恩 小金
    新媒体:王贝贝 严洁 侯乐 鹅姐
    经纪:刘译遥 石征 曹凯月
    技术:张桐 黄天佑
    最终解释权归金腾奖主办方所有