YINGUANGZHIZHAI
作品详情
  • Details of the work 标题横线
    头像或者logo
    图片 苏俊
    城市:株洲
    公司: 墨砚设计
    参赛作品: 引光之宅
    空间类型:公寓(150㎡以下)
    个人/公司简介:
    苏 骏 墨砚设计联合创始人 设计总监 中国建筑装饰协会高级住宅室内设计师 湖南省建筑室内设计学会分会(HIID)常务理事 《IID室内设计》长沙工作站编委 40 UNDER 40中国设计杰出青年 湖南建筑装饰装修行业杰出优秀设计师 米兰理工大学设计学院硕士 清华大学美术学院建筑高研班毕业 2022年顶峰设计奖家居实景类--金奖 2022年红棉设计奖-最美潮居空间设计奖 2015年作品获“上海金外滩奖”最佳景观设计奖 2014年作品获国际空间设计“艾特奖” ; 2014年作品获 湖南省第14届室内设计大赛 家居空间实例类铜奖 2014年作品获 “上海金外滩奖”最佳照明设计奖 2013年作品获 湖南省第13届室内设计大赛 工装实例类铜奖 2013年作品获 “上海金外滩奖”入围奖 2012年作品获 湖南省第12届室内设计大赛 家居实例类铜奖 2012年作品获 “上海金外滩奖”最佳居住空间奖
    设计说明 | Design Instruction
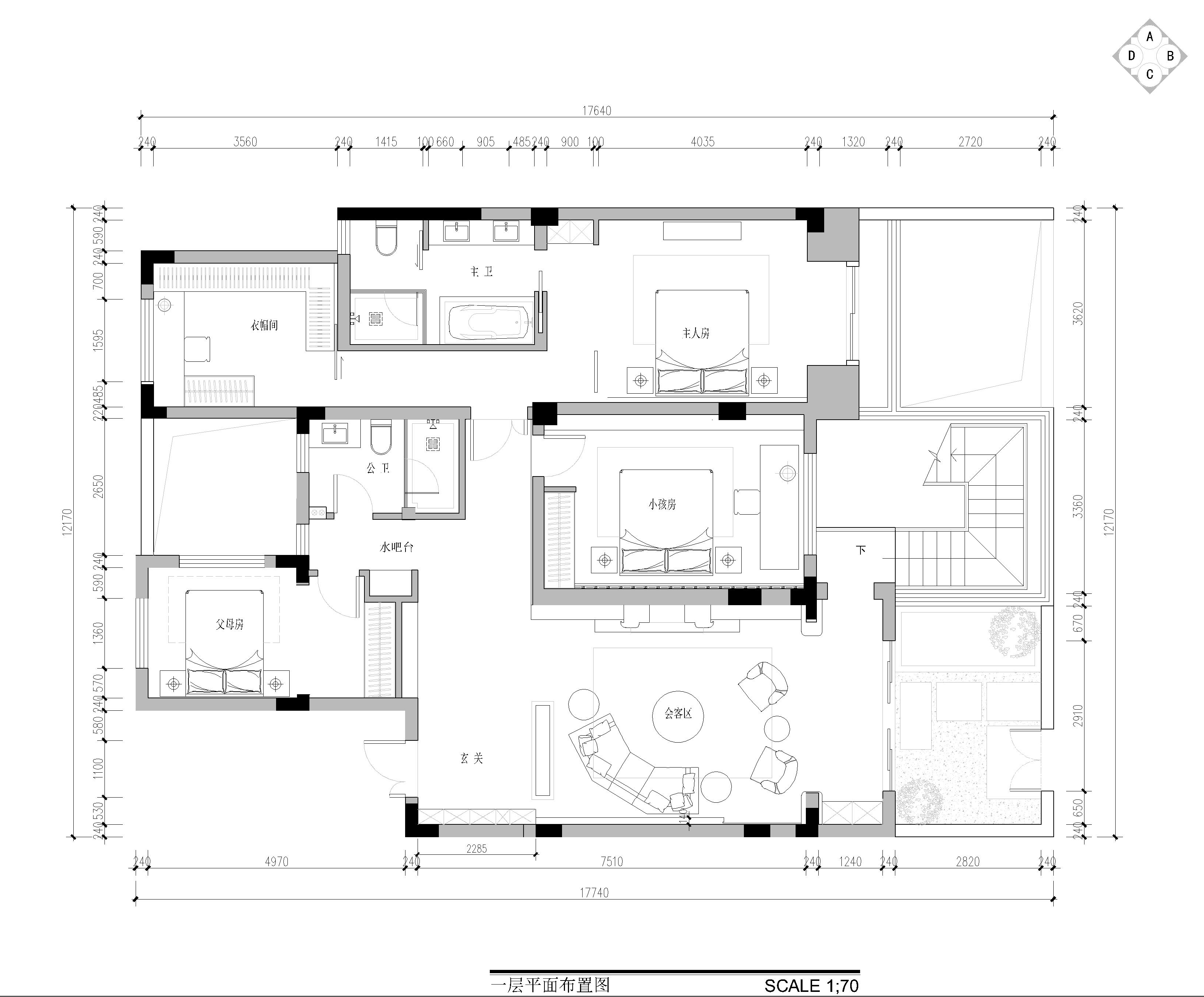
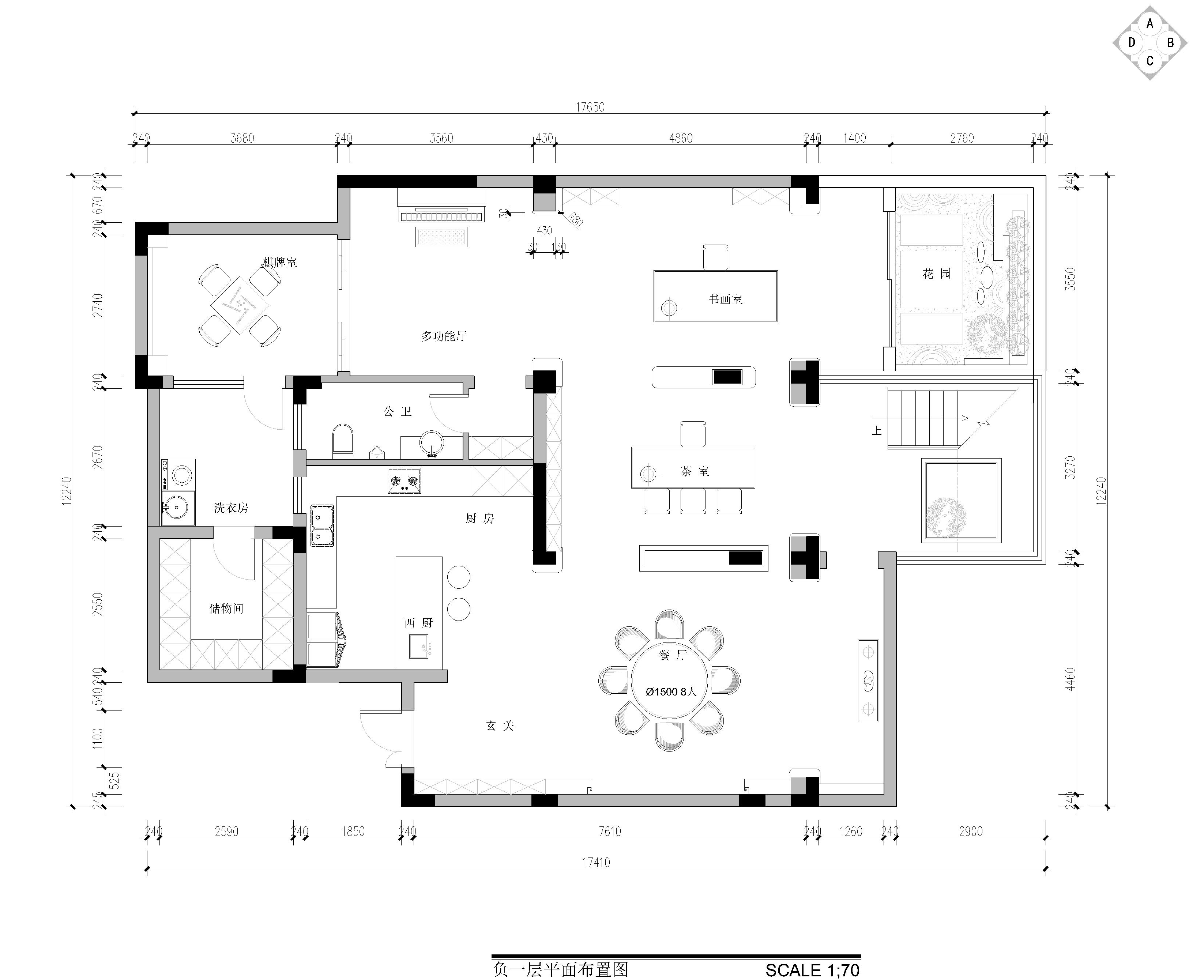
  • 本案是一个下叠的洋房,地面一层和地下一层,一层有庭院,地下室有采光井。项目最大的难点是怎么解决地下室采光通风的问题。所以整个项目”引光“成为整个设计的核心。 因为一层要有三间卧室的空间,其中主卧还必须要规划成套间,所以我把厨房,餐厅,茶室,书画室,麻将房都放到负一层,有效的利用两个大的采光井,把楼梯放到采光井的位置,一是增大一层的使用空间,二是让上下楼梯的感受会更好,因为楼梯变成采光最好的空间。同时也让地下室的采光变得更好,把经常使用的茶室和餐厅还有书画室放到离采光井更近的地方,增加使用者的体验感,在书画室的往外看还有个下沉式的庭院。增加地下层的意境和体验感。为了使负一层有更好的体验,在颜色搭配上,我用了颜色对比很强烈的黑色和红色,使空间更有层次,同时也弥补了地下一层的采光不佳的问题,整个空间做些多元素的碰撞,现代的手法,现代中式的手法,以及美式壁炉的元素,让多种元素在空间里面很好的协调起来,营造统一而不单调的美学空间,把光有控制的引入室内,让光来塑造视觉形体,即使空间素墙素地,也可以营造丰富的空间效果。对于叠墅,复式空间,楼梯是很重要的功能,他的位置应该在采光最好的位置,它承载的不单单是上下的功能,而且承载了上下的体验感。
  • 图片
  • 图片
  • 图片
  • 图片
  • 图片
  • 图片
  • 图片
  • 图片
  • 图片
  • 图片
  • 图片
  • 图片
  • 图片
  • 图片
  • 图片
  • 上一个 下一个
    《金腾奖优秀作品年鉴》 私宅丨地产丨餐饮丨酒店丨办公丨商业丨公共丨产品丨公益丨人气 jintengAWARD(小金_金腾奖组委会) 广州市海珠区琶洲大道68号华新中心21楼
    金腾奖视频号 金腾奖小红书号 监制:闫虹
    统筹:吴佳佳
    运营:朱倩仪 王赫萱 张芷莹 胡岚恩 小金
    新媒体:王贝贝 严洁 侯乐 鹅姐
    经纪:刘译遥 石征 曹凯月
    技术:张桐 黄天佑
    最终解释权归金腾奖主办方所有