Black Jadeite
作品详情
  • Details of the work 标题横线
    头像或者logo
    图片 余波 室内设计联盟特约推荐
    城市:宁波
    公司: 独立设计师
    参赛作品: 墨翠
    空间类型:公寓(150㎡以下)
    个人/公司简介:
    2010年毕业,从事室内设计行业14年,曾入职派尚设计,后一直就职于宁波东易日盛。2016年上海同济大学建筑设计院/日本INTERCALARY设计认证2017年“大金杯室内设计大赛”综合设计铜奖2018年“红创奖”年度最佳作品奖2018年“艾特奖”年度居住空间入围奖2019年“红创奖”年度软装作品 奖2020年“红创奖”年度最佳作品奖2022年 网易宁波城市设计精英榜TOP50
    设计说明 | Design Instruction
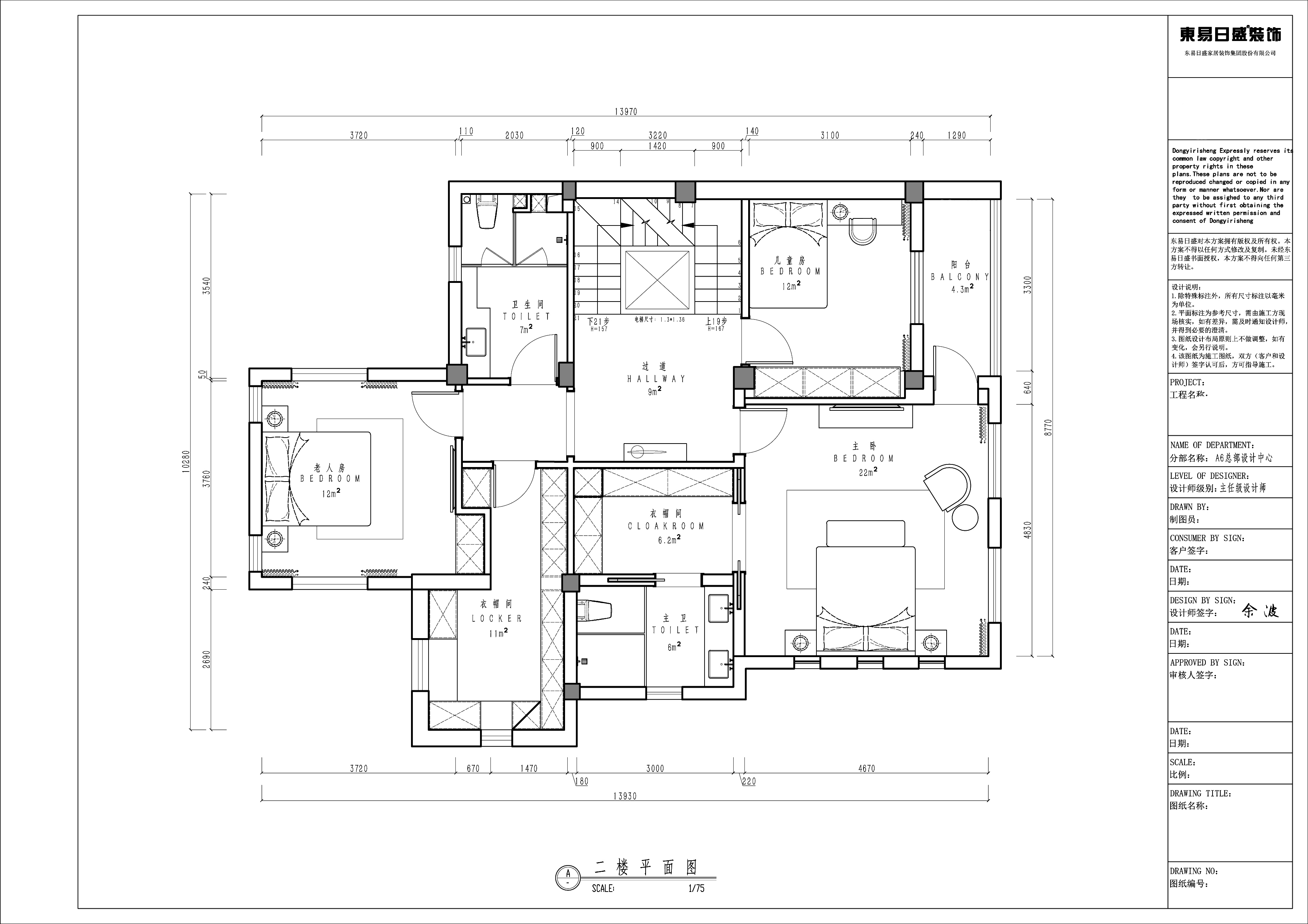
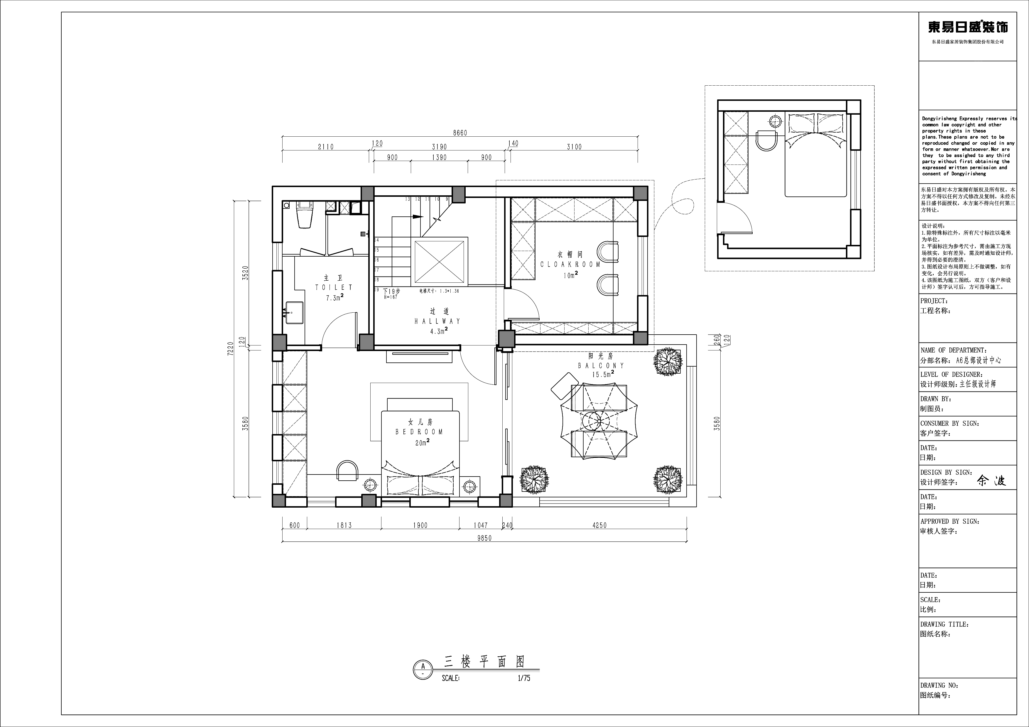
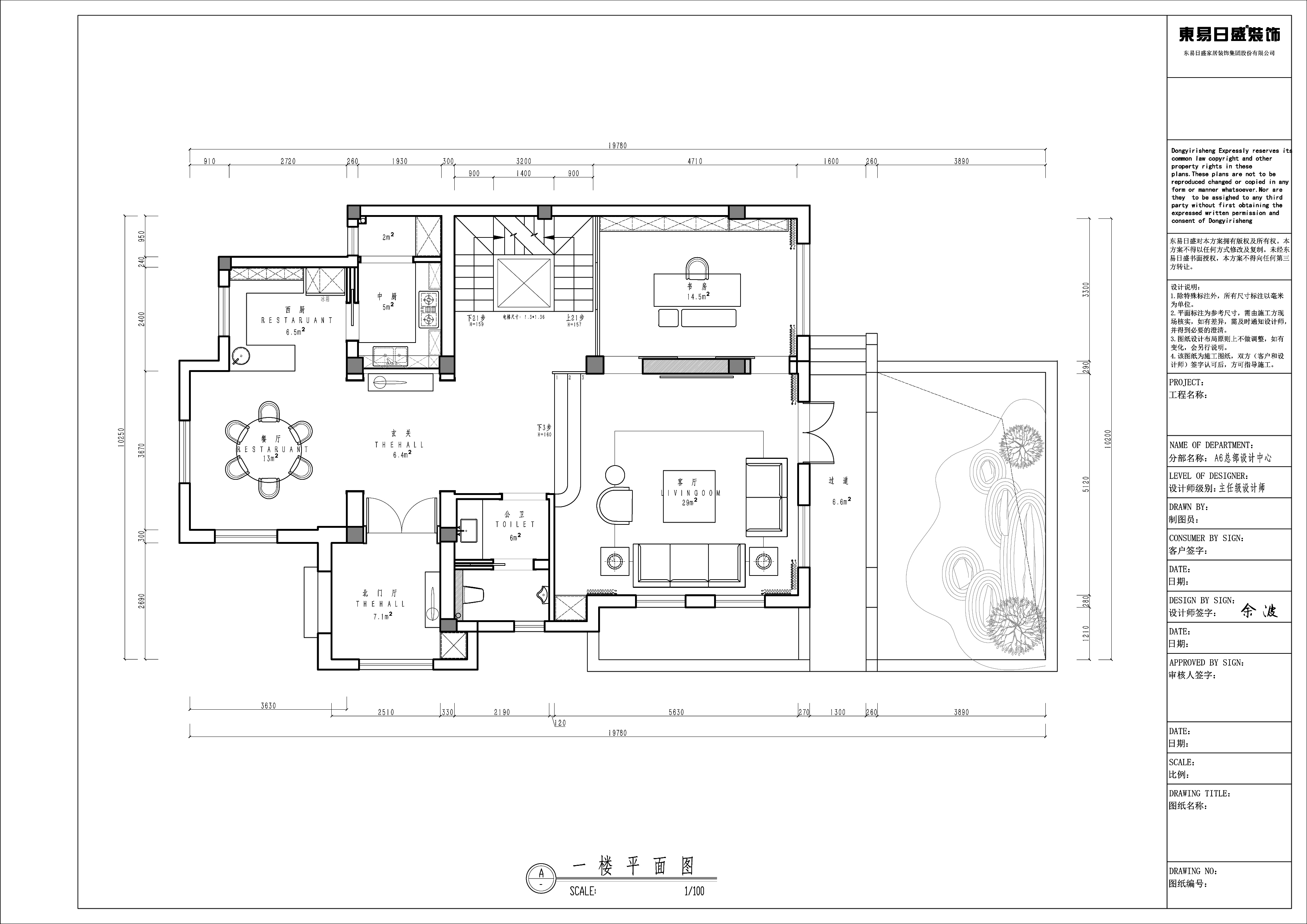
  • 设计理念:墨翠,是翡翠的一种,翡翠的特征是表面看起来是黑色,但是在投射光下却显示幽深的墨绿色。翡翠在500-600年中跻身于中国玉石文化中成为玉中之冠,除其晶莹剔透的质地外更主要的是以其丰富瑰丽,浑厚内涵的色彩博得人们的喜爱。本案中也运用到了墨翡翠的岩板,设计在客厅的电视背景,也是整个房子的视觉中心,让这个高贵的色彩装点着这栋房子,给房子的主人带来好运和美好。 设计说明:本案是为即将退休的夫妻作为养老的住宅,为了让子女以及未来的第三代喜爱这套房子,所以再风格设计上,做的比较年轻化,但是在色彩上还是比较沉稳大气的,客厅的设计,突出的要点就是开敞,原本客厅和书房之间是错层,但因书房的利用率不大,错层无法将空间最大限度的展示出来,故而将书房区域的楼板降低,和客厅的楼板一样高,这样书房和客厅的空间就是连贯的,使空间效果最大化,电视背景是墨翡翠的岩板,色彩富有层次又不过于张扬,和客厅整体的色调浑然一体,这一抹 绿,让整个客厅显得自然又时尚。门厅玄关的设计,是一组装饰柜,既能满足门厅的装饰作用,又能满足储物的功能,玄关柜里面设计了餐边柜的功能,如红酒杯金属架,碗碟抽等等,放在玄关的位置, 既有颜值,又有内涵。书房和客厅之间,是通过墨翡翠的岩板电视背景隔开的,又通过长虹玻璃的屏风与楼梯间之间隔绝,书房的空间及其开阔,与客厅相映成趣,侧面即是改造后的大落地窗,将花园的自然之美,完全呈现在宁静的书房区域,使得书房宁静、舒适。餐厅的设计理念就是餐厨一体化,厨房设计成了中西厨,中厨可以满足中式厨房爆炒的烹饪习惯,把大量的烹饪的油烟锁在中厨,而西厨就可以作为一个前期备餐的空间,以及西式简餐的操作区域,还能作为一个酒水吧台来使用,使得下厨也是一个有趣的互动的过程,而不是某个下厨人独立的工作,让家人之间增加了互动的体验。二楼主卧的设计,整体简洁,现代,干净,可以营造一个良好的睡眠环境,让人放松、舒适,床头背景的灯光也富有层次,可以满足夜晚阅读,聊天,亲密等各种环境的灯光需求。三楼主卧的设计,是为业主女儿准备的,女儿已经成人,但是却拥有一个少女心,喜欢粉色,所以在床头设计了以一个书桌,护墙,柜子一体的粉色区域,早起化妆时,可以在这样一个区域梳妆,便可以开启一天的美好心情。
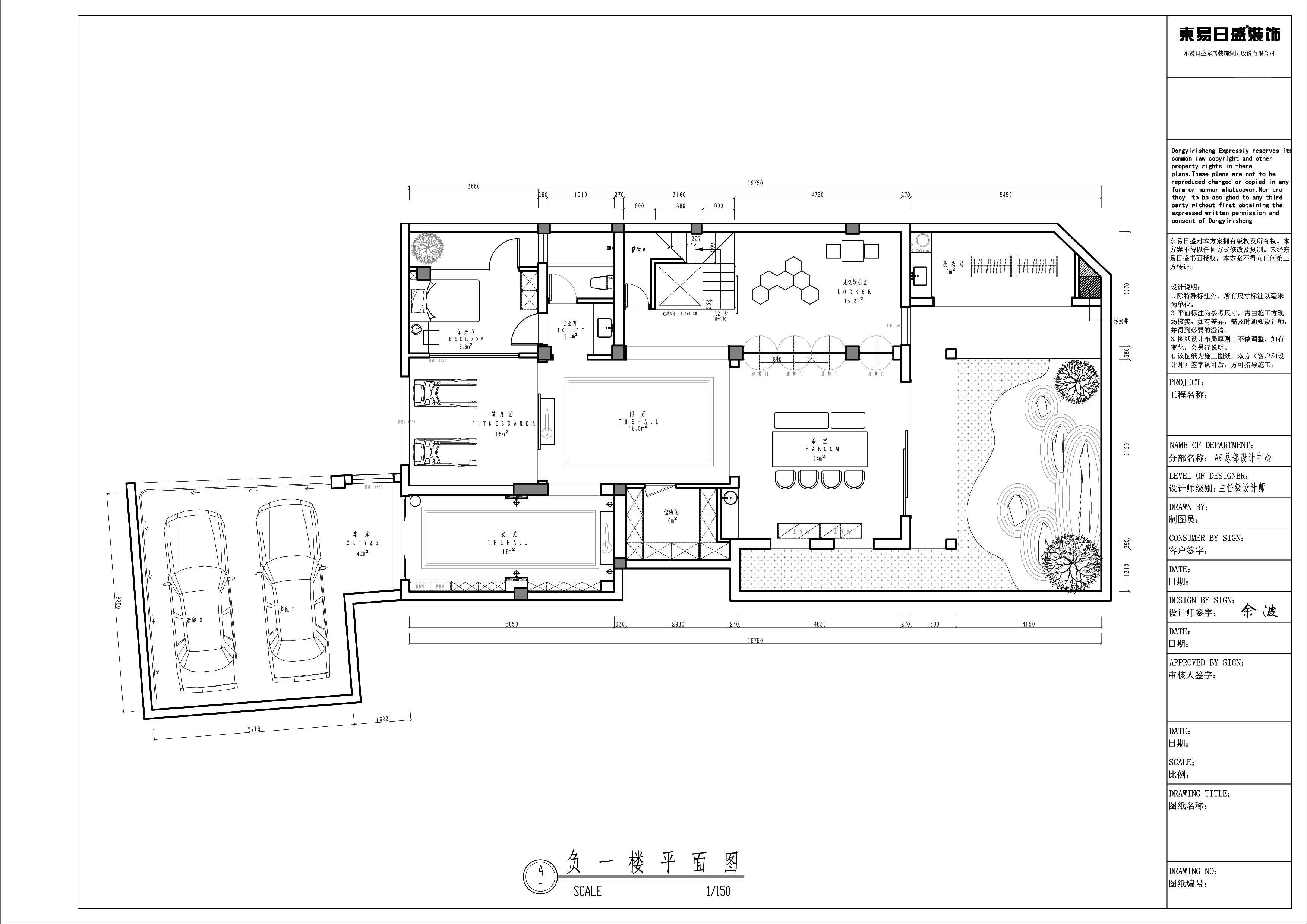
  • 图片
  • 图片
  • 图片
  • 图片
  • 图片
  • 图片
  • 图片
  • 图片
  • 图片
  • 图片
  • 图片
  • 图片
  • 图片
  • 图片
  • 图片
  • 图片
  • 图片
  • 图片
  • 图片
  • 图片
  • 图片
  • 图片
  • 图片
  • 图片
  • 图片
  • 图片
  • 上一个 下一个
    《金腾奖优秀作品年鉴》 私宅丨地产丨餐饮丨酒店丨办公丨商业丨公共丨产品丨公益丨人气 jintengAWARD(小金_金腾奖组委会) 广州市海珠区琶洲大道68号华新中心21楼
    金腾奖视频号 金腾奖小红书号 监制:闫虹
    统筹:吴佳佳
    运营:朱倩仪 王赫萱 张芷莹 胡岚恩 小金
    新媒体:王贝贝 严洁 侯乐 鹅姐
    经纪:刘译遥 石征 曹凯月
    技术:张桐 黄天佑
    最终解释权归金腾奖主办方所有