浅咖系慢调生活
作品详情
  • Details of the work 标题横线
    头像或者logo
    图片 路斯登 宁波市室内设计师协会特约推荐
    城市:宁波
    公司: 路斯登尔空间设计(宁波)有限公司
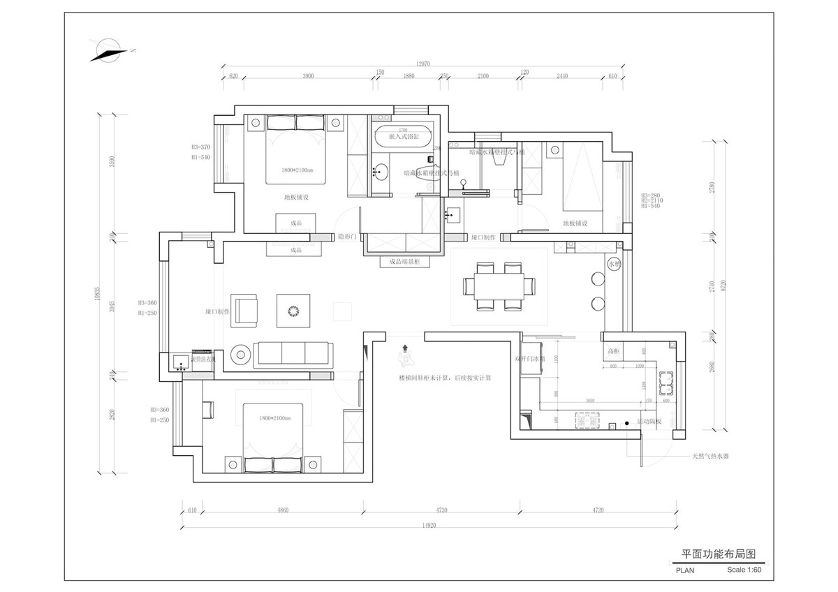
    参赛作品: 浅咖系慢调生活
    空间类型:公寓(150㎡以下)
    个人/公司简介:
    路斯登尔空间设计(宁波)有限公司 创始人
    设计说明 | Design Instruction
  • “它”算得上一处屏障,在闹市里隔绝喧嚣和浮躁,又同时鲜存着日光、静夜与能量,暮色里暖灯烁烁,是心灵的慰藉港,是无数人安放自己、孕育未来的家。 本案将黑白灰作为主基调,线条元素的勾勒使空间更具骨感。大面积的纯色饰面,加之良好的采光基础,室内通透感得以最大化体现。 客厅中,皮质沙发搭配细格纹毯巾,布艺褶皱自然垂落,如巧克力般浓郁丝滑,浅咖、灰粽色系由此延展,更柔和了空间原本的高冷气质。 无主灯设计更追求氛围呈现,其间,巨幅画作单刀直入,进而渲染着静谧、安然的适居一隅。 餐厅与客厅贯穿一线,纯白洁净的就餐环境,使人更专注于食物本味。 落地窗边设有吧台,可以在此闲来小酌,有时忙碌,端来电脑,一杯咖啡伴着阳光或星辰,无聊的办公时间也会转而惬意。 绿植提亮着生机,与大自然的魅力里应外合,为生活增色。 厨房区域以玻璃门相隔,放眼望去规整有序,考虑到日常的收纳需求,设计师充分利用上下空间打造个性化橱柜,为烹饪带去更多乐趣。 卧室沿袭了极简轻柔风,素雅床品酝酿着好梦,窗外和风拂帘、悄然入室,视觉与体感的双重舒适,呵护着起居。 卫生间实现了干湿分离,干区从墙体、台面乃至洗漱用品,均为经典黑白配色。 台下盆既美观又方便打理,柜体底部也预留出充分空间,不易形成卫生死角。 两款浴室分别选用了淋浴房和浴缸设计,能够满足居住者的所有需求。 所谓生活,所谓家,四时安逸,静待暮色,一切刚好就是满足。
  • 图片
  • 图片
  • 图片
  • 图片
  • 图片
  • 图片
  • 图片
  • 图片
  • 图片
  • 图片
  • 图片
  • 图片
  • 图片
  • 图片
  • 图片
  • 图片
  • 上一个 下一个
    《金腾奖优秀作品年鉴》 私宅丨地产丨餐饮丨酒店丨办公丨商业丨公共丨产品丨公益丨人气 jintengAWARD(小金_金腾奖组委会) 广州市海珠区琶洲大道68号华新中心21楼
    金腾奖视频号 金腾奖小红书号 监制:闫虹
    统筹:吴佳佳
    运营:朱倩仪 王赫萱 张芷莹 胡岚恩 小金
    新媒体:王贝贝 严洁 侯乐 鹅姐
    经纪:刘译遥 石征 曹凯月
    技术:张桐 黄天佑
    最终解释权归金腾奖主办方所有