Xiao Xiaoli VIP Building Restaurant, Nanjing City, Jiangsu Province
作品详情
  • Details of the work 标题横线
    头像或者logo
    图片 南京居格室内装饰工程设计有限公司
    城市:南京
    公司: 南京居格室内装饰工程设计有限公司
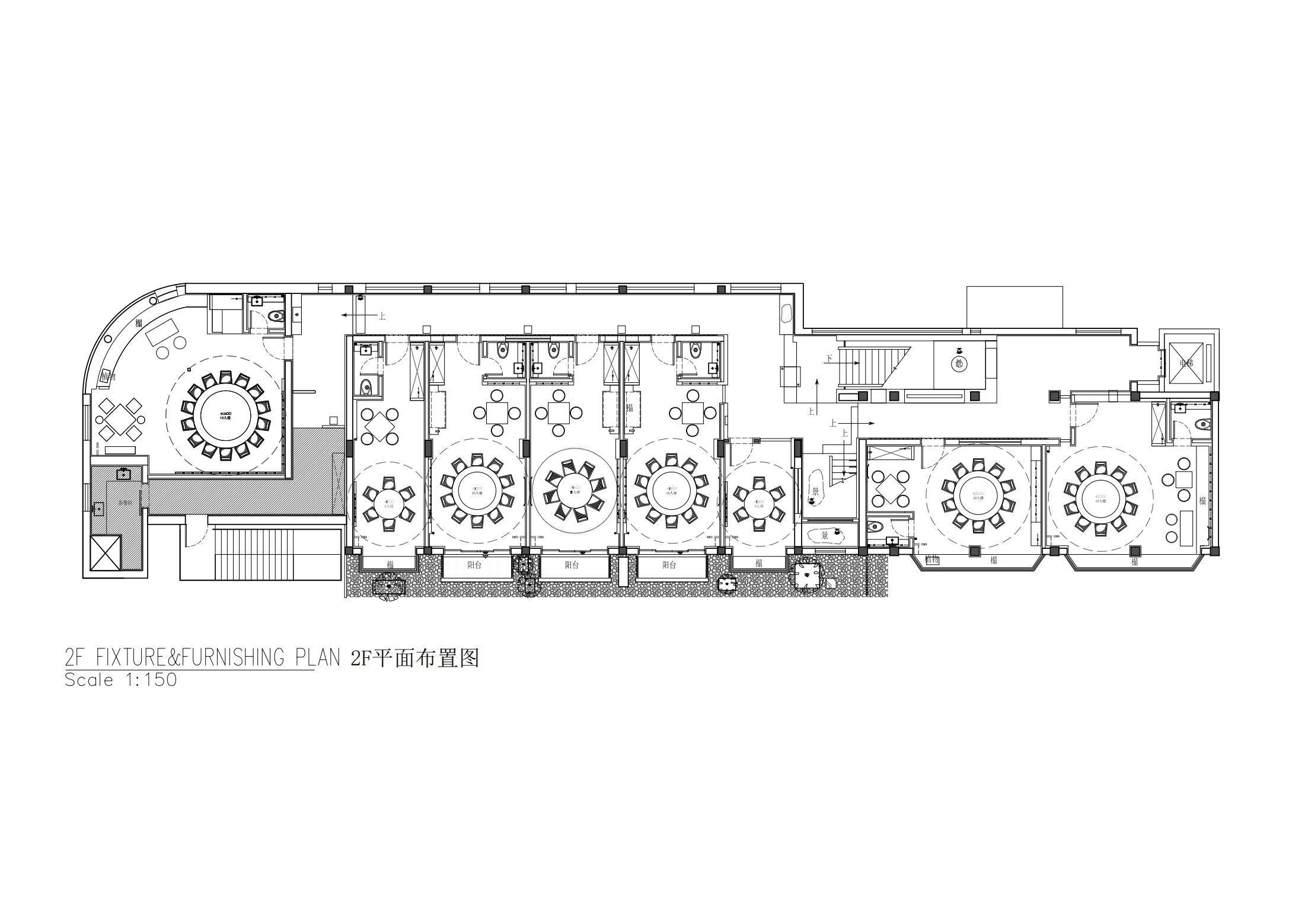
    参赛作品: 江苏省南京市晓小李贵宾楼餐厅
    空间类型:民宿
    个人/公司简介:
    南京居格室内装饰工程设计有限公司,成立于1999年,主要从事装饰设计施工,专注于办公楼、高端别墅、精装公寓、办公和学校等领域,并为中高端客户提供定制型软装设计及产品服务,锐意进取的企业人员坚持以设计服务与创新为核心,与当代装饰设计潮流接轨。不断为客户提供优质设计与施工方案。
    设计说明 | Design Instruction
  • 晓小李贵宾楼餐厅坐落于江苏省南京市,定位于中高端餐饮。希望以较少的投入实现空间设计效果。 设计以东方简约风格做为该项目的基本基调。项目共分为三层楼,一楼为门厅、零点区、外卖区和一处景观小院。整体效果大方简洁、清逸淡雅,又极富东方感的简约陈设,阳光透过竹帘照射进来,增添层次感。二楼以包间为主,三楼以包间并宴会厅,宴会厅可容纳18桌的宴会需求。 空间中通过借景、通透、光影、留白几个元素来表达。在包间与包间之间,包间与过道之间,通过各功能空间的相互渗透和影响,室内外空间的流动来实现和表达空间、塑造一个简约意境上的东方情调餐厅。 无限延展,永不过时是东方设计的魅力所在,赋予更加丰富的含义,更多的是东方魅力对当下生活概括的浓缩,让消费者感受到东方的设计风格也可以表达出不一样的特性。
  • 图片
  • 图片
  • 图片
  • 图片
  • 图片
  • 图片
  • 图片
  • 图片
  • 图片
  • 图片
  • 图片
  • 图片
  • 图片
  • 图片
  • 图片
  • 上一个 下一个
    《金腾奖优秀作品年鉴》 私宅丨地产丨餐饮丨酒店丨办公丨商业丨公共丨产品丨公益丨人气 jintengAWARD(小金_金腾奖组委会) 广州市海珠区琶洲大道68号华新中心21楼
    金腾奖视频号 金腾奖小红书号 监制:闫虹
    统筹:吴佳佳
    运营:朱倩仪 王赫萱 张芷莹 胡岚恩 小金
    新媒体:王贝贝 严洁 侯乐 鹅姐
    经纪:刘译遥 石征 曹凯月
    技术:张桐 黄天佑
    最终解释权归金腾奖主办方所有