小导演的家
作品详情
  • Details of the work 标题横线
    头像或者logo
    图片 覃方 宁波市室内设计师协会特约推荐
    城市:宁波
    公司: 宁波覃方空间设计事务所
    参赛作品: 小导演的家
    空间类型:公寓(150㎡以下)
    个人/公司简介:
    从事室内设计12年,参与过各类家装和工装项目如下:美容院,美发工作室,服装店,餐饮,办公室,工厂,公寓,精品房,别墅。 工装:宁波余姚万达加勒比餐厅 台州万达加勒比主题餐厅 宁波富邦广场都市娘家快餐店 宁波富博电商创业园办公楼 宁波下应印刷厂 甬港北路中科灵芝专卖店 阿侬家海南文昌鸡 桢兮 燕窝店 ,杭州澄裕丝绸总部 等 家装: 东大道联排别墅 银亿东岸 东湖花园 名人别墅 江南一品 宁兴城市广场别墅 奉化中央花园 奉化香山美邸 奉化绿城玫瑰园 奉化黄贤别墅等 奖项: 2016年第十一届中国室内设计双年展优秀奖 2016年荣获艾鼎奖入围奖 2016年加入宁波市室内设计师协会会员 2016年加入深圳陈设协会会员 2017年中国软装协会高级软装师 2017年中国软装协会高级软师 2017年参加北京易配着软装培训荣获毕业答辩金奖。 2017年中国(浙江)青年室内设计奖年度住宅公寓空间设计优秀奖 2017年第五届日立中央空调Hi-Design室内设计大奖 优秀奖 2018年第八届中国国际空间设计大赛年度创新作品奖 2019年担任奉化设计师协会理事 2019德国高仪中国住宅设计精英榜优秀奖 2020年DESIGN FOCUS 国际空间设计大奖 年度商业空间设计 优秀奖
    设计说明 | Design Instruction
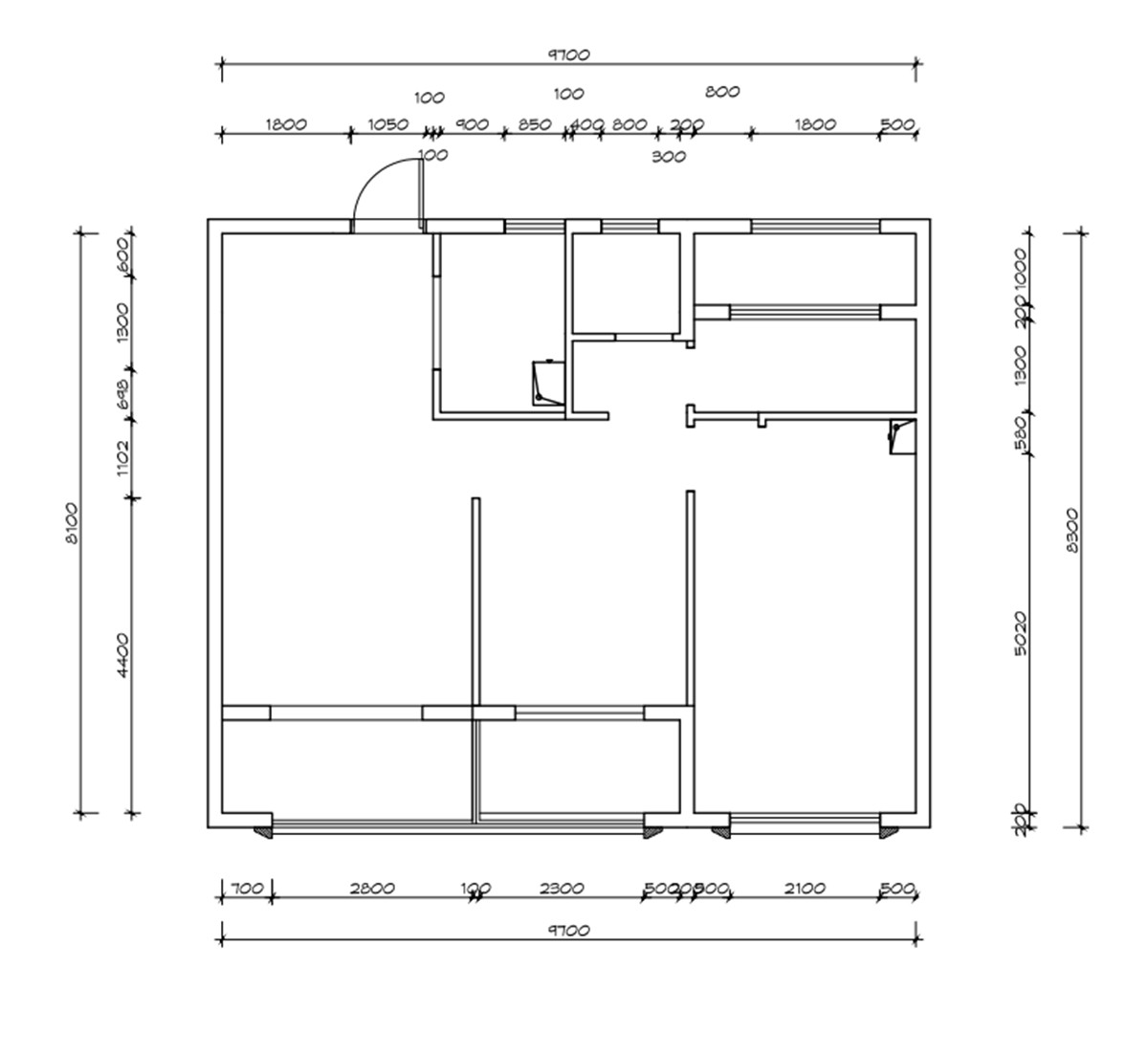
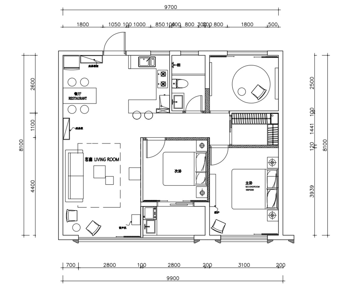
  • 项目名称:烟火 建筑面积:150 主要建材: 设计单位:覃方空间设计事务所 设计师:覃方 参与设计:王诗源、杨佳兴 预约设计:15888547900 这是个三居室,小三房。业主是个小导演,经常在外地。房子父母一起住,喜欢简单干净带趣味性。设计只是一个开始,生活才是空间的延续这。我们取义不一样的烟火 ,源于对空间的思考和业主的自我认同的共鸣! 在设计装修的时候总是有人质疑白色的墙,白色的砖,白色的柜门,什么都白,再加一点黑,好看吗?房门一定要木门,等………不对,我们思考,我们的人生可以自己做主,我们是房子的主人,我们是有色彩的,情绪的,一通到顶的长虹玻璃门也很好,于是乎,就这样干,做饭好经常打扫台面,开放式厨房也挺好!不是厨房不干净,不是地面难打理,在家呆着写剧本,就是喜欢打扫弄点小西餐。这个是业主的常态。我们赞同每个人的人生不可复制,家也一样!
  • 图片
  • 图片
  • 图片
  • 图片
  • 图片
  • 图片
  • 图片
  • 图片
  • 图片
  • 图片
  • 图片
  • 图片
  • 图片
  • 图片
  • 图片
  • 图片
  • 图片
  • 上一个 下一个
    《金腾奖优秀作品年鉴》 私宅丨地产丨餐饮丨酒店丨办公丨商业丨公共丨产品丨公益丨人气 jintengAWARD(小金_金腾奖组委会) 广州市海珠区琶洲大道68号华新中心21楼
    金腾奖视频号 金腾奖小红书号 监制:闫虹
    统筹:吴佳佳
    运营:朱倩仪 王赫萱 张芷莹 胡岚恩 小金
    新媒体:王贝贝 严洁 侯乐 鹅姐
    经纪:刘译遥 石征 曹凯月
    技术:张桐 黄天佑
    最终解释权归金腾奖主办方所有