Hidden Starry Sky
作品详情
  • Details of the work 标题横线
    头像或者logo
    图片 天津深白设计
    城市:天津
    公司:天津深白设计
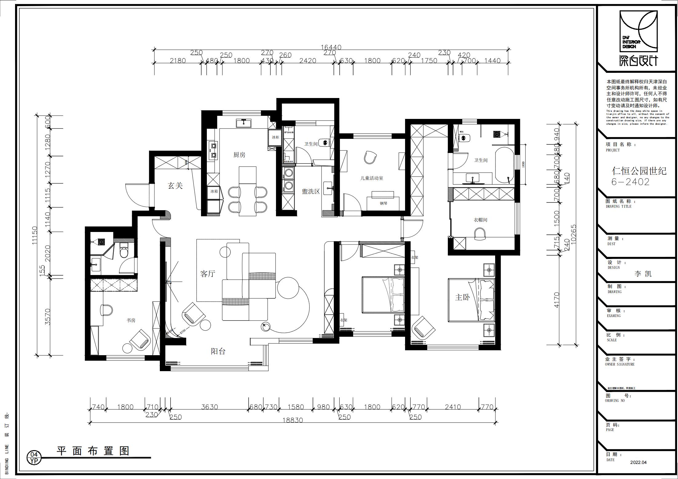
    参赛作品: 星河私藏家
    空间类型:公寓(150㎡以下)
    个人/公司简介:
    深:深度 专业 视野 白:取舍 纯净 空间 深白:有温度的家 深白设计创立于2013年,专注于公寓别墅与商业空间设计领域, 是一家集室内设计、商业设计、软装设计、配套施工为一体的精品设计公司。 年产百余套设计落地项目,每年斩获多个国内外设计奖项。 司目前共有40余人,分为设计部、产品部、工程部、运营部、行政部及独立的软装公司。 有能够高度实现创意、细节、工艺、品质的优秀施工团队,以及完整的建材厂商供应链。 设计团队均由专业设计院校科班出身和从业经验八年以上的设计师组成,拥有科学设计居住方案的专业能力和丰富的多年工地对接设计经验。团队配置:主创设计师+执行设计师+深化设计师+软装设计师+设计评审团+产品主管+客户经理 已经建立成熟独到的设计管理模式、团队管理制度,竣工全程规范流畅的客户服务流程与内外管控标准,深度促进设计成果的高效落地与实景品质的整体提升。
    设计说明 | Design Instruction
  • 黑白灰为主色调,完成一个纯粹的现代极简风,屋主热爱美术,喜欢收藏潮玩与球鞋,我们将这些爱好融入本案的设计中,整个空间兼具艺术品味,让人感受家的温暖,真正体验舒适的生活氛围。 客餐厨一体化设计,搭配宽敞大横厅,空间开阔无比,将现代极简的高级大气彰显得淋漓尽致,纯粹的色系,极简的线条,搭配干净的软装,呈现的空间调性时尚精致,如同精雕细琢的艺术品,释放无穷的空间张力。 与此同时,空间布局上依靠屋主生活习性,将收藏缀满书房,如同商场的展示品,带来视觉的震撼,彰显屋主的生活格调。大横厅分一部分打造钢琴区,让空间尺度更加和谐精致,靠窗摆放小圆桌,依偎壁炉营造温馨休闲氛围,家的惬意感应运而生。
  • 图片
  • 图片
  • 图片
  • 图片
  • 图片
  • 图片
  • 图片
  • 图片
  • 图片
  • 图片
  • 图片
  • 图片
  • 图片
  • 图片
  • 图片
  • 图片
  • 图片
  • 图片
  • 图片
  • 图片
  • 图片
  • 图片
  • 图片
  • 图片
  • 图片
  • 图片
  • 图片
  • 图片
  • 图片
  • 图片
  • 图片
  • 图片
  • 图片
  • 图片
  • 图片
  • 图片
  • 图片
  • 图片
  • 图片
  • 图片
  • 图片
  • 图片
  • 图片
  • 图片
  • 图片
  • 图片
  • 图片
  • 图片
  • 图片
  • 图片
  • 图片
  • 图片
  • 图片
  • 图片
  • 图片
  • 图片
  • 图片
  • 图片
  • 图片
  • 图片
  • 图片
  • 图片
  • 图片
  • 图片
  • 图片
  • 图片
  • 图片
  • 图片
  • 图片
  • 上一个 下一个
    《金腾奖优秀作品年鉴》 私宅丨地产丨餐饮丨酒店丨办公丨商业丨公共丨产品丨公益丨人气 jintengAWARD(小金_金腾奖组委会) 广州市海珠区琶洲大道68号华新中心21楼
    金腾奖视频号 金腾奖小红书号 监制:闫虹
    统筹:吴佳佳
    运营:朱倩仪 王赫萱 张芷莹 胡岚恩 小金
    新媒体:王贝贝 严洁 侯乐 鹅姐
    经纪:刘译遥 石征 曹凯月
    技术:张桐 黄天佑
    最终解释权归金腾奖主办方所有