rangshejihuiguishenghuo
作品详情
  • Details of the work 标题横线
    头像或者logo
    图片 冷婷婷 华浔品味装饰集团特约推荐
    城市:烟台
    公司: 广东华浔品味装饰集团(烟台分公司)
    参赛作品: 让设计回归生活
    空间类型:公寓(150㎡以下)
    个人/公司简介:
    冷婷婷 H&A艺墅设计院总监 从业16年 2006年毕业于西南交大环境艺术设计专业中国注册(高级)住宅室内设计师中国建筑学会室内设计(CIID)会员 曾游学意大利、法国、瑞士、日本等国家第四届筑巢奖样板间空间设计入围奖第三届金马克杯软装类金奖 第三届金马克杯实景样板间类银奖 第五届中国国际空间环境艺术筑巢奖提名奖(别墅类)第八届中国国际空间环境艺术筑巢奖优秀奖(别墅类)2018年度筑巢奖别墅空间优秀奖2018年度红棉奖最美雅奢空间奖 2019年度4040中国(山东)设计杰出青年 设计理念:设计的灵魂在于匠心,在于对品质执着的追求
    设计说明 | Design Instruction
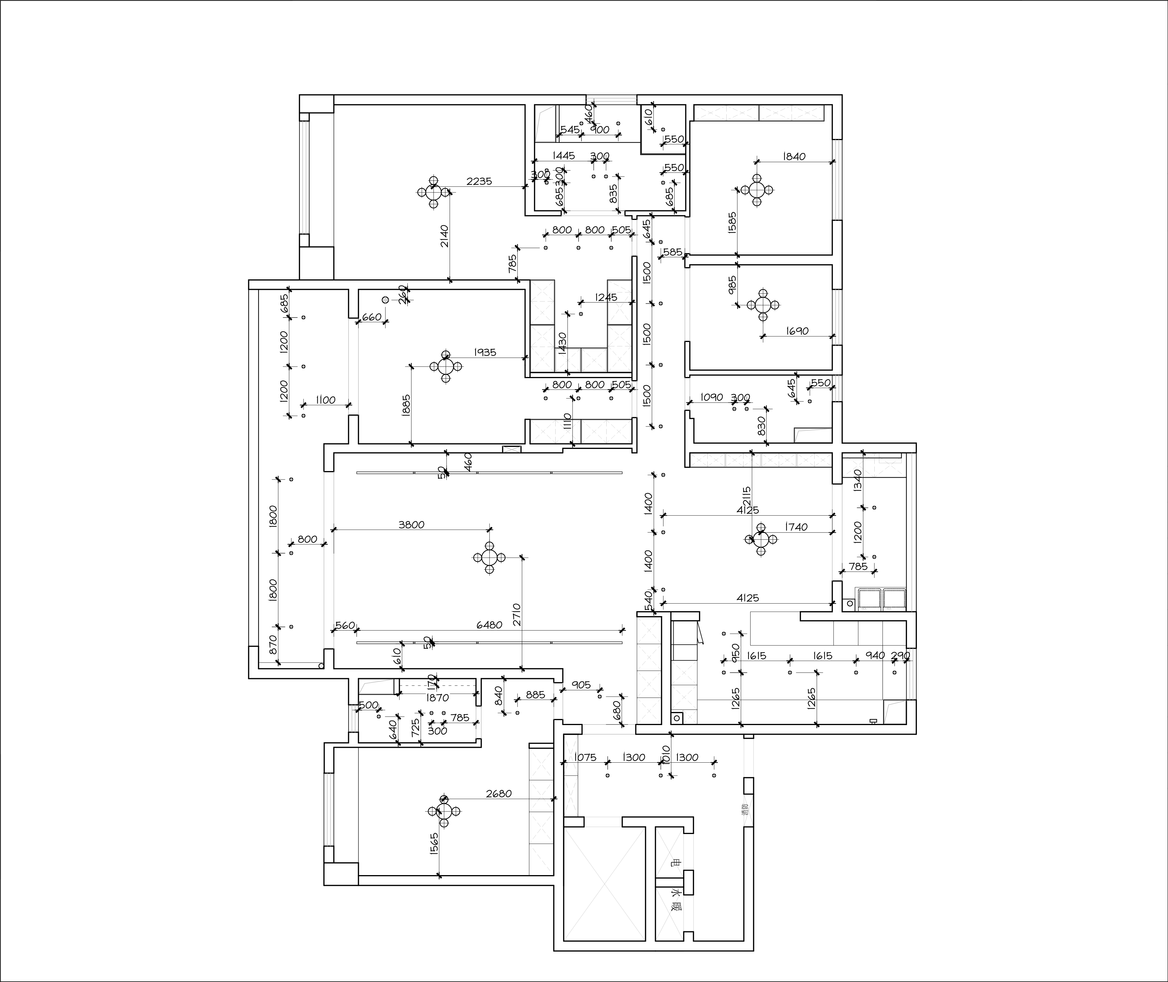
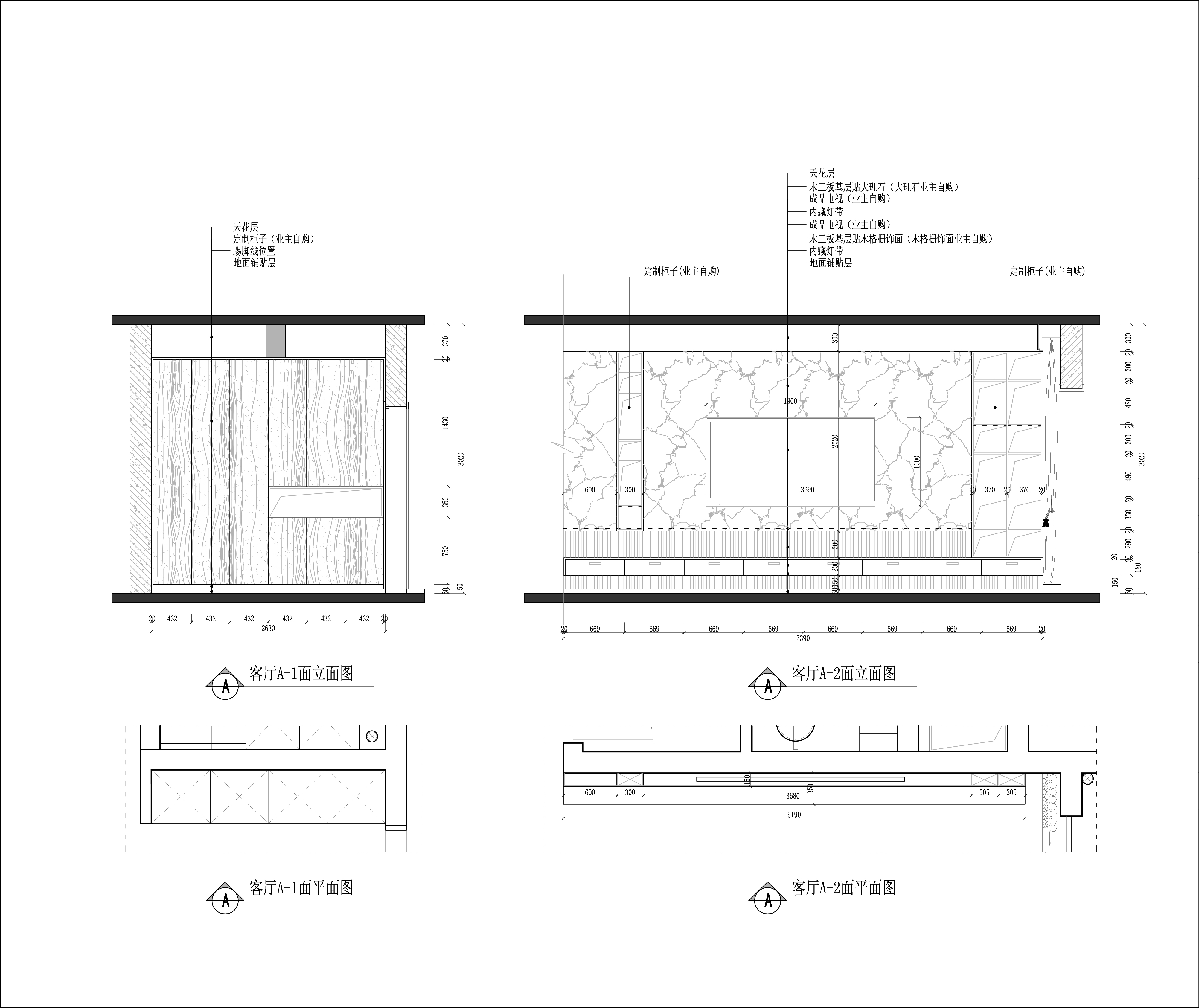
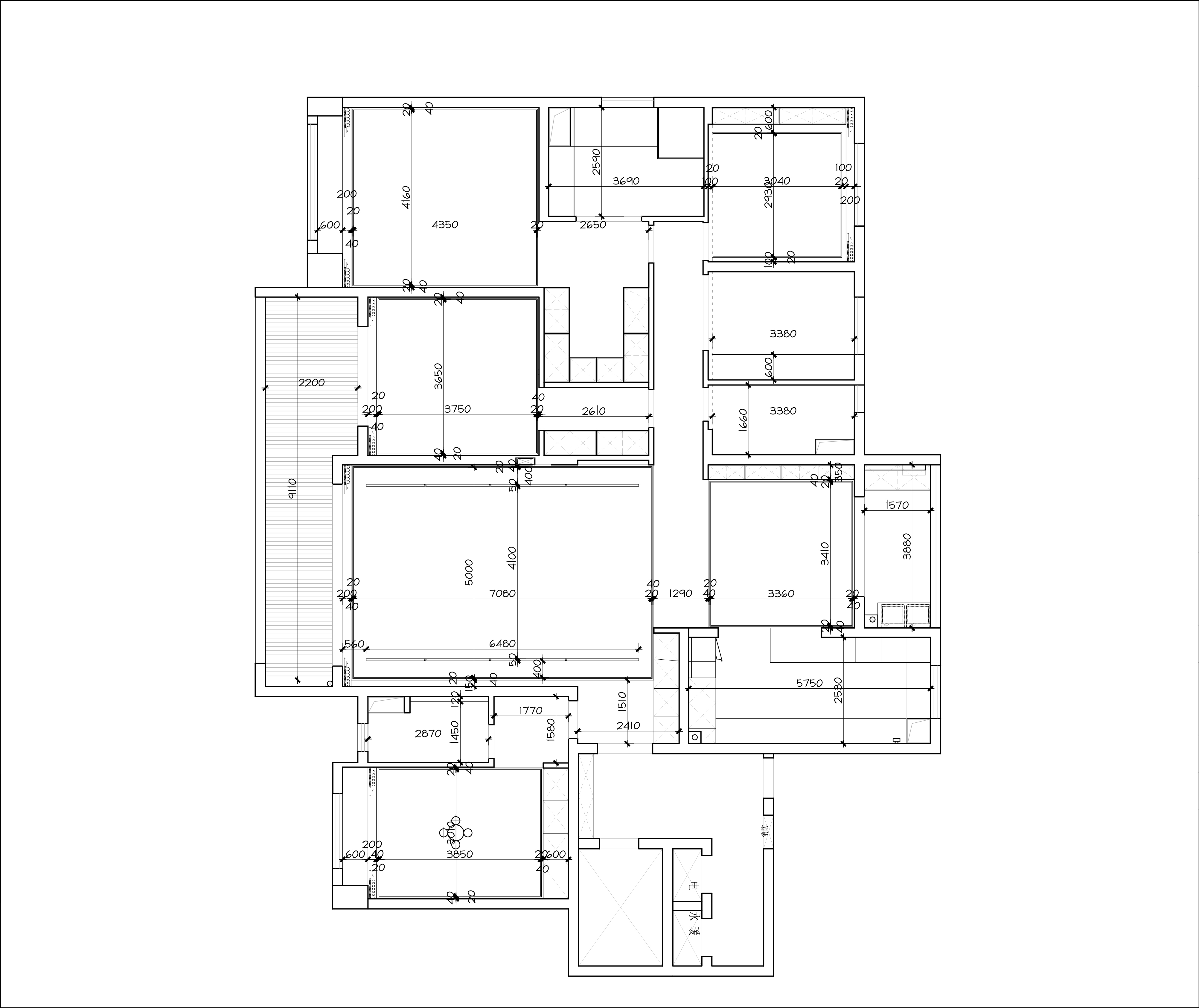
  • 项目名称:“让设计回归生活” 项目地点:烟台碧桂园·凤凰山庄 项目面积:280 m² 本案位于烟台莱山,凤凰湖畔,天瑞地安,温润之处,徐徐入画... 在做空间布局的时候,我希望所有可以打开的空间是有关系的,有互动的,甚至是开敞的通透的。比如厨房与餐厅,或者厨房与客厅,我觉得一边做饭,一边与家人聊天,是件特别幸福的事,这其实就是通过空间的关系产生情感的互动链接。 卷轴连展,线条分明,时尚温馨而平衡,空间木作纹理与墙面和顶面的留白形成对比,经过了一天的忙碌,我们更想在一个安静、舒适、敞亮的环境中生活,来消除疲劳,忘记城市喧嚣,享受生活的宁静。
  • 图片
  • 图片
  • 图片
  • 图片
  • 图片
  • 图片
  • 图片
  • 图片
  • 图片
  • 图片
  • 图片
  • 图片
  • 图片
  • 图片
  • 图片
  • 图片
  • 图片
  • 图片
  • 图片
  • 图片
  • 图片
  • 图片
  • 图片
  • 图片
  • 图片
  • 图片
  • 图片
  • 图片
  • 图片
  • 图片
  • 图片
  • 图片
  • 上一个 下一个
    《金腾奖优秀作品年鉴》 私宅丨地产丨餐饮丨酒店丨办公丨商业丨公共丨产品丨公益丨人气 jintengAWARD(小金_金腾奖组委会) 广州市海珠区琶洲大道68号华新中心21楼
    金腾奖视频号 金腾奖小红书号 监制:闫虹
    统筹:吴佳佳
    运营:朱倩仪 王赫萱 张芷莹 胡岚恩 小金
    新媒体:王贝贝 严洁 侯乐 鹅姐
    经纪:刘译遥 石征 曹凯月
    技术:张桐 黄天佑
    最终解释权归金腾奖主办方所有