shiyiweiju
作品详情
  • Details of the work 标题横线
    头像或者logo
    图片 冷婷婷 华浔品味装饰集团特约推荐
    城市:烟台
    公司: 广东华浔品味装饰集团(烟台分公司)
    参赛作品: 诗意为居
    空间类型:公寓(150㎡以下)
    个人/公司简介:
    冷婷婷 H&A艺墅设计院总监 从业16年 2006年毕业于西南交大环境艺术设计专业中国注册(高级)住宅室内设计师中国建筑学会室内设计(CIID)会员 曾游学意大利、法国、瑞士、日本等国家第四届筑巢奖样板间空间设计入围奖第三届金马克杯软装类金奖 第三届金马克杯实景样板间类银奖 第五届中国国际空间环境艺术筑巢奖提名奖(别墅类)第八届中国国际空间环境艺术筑巢奖优秀奖(别墅类)2018年度筑巢奖别墅空间优秀奖2018年度红棉奖最美雅奢空间奖 2019年度4040中国(山东)设计杰出青年 设计理念:设计的灵魂在于匠心,在于对品质执着的追求
    设计说明 | Design Instruction
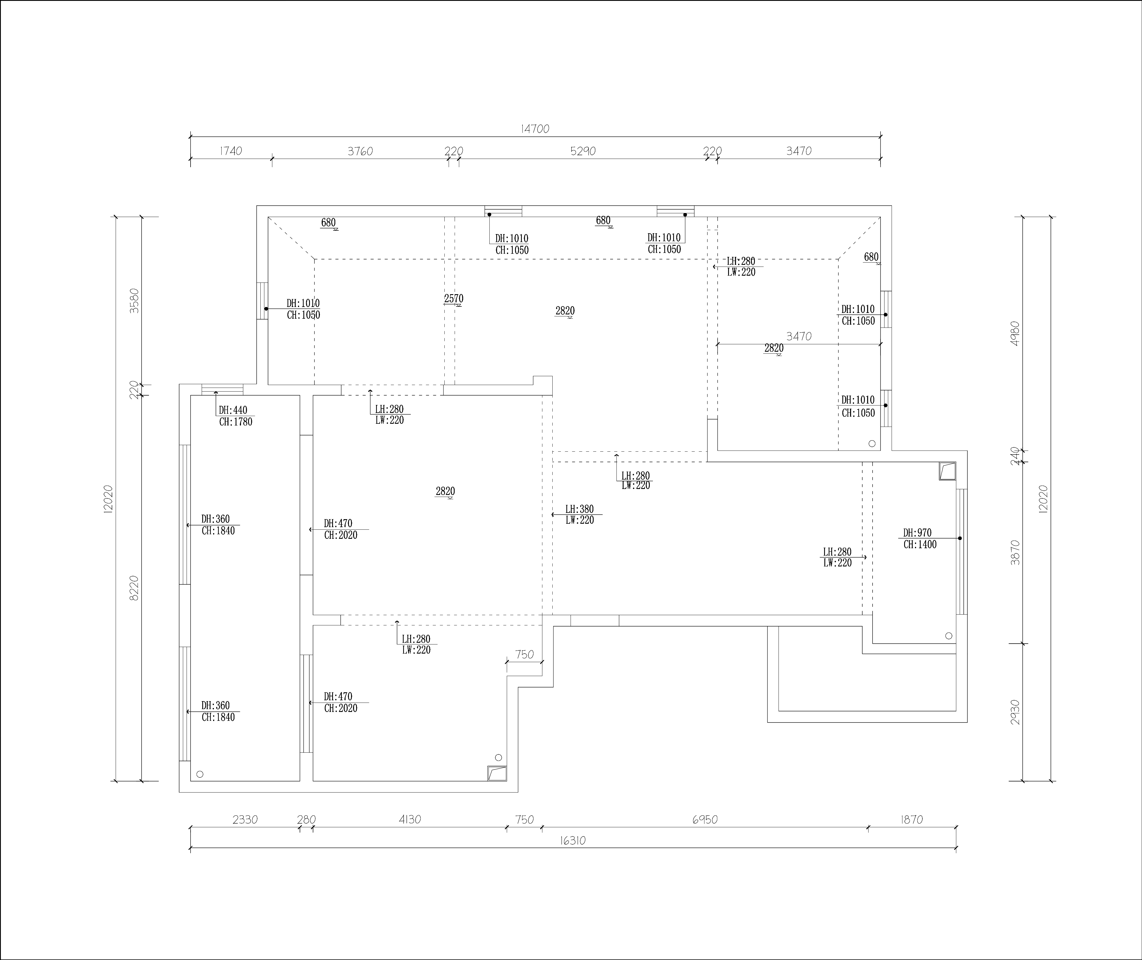
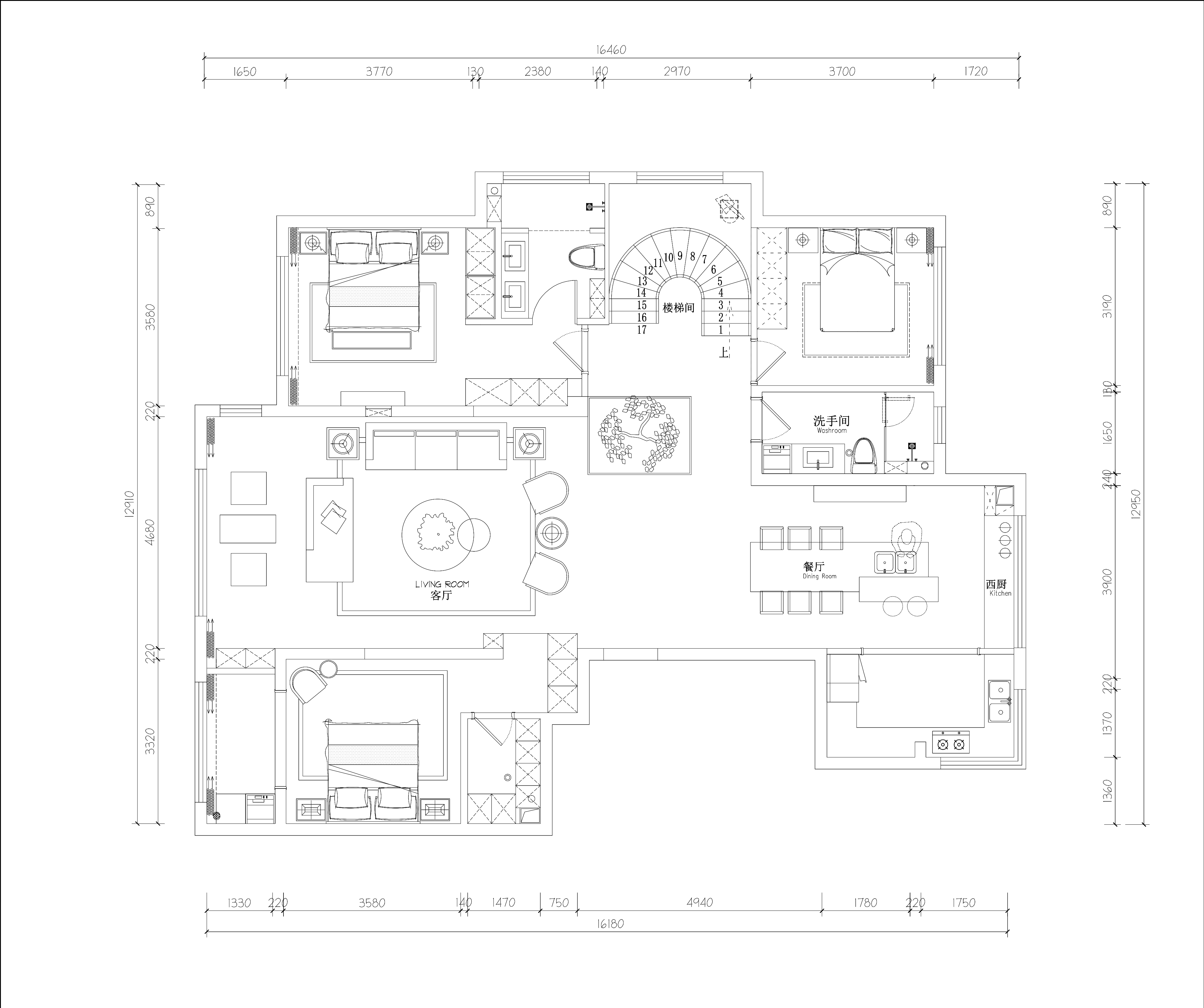
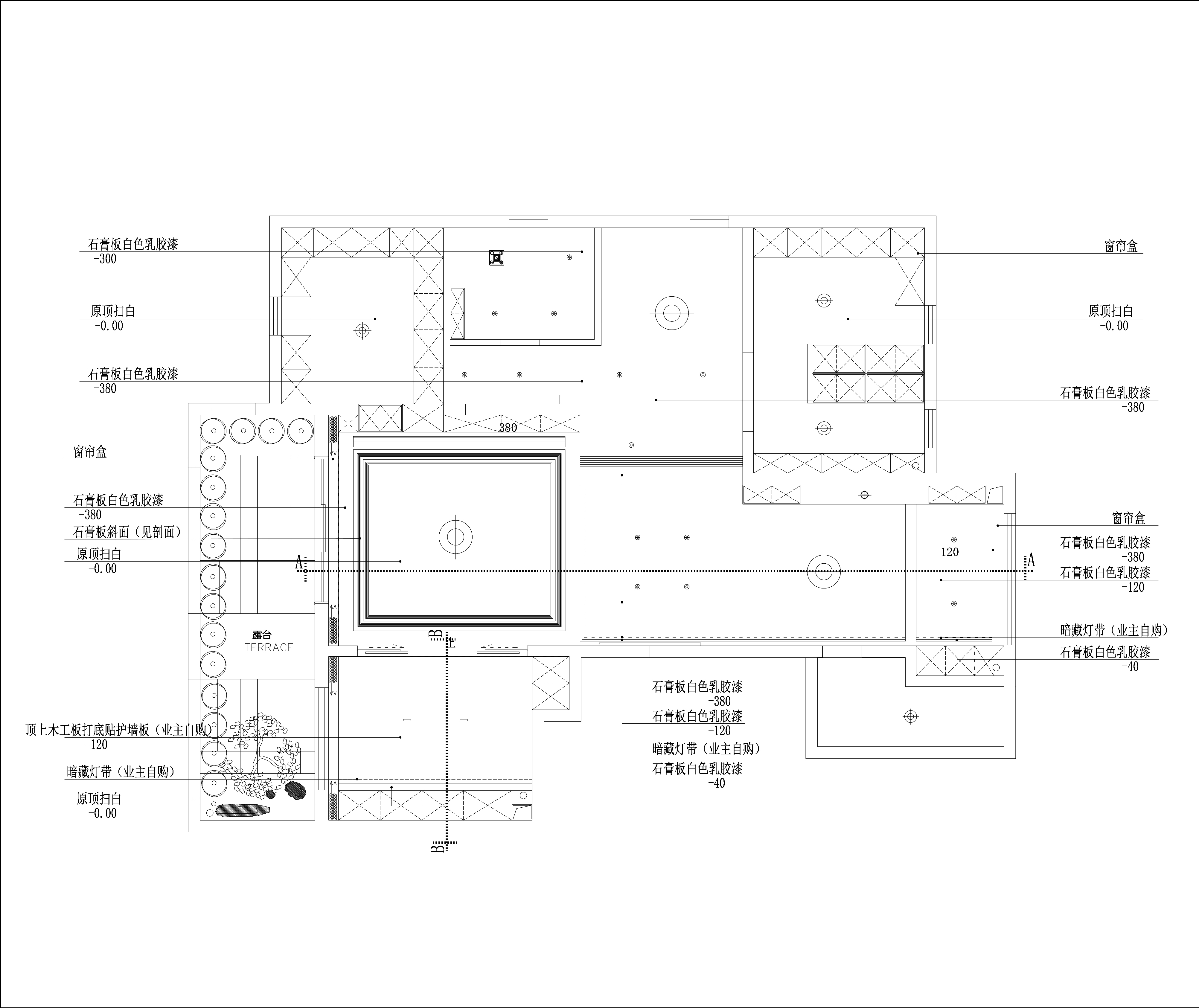
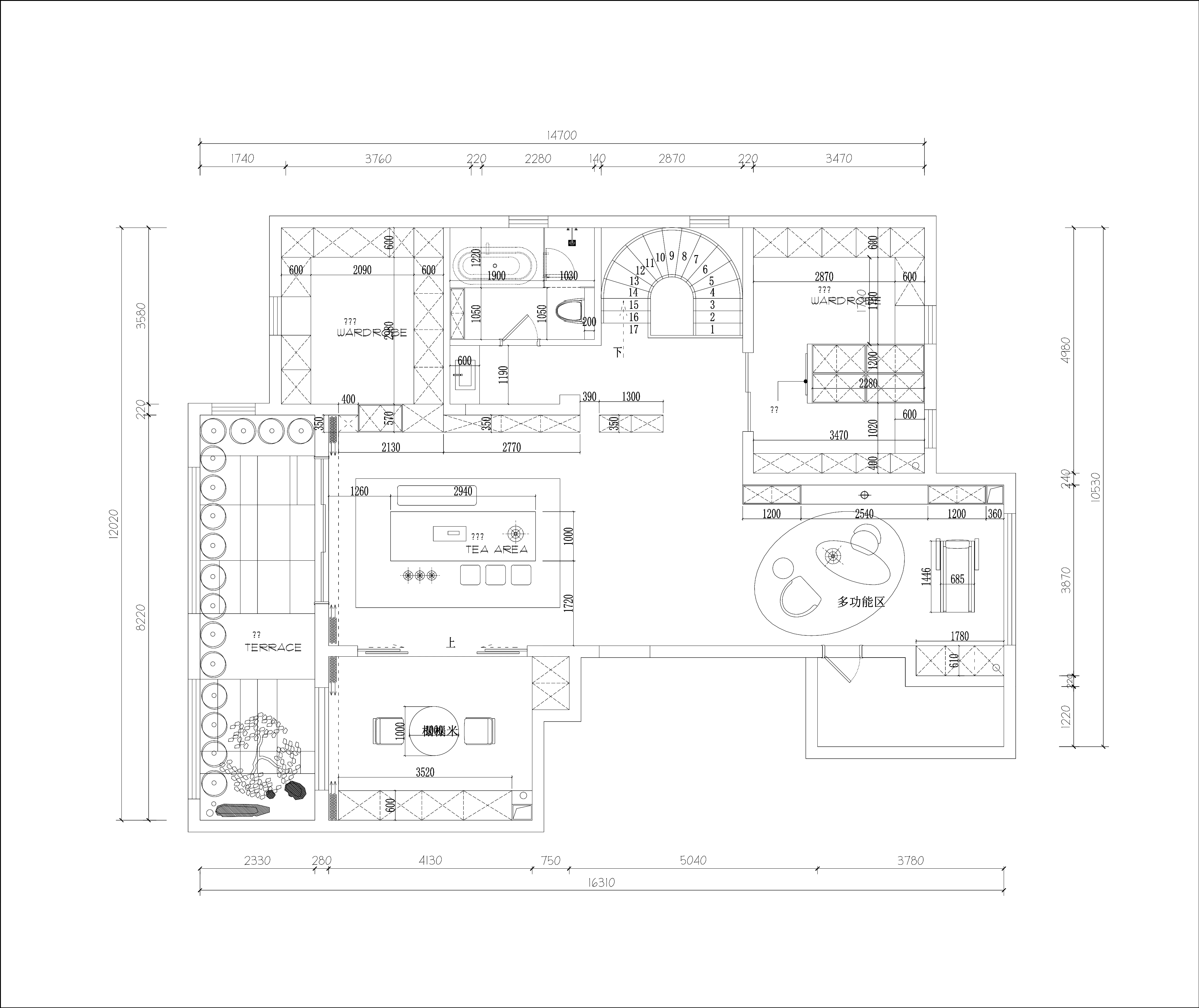
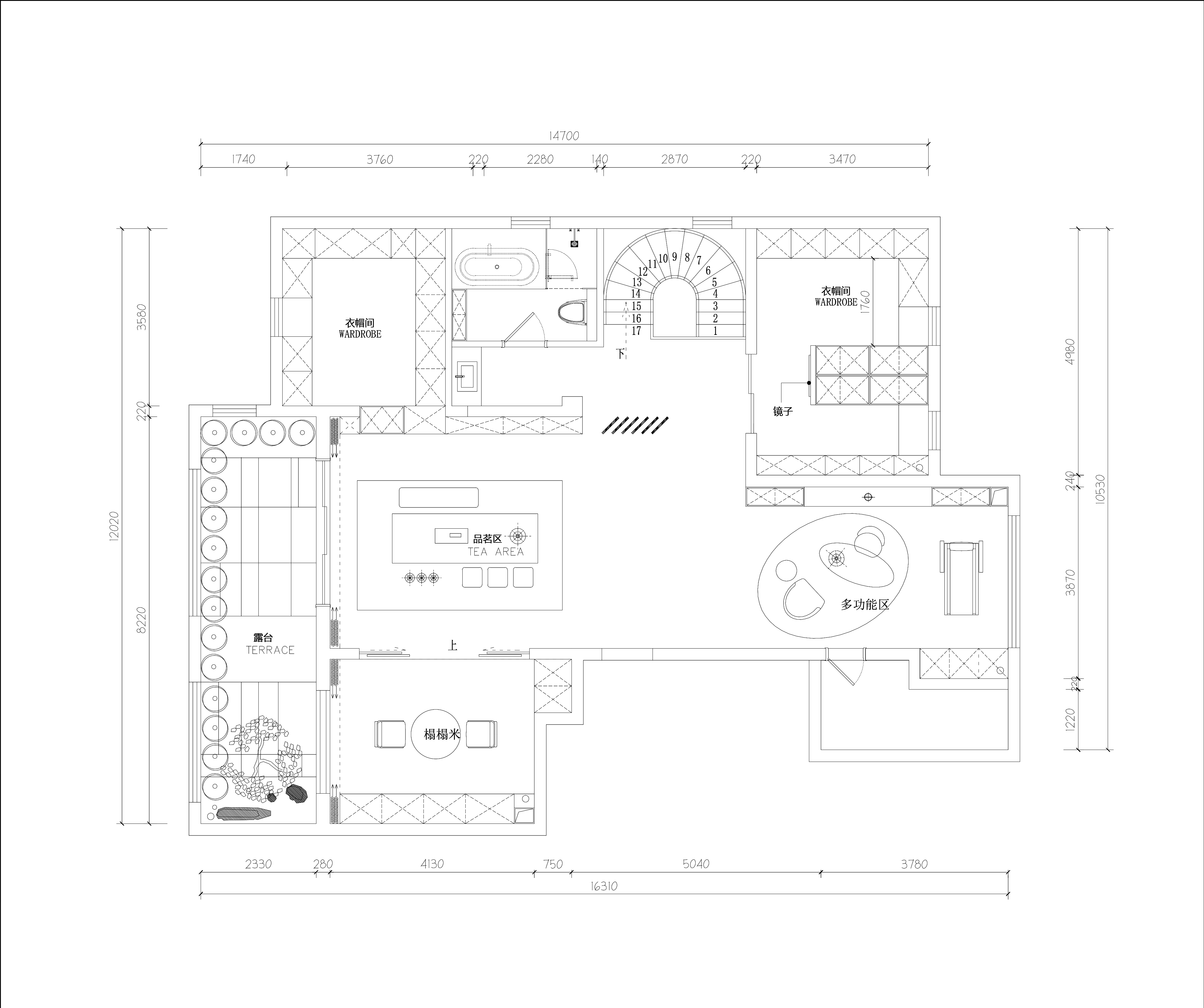
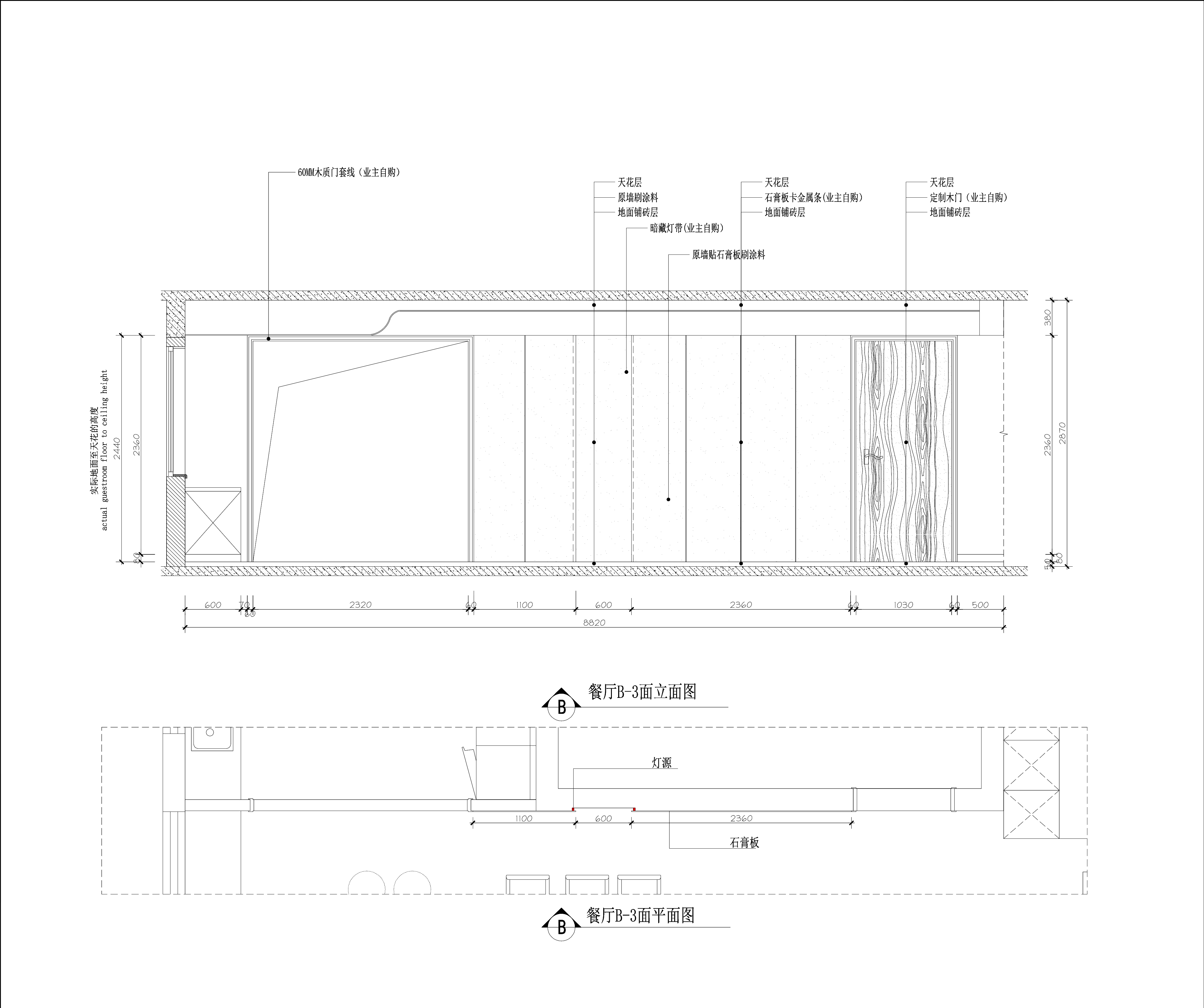
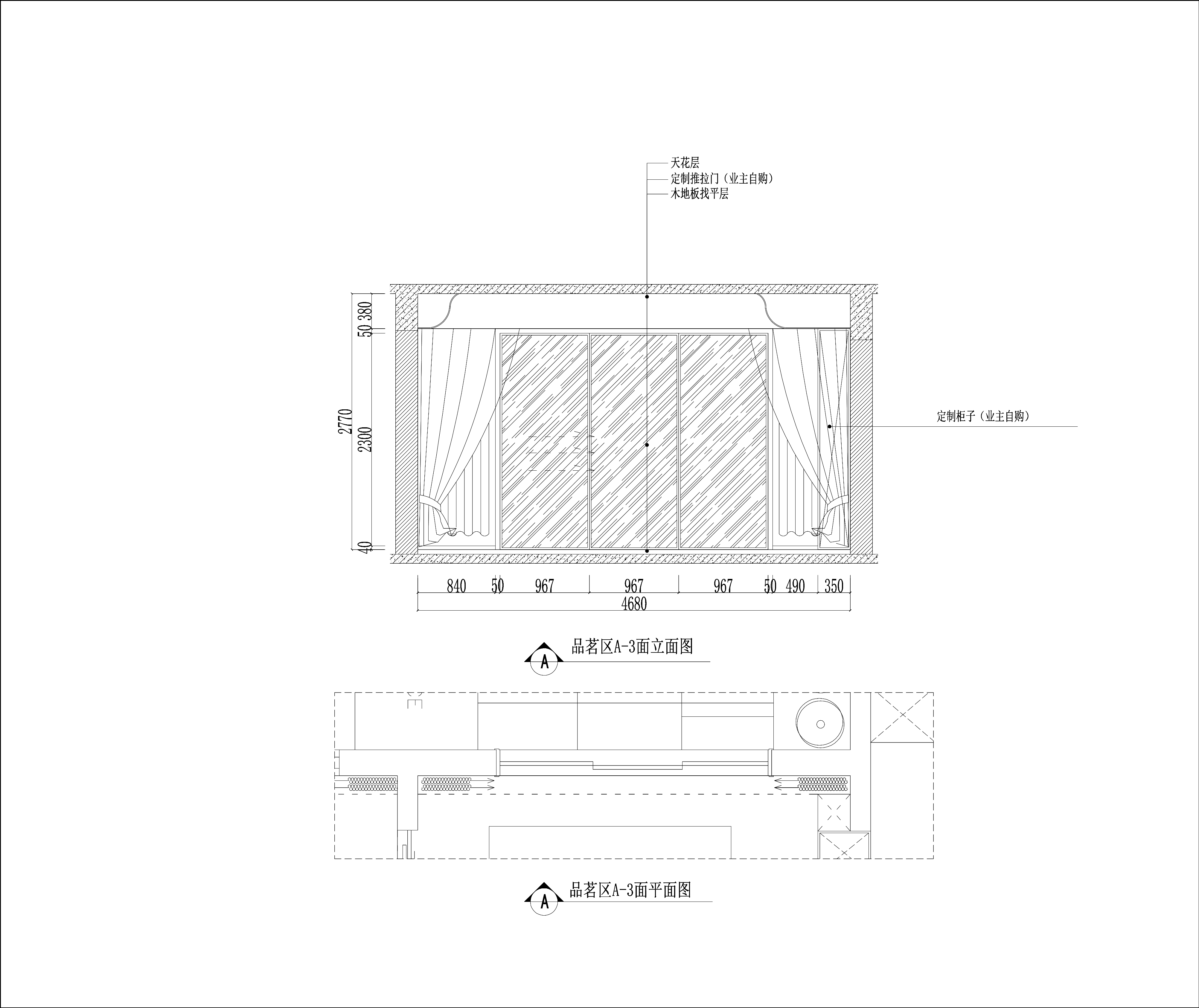
  • 项目名称:“诗意为居” 项目地点:烟台·金滩熙园 项目面积:320m² 这是一所折射了居者习惯与型格的房子,亦是饱纳其精神的栖居地。一切形式的背后,昭示的是独属于居者的人生剧本,这是设计贯穿始终的恒定理念。 人是其中永远的主角,所有设计上的重构,材质的舞蹈,内敛的造境,皆因此而生,为此而来。 本案分上下两层,旋转楼梯链接,布局以开放、流动为基调,客厅、餐厅、茶室、卧室、庭院等空间相连相融。自然的清风、空气、阳光、绿植等元素于室内自由流淌,与富有艺术构造的墙面、天花造型相互碰撞,每一个音符都化作氤氲的诗意,沁入丹田,这便是诗与远方。 二楼榻榻米下沉的重心,与茶室相连,看出去就是空中露台,让心灵更贴近自然,将简朴、诗意、神秘、平静、愉悦融为一体,令人心旷神怡。 透过室内建筑的方式,体验空间、光影、材质、细节,透过以人为本的思考 探索现代住宅的生活方式,回归真实的需要。提升心理仪式性的转换,让住宅不仅是满足基本的需求,而是到达体验的感受,看到的不仅是设计,而是对于生活的深刻体会。
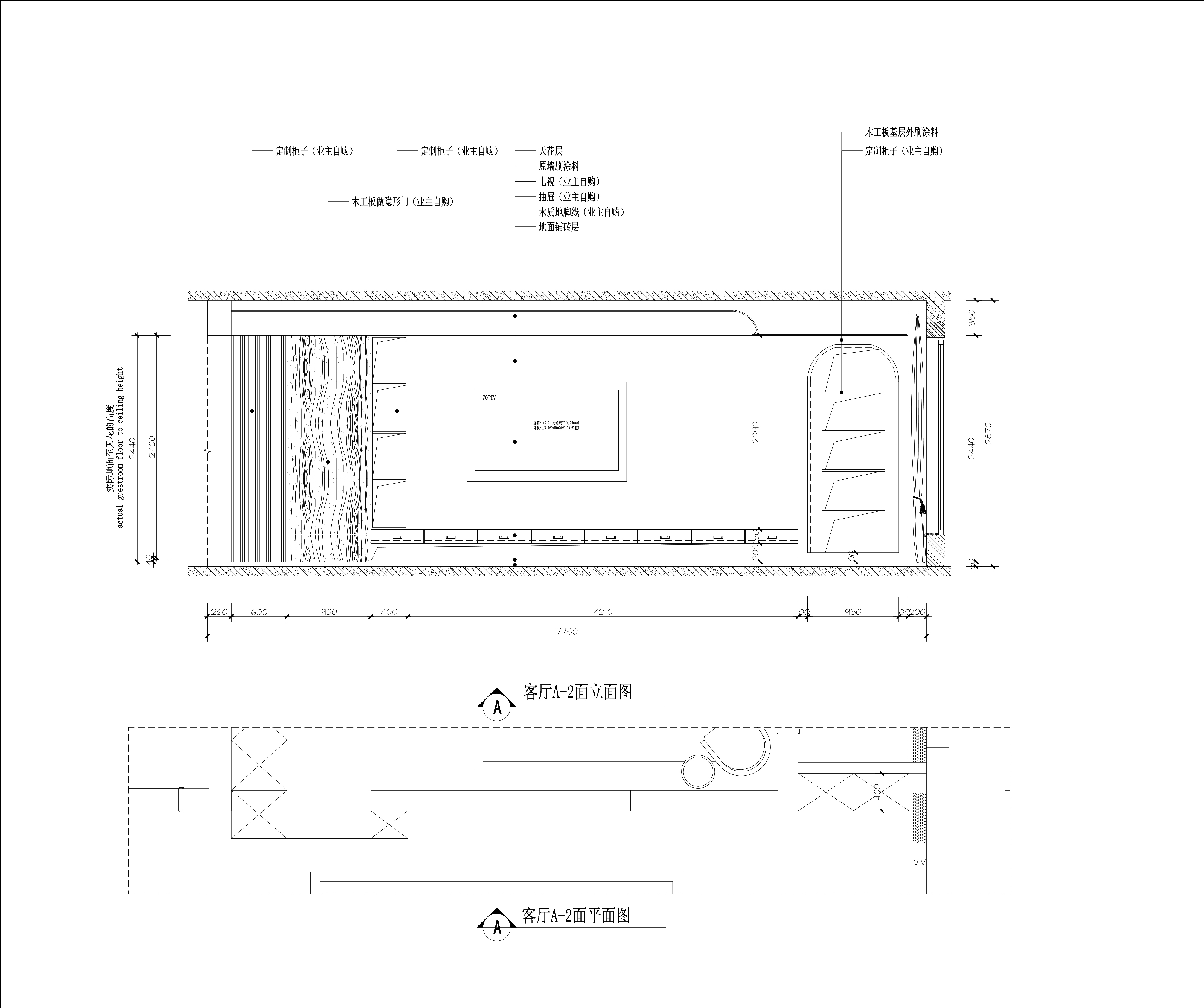
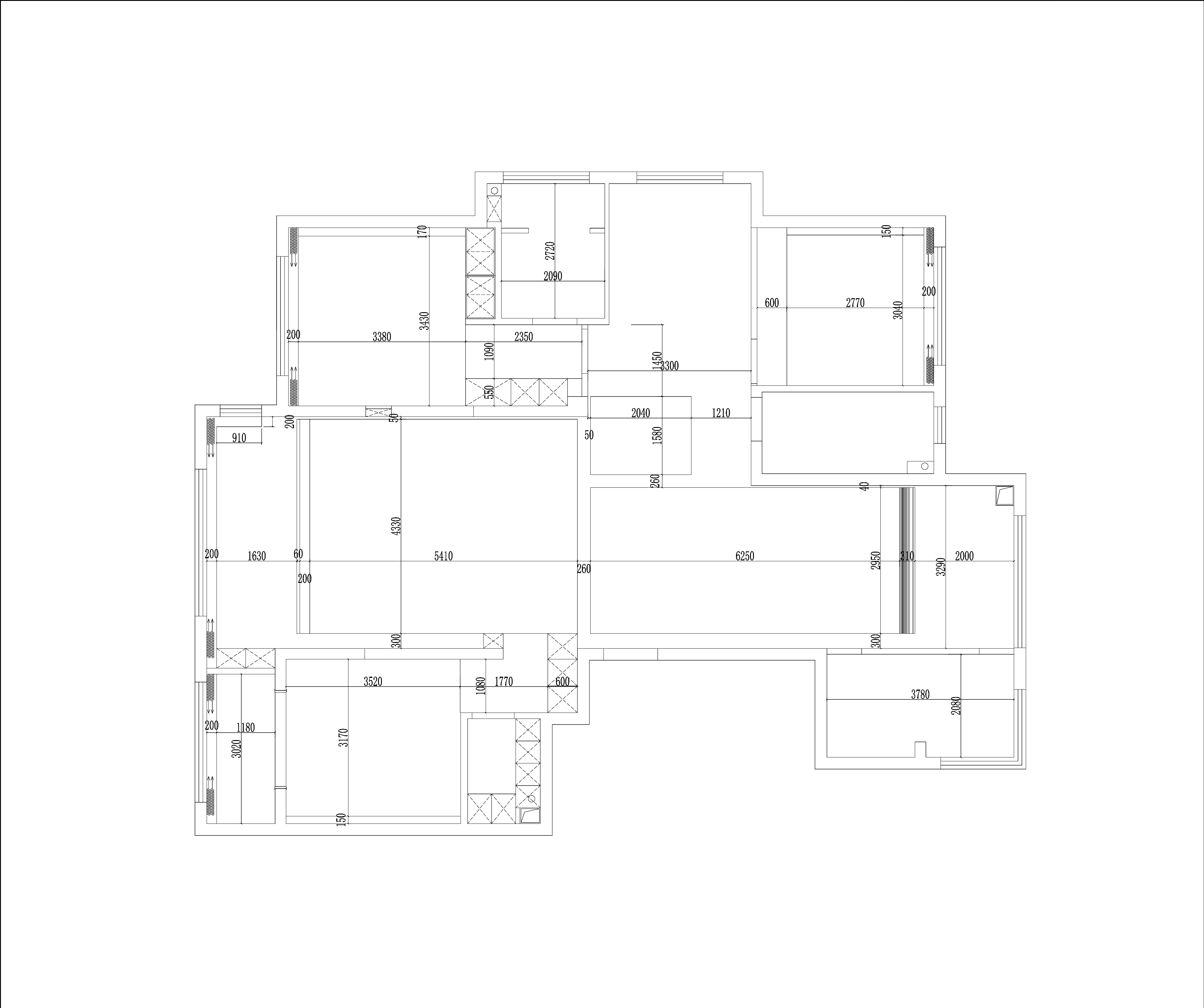
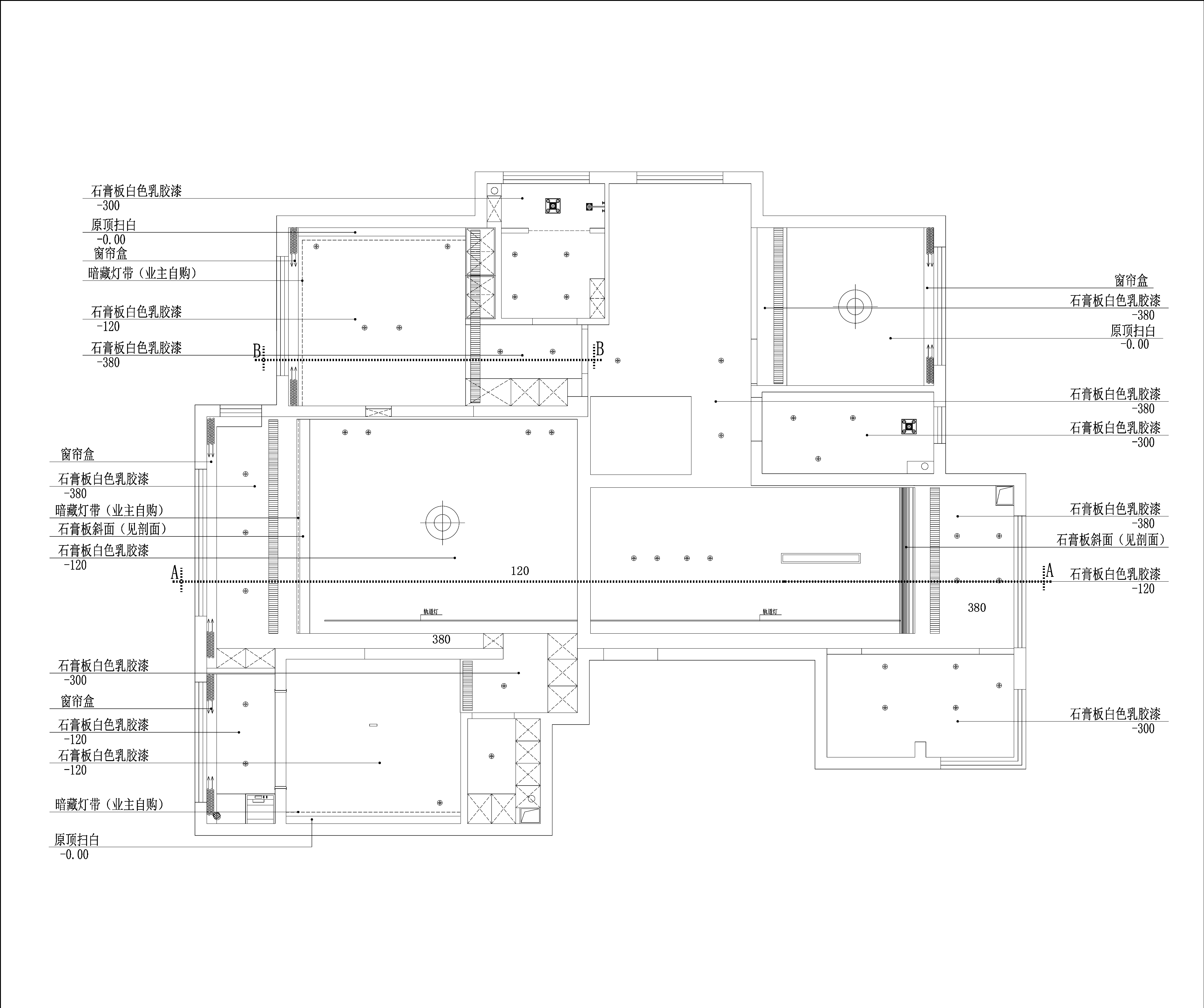
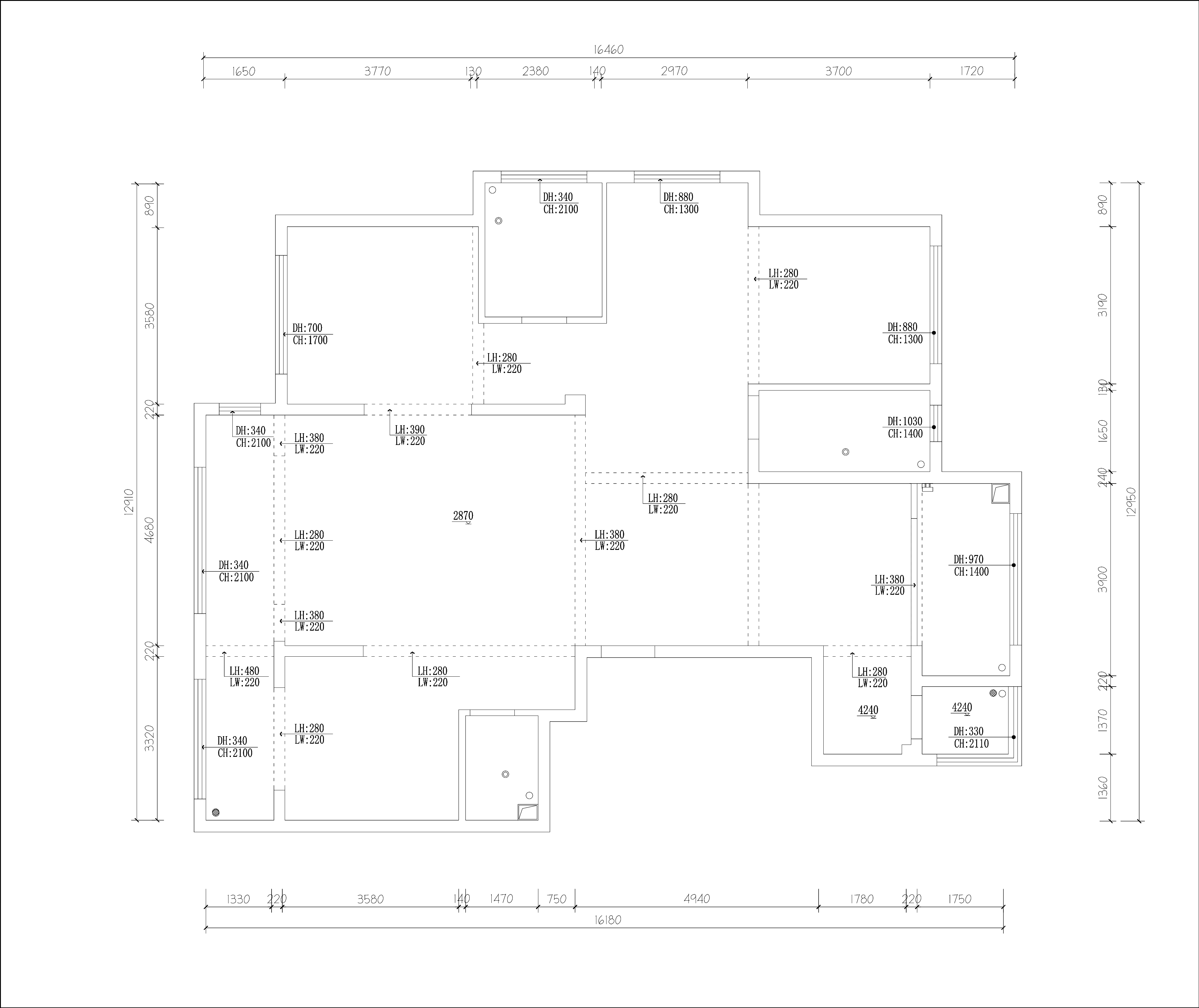
  • 图片
  • 图片
  • 图片
  • 图片
  • 图片
  • 图片
  • 图片
  • 图片
  • 图片
  • 图片
  • 图片
  • 图片
  • 图片
  • 图片
  • 图片
  • 图片
  • 图片
  • 图片
  • 图片
  • 图片
  • 图片
  • 图片
  • 图片
  • 图片
  • 图片
  • 图片
  • 图片
  • 图片
  • 图片
  • 图片
  • 图片
  • 图片
  • 图片
  • 图片
  • 图片
  • 图片
  • 图片
  • 图片
  • 图片
  • 图片
  • 图片
  • 上一个 下一个
    《金腾奖优秀作品年鉴》 私宅丨地产丨餐饮丨酒店丨办公丨商业丨公共丨产品丨公益丨人气 jintengAWARD(小金_金腾奖组委会) 广州市海珠区琶洲大道68号华新中心21楼
    金腾奖视频号 金腾奖小红书号 监制:闫虹
    统筹:吴佳佳
    运营:朱倩仪 王赫萱 张芷莹 胡岚恩 小金
    新媒体:王贝贝 严洁 侯乐 鹅姐
    经纪:刘译遥 石征 曹凯月
    技术:张桐 黄天佑
    最终解释权归金腾奖主办方所有