tianyuewan
作品详情
  • Details of the work 标题横线
    头像或者logo
    图片 冷婷婷 华浔品味装饰集团特约推荐
    城市:烟台
    公司: 广东华浔品味装饰集团(烟台分公司)
    参赛作品: 天越湾
    空间类型:公寓(150㎡以下)
    个人/公司简介:
    冷婷婷 H&A艺墅设计院总监 从业16年 2006年毕业于西南交大环境艺术设计专业中国注册(高级)住宅室内设计师中国建筑学会室内设计(CIID)会员 曾游学意大利、法国、瑞士、日本等国家第四届筑巢奖样板间空间设计入围奖第三届金马克杯软装类金奖 第三届金马克杯实景样板间类银奖 第五届中国国际空间环境艺术筑巢奖提名奖(别墅类)第八届中国国际空间环境艺术筑巢奖优秀奖(别墅类)2018年度筑巢奖别墅空间优秀奖2018年度红棉奖最美雅奢空间奖 2019年度4040中国(山东)设计杰出青年 设计理念:设计的灵魂在于匠心,在于对品质执着的追求
    设计说明 | Design Instruction
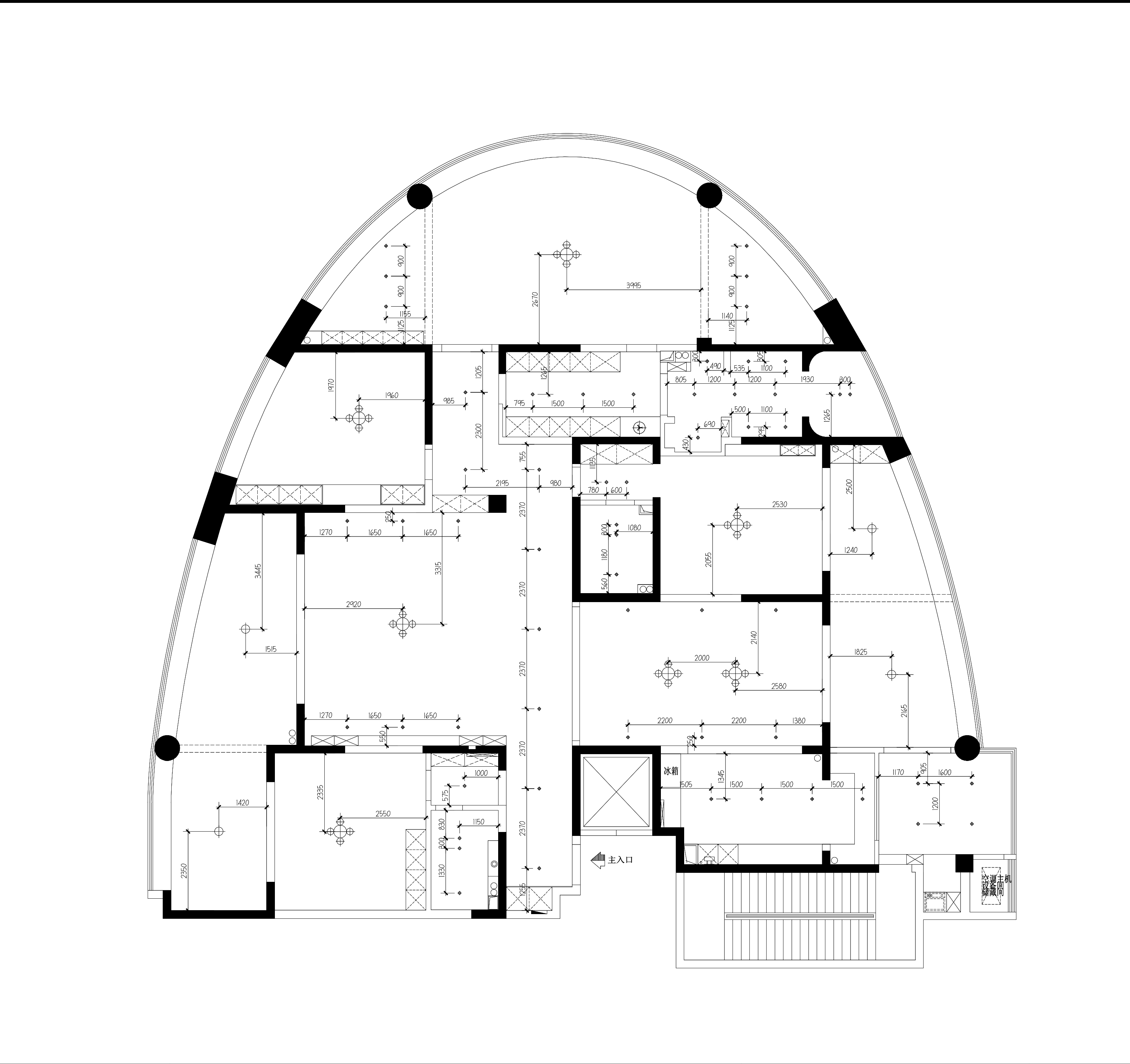
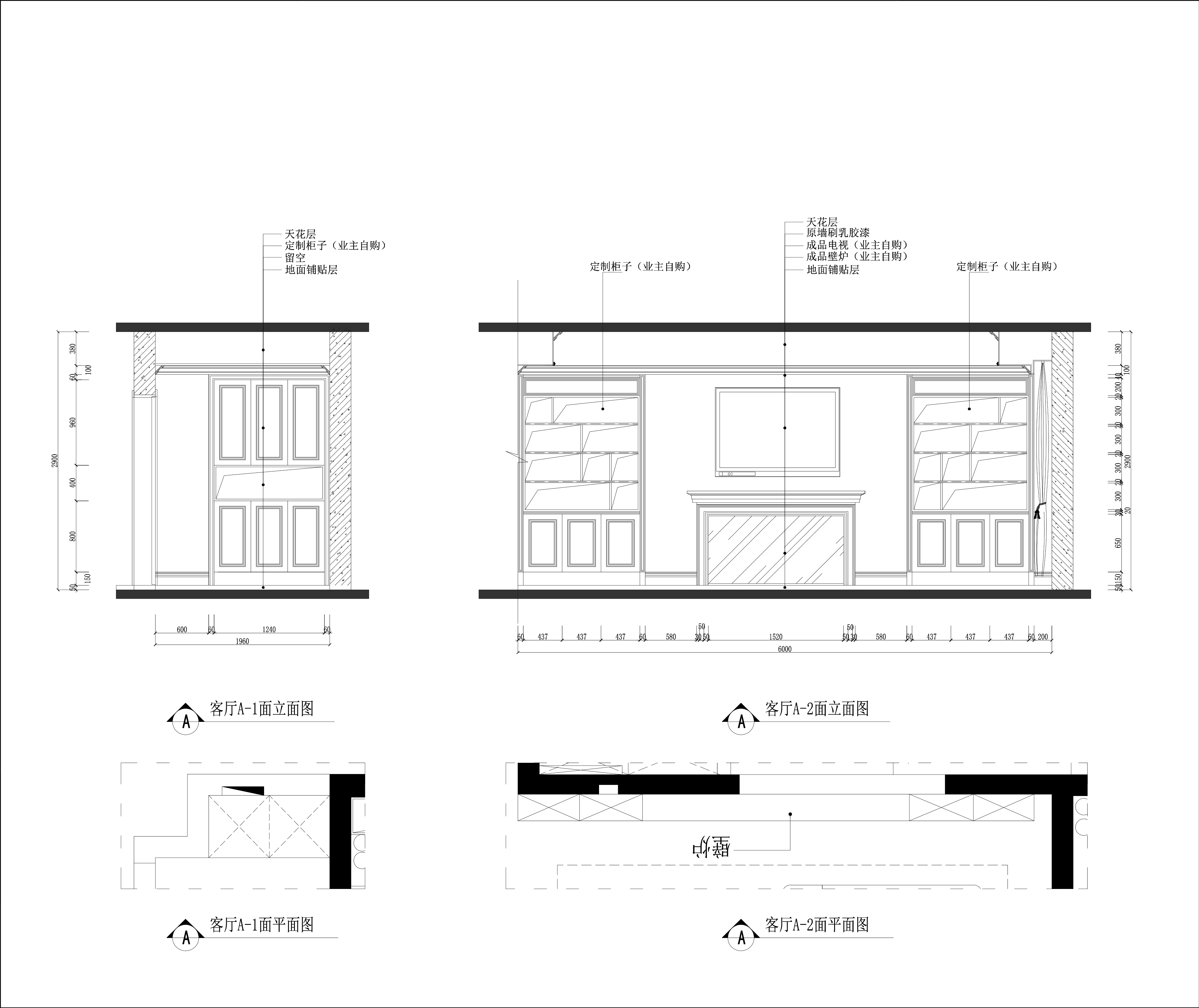
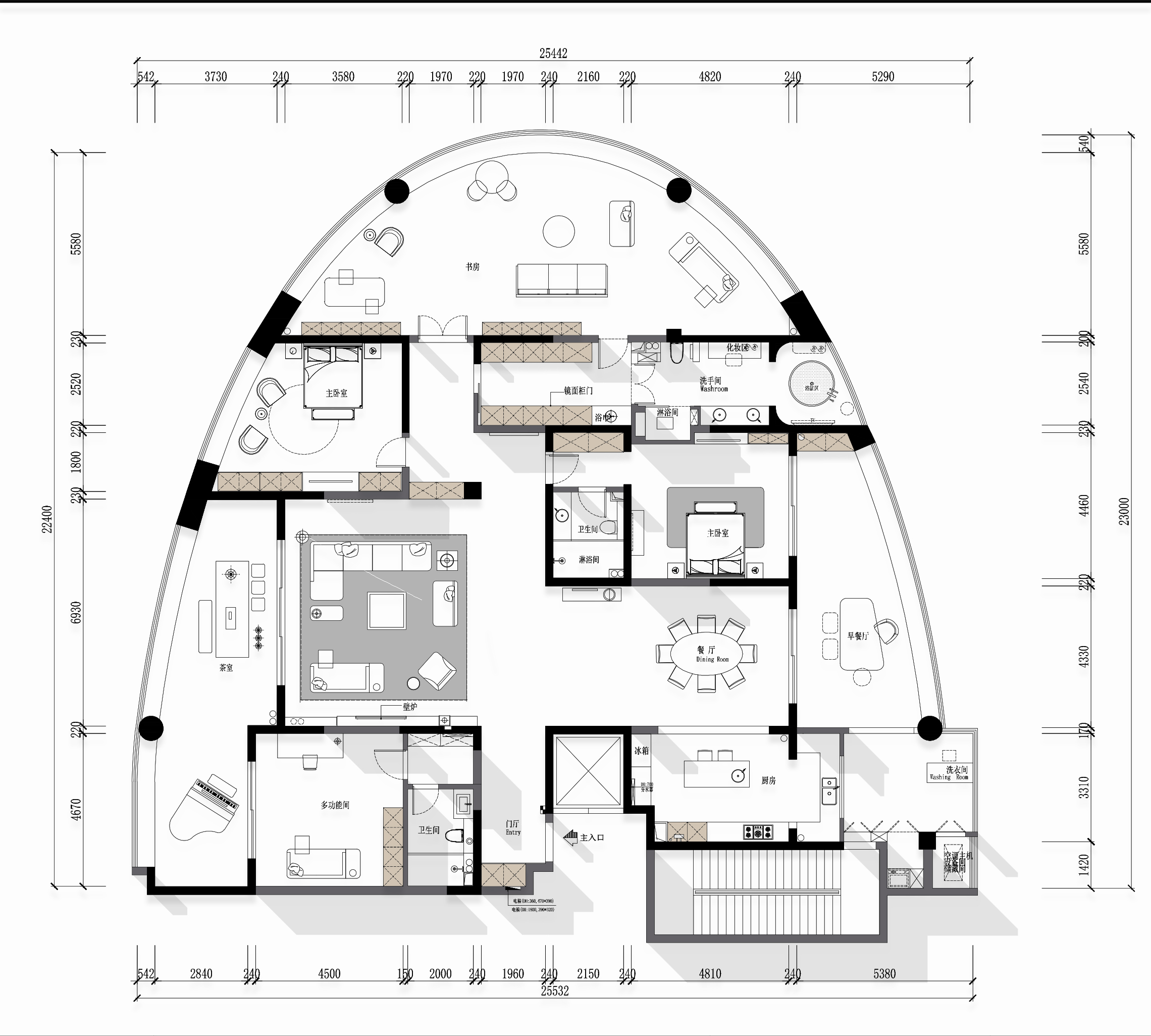
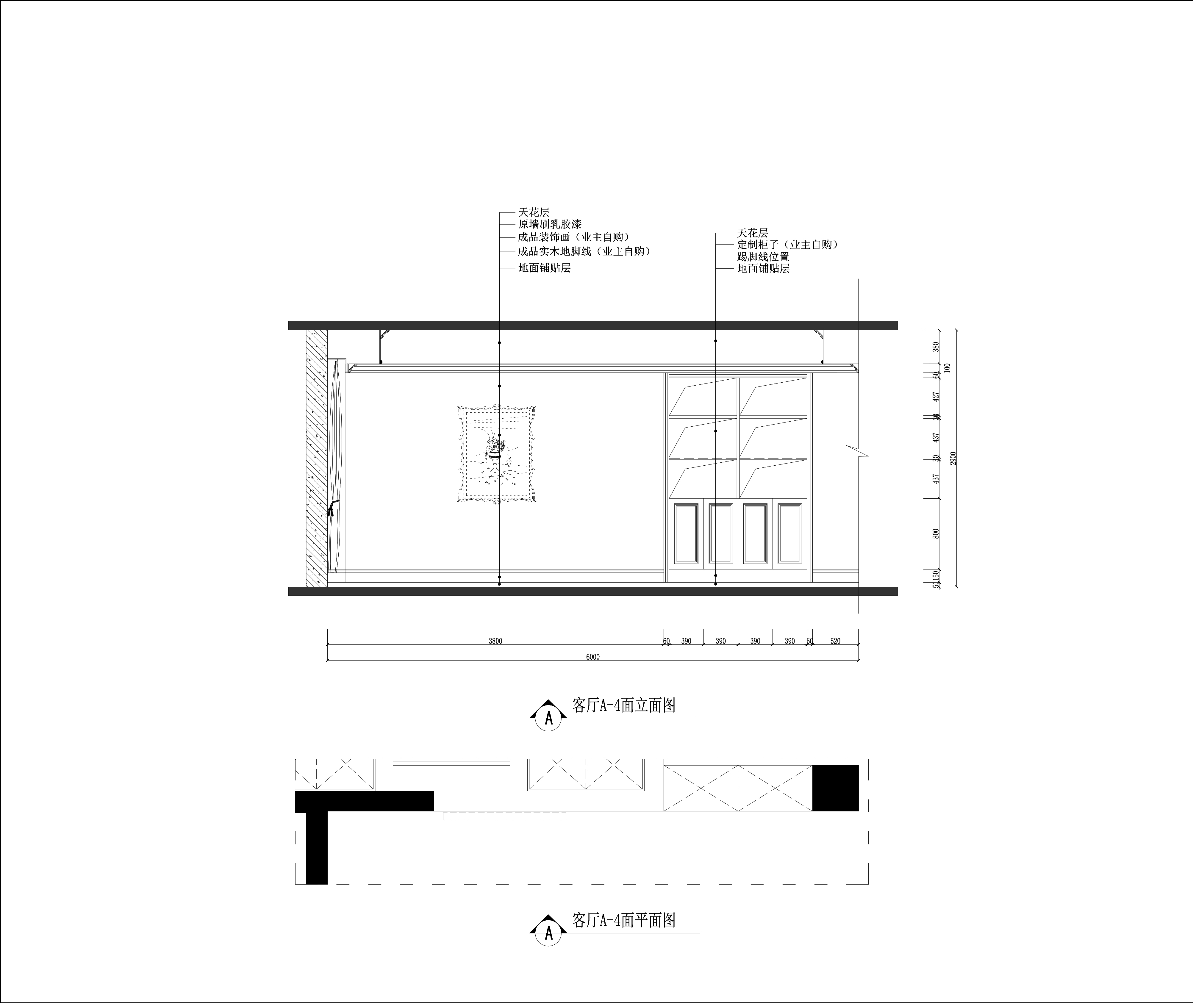
  • 项目地点:烟台·天越湾 项目面积:460m² 项目位于海边,视野开阔,坐拥无敌海景,本案业主长住美国,深受美国文化的熏陶,喜欢浪漫的浅色美式风格,对细节追求都是极其苛刻,全屋采用混油定制材质,和墙面PU线条的形式结合,线条精炼细腻,整个空间色系浪漫柔和,温馨优雅,不浮夸不复杂,整体压缩预算的前提也能保障品质的追求。 在慵懒的午后,品一杯美式咖啡,岁月沉淀的痕迹,颜值美感,实用性都兼顾,让电影感里的浪漫搬进生活中,每天都像在约会中,让柴米油烟的琐碎都变成一种情调.....
  • 图片
  • 图片
  • 图片
  • 图片
  • 图片
  • 图片
  • 图片
  • 图片
  • 图片
  • 图片
  • 图片
  • 图片
  • 图片
  • 图片
  • 图片
  • 图片
  • 图片
  • 图片
  • 图片
  • 图片
  • 图片
  • 图片
  • 图片
  • 图片
  • 图片
  • 图片
  • 图片
  • 图片
  • 图片
  • 图片
  • 图片
  • 图片
  • 图片
  • 图片
  • 图片
  • 图片
  • 图片
  • 图片
  • 图片
  • 图片
  • 图片
  • 图片
  • 图片
  • 图片
  • 图片
  • 图片
  • 图片
  • 图片
  • 图片
  • 图片
  • 图片
  • 图片
  • 图片
  • 图片
  • 图片
  • 图片
  • 图片
  • 上一个 下一个
    《金腾奖优秀作品年鉴》 私宅丨地产丨餐饮丨酒店丨办公丨商业丨公共丨产品丨公益丨人气 jintengAWARD(小金_金腾奖组委会) 广州市海珠区琶洲大道68号华新中心21楼
    金腾奖视频号 金腾奖小红书号 监制:闫虹
    统筹:吴佳佳
    运营:朱倩仪 王赫萱 张芷莹 胡岚恩 小金
    新媒体:王贝贝 严洁 侯乐 鹅姐
    经纪:刘译遥 石征 曹凯月
    技术:张桐 黄天佑
    最终解释权归金腾奖主办方所有