Lingyi Xiaozhu Villa
作品详情
  • Details of the work 标题横线
    头像或者logo
    图片 柳志刚 华浔品味装饰集团特约推荐
    城市:中山市
    公司: 广东中山华浔
    参赛作品: 领逸小筑别墅
    空间类型:公寓(150㎡以下)
    个人/公司简介:
    南昌工程学院建筑装饰专业毕业 中国建筑协会室内设计学会会员 中国室内装饰协会CIID会员 华浔品味装饰优秀设计总监 2016金砖奖全国空间设计大赛年度杰出设计师 2017广东省中山设计力量家居设计大赛入围奖 2017广东省红星杯设计大赛入围奖 2017第五届中国陈设艺术大赛中山赛区铜奖 2018中山市装饰行业协会杰出设计师 2018中山市装饰行业协会年度行业杰出设计师 2019-2020 40UNDER40中国(中山)设计杰出青年 2021金住奖中国(中山)十大居住空间设计师 2022年华浔品味装饰集团优秀总监 工作经历: 2006-2008,担任广东中山三星装饰设计师 2009-2011,担任广东中山华浔专家设计师 2011-至今, 担任广东中山华浔设计总监 设计理念: 修身的同时还要修心,想要成为高手你就必须用心来看世界。当人们的空间被各种物质挤压的时候,也就失去了本质,我们要去掉一切虚假的、表面的、无用的东西,而剩下真实的、本质的、必不可少的东西,因而得到更多的空间、更多的舒适、更多的效率、更多的美…… 设计作品: 世纪新城T型别墅 聚豪园别墅 凯茵新城凡登豪宅 中海龙湾国际豪宅 锦绣海湾城别墅 奥园别墅 珑珀别墅 远洋领秀山别墅 荔园别墅 领逸小筑别墅等
    设计说明 | Design Instruction
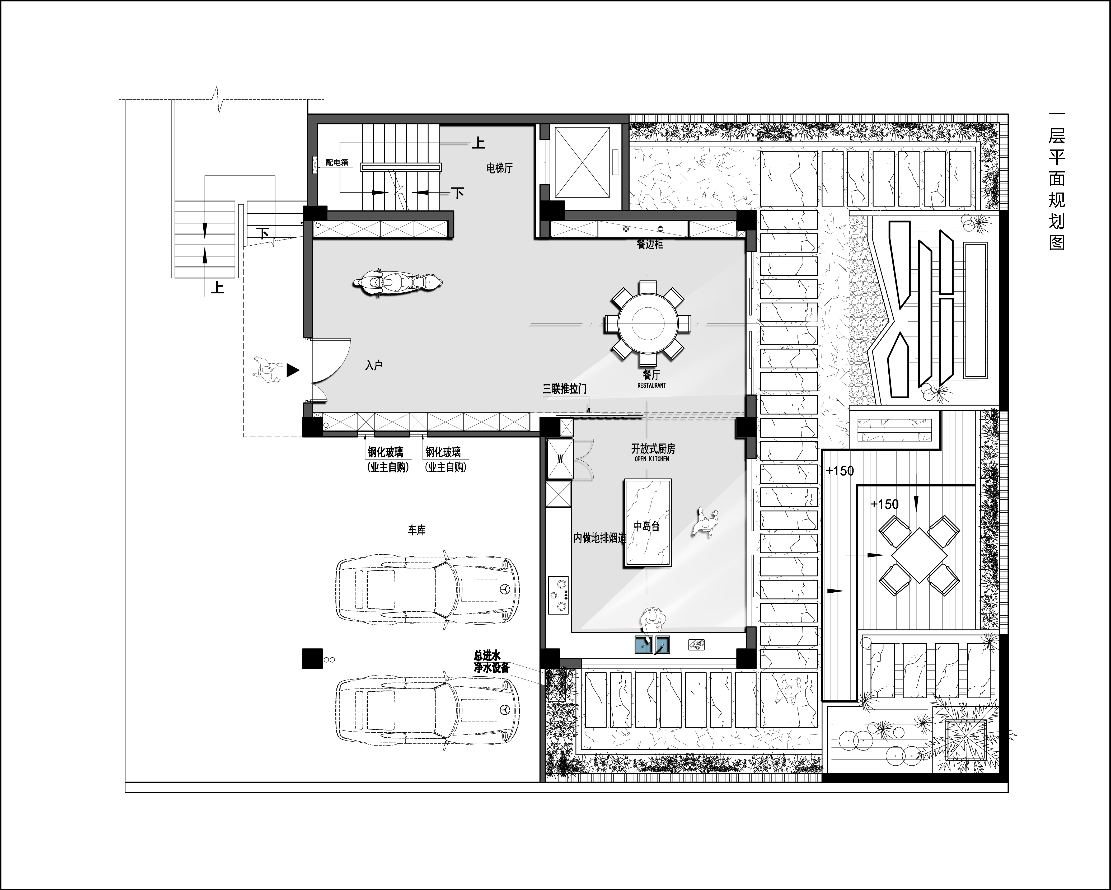
  • 本案为现代风格,去繁从简,不意味的追求各种元素的堆积,将简单追求到极致,从入户开始到客厅、餐厅、厨房、书房、卧室等空间,动静路线明确,功能各有侧重。少就是多的设计,着重提现材料的品质和颜色。地面3200*1600的超大岩板,厨卫墙面2400*1200的装饰岩板,将客户的品味推向新的高度,智能空间开启业主的理想生活,双色可语音调控的灯光,跟着人一起上楼的跑马踢脚灯,温感的空调,光感的窗帘等让业主的生活全面解放双手。 整个空间亲切可近,线条平直,呈现出通透的宽敞效果,给人干净利落的视觉新享受,营造出安稳的感觉。
  • 图片
  • 图片
  • 图片
  • 图片
  • 图片
  • 图片
  • 图片
  • 图片
  • 图片
  • 图片
  • 图片
  • 图片
  • 图片
  • 图片
  • 图片
  • 图片
  • 图片
  • 图片
  • 图片
  • 图片
  • 图片
  • 图片
  • 图片
  • 图片
  • 图片
  • 上一个 下一个
    《金腾奖优秀作品年鉴》 私宅丨地产丨餐饮丨酒店丨办公丨商业丨公共丨产品丨公益丨人气 jintengAWARD(小金_金腾奖组委会) 广州市海珠区琶洲大道68号华新中心21楼
    金腾奖视频号 金腾奖小红书号 监制:闫虹
    统筹:吴佳佳
    运营:朱倩仪 王赫萱 张芷莹 胡岚恩 小金
    新媒体:王贝贝 严洁 侯乐 鹅姐
    经纪:刘译遥 石征 曹凯月
    技术:张桐 黄天佑
    最终解释权归金腾奖主办方所有