yue
作品详情
  • Details of the work 标题横线
    头像或者logo
    图片 李晓潇 华浔品味装饰集团特约推荐
    城市:烟台
    公司: 广东华浔品味装饰集团(烟台分公司)
    参赛作品: 悦
    空间类型:公寓(150㎡以下)
    个人/公司简介:
    设计师:李晓潇 从业8年 2019-2020年度40UNDER40中国(烟台)设计杰出青年 2019年 上海国际设计周设计大奖—新锐奖 2020年 金住奖—2020中国(莱州)十大居住空间设计师 2021年 “红玺杯”杭州站—优秀设计师奖 2022年 金堂奖—2022年度优秀设计师奖 设计理念:一个愉悦的空间,一种尊贵的生活,一方独享的天地,都在设计中寻求最合适的表达。
    设计说明 | Design Instruction
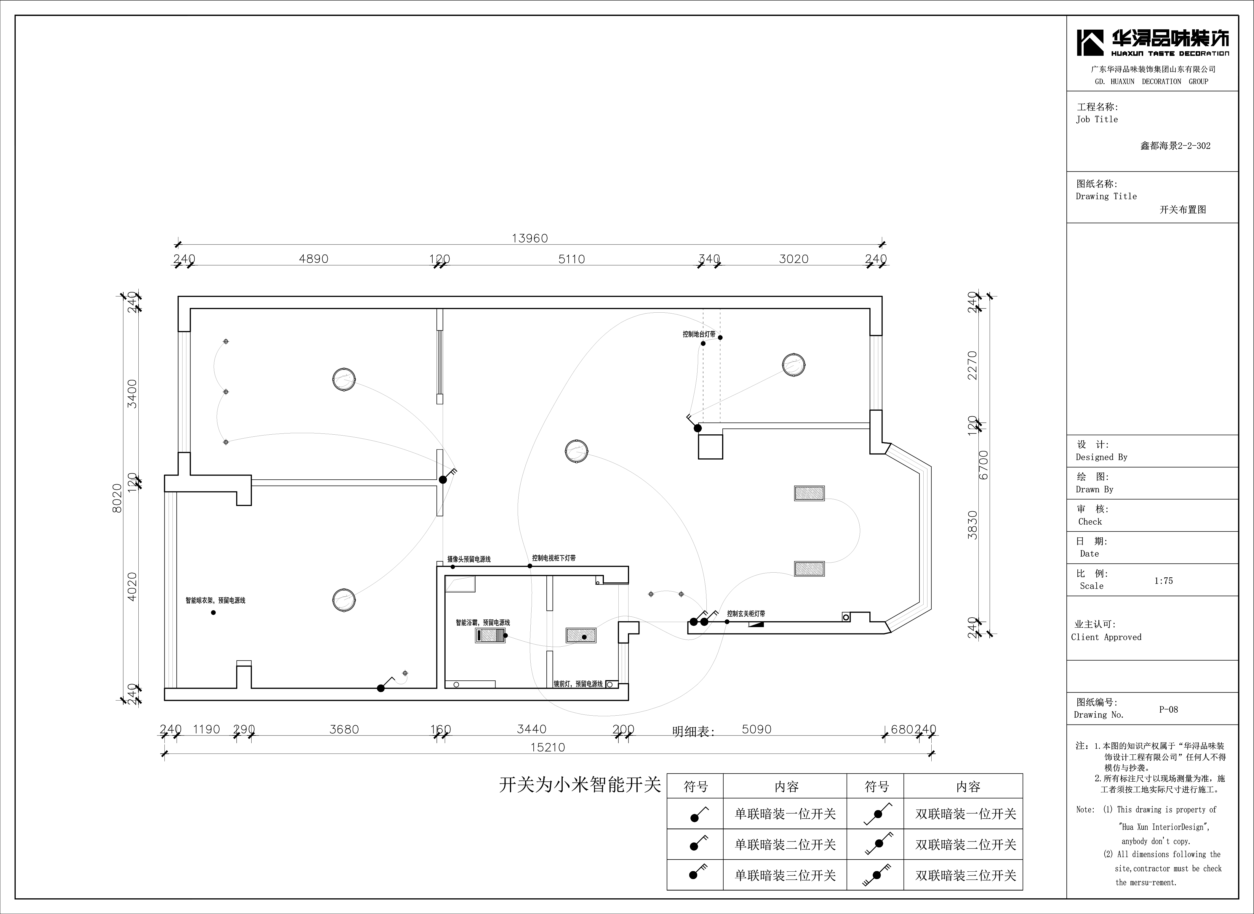
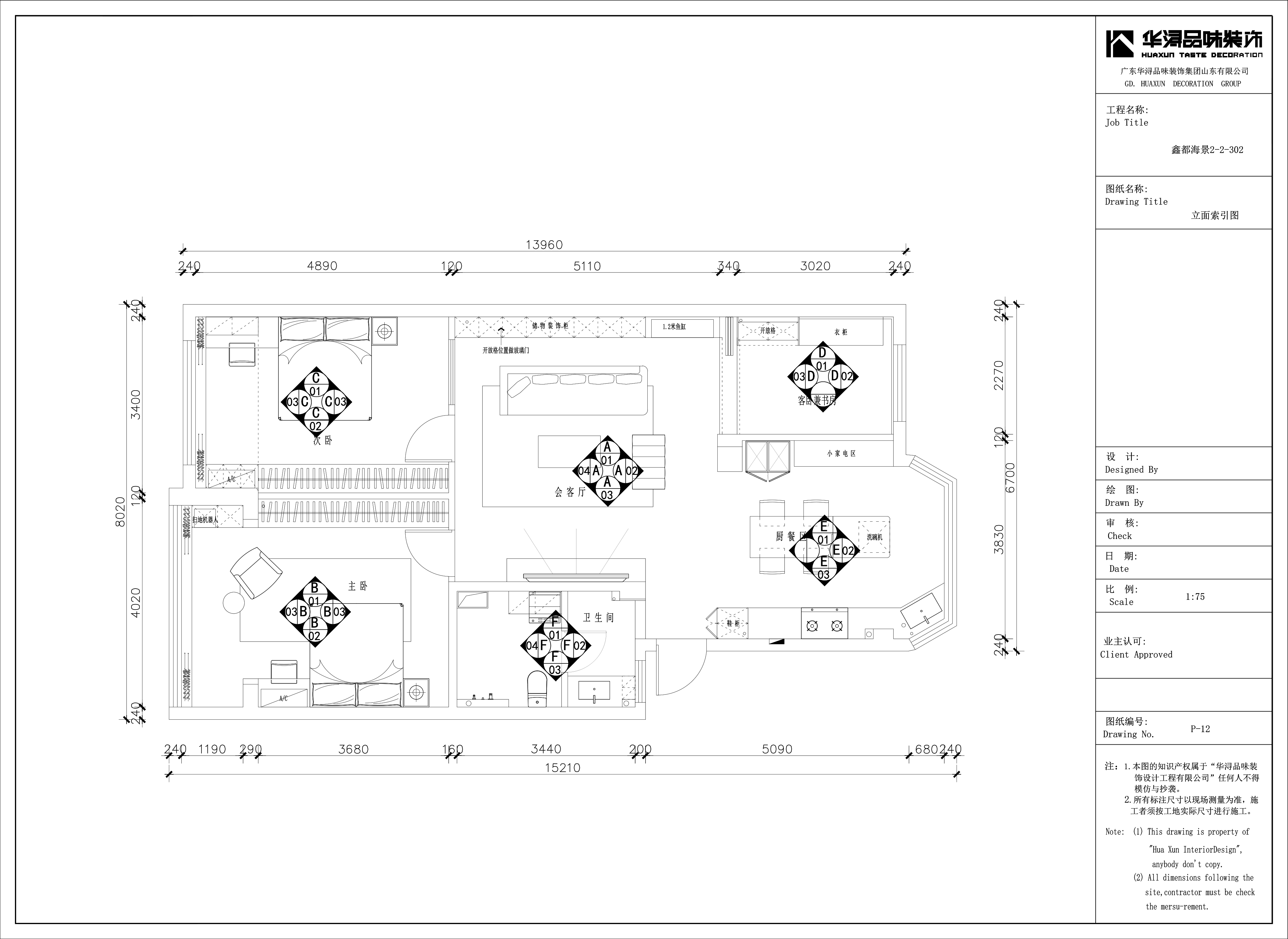
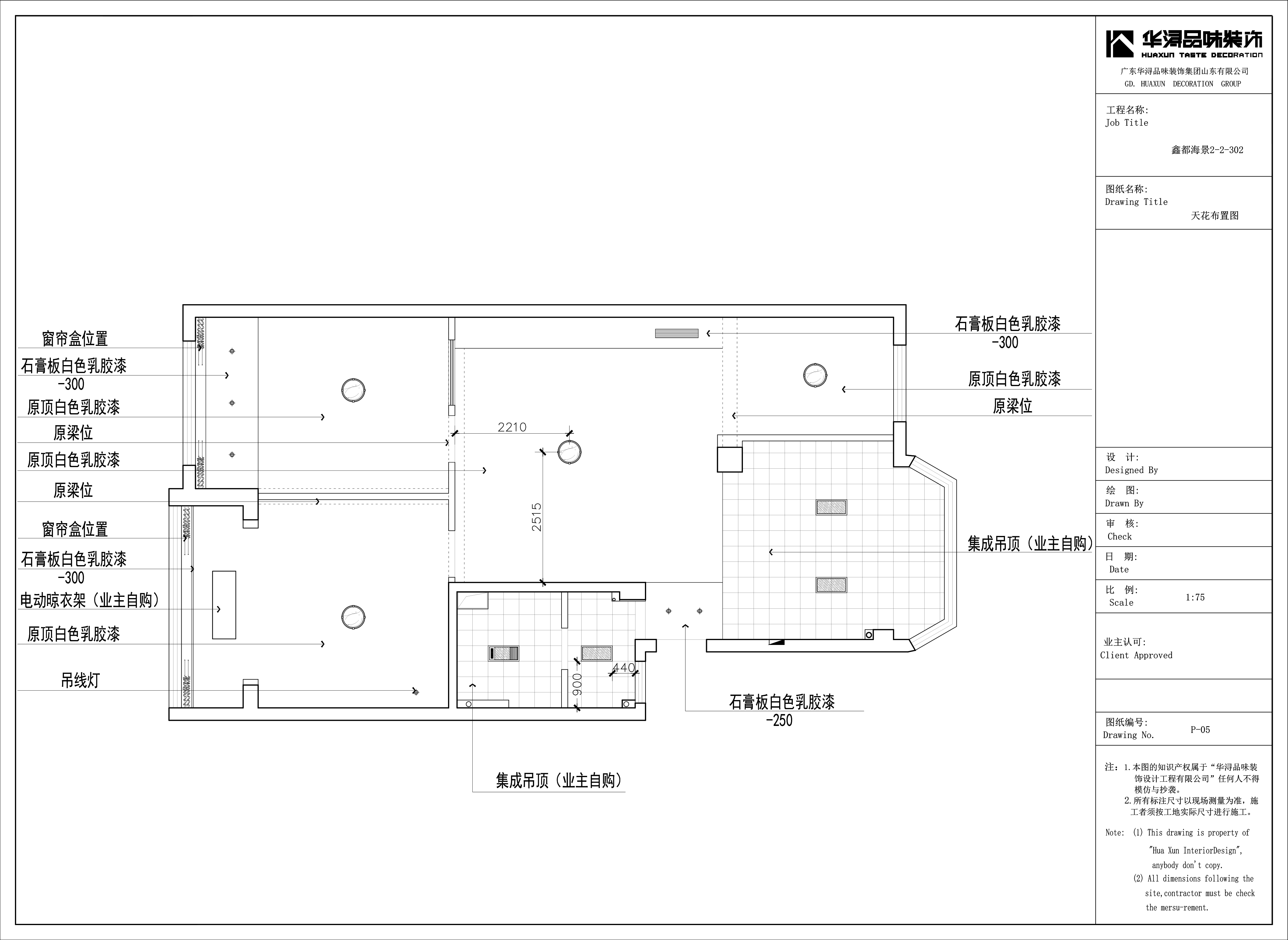
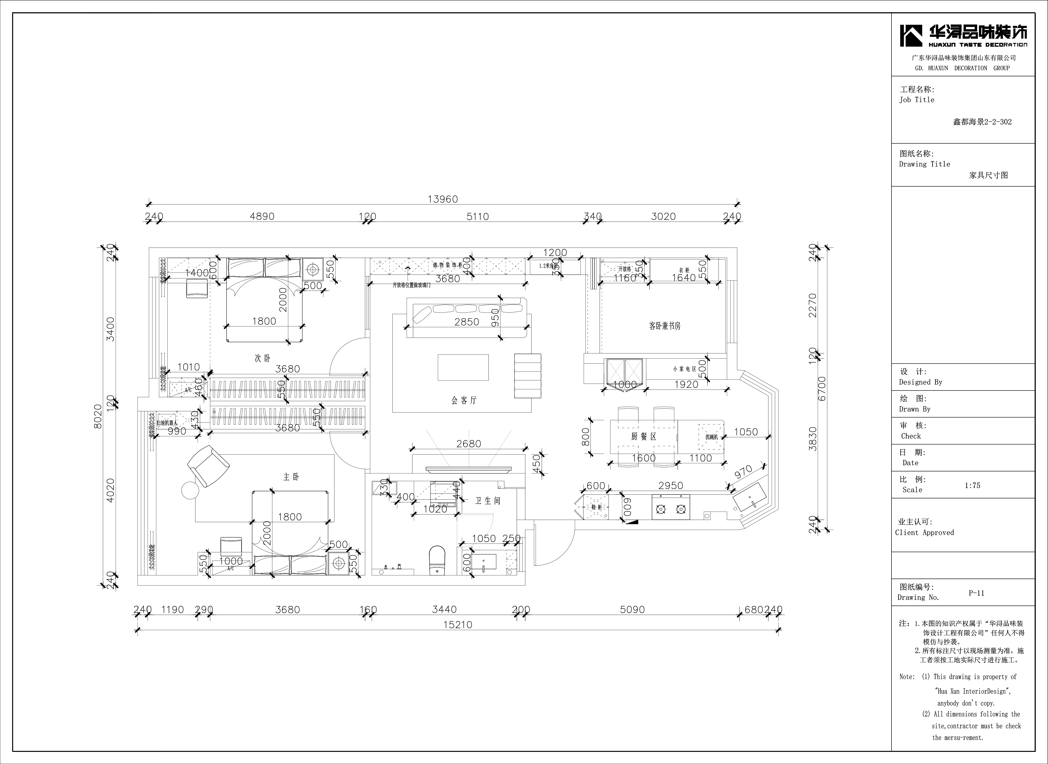
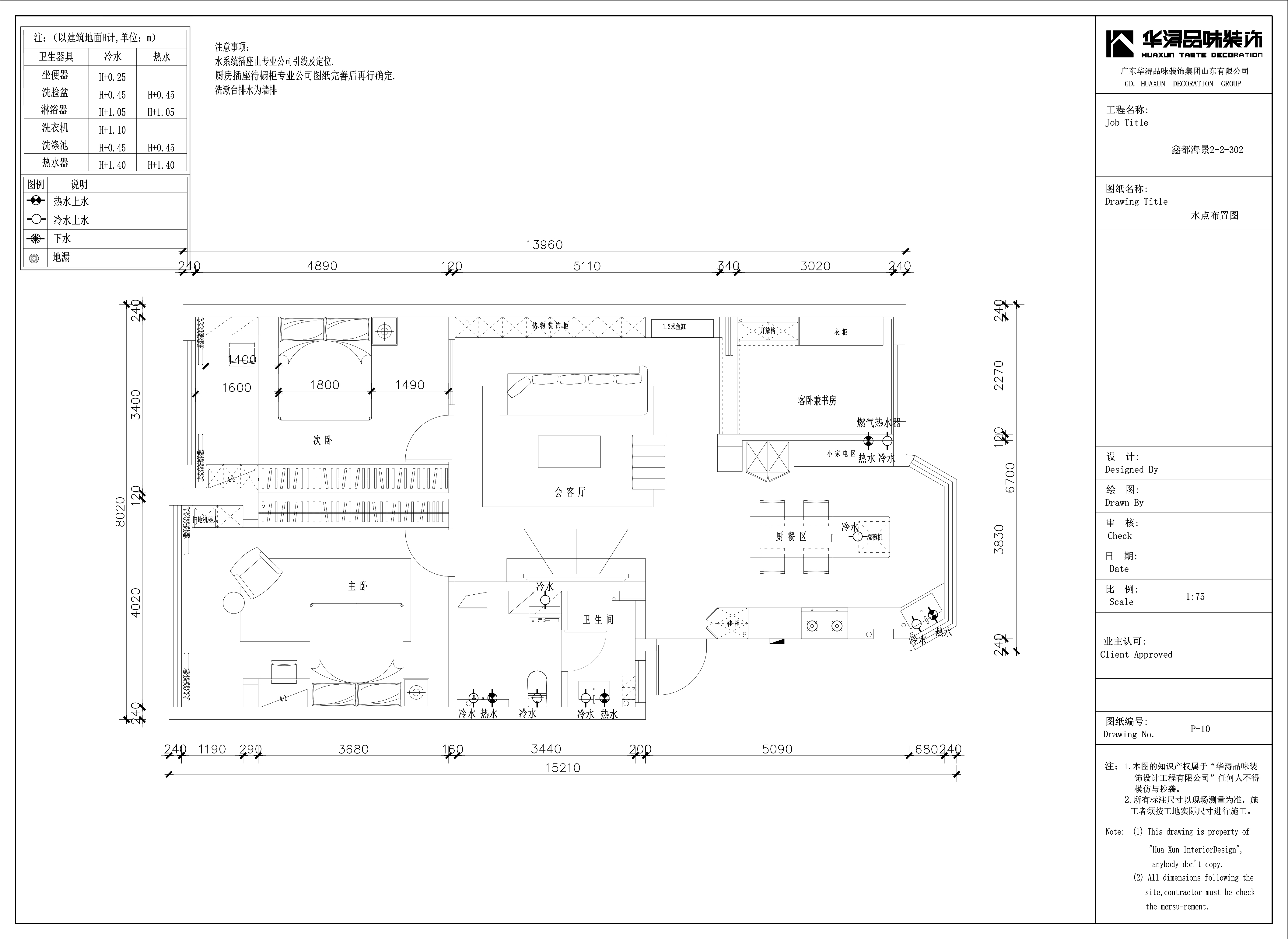
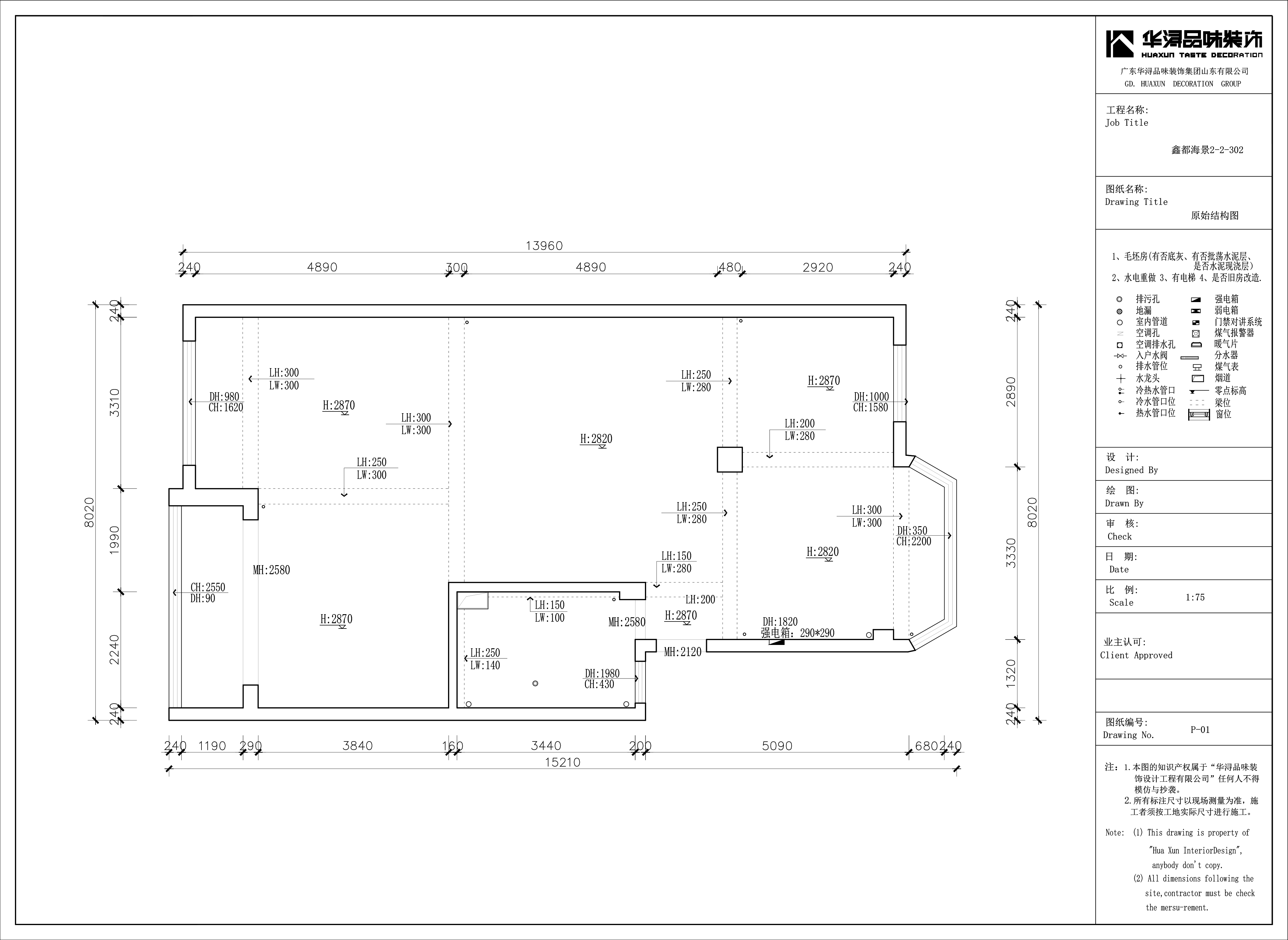
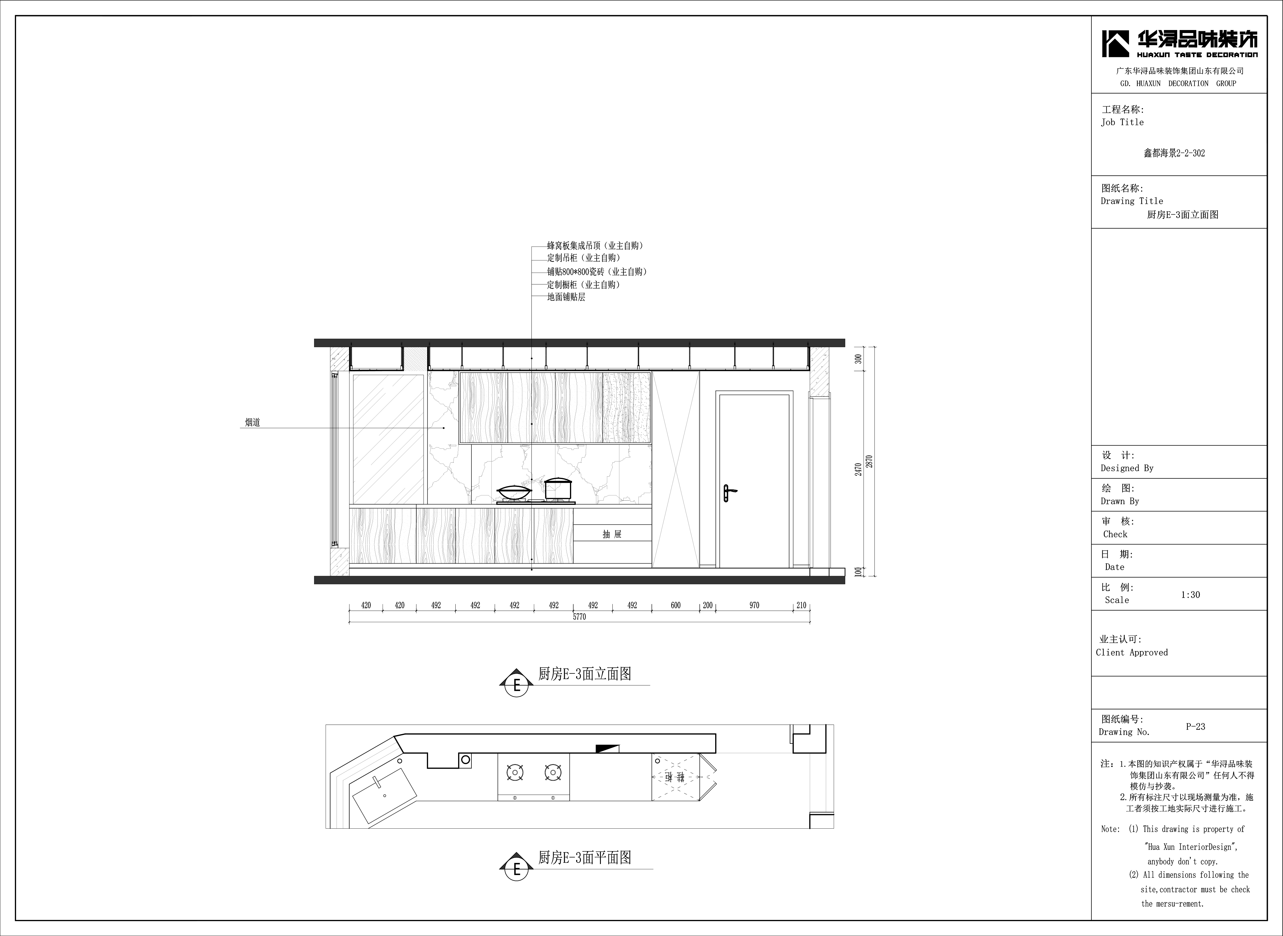
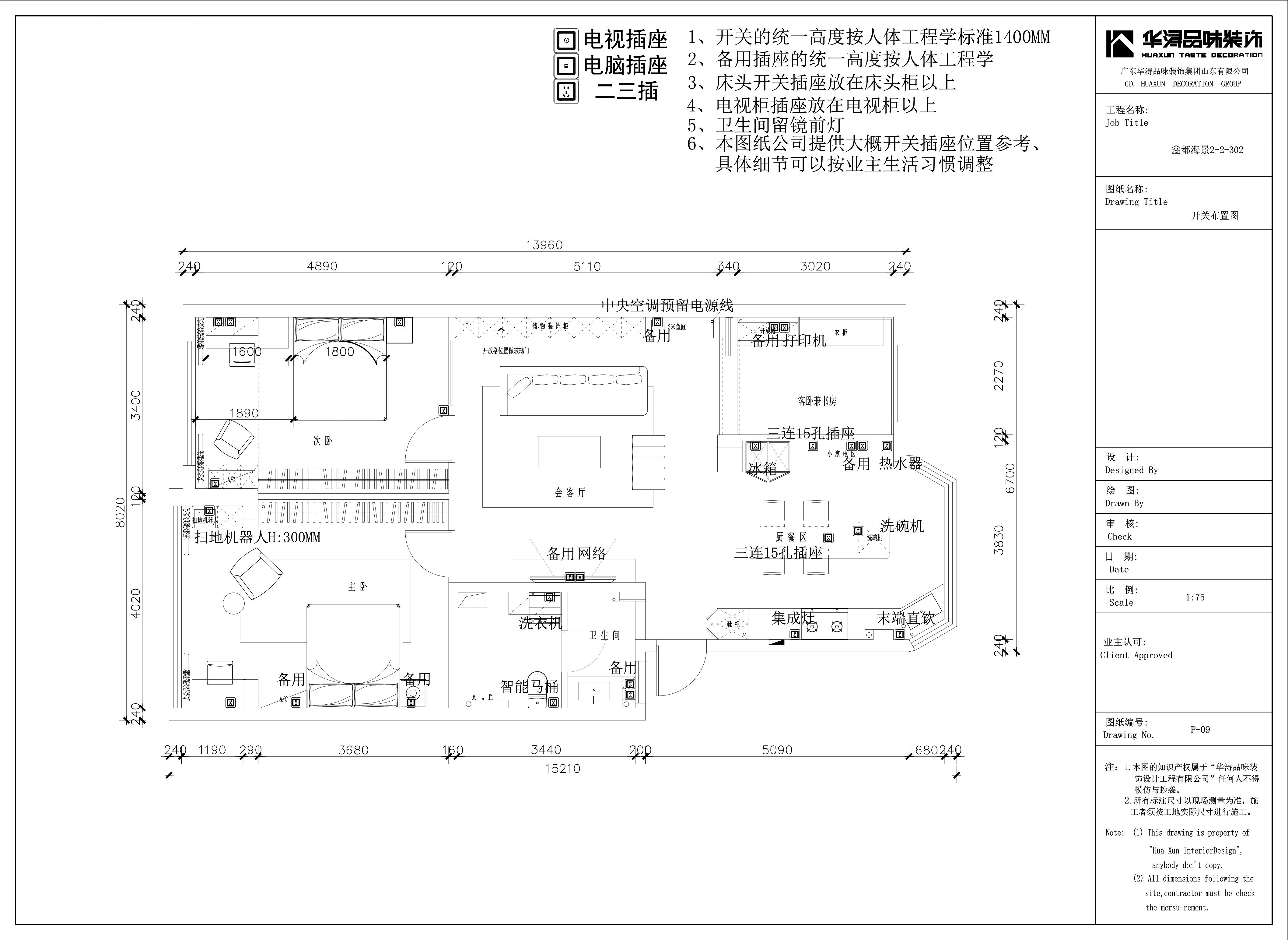
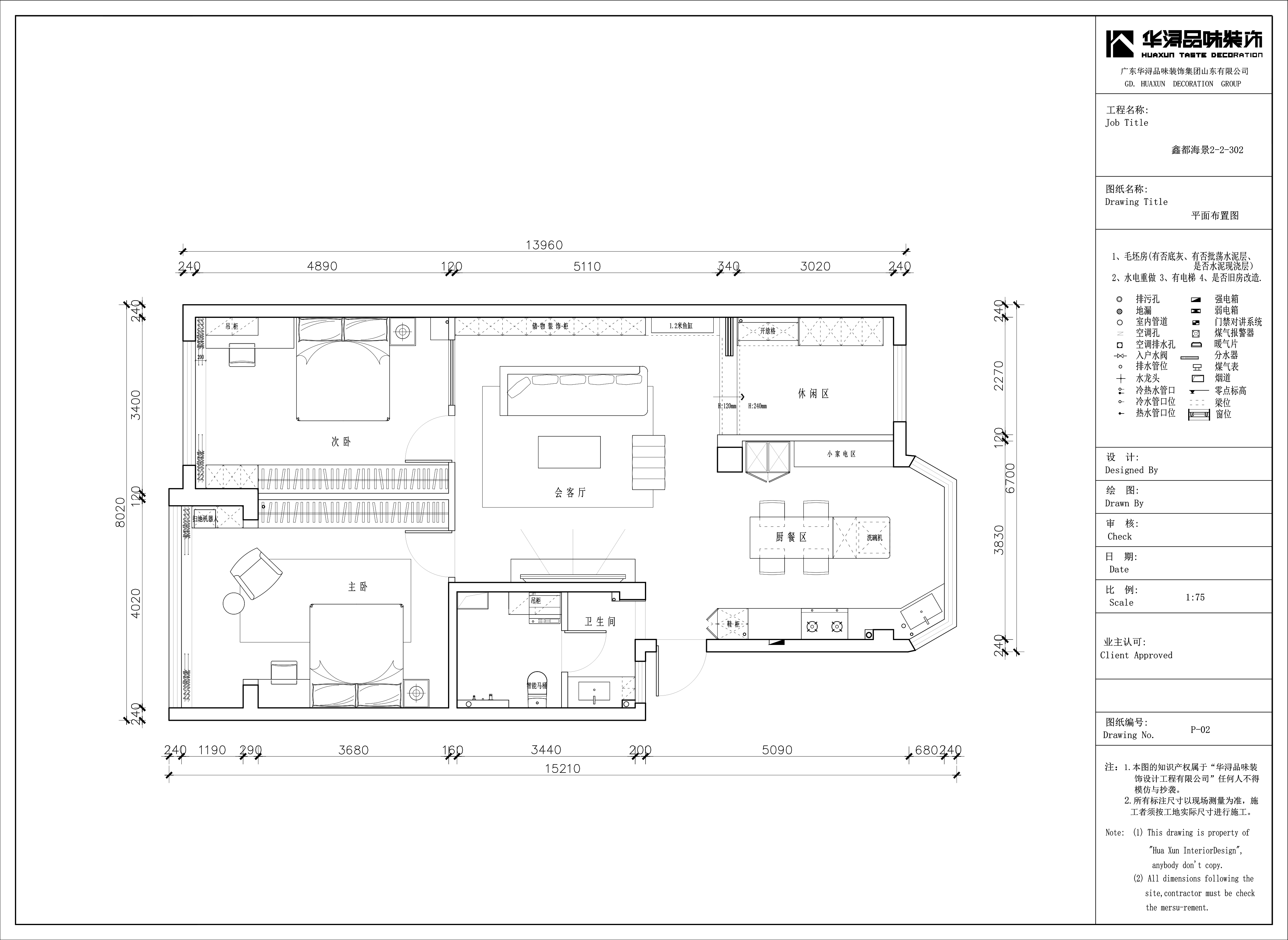
  • 鑫都海景花园设计说明: 本案主题为《悦》、 ·业主说:我理解的生活就是做着自己喜欢的事,养活自己,养活家人。生活不是攀爬高山,也不是深潜海沟,它只是在一张标配的床上睡出自己的身形。我所理解的生活就是和自己喜欢的一切在一起…… ·本案的主人公是一家三口,夫妻俩为了孩子上学买了这套位于海边的学区房,风景秀丽,海风习习。谁说“为了孩子我可以砸锅卖铁”,谁说“为了孩子我怎么将就都行”,本案的业主也是为了自己那份执着和热情,择海而居,保留了热爱,也留给了孩子生长空间。 ·本案整体选用大面积的米色和木色,使整个空间宽敞明亮,又不失温馨。保留南向两间大卧室,把收纳空间做到极致,增加了收纳空间;客厅的背景也同样用收纳柜的形式作为沙发背景墙,兼顾美观和实用,也给此空间增添了乐趣; 北卧作为半开敞式的书房空间,主要是小朋友练习小提琴的空间,整个木纹色调儒雅,更加迎合书房沉稳的空间功能。 开放式的厨餐区使用空间更为开阔,双I型橱柜,一排中厨,满足洗切炒的功能;一排冰箱和小家电区,同时使用互不打扰。中间餐岛一体,丰富了餐厅形式,同时满足洗碗机和收纳空间的使用。大面积的落地窗,女业主做美食之余可以眺望远方的大海,心旷神怡。 ·对于家,每个人都有很多种定义,本案的主题为“悦”,意在这个房子既保证了孩子的教育价值,同时满足了业主对于大海的热爱,一家三口都沉浸在愉悦的生活氛围中。设计在一点点找寻,不断赋予艺术新的定义。
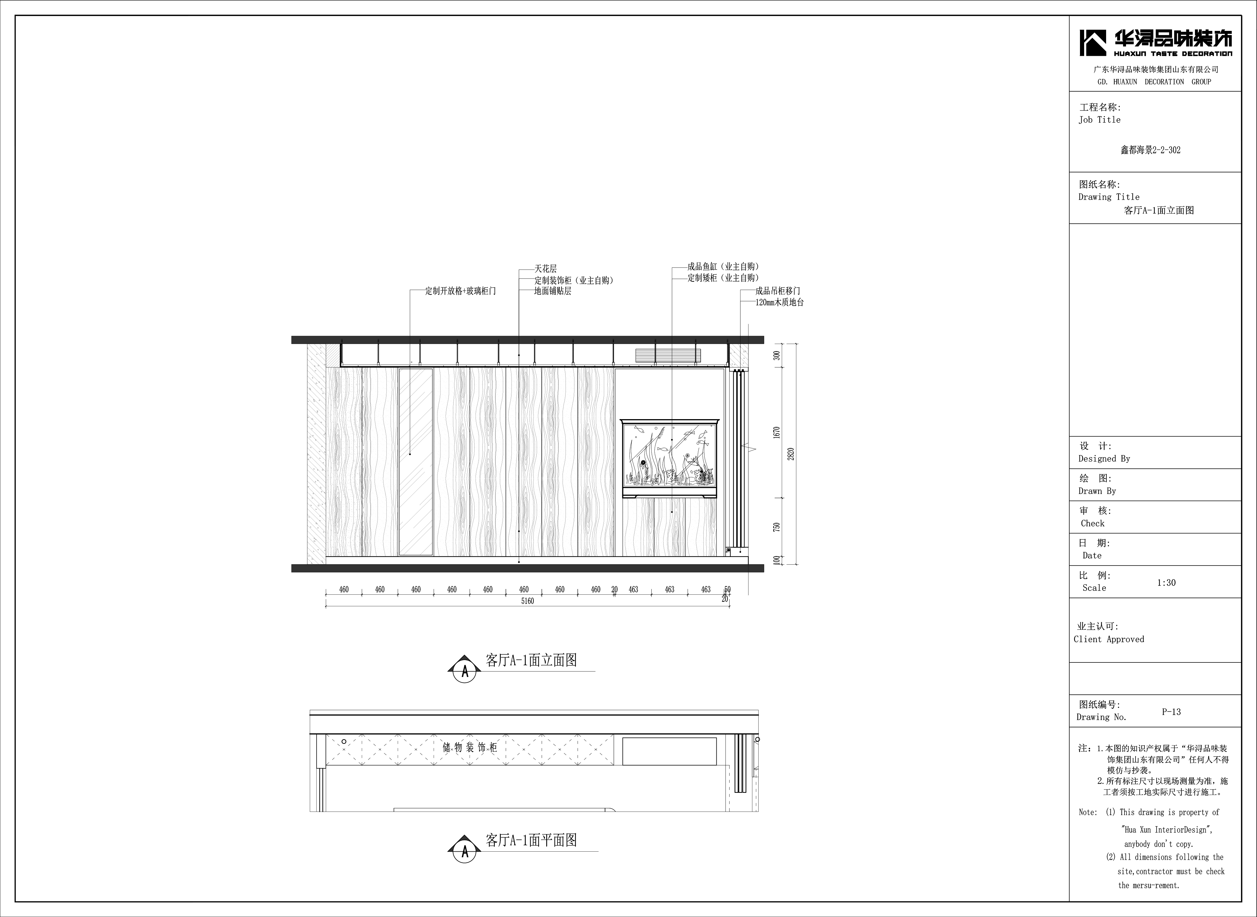
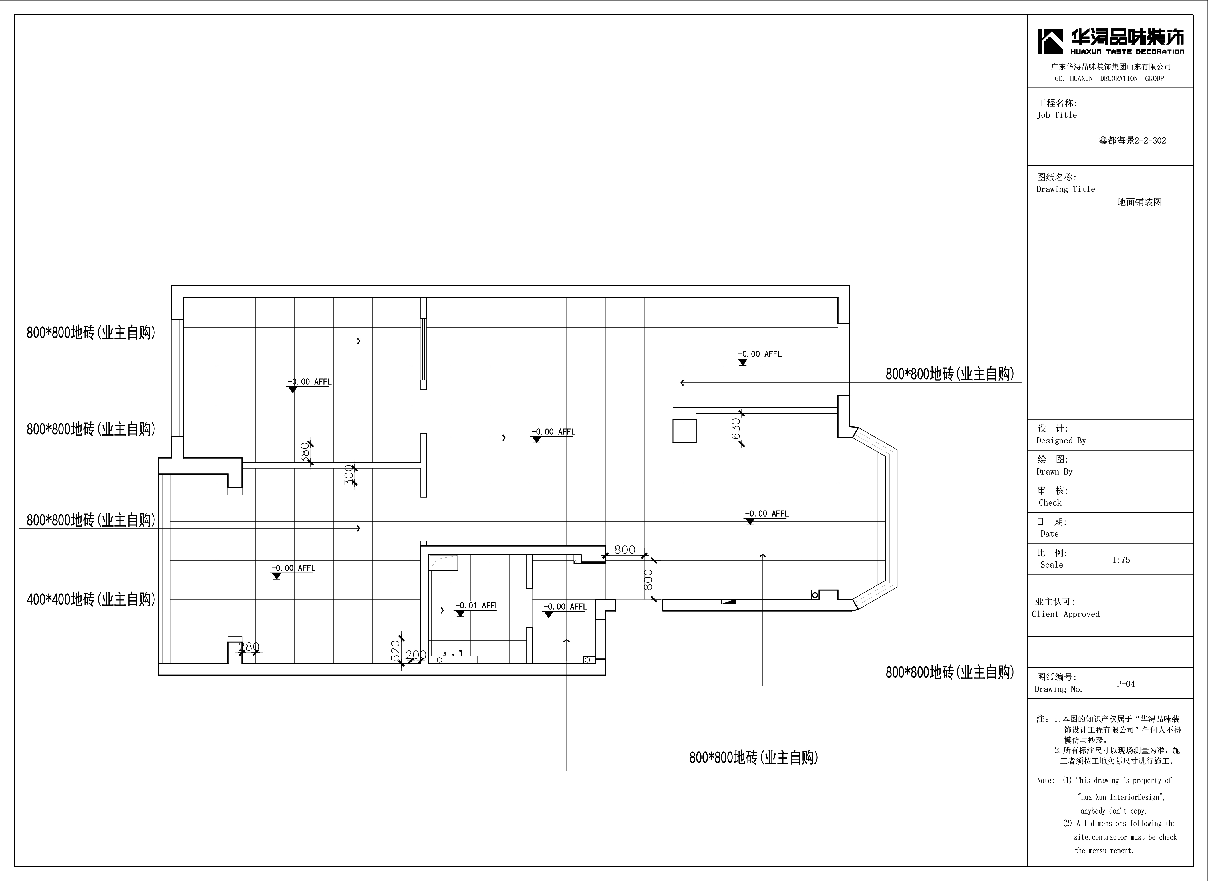
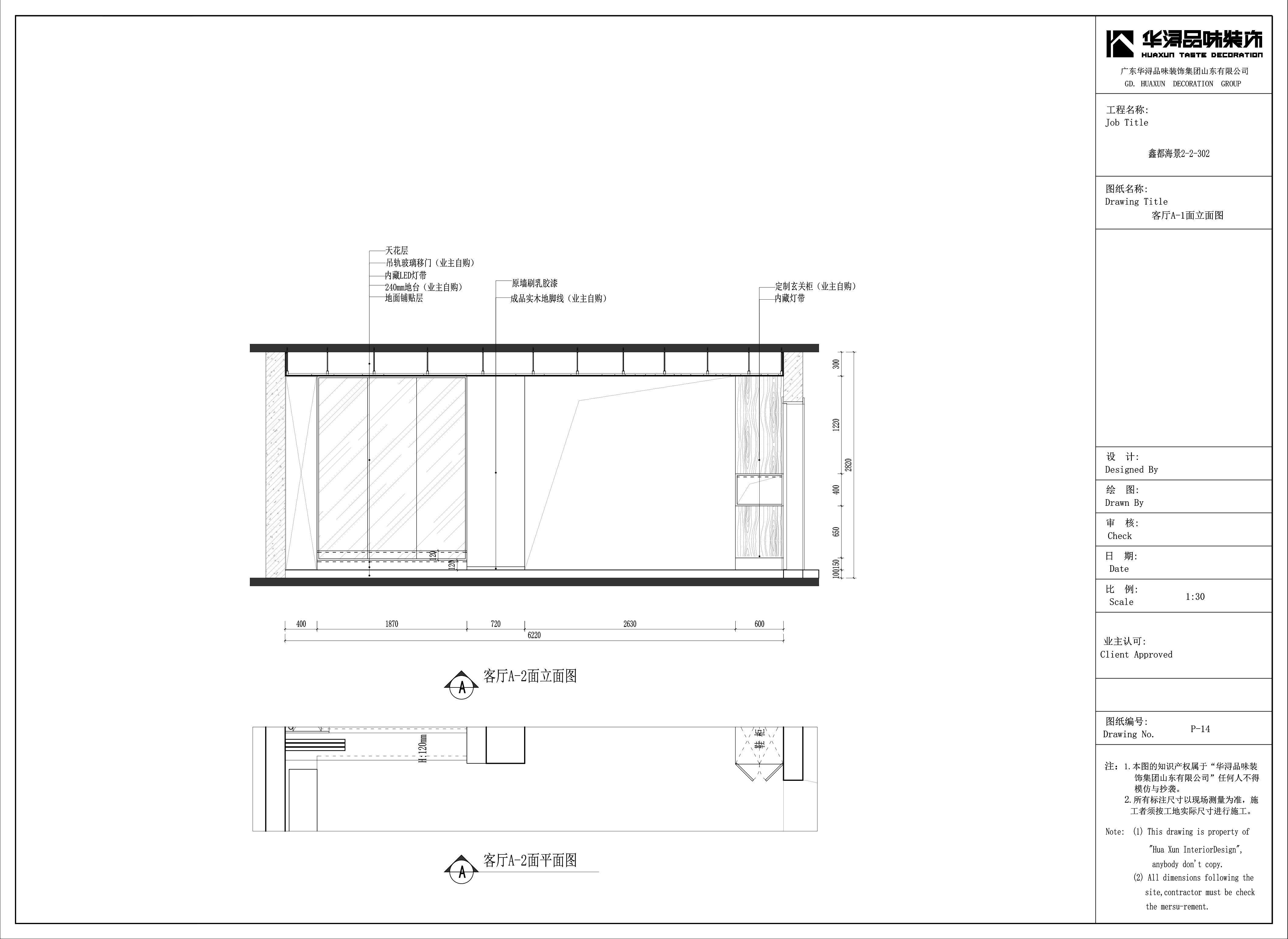
  • 图片
  • 图片
  • 图片
  • 图片
  • 图片
  • 图片
  • 图片
  • 图片
  • 图片
  • 图片
  • 图片
  • 图片
  • 图片
  • 图片
  • 图片
  • 图片
  • 图片
  • 图片
  • 图片
  • 图片
  • 图片
  • 图片
  • 图片
  • 图片
  • 图片
  • 图片
  • 图片
  • 图片
  • 图片
  • 图片
  • 图片
  • 图片
  • 图片
  • 图片
  • 图片
  • 图片
  • 图片
  • 上一个 下一个
    《金腾奖优秀作品年鉴》 私宅丨地产丨餐饮丨酒店丨办公丨商业丨公共丨产品丨公益丨人气 jintengAWARD(小金_金腾奖组委会) 广州市海珠区琶洲大道68号华新中心21楼
    金腾奖视频号 金腾奖小红书号 监制:闫虹
    统筹:吴佳佳
    运营:朱倩仪 王赫萱 张芷莹 胡岚恩 小金
    新媒体:王贝贝 严洁 侯乐 鹅姐
    经纪:刘译遥 石征 曹凯月
    技术:张桐 黄天佑
    最终解释权归金腾奖主办方所有