cangzaidushilidejingmishenghuo
作品详情
  • Details of the work 标题横线
    头像或者logo
    图片 石鹏 华浔品味装饰集团特约推荐
    城市:烟台
    公司: 广东华浔品味装饰集团(烟台分公司)
    参赛作品: 藏在都市里的静谧生活
    空间类型:公寓(150㎡以下)
    个人/公司简介:
    石鹏 广东华浔品味装饰集团烟台分公司 设计总监 中国注册(高级)住宅室内师 澳门国际联合会会员 2006年毕业于江西景德镇陶瓷学院环境艺术系 2007年进修于江西庐山西海丰良艺术学院 2008-2010年就职于广东星艺装饰集团(总部)有限公司 2015年就职于广东华浔品味装饰集团(山东)有限公司 曾经游学日本、台湾、阿联酋等多国。。。。。 个人自述:设计改变生活,生活因设计而更加精彩!在设计生涯这些年中,我非常享受设计的过程以及得到业主赞赏的那一刻,只有不停地在努力创新,我才感觉自己时刻保持着年轻的心态与活跃的思维方式;我认为自己最好的作品始终是下一个,我将不懈努力,继续实现自己心中的梦想......· 设计理念:设计,就是一种责任,我们有相信:专业设计,创造极致生活体验:用心服务成就你我家居梦想! 获奖经历: 2016年获得筑巢优秀奖 2018年获得红棉“雅奢”优秀奖 2018年获得“4040”山东省杰出设计青年 2019年获得“4040”山东省杰出设计青年 2019年获得中国“M+”设计大赛壹百城市榜 2020年获得中国第十届艾特奖“最佳住宅建筑设计”入围奖 2020年获得中国十大原创设计奖
    设计说明 | Design Instruction
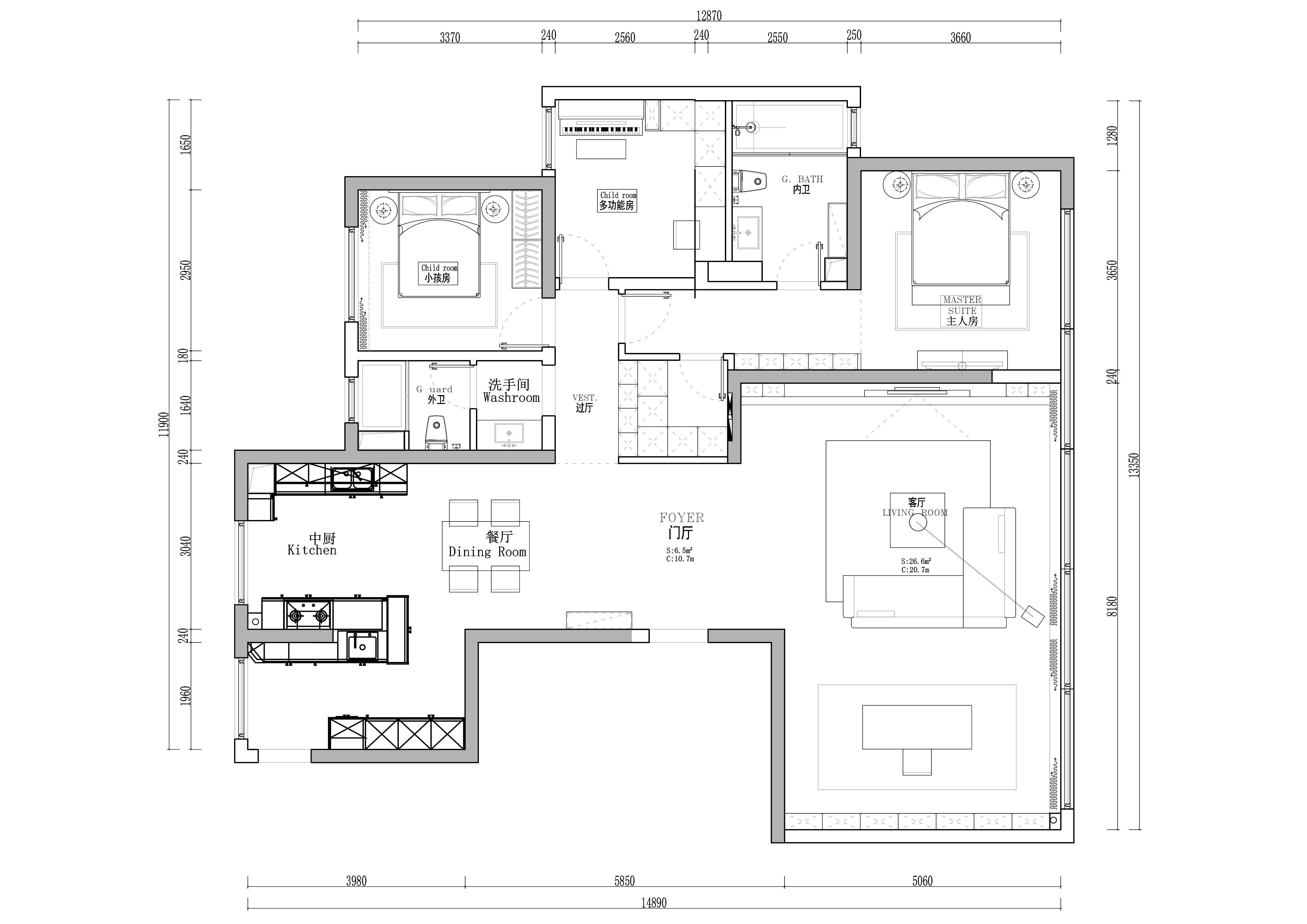
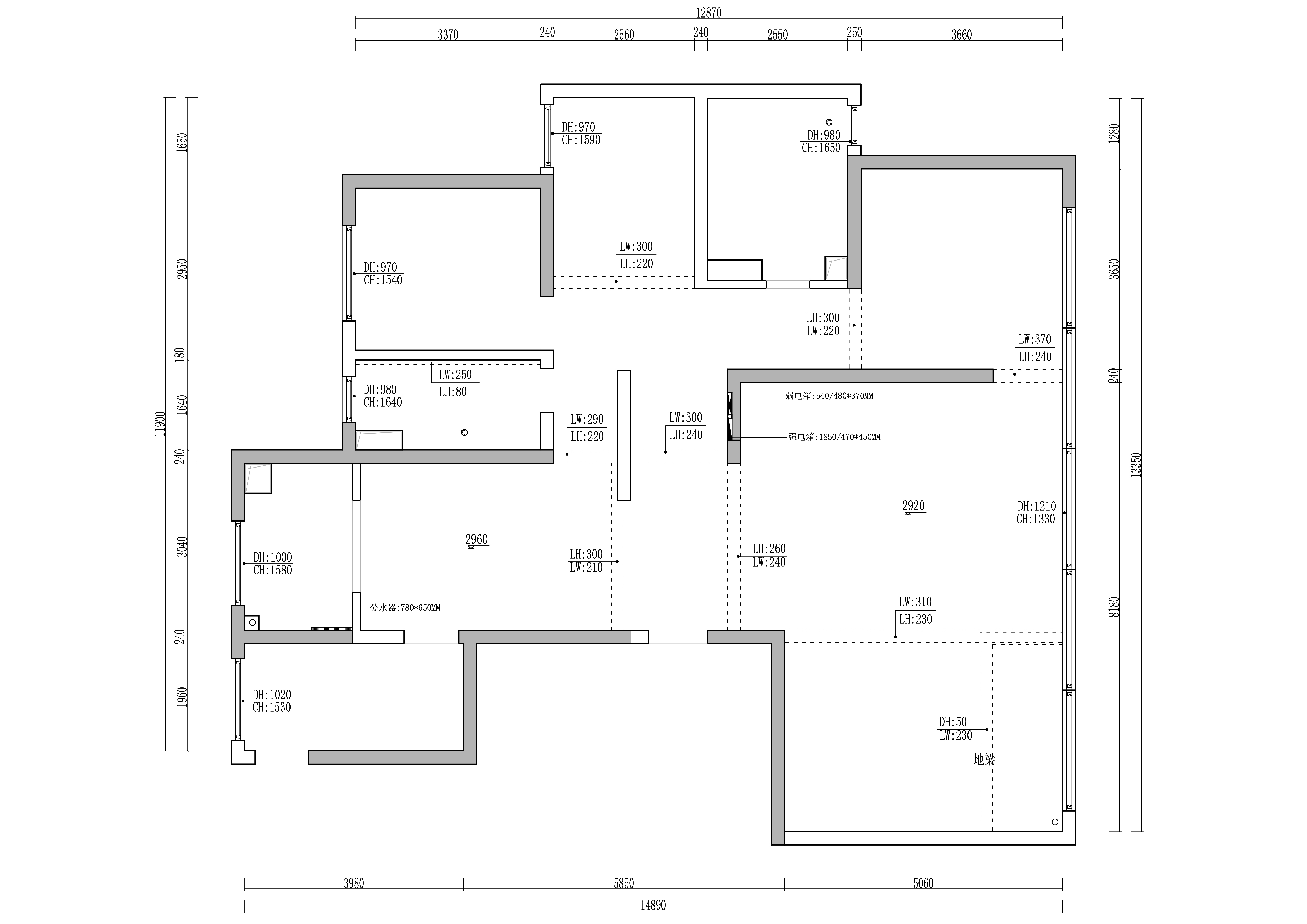
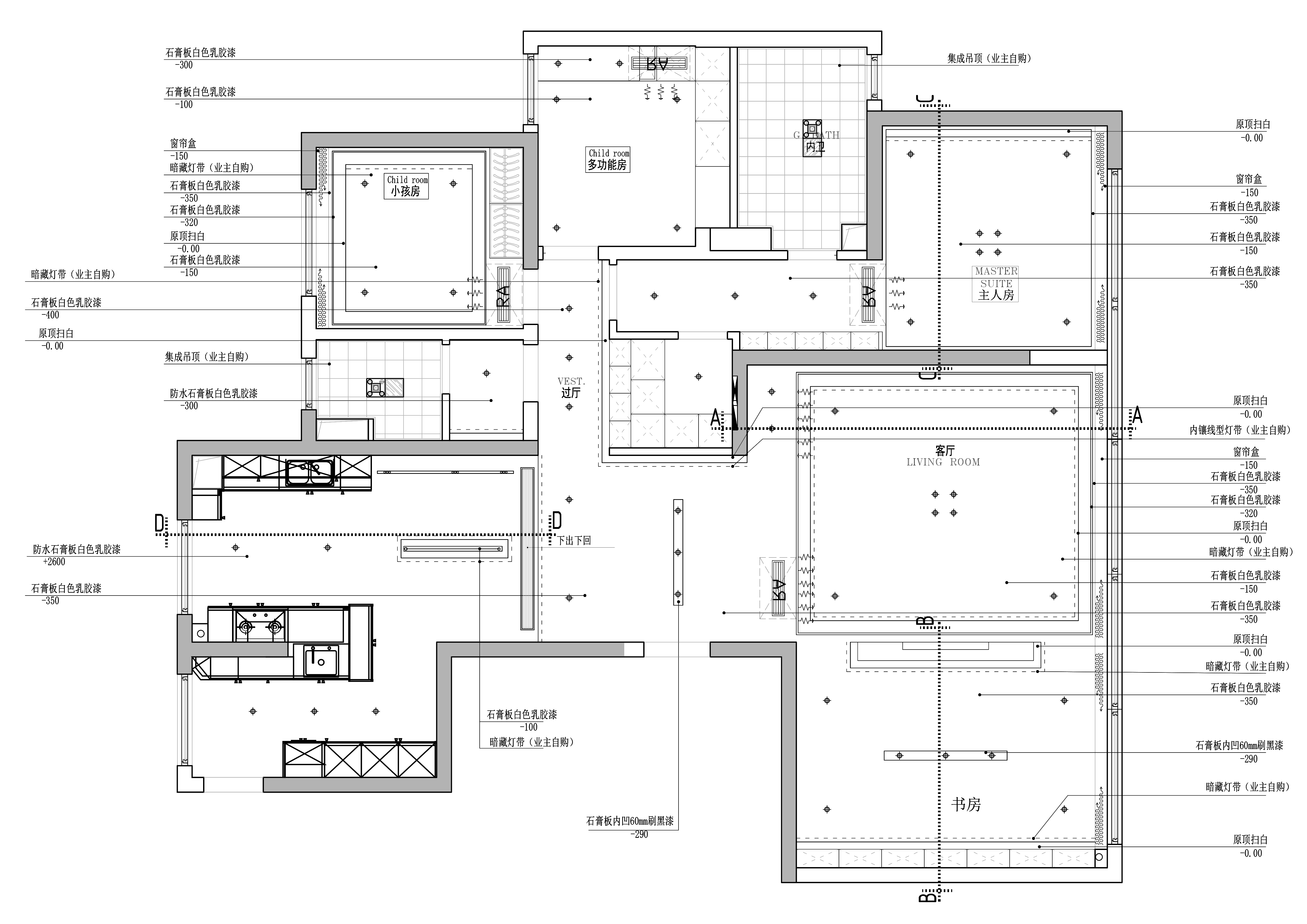
  • 项目名称:藏在都市里的静谧生活 项目地点:烟台·祥隆绿城 面积:200M² 本案为现代风格,平墅住宅。拆除部分墙体,重新规划室内布局,使空间更加宽敞通透。 设计师以“简化生活”为设计理念,以“象限”为主题构思,为满足业主希望在繁忙的一天工作后,回到家中去找寻一份宁静与温暖的诉求,让业主回归家、回归生活、回归自然。简单的颜色搭配带来的明媚感将整个客厅的拘谨一扫而空。 材料运用和色彩选择上显得额外低调和柔和,整个空间色彩搭配显出个性与品位,简约而时尚,可以承载更多的时尚元素,同时让家更宁静而温馨。空间以自然的色调与简约的设计相融合,不仅反映出现代人追求简单生活的居住要求,更体现出家居设计风格的内敛和质朴,使简约风格更加实用、更富现代感。
  • 图片
  • 图片
  • 图片
  • 图片
  • 图片
  • 图片
  • 图片
  • 图片
  • 图片
  • 图片
  • 图片
  • 图片
  • 图片
  • 图片
  • 图片
  • 图片
  • 图片
  • 图片
  • 图片
  • 图片
  • 图片
  • 图片
  • 图片
  • 图片
  • 上一个 下一个
    《金腾奖优秀作品年鉴》 私宅丨地产丨餐饮丨酒店丨办公丨商业丨公共丨产品丨公益丨人气 jintengAWARD(小金_金腾奖组委会) 广州市海珠区琶洲大道68号华新中心21楼
    金腾奖视频号 金腾奖小红书号 监制:闫虹
    统筹:吴佳佳
    运营:朱倩仪 王赫萱 张芷莹 胡岚恩 小金
    新媒体:王贝贝 严洁 侯乐 鹅姐
    经纪:刘译遥 石征 曹凯月
    技术:张桐 黄天佑
    最终解释权归金腾奖主办方所有