light
作品详情
  • Details of the work 标题横线
    头像或者logo
    图片 叶定妙
    城市:宁波
    公司: 妙意空间设计机构
    参赛作品: 淡雅
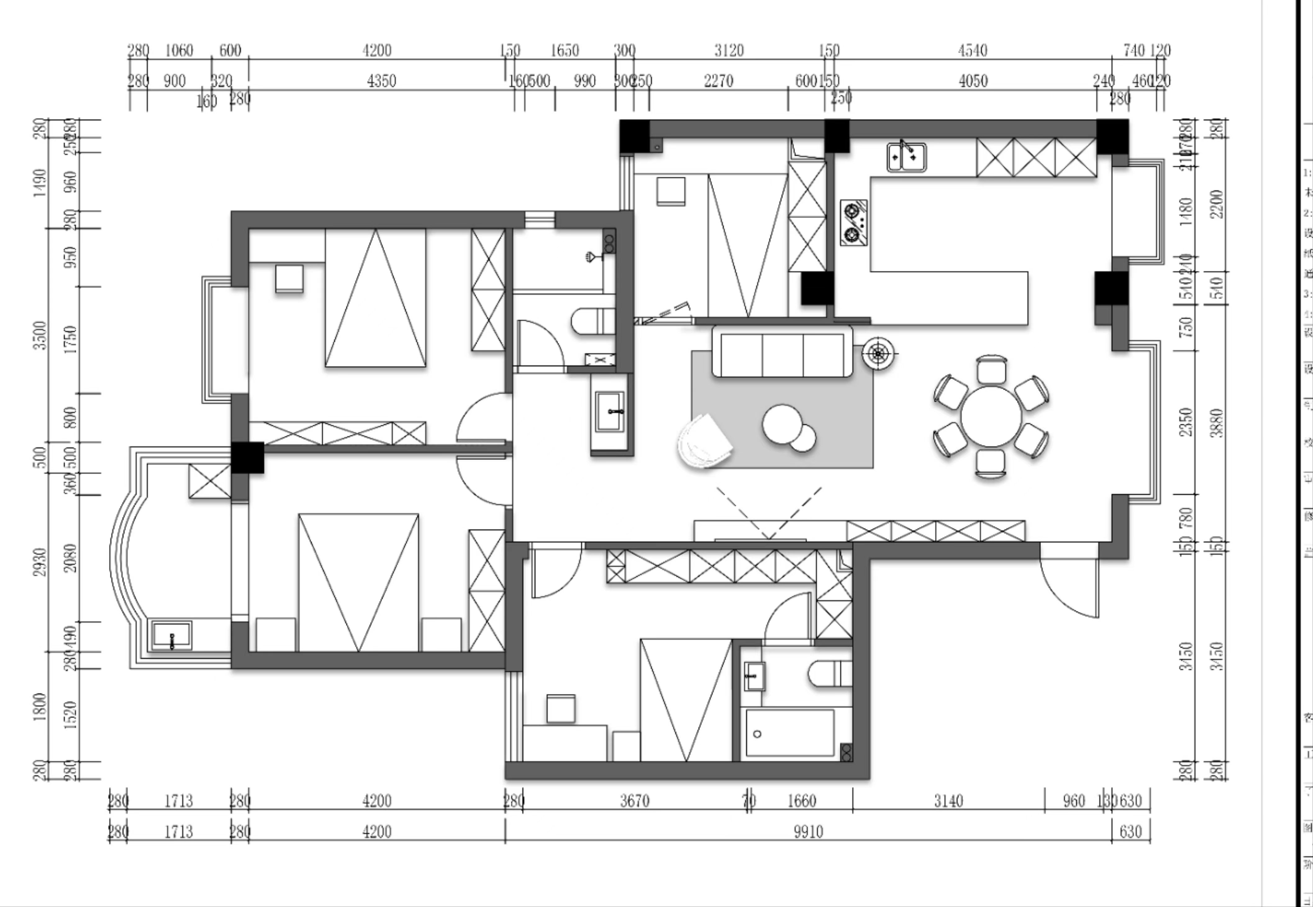
    空间类型:公寓(150㎡以下)
    个人/公司简介:
    叶定妙 CIID中国建筑学会室内设计分会会员 妙意空间室内设计机构创始人/设计总监 宁波市建筑装饰行业协会设计分会会员     宁波市室内设计师协会荣誉会员 青设会荣誉会员 FM102.9宁波经济广播(1029房天下栏目)特邀嘉宾 荣誉奖项: 2010年 长三角杯室内设计大赛三等奖 2010年 中国第八届中国室内设计双年展优秀作品奖 2011年 宁波市软装设计大赛最佳人居奖 2011年 宁波市室内设计大赛金奖 2011年 宁波市室内设计大赛铜奖 2013年 2套作品获国际空间设计大奖艾特奖最佳别墅豪宅设计入围奖 2014年 大金室内设计大赛浙江地区别墅组金奖 2014年 宁波精英设计大赛入围奖 2017年 浙江青年室内大赛最佳年度商业类实景空间奖. 2018年 中国室内设计双年展优秀作品奖 2020年 臻讲堂特邀名师 2022-2022DESIGNFOCUS年国际空间设计奖年度住宅公寓空间设计大奖实景类 作品入编《别墅大观3》《豪宅巡礼2》《家居视界》《宁波设计》《设计家》《宁波日报》《宁波家具》等 设计感悟: 对于我来说,很多灵感来源于生活,好的作品就是要打破常规,用其它的形式去创新。在遇到有想法的客户,就多体会他们的感受和需求,跟客户有更多的互动,经常用这种心态去做设计。设计本身就是要解决问题,也就是用另外的方法去表现东西的状态,任何的东西都可以拿灵感来改变,这是每个设计师应该有的态度,也是我的态度。
    设计说明 | Design Instruction
  • 淡雅纯粹的居家氛围 温润的色彩赋予对家的定义 如微风拂过使人心驰神往 讲述家中美好的故事温润内敛的静谧感,谱写美好而缓慢的日常。一处静谧安稳的舒心角落,让身心得以喘息的空间。客厅与餐厅布局并未完全分明,而是融为一体,从视觉与体验上增强了互动性,趋于多元化。客厅以素雅底色为主,浅色系软装烘托整体视觉,细腻的质感和丰富的肌理打造了一个静谧的居所,干净利索的家具勾画出空间的轮廓感。    采用全开放的客餐厅布局,吧台位于客餐厅与厨房之间,从而有了更多的联动,作为这个空间的枢纽,更加能体验到居家的乐趣。在这可以更方便的聚会、烹饪、用餐等,白色的吧台更显干净气质,色调方面比较素雅,围合而成的用餐氛围舒适轻松。开放式厨房空间,视觉上更加通透,生活的多样性都在这里得以诠释。卧室多处用到浅色,这种纯粹的颜色简单且美好,没有用过多的元素去干扰这里的休息氛围,用细腻柔软的床品来提提升睡眠的品质,在这里能更加的平静和放松。浴室中,也是一片纯粹的的浅色,但是这种浅色更加的朦胧一些,有一种呼之欲出但又欲盖弥彰的感觉。次卧色彩主选温和的粉色,为整体空间增添淡雅、纯粹的氛围来模糊边界感,床品及其装饰搭配去繁化简,却不失活泼趣味。生活是一场漫长的修行,淡雅、纯粹才是对生活最好的回馈。生活就是让自己的思绪常常萦绕在周围,执着地追随爱与美,并为之深深感动。
  • 图片
  • 图片
  • 图片
  • 图片
  • 图片
  • 图片
  • 图片
  • 图片
  • 图片
  • 图片
  • 图片
  • 图片
  • 图片
  • 图片
  • 图片
  • 图片
  • 图片
  • 图片
  • 图片
  • 图片
  • 图片
  • 上一个 下一个
    《金腾奖优秀作品年鉴》 私宅丨地产丨餐饮丨酒店丨办公丨商业丨公共丨产品丨公益丨人气 jintengAWARD(小金_金腾奖组委会) 广州市海珠区琶洲大道68号华新中心21楼
    金腾奖视频号 金腾奖小红书号 监制:闫虹
    统筹:吴佳佳
    运营:朱倩仪 王赫萱 张芷莹 胡岚恩 小金
    新媒体:王贝贝 严洁 侯乐 鹅姐
    经纪:刘译遥 石征 曹凯月
    技术:张桐 黄天佑
    最终解释权归金腾奖主办方所有