蓝海红潮
作品详情
  • Details of the work 标题横线
    头像或者logo
    图片 张超群 云上设计师俱乐部特约推荐
    城市:南京
    公司: 星艺装饰
    参赛作品: 蓝海红潮
    空间类型:公寓(150㎡以下)
    个人/公司简介:
    毕业院校:江苏大学 职务:星艺装饰 总监设计师 经典案例:紫京叠院 路易庄园 熙龙山院 沁园春园 恒大溪山公馆 绿城云栖玫瑰园 设计理念:把熟悉的东西当作未知的领域 再度开发同样有创造性 所获荣誉: 2020年“她设计”优秀空间 2021年 40under40中国(南京)设计杰出青年 2022年 设计千人计划.入选设计师 2022年 40under40中国(南京)设计杰出青年 2022年“她设计”优秀空间 2023年 H -DESIGN “南京设计精英奖“ 2023年 ”星艺杯“实景类 铜奖
    设计说明 | Design Instruction
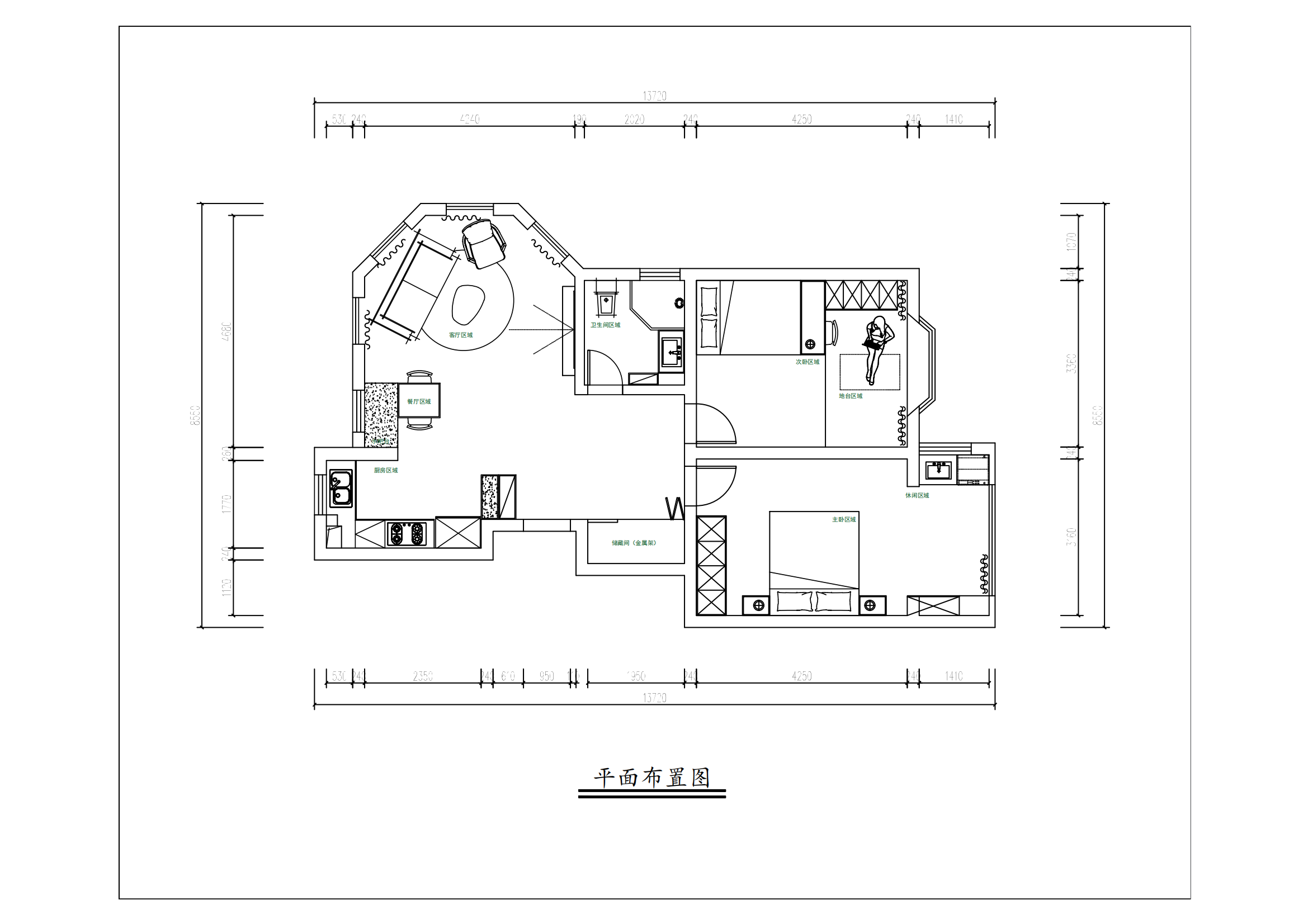
  • 业主是一对新婚夫妻,从事艺术工作。 因为客厅总面积的限制,调整要求是开放式厨房,就餐区,厨房,客厅融为一体。 于是打通了厨房,并且在放置物品的要求上给予了西厨的调整,增加了这样的功能区。 想打造一个清爽的空间,给与一些鲜明的撞色。于是选择了蓝色为主,红色为辅。蓝色沙发,蓝色衣帽间柜门,红色抱枕。因为业主本身就是艺术从业者,因此本身的小物件也比较多, 于是设计了比较灵活的置物架,摆放拿取都会比较方便。卧室以灰白色作为主基调,用床品的软装作为颜色的跳跃。原木的材质在空间也是频频出现,与银色的材质产生鲜明的视觉冲击。现代与复古,“孟菲斯”色彩与中古材质,给与空间一种既舒适又与众不同的视觉感受。
  • 图片
  • 图片
  • 图片
  • 图片
  • 图片
  • 图片
  • 图片
  • 图片
  • 图片
  • 图片
  • 图片
  • 图片
  • 图片
  • 图片
  • 图片
  • 图片
  • 图片
  • 图片
  • 图片
  • 图片
  • 图片
  • 图片
  • 上一个 下一个
    《金腾奖优秀作品年鉴》 私宅丨地产丨餐饮丨酒店丨办公丨商业丨公共丨产品丨公益丨人气 jintengAWARD(小金_金腾奖组委会) 广州市海珠区琶洲大道68号华新中心21楼
    金腾奖视频号 金腾奖小红书号 监制:闫虹
    统筹:吴佳佳
    运营:朱倩仪 王赫萱 张芷莹 胡岚恩 小金
    新媒体:王贝贝 严洁 侯乐 鹅姐
    经纪:刘译遥 石征 曹凯月
    技术:张桐 黄天佑
    最终解释权归金腾奖主办方所有