青梅
作品详情
  • Details of the work 标题横线
    头像或者logo
    图片 张涛 云上设计师俱乐部特约推荐
    城市:南京
    公司: 壹夲设计
    参赛作品: 青梅
    空间类型:公寓(150㎡以下)
    个人/公司简介:
    壹夲设计 创始人&设计总监 中国建筑装饰行业杰出设计师 CBDA设计奖最具影响力设计师 中国国际空间设计大赛银奖 中国装饰设计奖银奖 壹夲设计 我们是一群有情怀的设计师,利益追求不是我们唯一目标,帮业主解决难题,赢得赞誉,收获作品才是我们心之所向。每个房子户型各有千秋,但生活不能将就,我们会竭尽全力打造属于每一个人的漂亮舒适家。希望我们的客户,在我们设计的房子里,一直幸福的生活!
    设计说明 | Design Instruction
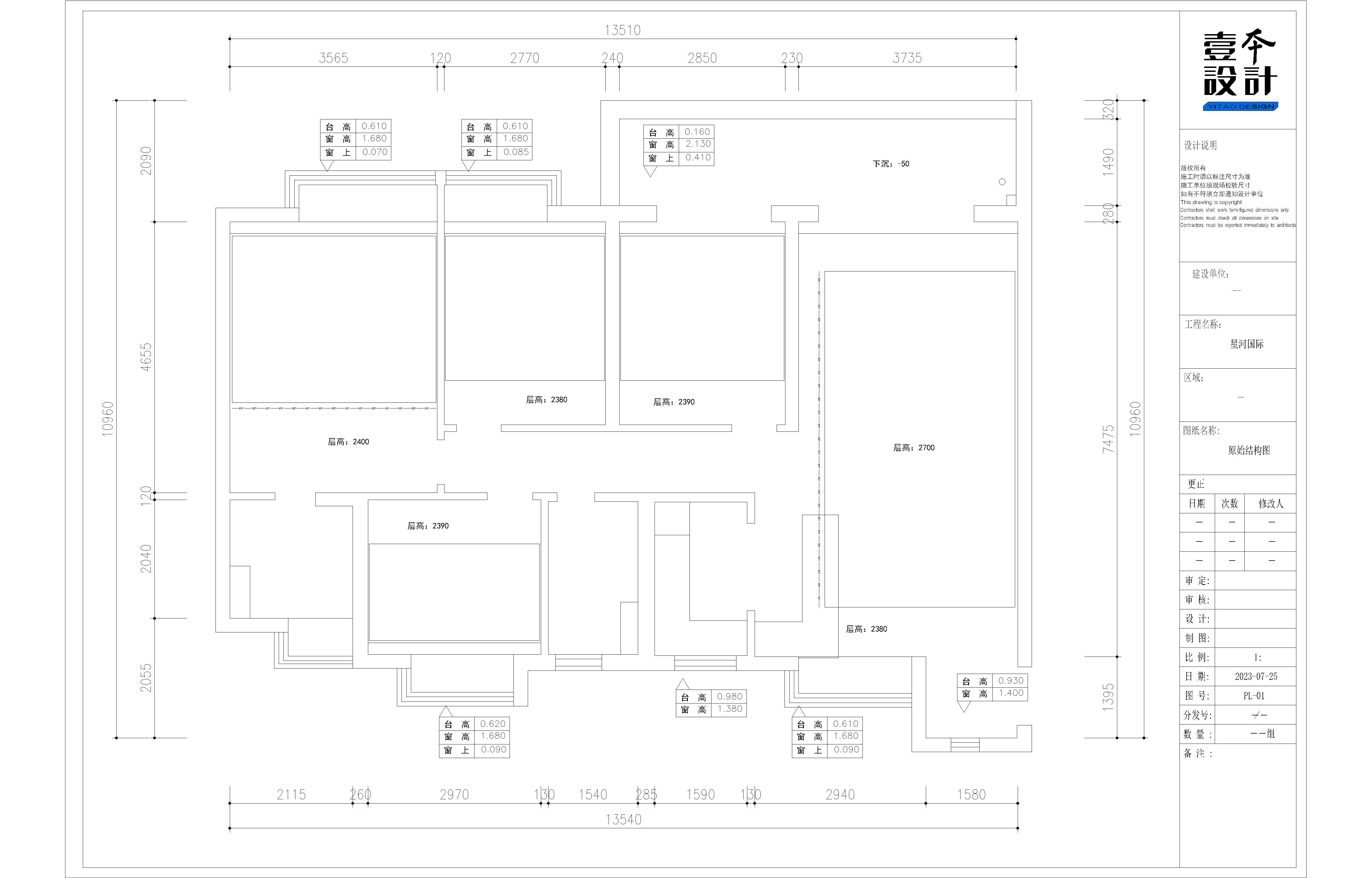
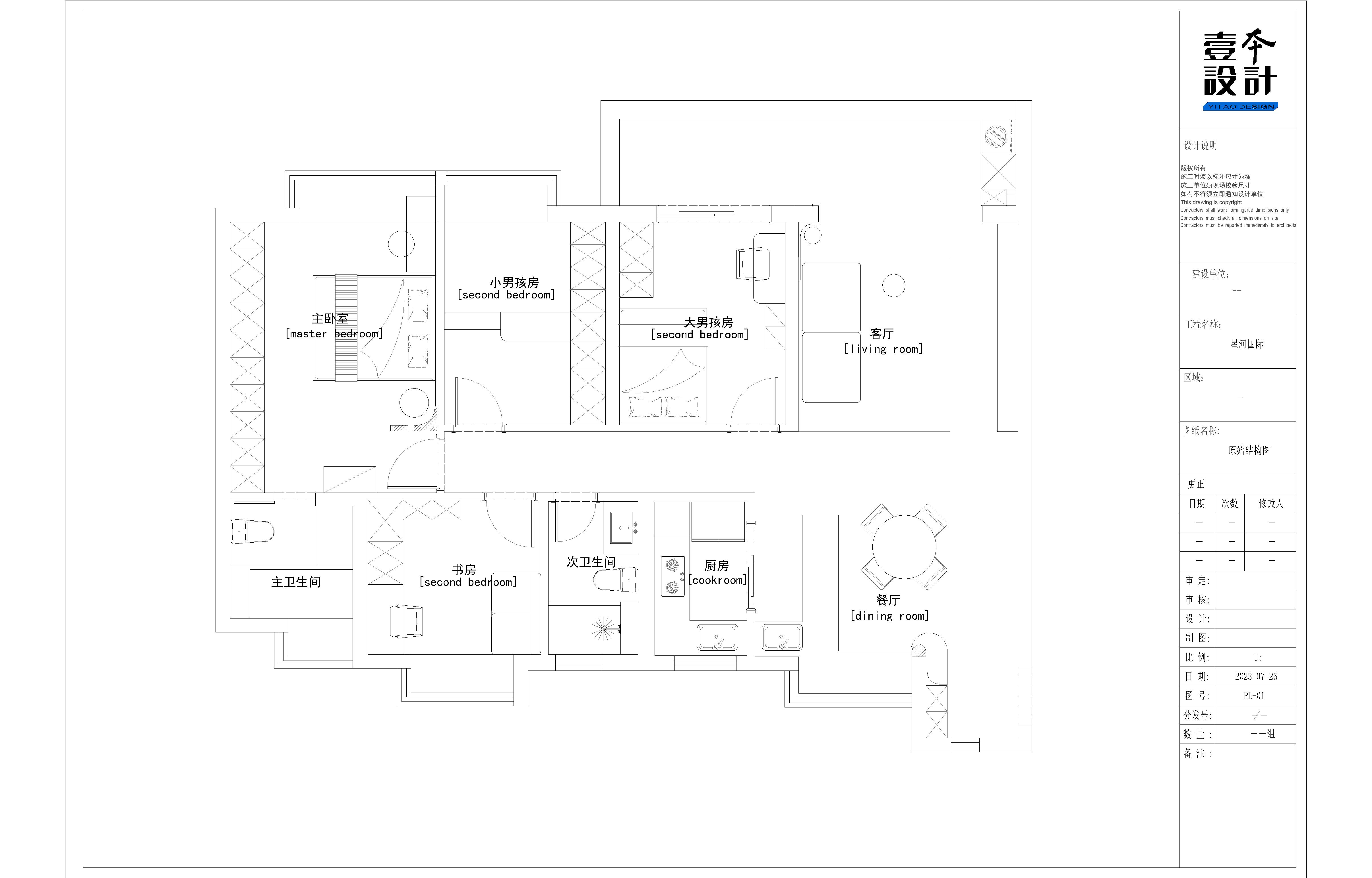
  • 本案是南京「星河国际」的精装改造项目,这个小区我们先设计了另一套房子,业主对我们的设计和施工都很满意,于是把他的好朋友邻居也介绍给我们来设计。有老客户信任背书合作起来自然顺畅。经过细致的沟通,发掘业主的需求,了解他们的喜好。最终将设计风格定为原木自然风,大面积采用低饱和度的米色系,结合原木的温润质感,点缀黑色家具软装提升整体调性,为业主打造一个自然轻松的温馨居所。 将双阳台的一部分纳入客厅设计成地台形式,设置了隐藏投影幕布,打造一个休闲娱乐观影瑜伽为一体多功能空间。利用圆弧墙板的平缓过度和包容感,结合整体配色的温润自然,营造一种放松舒适的居家氛围。 餐厅加入了一些黑色元素来调和色彩,DAaZ餐桌的黑色纹理和别致的造型,犹如艺术品的聚焦作用将空间层次提升。 主卧将床头调了个方向,使主卧拥有了长达4米多一整面墙的衣柜。进门处设计了一个虚实相间的造型,既能起到隐私遮挡作用,同时也有光线穿透,空间的联通让进门处不会有狭窄拥挤的体感。 儿童房面积不大,通过地台的设置,在有限空间内满足睡眠、书桌、书柜、衣柜、储藏等使用功能。配色上除了延续整体风格,又加入低饱和度的青梅绿和橙色书椅点缀,为儿童房增加一点俏皮可爱元素。 靠客厅的阳台部分拆掉移门,将其纳入客厅成为地台多功能区,洗衣区也设置在此处,满足生活中各种功能使用场景。
  • 图片
  • 图片
  • 图片
  • 图片
  • 图片
  • 图片
  • 图片
  • 图片
  • 图片
  • 图片
  • 图片
  • 图片
  • 图片
  • 图片
  • 图片
  • 图片
  • 图片
  • 图片
  • 图片
  • 图片
  • 图片
  • 图片
  • 图片
  • 图片
  • 图片
  • 图片
  • 图片
  • 图片
  • 图片
  • 图片
  • 图片
  • 图片
  • 图片
  • 图片
  • 图片
  • 图片
  • 上一个 下一个
    《金腾奖优秀作品年鉴》 私宅丨地产丨餐饮丨酒店丨办公丨商业丨公共丨产品丨公益丨人气 jintengAWARD(小金_金腾奖组委会) 广州市海珠区琶洲大道68号华新中心21楼
    金腾奖视频号 金腾奖小红书号 监制:闫虹
    统筹:吴佳佳
    运营:朱倩仪 王赫萱 张芷莹 胡岚恩 小金
    新媒体:王贝贝 严洁 侯乐 鹅姐
    经纪:刘译遥 石征 曹凯月
    技术:张桐 黄天佑
    最终解释权归金腾奖主办方所有