慕时一隅
作品详情
  • Details of the work 标题横线
    头像或者logo
    图片 张涛 云上设计师俱乐部特约推荐
    城市:南京
    公司: 壹夲设计
    参赛作品: 慕时一隅
    空间类型:公寓(150㎡以下)
    个人/公司简介:
    壹夲设计 创始人&设计总监 中国建筑装饰行业杰出设计师 CBDA设计奖最具影响力设计师 中国国际空间设计大赛银奖 中国装饰设计奖银奖 壹夲设计 我们是一群有情怀的设计师,利益追求不是我们唯一目标,帮业主解决难题,赢得赞誉,收获作品才是我们心之所向。每个房子户型各有千秋,但生活不能将就,我们会竭尽全力打造属于每一个人的漂亮舒适家。希望我们的客户,在我们设计的房子里,一直幸福的生活!
    设计说明 | Design Instruction
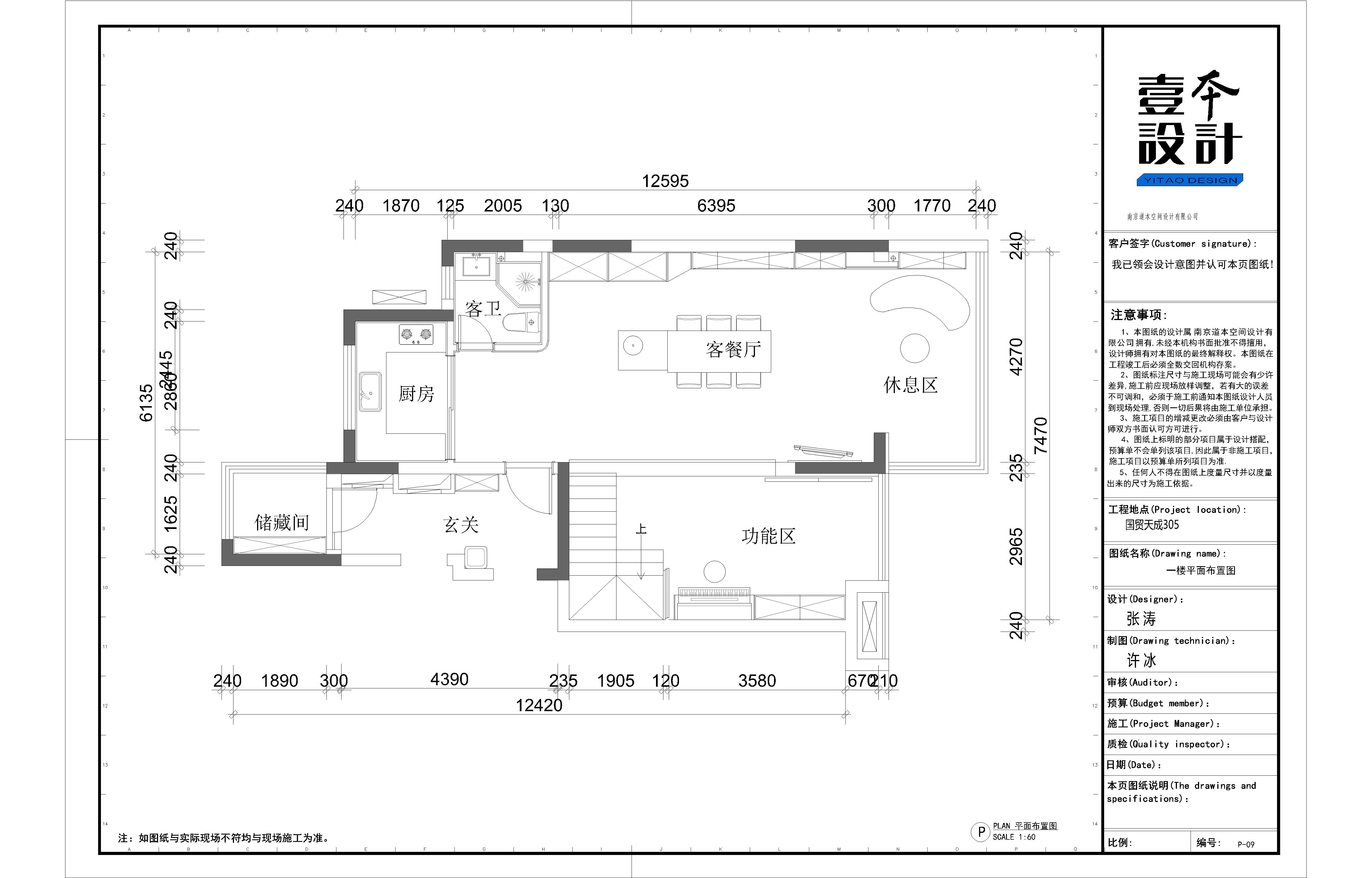
  • 本案位于安徽省合肥市,屋主是一对80后夫妻,自由随性,钟爱现代极简风,最主要的侧重点在于空间合理性。设计师与男女主人共同沟通后,最大化的发挥空间,去除了原有的客餐厅的布局,营造出舒适和功能性兼备的生活空间。 1、根据屋主生活习惯,一楼空间从岛台与餐桌出发,做了二合一功能整合,最大限度保证空间的舒适和延展性。 2、借用原阳台区域,与客厅进行合并,整体扩大公共空间面积,让家拥有流通、互动的活动场所。 3、将电器柜、嵌入式冰箱设置于餐桌边,增加功能性。 4、二楼三间卧室合理分配,去除主卫改成衣帽间纳入主卧,增加主卧收纳。 纳藏烟火气的餐厅,从进门处的圆弧过渡到吧台而由此展开空间叙事。以深色木饰面强调其存在感,同时亦可“造影”,仿大理石纹地砖使空旷的空间富有灵动的魅⼒,通过序列组合,赋予空间更为丰富的情绪表达。 设计师没有去选择成品吊灯,将极简元素运用到了极致,运用磁吸轨道灯,结合现场的格调以及餐桌和中岛的形体走向,阳台区域的圆弧沙发与餐厅的融合,米色与黑色进行色彩的铺陈,冷暖相宜,在光的引述下,生活形态渐次向外自由延伸。 大面积落地窗引光入室,洒落空间,成为天然的柔光滤镜。圆弧形软包和局部装饰柜,规整有序的排列。搭配跳色的单人位,营造张弛有序的品质空间。
  • 图片
  • 图片
  • 图片
  • 图片
  • 图片
  • 图片
  • 图片
  • 图片
  • 图片
  • 图片
  • 图片
  • 图片
  • 图片
  • 图片
  • 图片
  • 图片
  • 图片
  • 图片
  • 图片
  • 图片
  • 图片
  • 图片
  • 图片
  • 图片
  • 图片
  • 图片
  • 图片
  • 图片
  • 图片
  • 上一个 下一个
    《金腾奖优秀作品年鉴》 私宅丨地产丨餐饮丨酒店丨办公丨商业丨公共丨产品丨公益丨人气 jintengAWARD(小金_金腾奖组委会) 广州市海珠区琶洲大道68号华新中心21楼
    金腾奖视频号 金腾奖小红书号 监制:闫虹
    统筹:吴佳佳
    运营:朱倩仪 王赫萱 张芷莹 胡岚恩 小金
    新媒体:王贝贝 严洁 侯乐 鹅姐
    经纪:刘译遥 石征 曹凯月
    技术:张桐 黄天佑
    最终解释权归金腾奖主办方所有