闹市里的澎湖湾
作品详情
  • Details of the work 标题横线
    头像或者logo
    图片 张涛 云上设计师俱乐部特约推荐
    城市:南京
    公司: 壹夲设计
    参赛作品: 闹市里的澎湖湾
    空间类型:公寓(150㎡以下)
    个人/公司简介:
    壹夲设计 创始人&设计总监 中国建筑装饰行业杰出设计师 CBDA设计奖最具影响力设计师 中国国际空间设计大赛银奖 中国装饰设计奖银奖 壹夲设计 我们是一群有情怀的设计师,利益追求不是我们唯一目标,帮业主解决难题,赢得赞誉,收获作品才是我们心之所向。每个房子户型各有千秋,但生活不能将就,我们会竭尽全力打造属于每一个人的漂亮舒适家。希望我们的客户,在我们设计的房子里,一直幸福的生活!
    设计说明 | Design Instruction
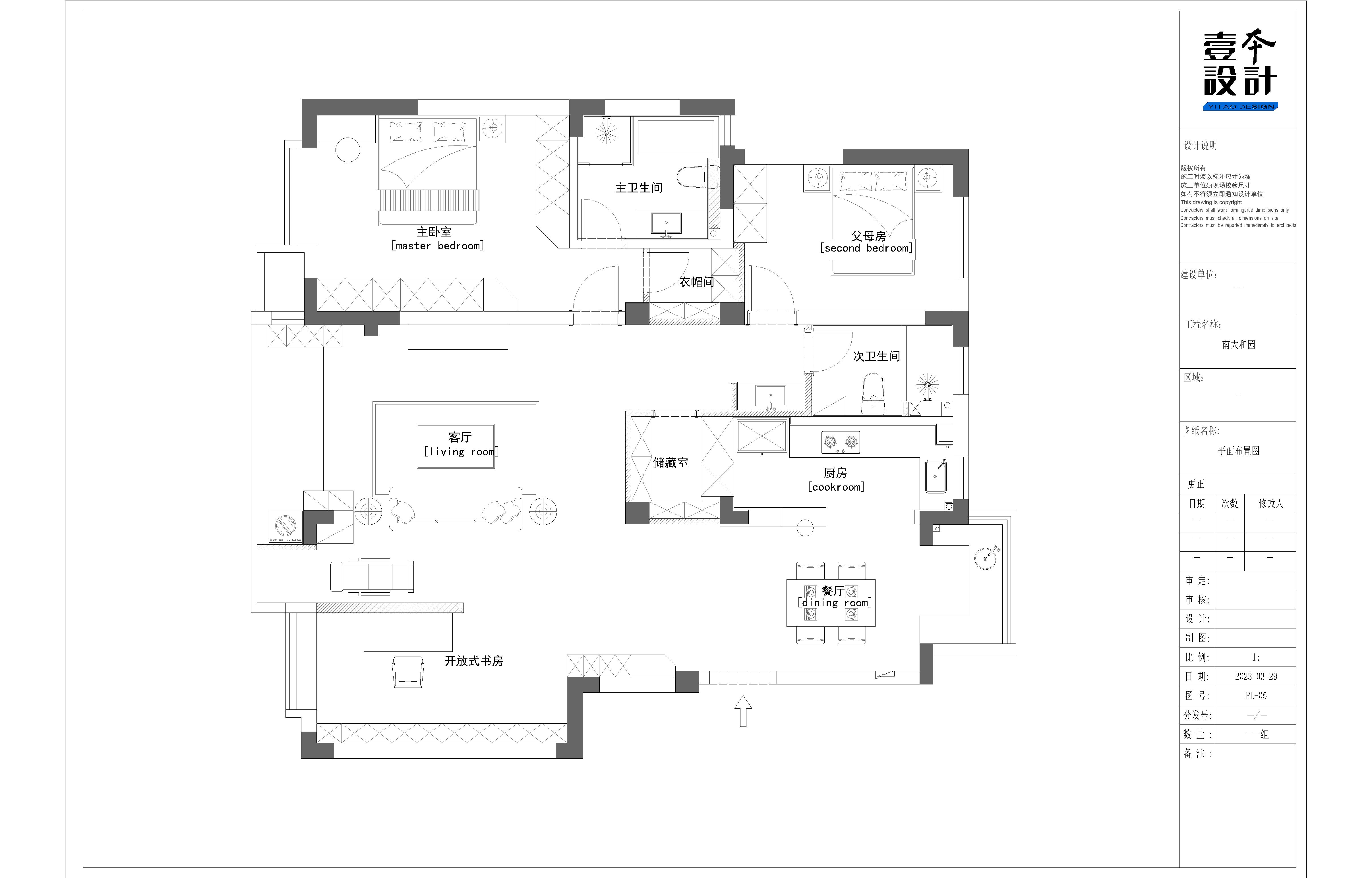
  • 本案位于金陵城东,周边学府环绕,人文气息浓厚,我们与本案业主经由服务过的老客户诚意推荐而相识,女主本身的气质与品味决定了整个家的调性,简短而有效的沟通就能很快的确定了风格喜好。 空间明亮温润,没有过度的颜色跳跃,属于自然风格中的温馨治愈。原木风格的家居配饰,让整个空间充满了亲和力和自然的气息。 设计改造: 1、根据屋主生活习惯,将书房和客厅合二为一,最大限度保证空间的舒适和延展性。 2、原阳台区域与客厅进行合并,整体扩大公共空间面积,让家拥有流通、互动的活动场所。 3、将去除厨房的移门并设置吧台,北阳台作为西厨区并兼备咖啡功能,增加餐厨一体的功能性。 4、主卧次卧进出动线重新分配,原有过道改成衣帽间并纳入主卧,增加主卧收纳。 把普通的烟火都过成精致,让每一个平凡的日子都溢满欢喜。泡一杯桂花红茶,坐在窗台边晒着太阳,阳光透过窗户照在身上暖暖的。细细品味沁人心脾的桂花香,阅读着优美温暖的文字,静静地坐上一会儿,享受当下!
  • 图片
  • 图片
  • 图片
  • 图片
  • 图片
  • 图片
  • 图片
  • 图片
  • 图片
  • 图片
  • 图片
  • 图片
  • 图片
  • 图片
  • 图片
  • 图片
  • 图片
  • 图片
  • 图片
  • 图片
  • 图片
  • 图片
  • 图片
  • 图片
  • 图片
  • 图片
  • 图片
  • 图片
  • 图片
  • 图片
  • 图片
  • 图片
  • 图片
  • 图片
  • 图片
  • 图片
  • 图片
  • 图片
  • 图片
  • 上一个 下一个
    《金腾奖优秀作品年鉴》 私宅丨地产丨餐饮丨酒店丨办公丨商业丨公共丨产品丨公益丨人气 jintengAWARD(小金_金腾奖组委会) 广州市海珠区琶洲大道68号华新中心21楼
    金腾奖视频号 金腾奖小红书号 监制:闫虹
    统筹:吴佳佳
    运营:朱倩仪 王赫萱 张芷莹 胡岚恩 小金
    新媒体:王贝贝 严洁 侯乐 鹅姐
    经纪:刘译遥 石征 曹凯月
    技术:张桐 黄天佑
    最终解释权归金腾奖主办方所有