塞纳河畔
作品详情
  • Details of the work 标题横线
    头像或者logo
    图片 张涛 云上设计师俱乐部特约推荐
    城市:南京
    公司: 壹夲设计
    参赛作品: 塞纳河畔
    空间类型:公寓(150㎡以下)
    个人/公司简介:
    壹夲设计 创始人&设计总监 中国建筑装饰行业杰出设计师 CBDA设计奖最具影响力设计师 中国国际空间设计大赛银奖 中国装饰设计奖银奖 壹夲设计 我们是一群有情怀的设计师,利益追求不是我们唯一目标,帮业主解决难题,赢得赞誉,收获作品才是我们心之所向。每个房子户型各有千秋,但生活不能将就,我们会竭尽全力打造属于每一个人的漂亮舒适家。希望我们的客户,在我们设计的房子里,一直幸福的生活!
    设计说明 | Design Instruction
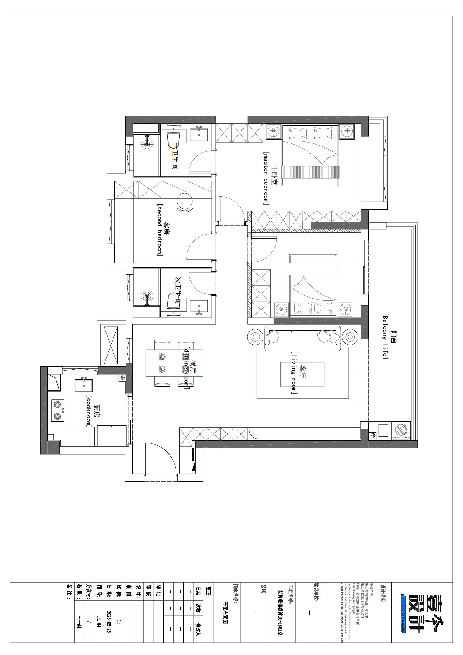
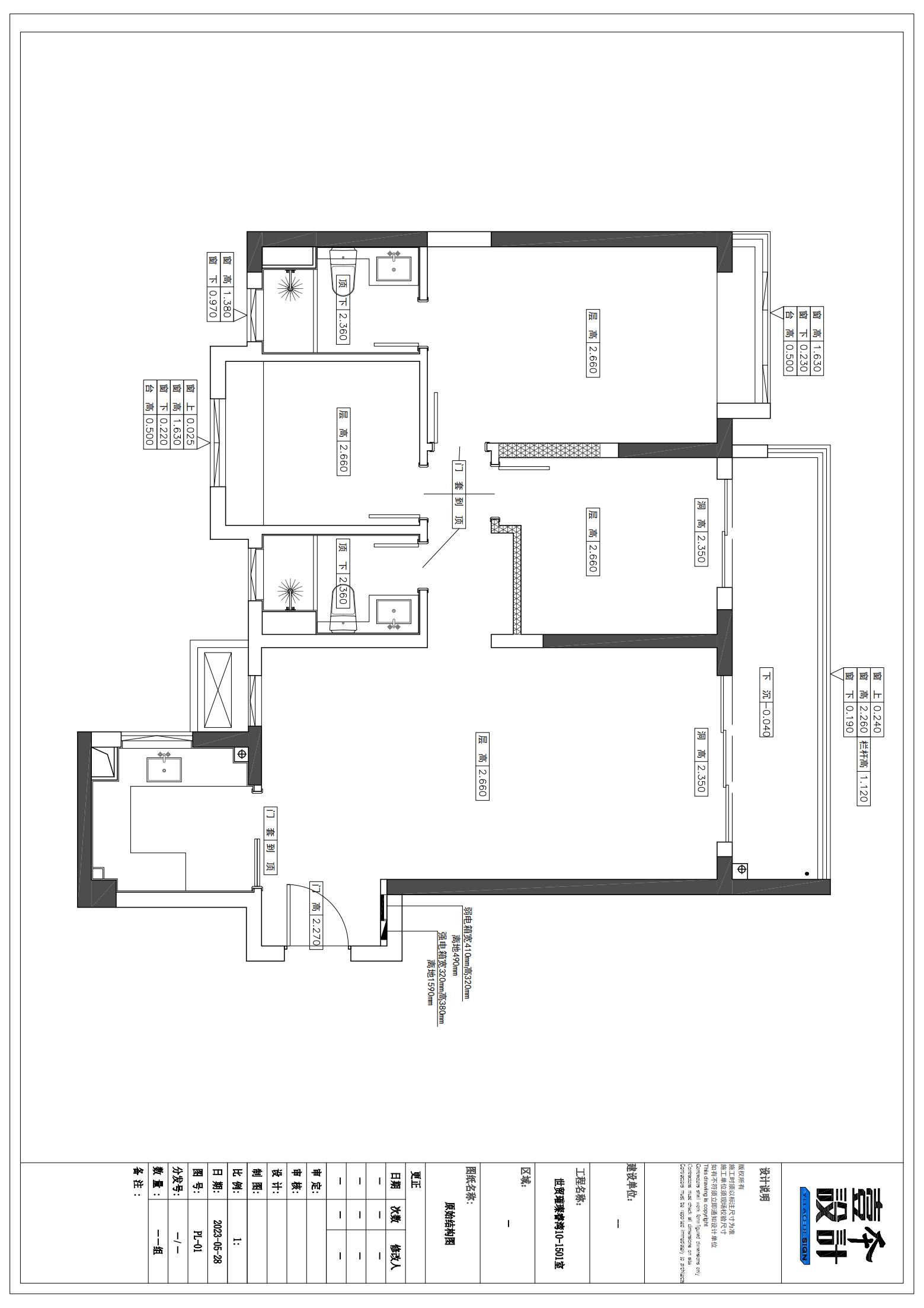
  • 那日,淅淅的春雨刚刚止住,青苹果色的季节便涌入大街,周边小巷流淌着翡翠般的音乐,似乎天空也被抬升得格外晴明高远。 本案是南京「世茂璀璨睿湾」119㎡的精装改造项目,年轻的业主二人居住。因对精装修的内部配置,以及色彩都不满意,于是委托我们进行设计调整。设计主要围绕收纳、配色重新调整而展开,处理不同功能、需求之间的融合。一处理想居所,三二至亲至爱,便构建起了坚韧稳固的爱与生活。
  • 图片
  • 图片
  • 图片
  • 图片
  • 图片
  • 图片
  • 图片
  • 图片
  • 图片
  • 图片
  • 图片
  • 图片
  • 图片
  • 图片
  • 图片
  • 图片
  • 图片
  • 图片
  • 图片
  • 图片
  • 图片
  • 图片
  • 图片
  • 图片
  • 图片
  • 图片
  • 图片
  • 图片
  • 图片
  • 图片
  • 图片
  • 图片
  • 上一个 下一个
    《金腾奖优秀作品年鉴》 私宅丨地产丨餐饮丨酒店丨办公丨商业丨公共丨产品丨公益丨人气 jintengAWARD(小金_金腾奖组委会) 广州市海珠区琶洲大道68号华新中心21楼
    金腾奖视频号 金腾奖小红书号 监制:闫虹
    统筹:吴佳佳
    运营:朱倩仪 王赫萱 张芷莹 胡岚恩 小金
    新媒体:王贝贝 严洁 侯乐 鹅姐
    经纪:刘译遥 石征 曹凯月
    技术:张桐 黄天佑
    最终解释权归金腾奖主办方所有