Fruits in autumn
作品详情
  • Details of the work 标题横线
    头像或者logo
    图片 王丹na 华浔品味装饰集团特约推荐
    城市:镇江
    公司: 无
    参赛作品: 秋实
    空间类型:公寓(150㎡以下)
    个人/公司简介:
    工作年限:12年 代表作品:香格里拉、聆湖尚郡 德林艺墅 万科蓝山 万科红郡西岸、北固湾、融创 樾林苑 江山府 江山名州 等。 设计理念:致良知 知行合一
    设计说明 | Design Instruction
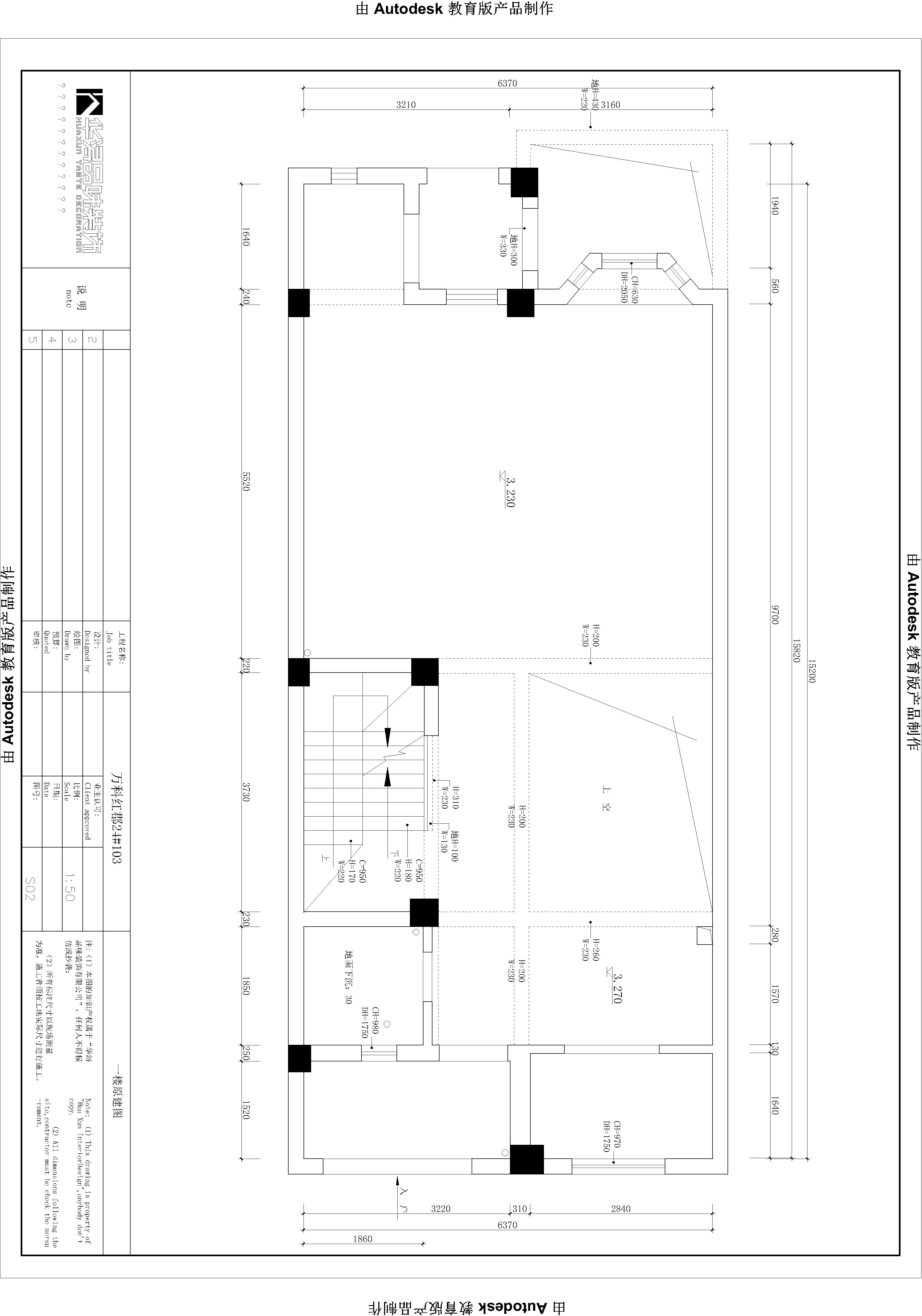
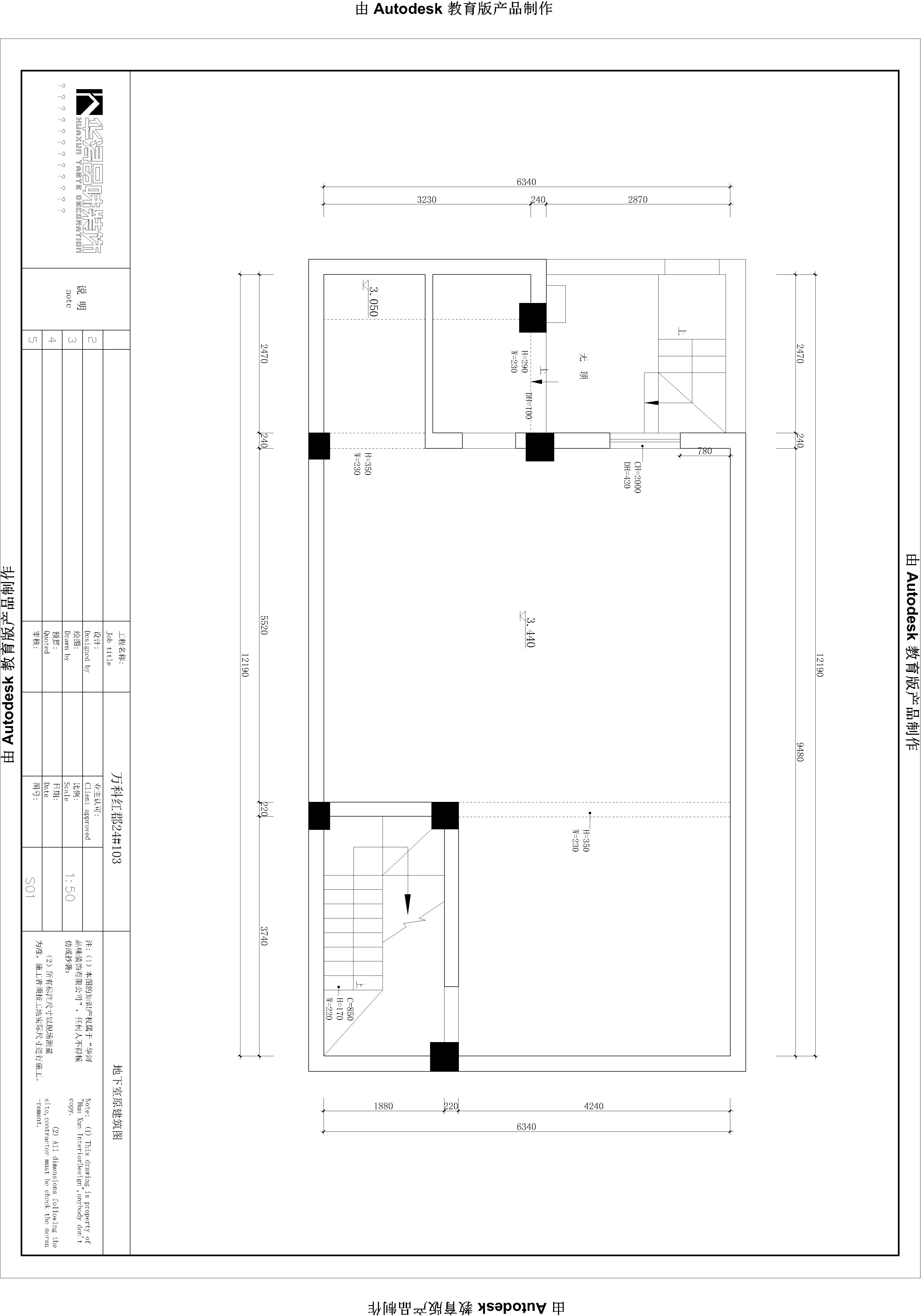
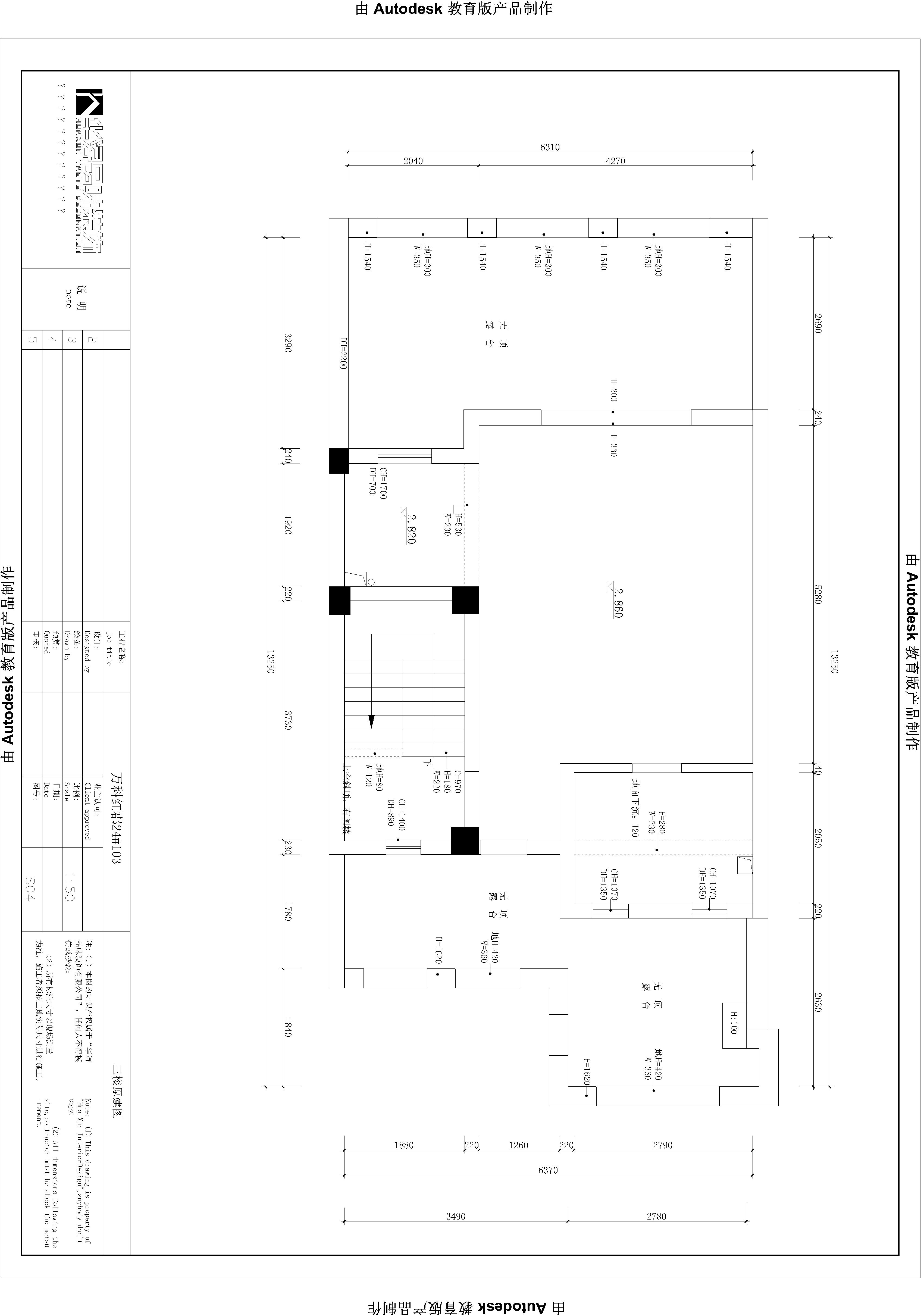
  • 故事开始于春天的一个下午,拍摄在国庆节的前一天。历时两年多的时间,整体营造了一个舒适简约的现代空间。 空间布局上,整体采用动静分离的方式,地下室和一楼整体以公共休闲为主,餐厅和家庭会客为辅助的方式来安排这两层。 手法上,采用浅色地砖搭配神色木纹做跳色拉开空间的整体层次。二楼三楼的整体是家庭的私密区,儿童房在色彩上,采用活泼的藕粉和浅绿搭配。父母房则选择咖色和大地色来表现。三楼的布局上是整体套间的方式,结合书房,衣帽间,卫生间,休闲区,卧室于一体。做到层次分明,动静结合。
  • 图片
  • 图片
  • 图片
  • 图片
  • 图片
  • 图片
  • 图片
  • 图片
  • 图片
  • 图片
  • 图片
  • 图片
  • 图片
  • 图片
  • 图片
  • 图片
  • 图片
  • 图片
  • 图片
  • 图片
  • 图片
  • 图片
  • 图片
  • 图片
  • 图片
  • 图片
  • 图片
  • 图片
  • 上一个 下一个
    《金腾奖优秀作品年鉴》 私宅丨地产丨餐饮丨酒店丨办公丨商业丨公共丨产品丨公益丨人气 jintengAWARD(小金_金腾奖组委会) 广州市海珠区琶洲大道68号华新中心21楼
    金腾奖视频号 金腾奖小红书号 监制:闫虹
    统筹:吴佳佳
    运营:朱倩仪 王赫萱 张芷莹 胡岚恩 小金
    新媒体:王贝贝 严洁 侯乐 鹅姐
    经纪:刘译遥 石征 曹凯月
    技术:张桐 黄天佑
    最终解释权归金腾奖主办方所有