home
作品详情
  • Details of the work 标题横线
    头像或者logo
    图片 刘礼文 华浔品味装饰集团特约推荐
    城市:烟台
    公司: 广东华浔品味装饰集团(烟台分公司)
    参赛作品: 家
    空间类型:公寓(150㎡以下)
    个人/公司简介:
    A8设计总监 从业13年 2010年毕业于南昌大学环境艺术系 从事室内设计师行业13年, 有丰富的室内设计、陈设配饰、等经验; 中国注册高级室内设计师 中国建筑装饰协会高级室内设计师 华浔烟台分公司设计总监 设计理念.设计者始终需要把人对室内环境的需求,包括物质使用和精神两方面放在设计首位
    设计说明 | Design Instruction
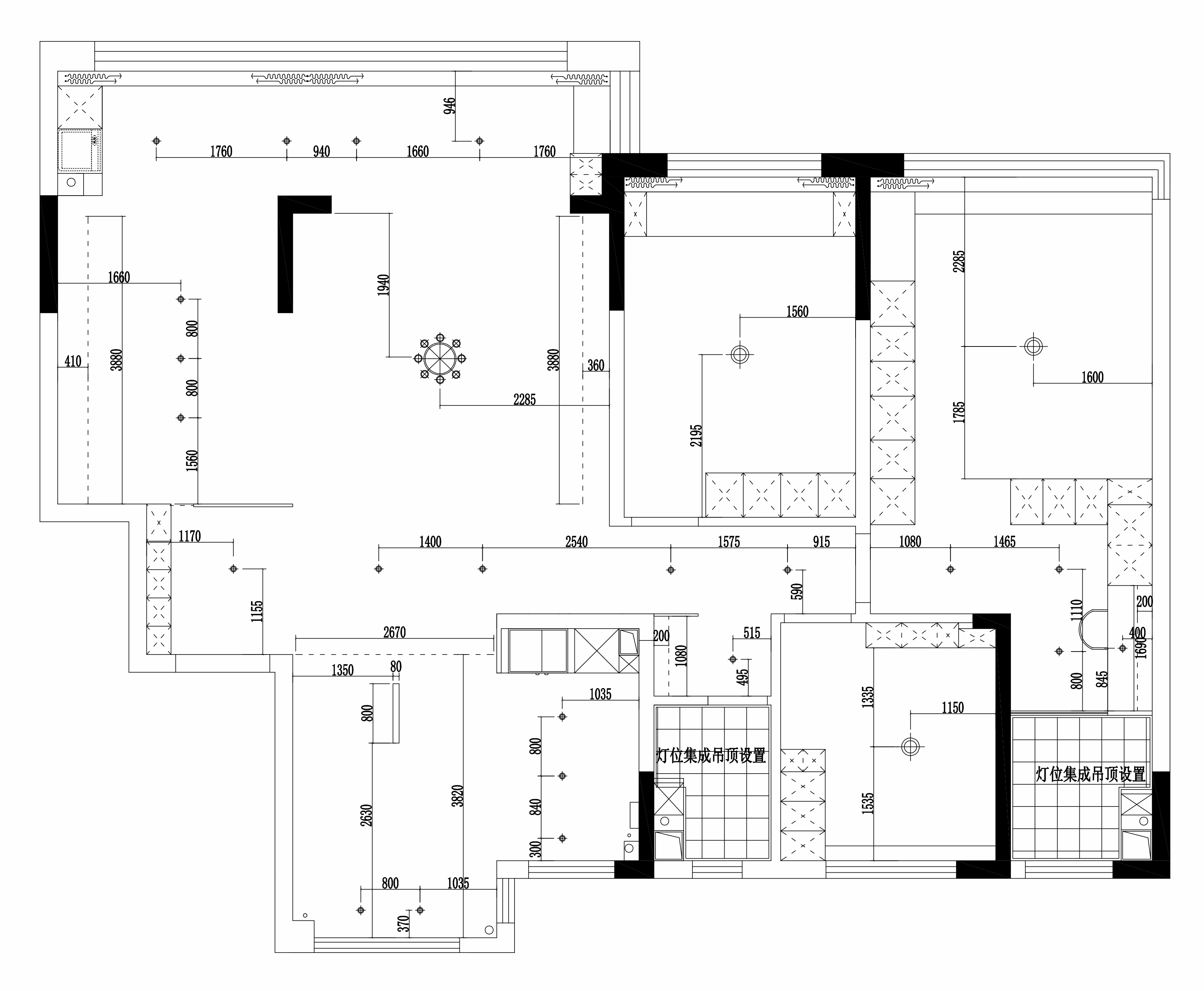
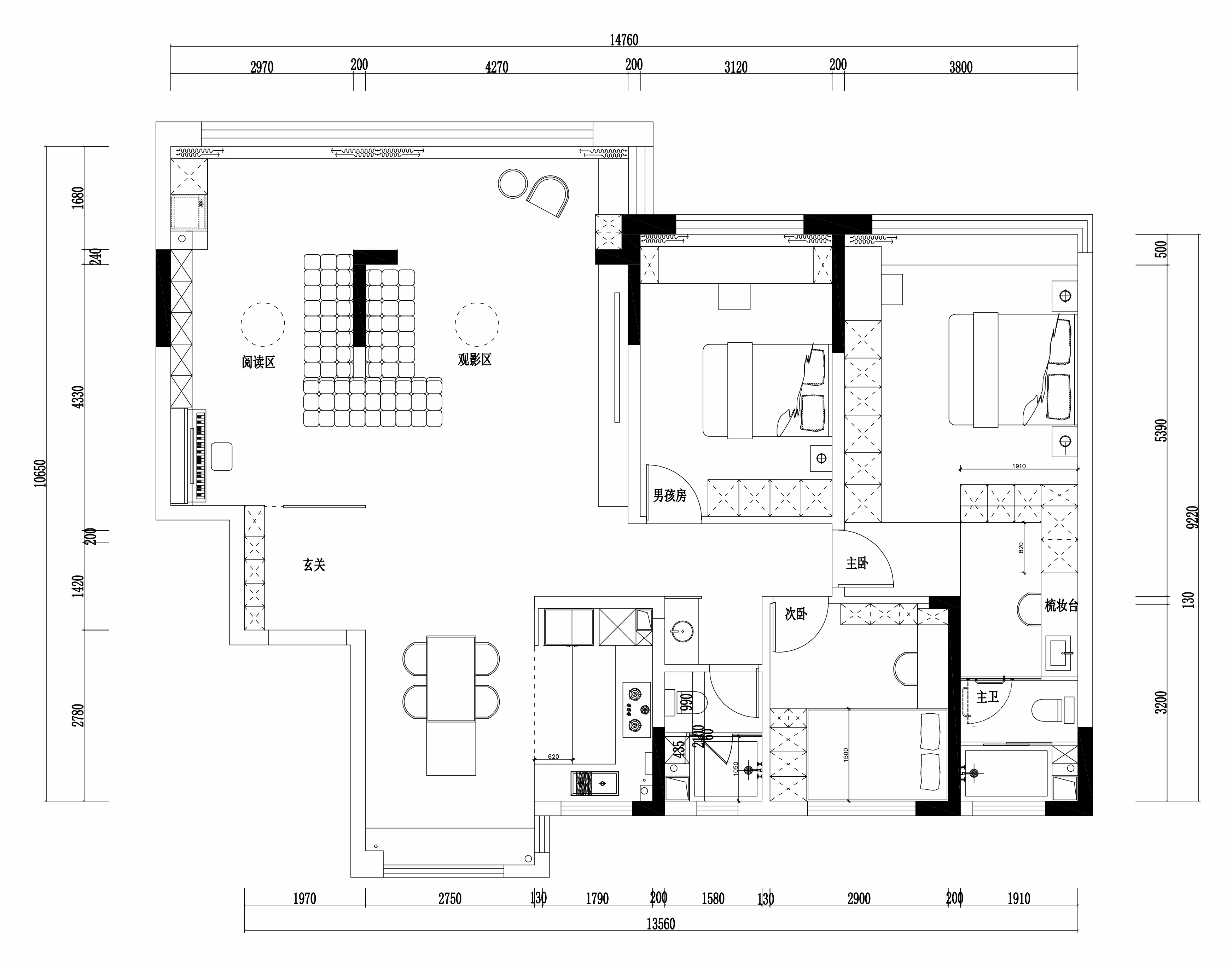
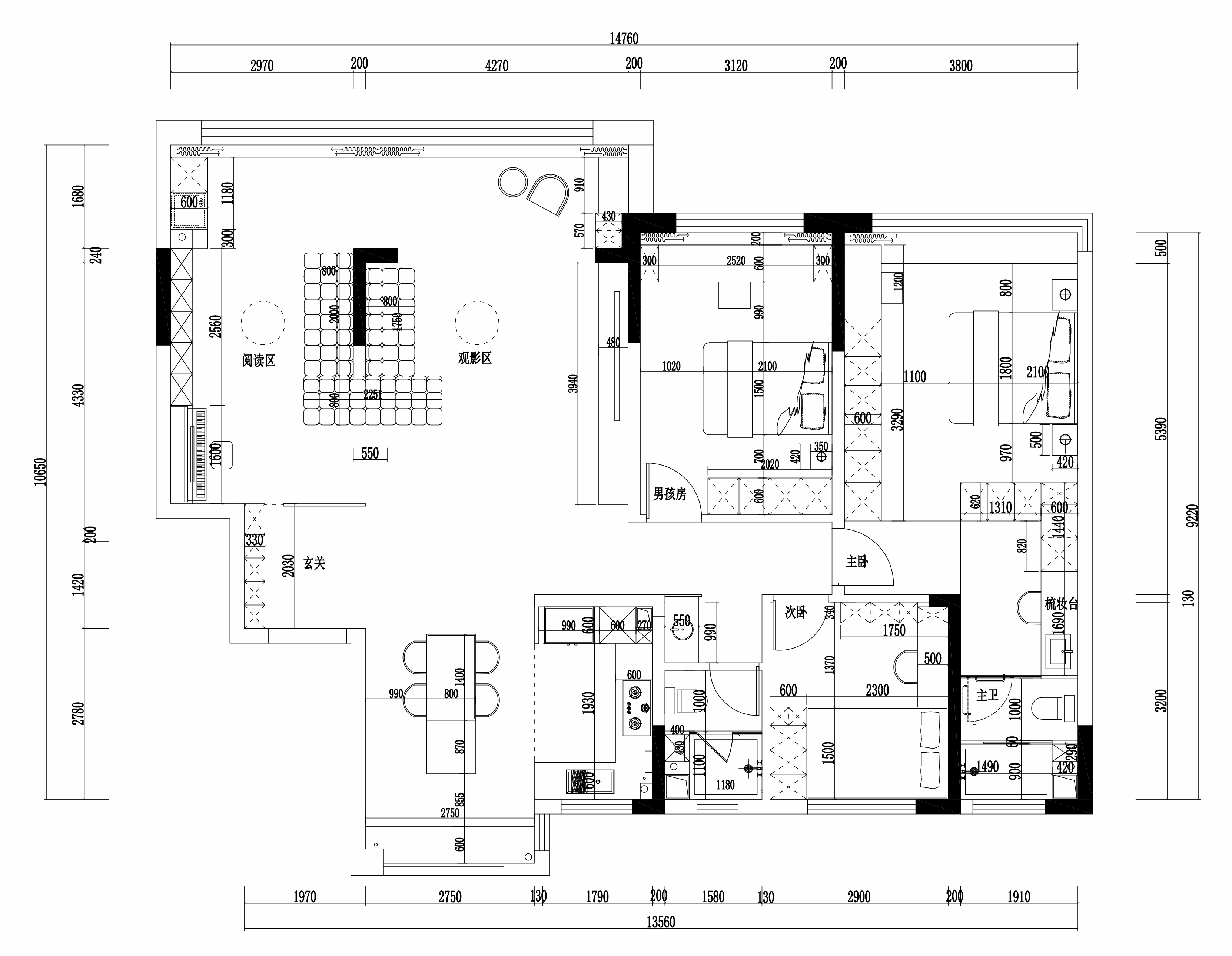
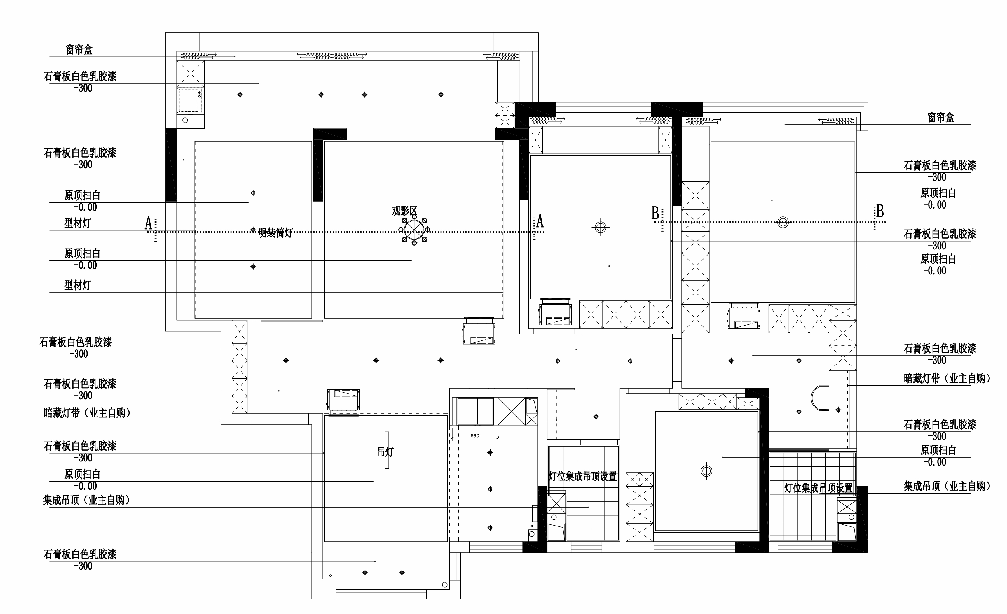
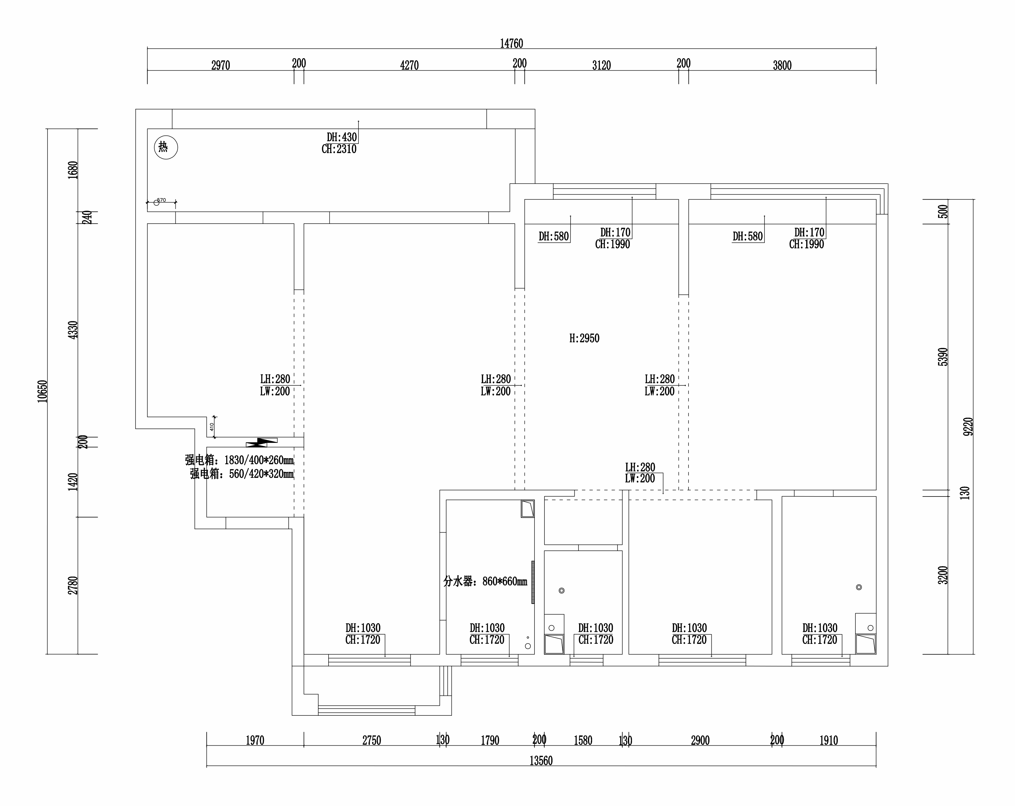
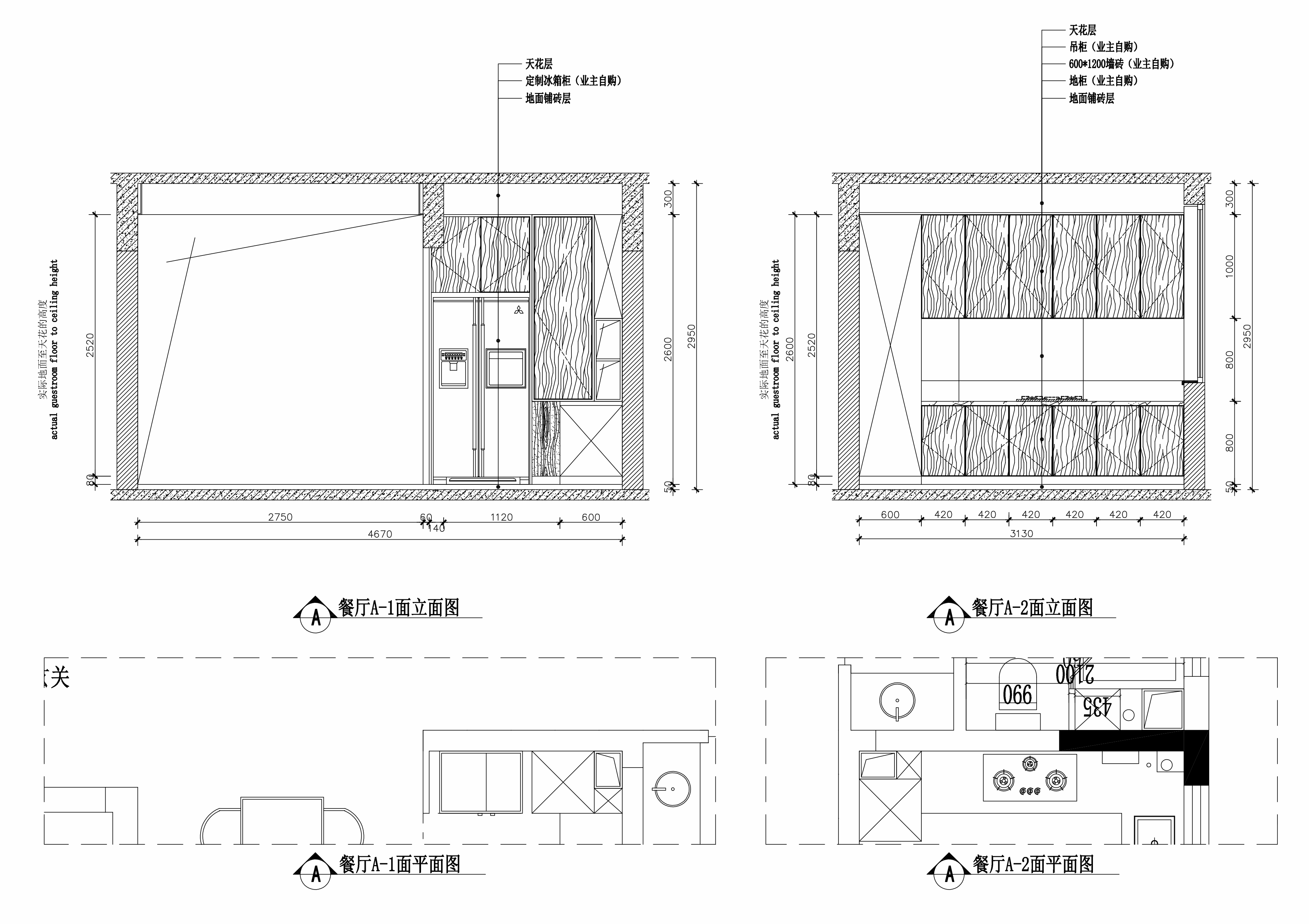
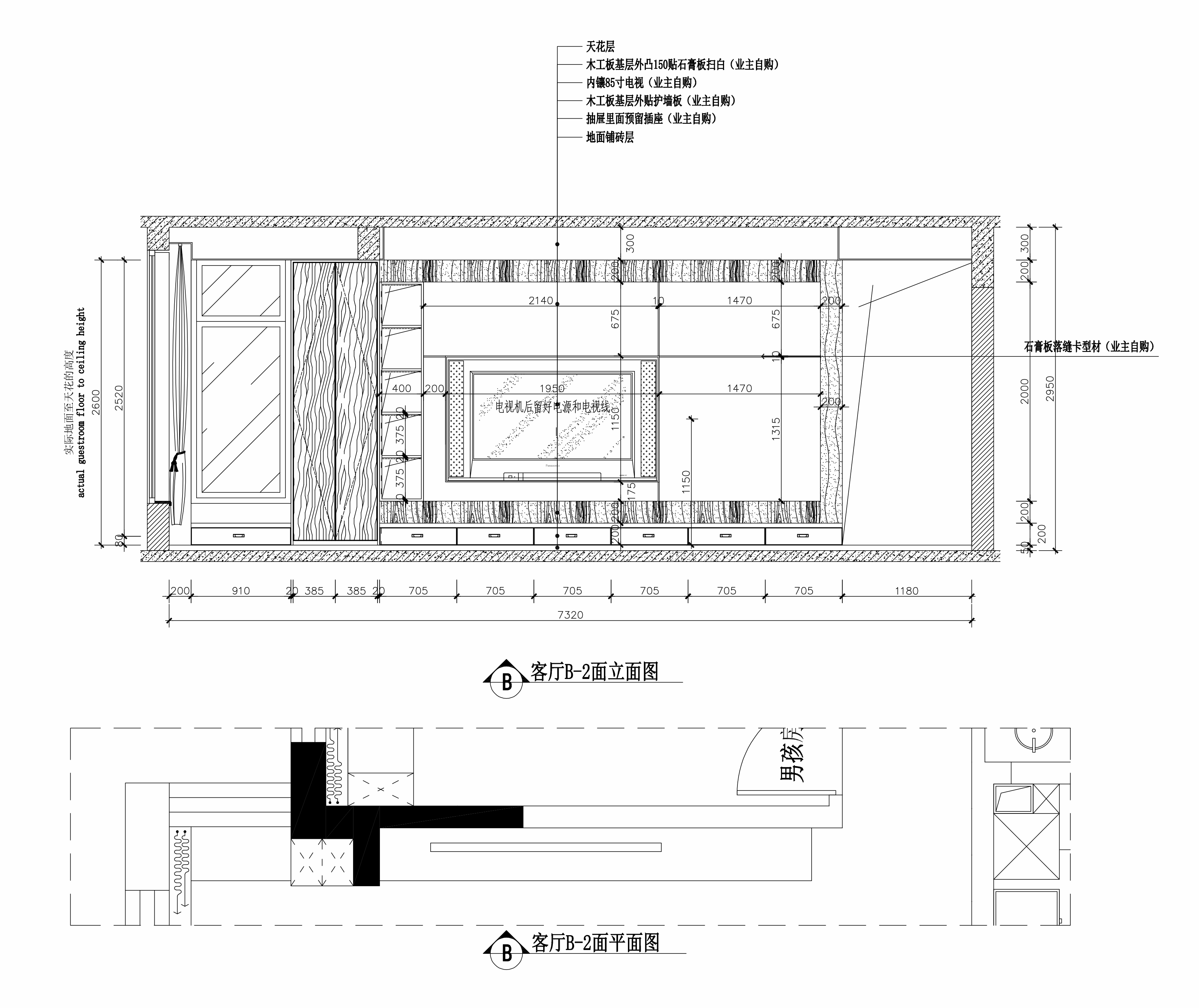
  • 项目名称:“家” 项目地点:烟台·金科博翠山项目面积:165 本方案设计主要突出使用,其次才展现品味和满足审美,以现代风格为主题,在布局上尽量满足业主生活上的需求。 现代人们随着网络的发展,人们 家人 朋友的交流越发的依靠网络少了能么一丝人情味,“家”的交流也发生变化,所以本案设计以“家”为主体希望打造出更好的满足一家人 朋友 之间的交流和联系的空间,以空间为主体让家人之间都放松下来彼此沟通。 打掉了一个房间扩大了客厅的整体面积,空间整体采用了暖色调可以让一家人更加的放松舒适但是电视背景墙用了黑白撞色一个搭配,拉伸主体空间不显空间单调,沙发采用一个背靠背的设计在不破坏承重墙的前提下来利用空间连接两个空间成为一体
  • 图片
  • 图片
  • 图片
  • 图片
  • 图片
  • 图片
  • 图片
  • 图片
  • 图片
  • 图片
  • 图片
  • 图片
  • 图片
  • 图片
  • 图片
  • 图片
  • 图片
  • 图片
  • 图片
  • 图片
  • 图片
  • 图片
  • 图片
  • 图片
  • 图片
  • 图片
  • 图片
  • 图片
  • 上一个 下一个
    《金腾奖优秀作品年鉴》 私宅丨地产丨餐饮丨酒店丨办公丨商业丨公共丨产品丨公益丨人气 jintengAWARD(小金_金腾奖组委会) 广州市海珠区琶洲大道68号华新中心21楼
    金腾奖视频号 金腾奖小红书号 监制:闫虹
    统筹:吴佳佳
    运营:朱倩仪 王赫萱 张芷莹 胡岚恩 小金
    新媒体:王贝贝 严洁 侯乐 鹅姐
    经纪:刘译遥 石征 曹凯月
    技术:张桐 黄天佑
    最终解释权归金腾奖主办方所有