Jingmi
作品详情
  • Details of the work 标题横线
    头像或者logo
    图片 张杨
    城市:扬州
    公司: 华浔品位装饰集团扬州分公司
    参赛作品: 静谧
    空间类型:公寓(150㎡以下)
    个人/公司简介:
    姓名:张杨 英文名:Robin 个性签名:苛求细节,铸造经典。追求功能性与艺术性的统一! 毕业院校:南昌大学艺术系建筑装饰专业 社会身份:原华浔品位装饰集团扬州分公司ACE念组设计总监 、 华浔艺墅院设计老师,中国室内设计分会专业会员、中国室内设计师协会会员 擅长风格:新中式、欧式、现代等 所获荣誉: 2008年成都家装设计大赛优秀奖 2009年成都家装设计大赛二等奖 2011年扬州首席公馆杯设计大赛优秀奖\t 2012年扬州红星美凯龙设计龙之师家装设计大赛一等奖 2014年扬州华浔设计奥斯卡 2016年荣获集团“业绩骑士”称号,等等 设计理念:感性与理性的融合,彰显居家之美 楼盘作品名称:天俊华府、锦园、森林湖、紫金文昌、金鑫朗郡、世纪豪园、品尊国际、瘦西湖院子、扬州天下、虎豹郡王府、凤凰城、京华城等
    设计说明 | Design Instruction
  • 首先感谢客户的选择,本案是位于扬州南区的一个双拼别墅,属于改善型住宅。 万物皆无相,场域只有在无限的空间中才能实现不断的重组筑构,焕新不设限的场域生命力。 所以本案我们规避原始结构的一些限制条件,消除原来阳台,客厅,餐厅过道间的区域框架,以不局限于单一功能的一体化布局,将自由的状态散落在空间的每一处,将更多对于生活的想象交还给业主,也令视觉无限拉大,实现一个可多变性,大尺度通透的豪宅空间。 不同材质的组合应用,营造质感独特空间,当一切放松下来,伴着或暗或亮的光,居家的每一个细节都散发出对生活的感悟,也自然的让身体与内心都愉悦起来。
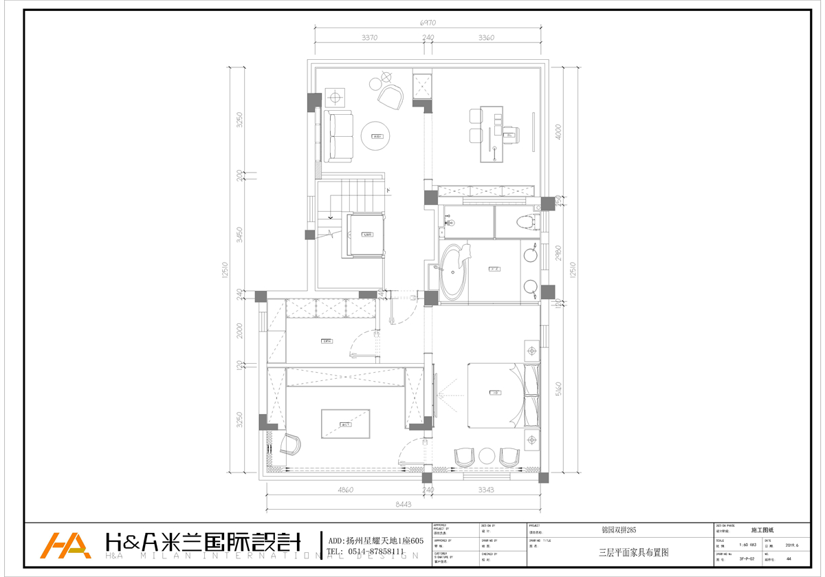
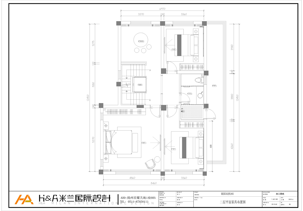
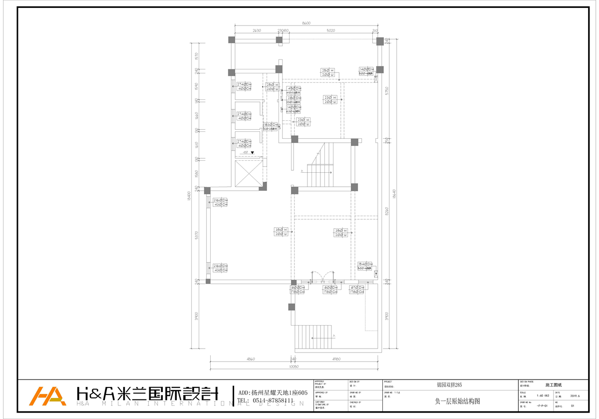
  • 图片
  • 图片
  • 图片
  • 图片
  • 图片
  • 图片
  • 图片
  • 图片
  • 图片
  • 图片
  • 图片
  • 图片
  • 图片
  • 图片
  • 图片
  • 图片
  • 图片
  • 图片
  • 图片
  • 上一个 下一个
    《金腾奖优秀作品年鉴》 私宅丨地产丨餐饮丨酒店丨办公丨商业丨公共丨产品丨公益丨人气 jintengAWARD(小金_金腾奖组委会) 广州市海珠区琶洲大道68号华新中心21楼
    金腾奖视频号 金腾奖小红书号 监制:闫虹
    统筹:吴佳佳
    运营:朱倩仪 王赫萱 张芷莹 胡岚恩 小金
    新媒体:王贝贝 严洁 侯乐 鹅姐
    经纪:刘译遥 石征 曹凯月
    技术:张桐 黄天佑
    最终解释权归金腾奖主办方所有