wankediwuyuan
作品详情
  • Details of the work 标题横线
    头像或者logo
    图片 陈坤 华浔品味装饰集团特约推荐
    城市:扬州
    公司: 广东华浔品味装饰集团江苏有限公司扬州分公司
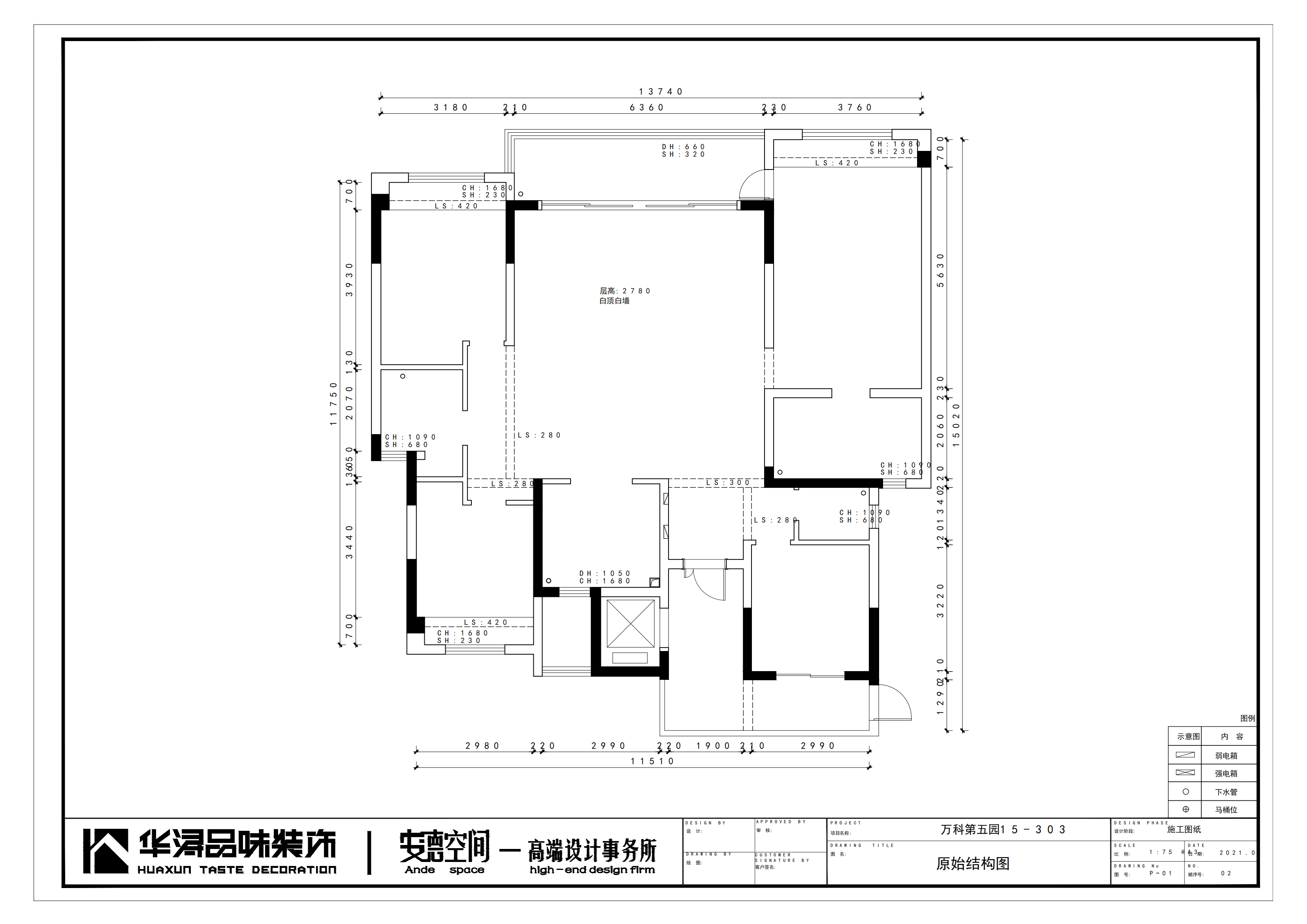
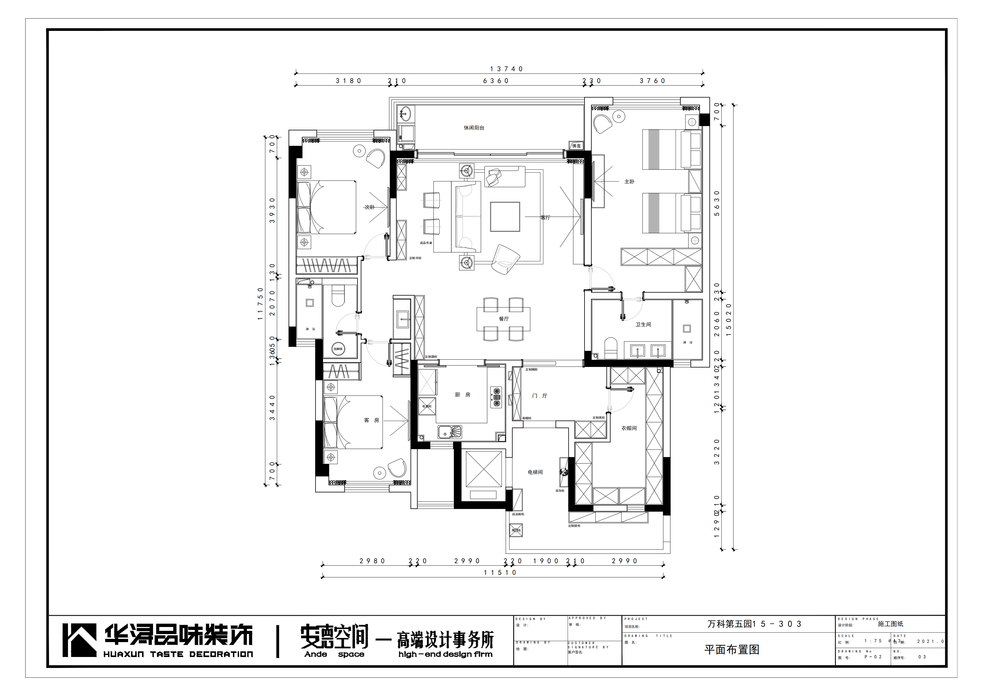
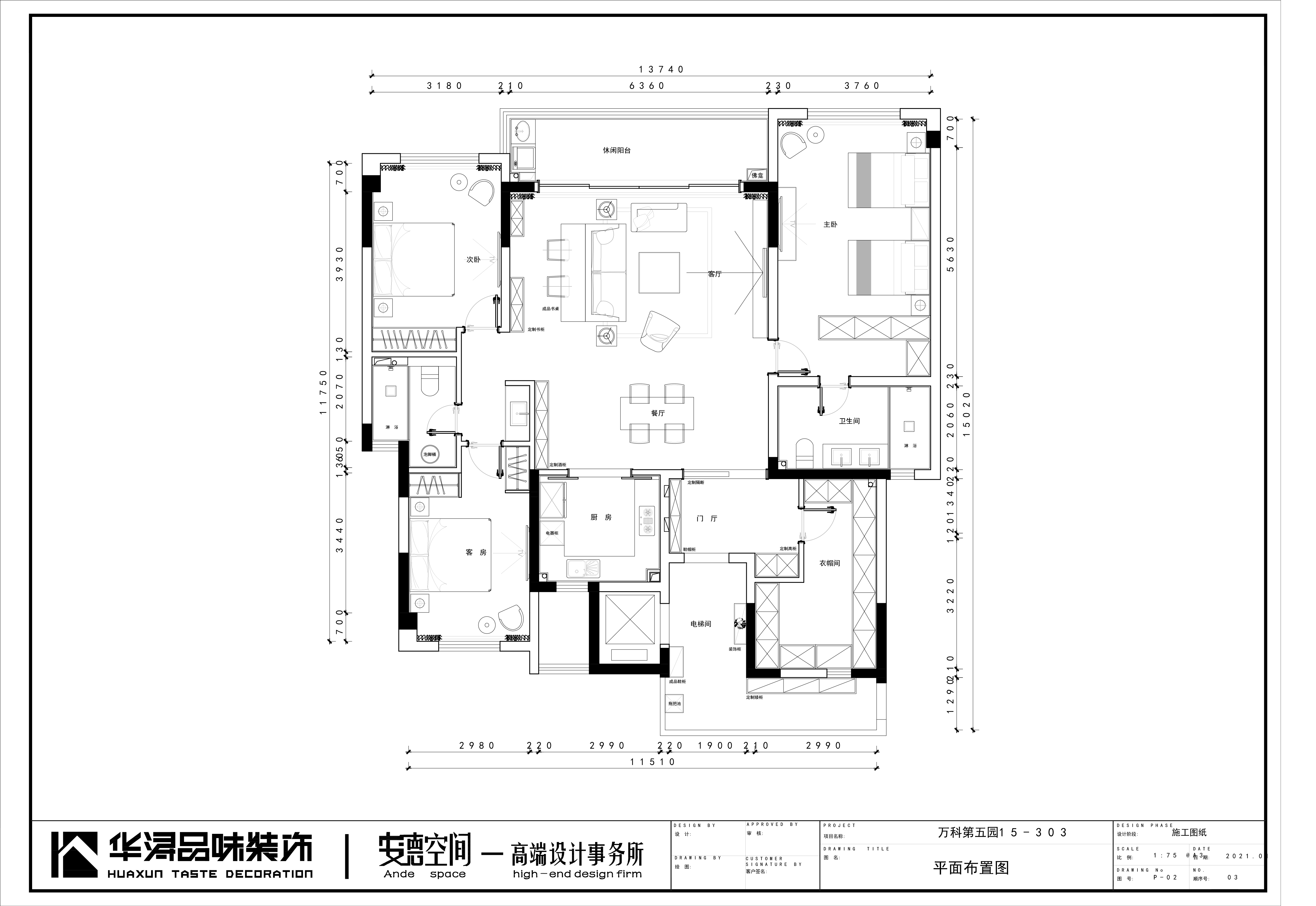
    参赛作品: 万科第五园
    空间类型:公寓(150㎡以下)
    个人/公司简介:
    毕业院校:江西丰良国际艺术学院 工作经历:2008年至今从事室内设计行业 所获荣誉: 中国室内设计师大赛优秀奖 室内空间环境艺术设计大赛优秀奖 红星美凯龙室内设计师大赛一等奖 华浔江苏大区金马克杯优秀奖 擅长风格:现代、新中式、诧寂风…
    设计说明 | Design Instruction
  • 在设计师的构思里,现代风格是一种追求极致简洁的美。 进入玄关,餐客厅开放式的空间场域,一整面墙的落地玻璃窗。将整个户外自然风光融入,眼前看到的自然景观跟空间体验所感动,不仅将自然邀请回家,其自身也成为一种别样的景致。 客餐厅在材质的应用上相互呼应,视觉上用石材背景配实木线条,整体尽显和谐。 米白色墙面,精致的凹凸线条电视背景墙饰,于细节中见品质,简约不规则饰品,将空间色彩平衡感把握得恰到好处,简约中透出不拘一格的时尚气息。 主人睡房贯彻整体设计,浅色床背景墙饰与整体空间格调相呼应,配衬两侧墙面金属质感十足的壁灯,以深色抱枕和搭毯来点缀,用色彩和材质演绎出独有的气质。你可安坐于窗边,远眺窗外风光,放松身心。 主卫采用干湿分区的布局,洗漱区用以镜面柜设计,不可小觑其独特的储存方式。一个舒适的主卫体现了户主的生活状态。在劳累一天后,可以在这里尽情放松,享受完全属于自己的时刻。 项目名称|万科-第五园 项目地点|扬州 主创设计|陈坤 主要材料|爵士白大理石、石英石、仿石瓷砖、橡木染深木地板、浅色木饰面、米灰色烤漆饰面、布艺、布艺硬包。
  • 图片
  • 图片
  • 图片
  • 图片
  • 图片
  • 图片
  • 图片
  • 图片
  • 图片
  • 图片
  • 图片
  • 图片
  • 图片
  • 图片
  • 图片
  • 图片
  • 图片
  • 图片
  • 图片
  • 图片
  • 图片
  • 图片
  • 图片
  • 图片
  • 图片
  • 上一个 下一个
    《金腾奖优秀作品年鉴》 私宅丨地产丨餐饮丨酒店丨办公丨商业丨公共丨产品丨公益丨人气 jintengAWARD(小金_金腾奖组委会) 广州市海珠区琶洲大道68号华新中心21楼
    金腾奖视频号 金腾奖小红书号 监制:闫虹
    统筹:吴佳佳
    运营:朱倩仪 王赫萱 张芷莹 胡岚恩 小金
    新媒体:王贝贝 严洁 侯乐 鹅姐
    经纪:刘译遥 石征 曹凯月
    技术:张桐 黄天佑
    最终解释权归金腾奖主办方所有