Yangzhouyishuyuan
作品详情
  • Details of the work 标题横线
    头像或者logo
    图片 黄松佳
    城市:扬州
    公司: 华浔品味装饰集团
    参赛作品: 扬州艺墅院
    空间类型:公寓(150㎡以下)
    个人/公司简介:
    姓名:黄松佳 英文名:Kevin 个人简历: 香港室内设计师协会专业会员 国际大学生空间设计大赛特邀专业导师 中国注册室内设计师 中国室内设计师协会顾问 国家优秀设计师! 荣获奖项: 荣获中国十佳住宅设计师优秀奖 被评为全国住宅装饰装修行业优秀设计师 荣获法国双面神创新设计大赛奖 荣获金创意奖国际空间设计大赛获奖作品强全国巡展----迪拜站 荣获第三届金创意国际空间设计大赛“十大精英设计师奖” 荣获国际环艺创新设计作品大赛(别墅空间)一等奖 荣获国际环艺创新设计作品大赛(餐厅空间)一等奖 荣获第五届中国国际空间环境艺术设计大赛筑巢奖“别墅空间优秀创意奖” 荣获第十届中国国际室内设计双年展“蔚雅·品味空间创意奖” 荣获CIDA中国室内设计奖居住空间·住宅设计创意奖 获得第六届中国国际空间环境艺术设计大赛筑巢奖“别墅空间优秀奖” 2019届金马克杯中国国际设计赛(工装)一等奖 设计理念: 设计源于生活,细节成就品质!在有限空间,做无限设计,追求完美的生活态度,追求品味的生活概念,灵感自由释放!一切随心,用心去感悟空间!
    设计说明 | Design Instruction
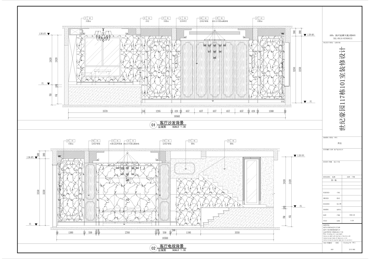
  • 楼盘:世纪豪园 面积:450 风格:中式 独栋 (四室三厅) 作品名称:静世芳华 本案业主从事玉器生意几十年,对于一切有韵味的物品都喜欢收藏。对于中式设计,与其说是一种“风格”,不如说是根植于中国人心中的情怀和生生不息的文化传承,沉淀千年,在不失传统韵味的空间中,营造出了最适合中国人居住的生活方式。 “若有诗意藏于居,岁月从不败美人”你给生活意境,生活给予你风景;你待人从容,自有一番诗意。用情怀去感知生活中的美好,你会发现生活中无处不在的诗意。 整个空间设计上遵循中式文化的精髓,从而突出清新淡雅、内敛含蓄,亦张亦弛中让你品鉴东方美学底蕴。少去了繁复的雕刻花纹,融入线条的写意,让整个空间带有一种中式的美感,一扇窗、一道门、一幅画都能给人停靠过去、怀念旧时光的浪漫。 客厅高大的落地窗将室外美景展露无疑,恰到好处的点缀着空间。电视背景墙以中式花纹原木饰面与灰色调石材勾勒出柔大气之风;沙发背景墙以简洁的木饰面配以层峦跌宕的山峰与苍翠挺拔的迎客松,于简单中流露出低调奢华的气息,也让人由此看出主人的热情好客、坚韧傲骨、勇于突破极限的激励精神。 细节处的质感是最能体验奢华的存在,含蓄而带些骄矜,是极尽绚烂之后的朴素,是低调淡然的空间气质。 庭院整体设计我觉得用一首诗更形象生动。 《暮年》 杜甫 你我暮年,闲坐庭院。 云卷云舒听雨声,星密星稀赏月影。 花开花落忆江南,你话往时,我画往事。 愿有岁月可回首,且以深情共白头。
  • 图片
  • 图片
  • 图片
  • 图片
  • 图片
  • 图片
  • 图片
  • 图片
  • 图片
  • 图片
  • 图片
  • 图片
  • 图片
  • 图片
  • 图片
  • 图片
  • 图片
  • 图片
  • 图片
  • 图片
  • 图片
  • 图片
  • 图片
  • 图片
  • 图片
  • 图片
  • 图片
  • 图片
  • 图片
  • 图片
  • 图片
  • 图片
  • 图片
  • 图片
  • 图片
  • 图片
  • 图片
  • 图片
  • 图片
  • 图片
  • 图片
  • 图片
  • 图片
  • 图片
  • 上一个 下一个
    《金腾奖优秀作品年鉴》 私宅丨地产丨餐饮丨酒店丨办公丨商业丨公共丨产品丨公益丨人气 jintengAWARD(小金_金腾奖组委会) 广州市海珠区琶洲大道68号华新中心21楼
    金腾奖视频号 金腾奖小红书号 监制:闫虹
    统筹:吴佳佳
    运营:朱倩仪 王赫萱 张芷莹 胡岚恩 小金
    新媒体:王贝贝 严洁 侯乐 鹅姐
    经纪:刘译遥 石征 曹凯月
    技术:张桐 黄天佑
    最终解释权归金腾奖主办方所有