anzhiruosu
作品详情
  • Details of the work 标题横线
    头像或者logo
    图片 胡安 华浔品味装饰集团特约推荐
    城市:扬州
    公司: 广东华浔品味装饰集团江苏有限公司扬州分公司
    参赛作品: 安之若素
    空间类型:公寓(150㎡以下)
    个人/公司简介:
    胡 安 2001年毕业于中国景德镇陶瓷学院 2002年进修广州美院 中国第四届室内设计双年展优秀奖: 2005 年 7 月荣获广东省样板房设计大赛三等奖 2008 年海口家装环保设计大赛优秀奖 2003---2011年艺邦集团优秀员工 2011 年扬州首席公馆设计大赛最佳设计奖 2012 年扬州市华浔品味优秀部门经理。 2015 年扬州市华浔品味最佳业绩奖兼优秀员工. 设计作品:广东桑巴丝会所设计装修(2000㎡) 广东惠州东江首府会所设计装修(3000㎡) 海口市屯昌“四星级”紫荆大酒店设计装修(5600㎡) 海口中铁二院写字楼设计装修(1700㎡) 常州珍语茶访设计装修(380㎡) 常州武进金小姐茶楼设计装修(1200㎡) 扬州虎豹郡王俯洪总别墅设计装修(400㎡) 扬州金湖湾孙小姐别墅设计装修(450㎡) 扬州京华城陈姐别墅设计装修(450㎡) 扬州东关古渡金苹果早教中心设计装修(900㎡) 扬州御园D-8徐总别墅设计装修(600㎡)
    设计说明 | Design Instruction
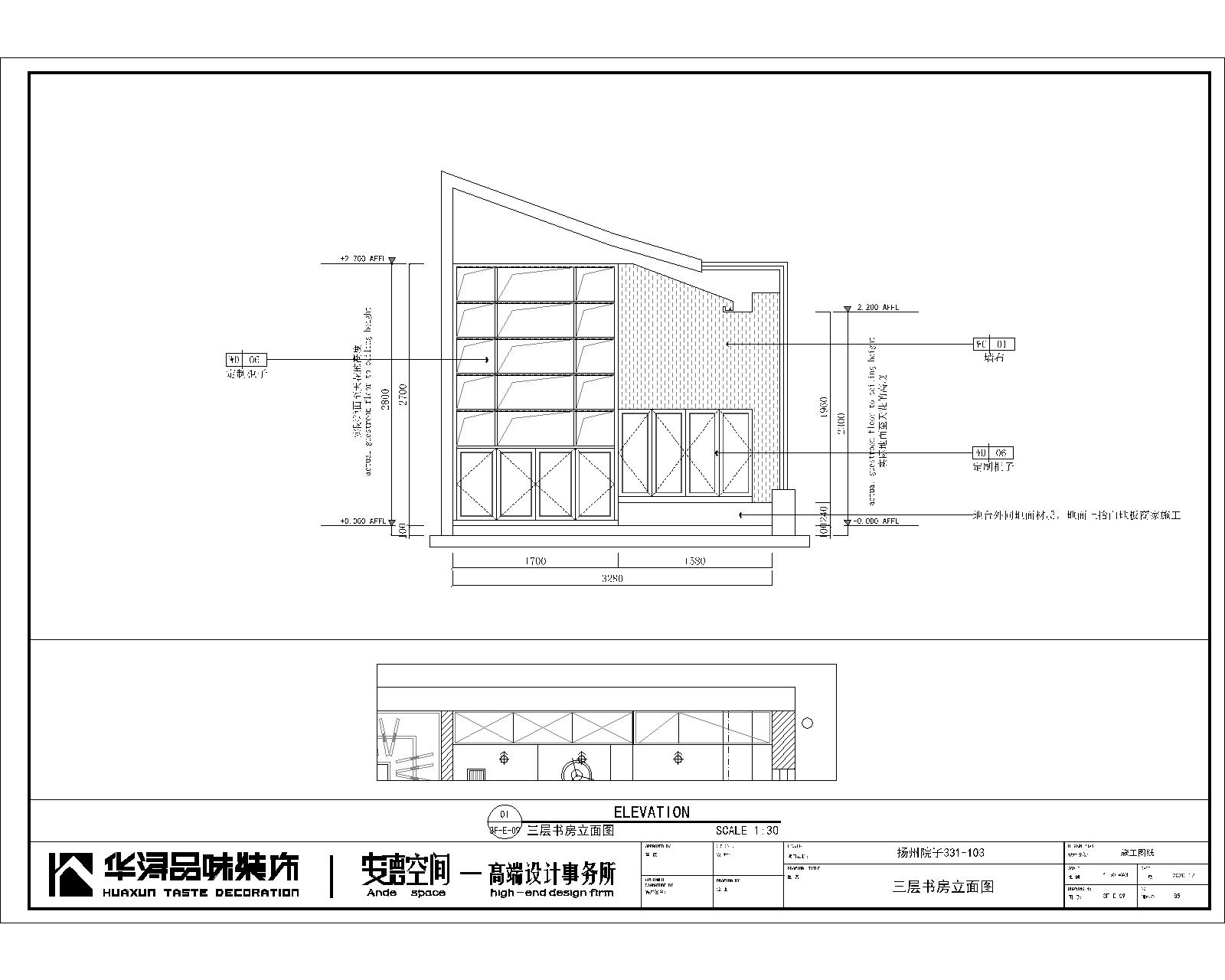
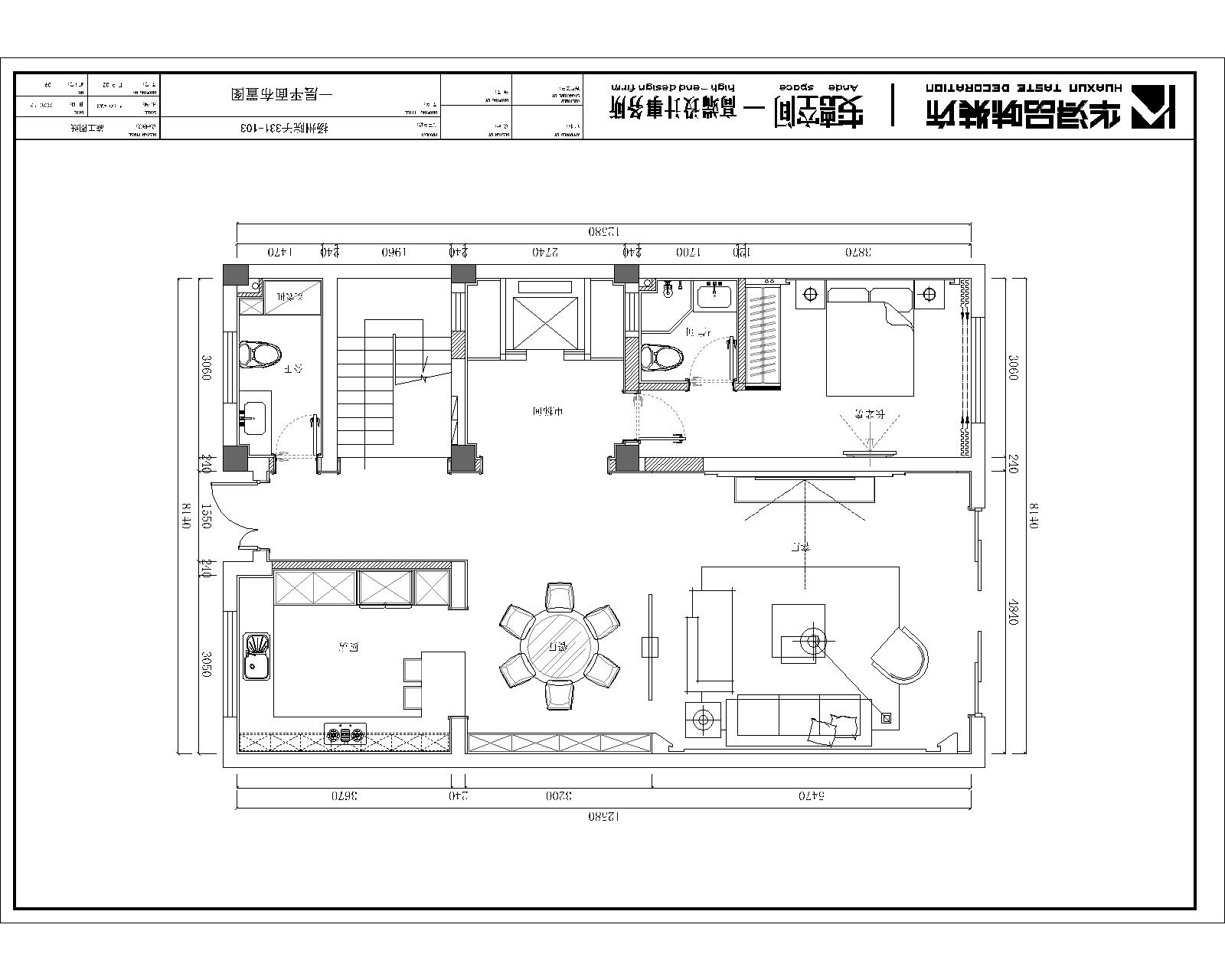
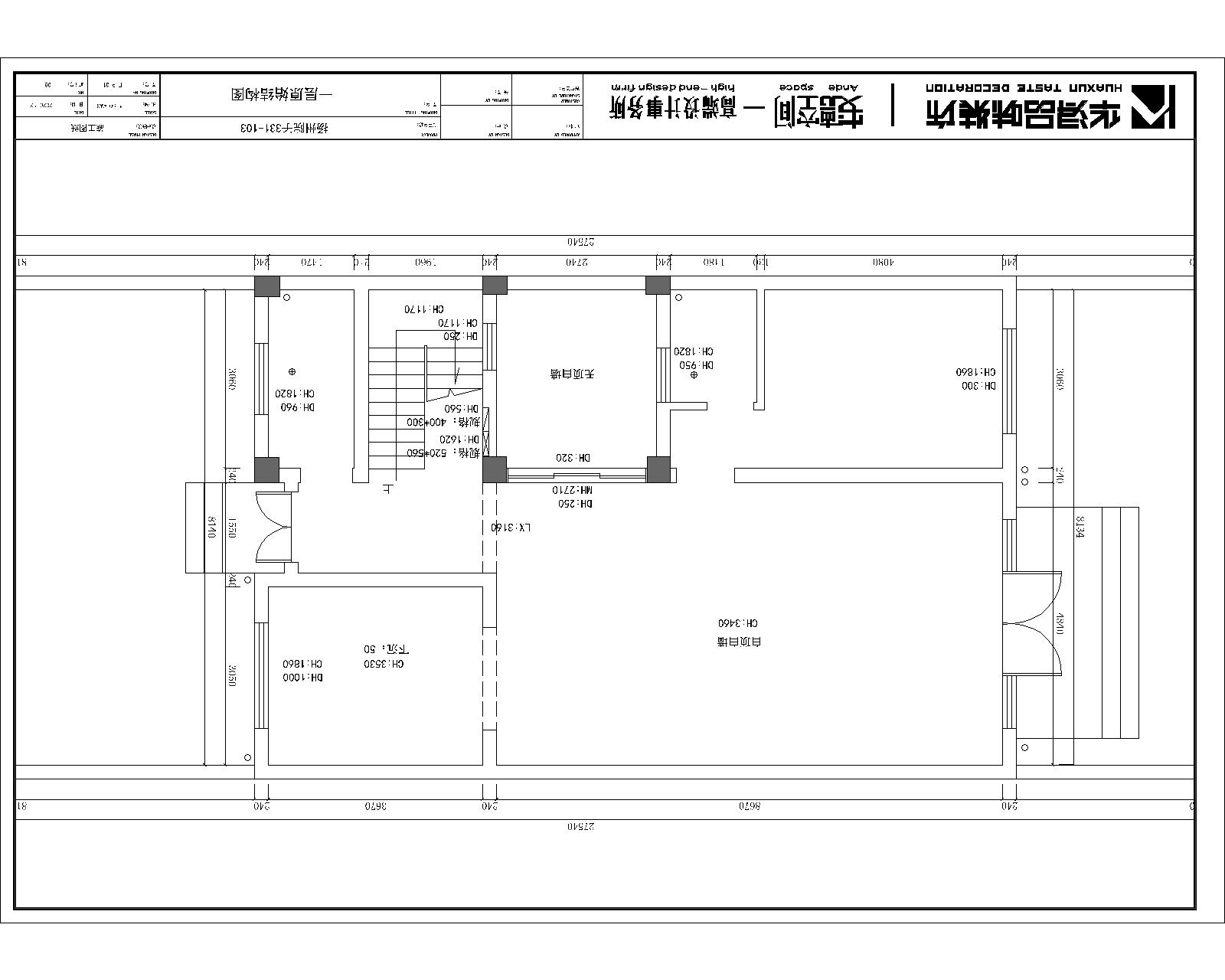
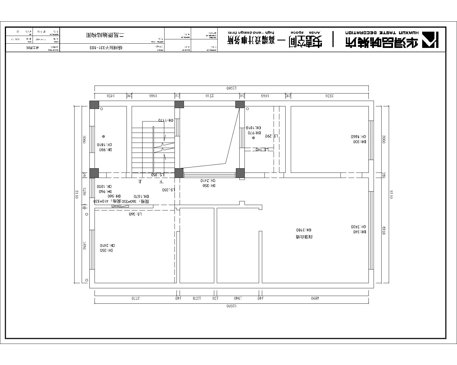
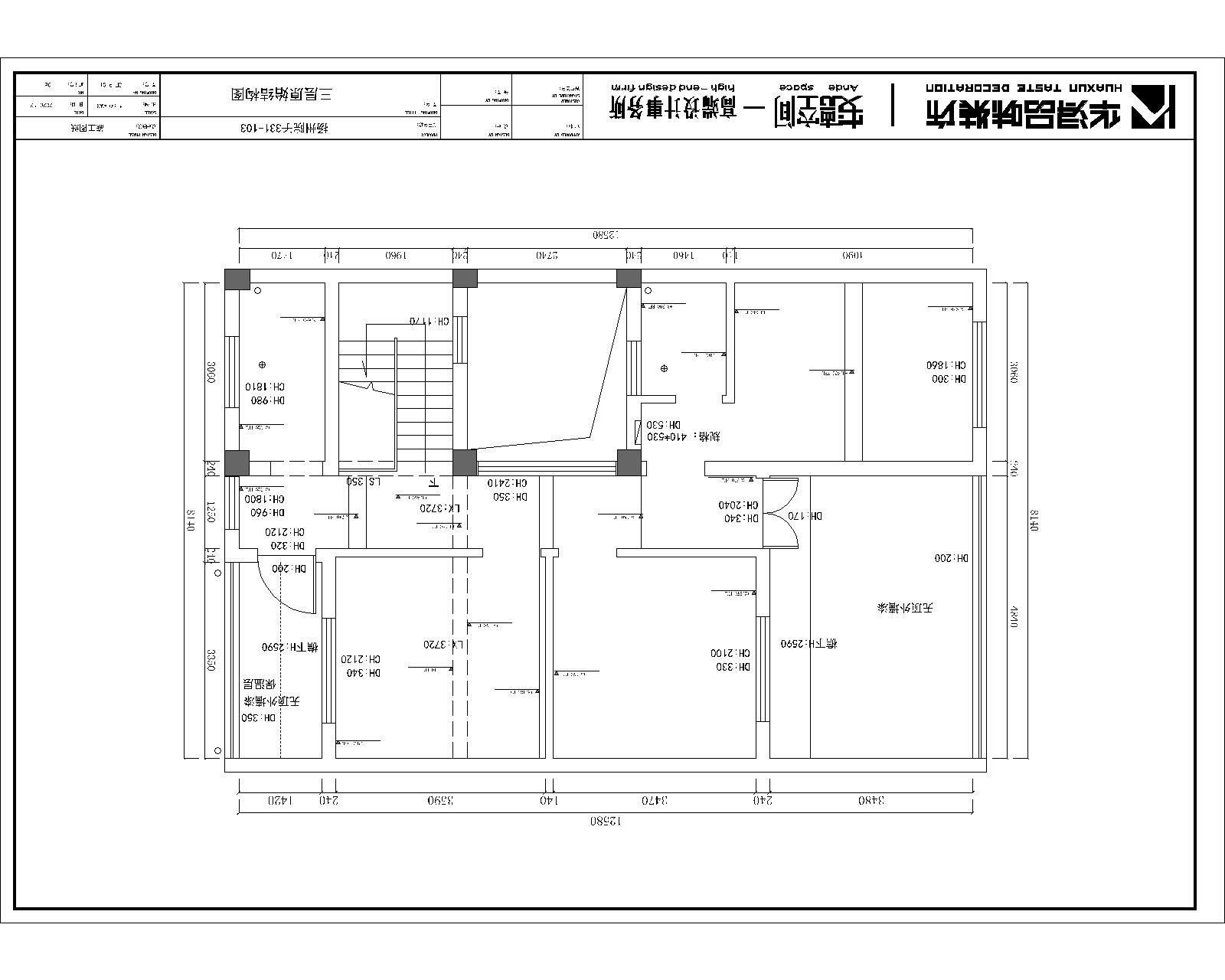
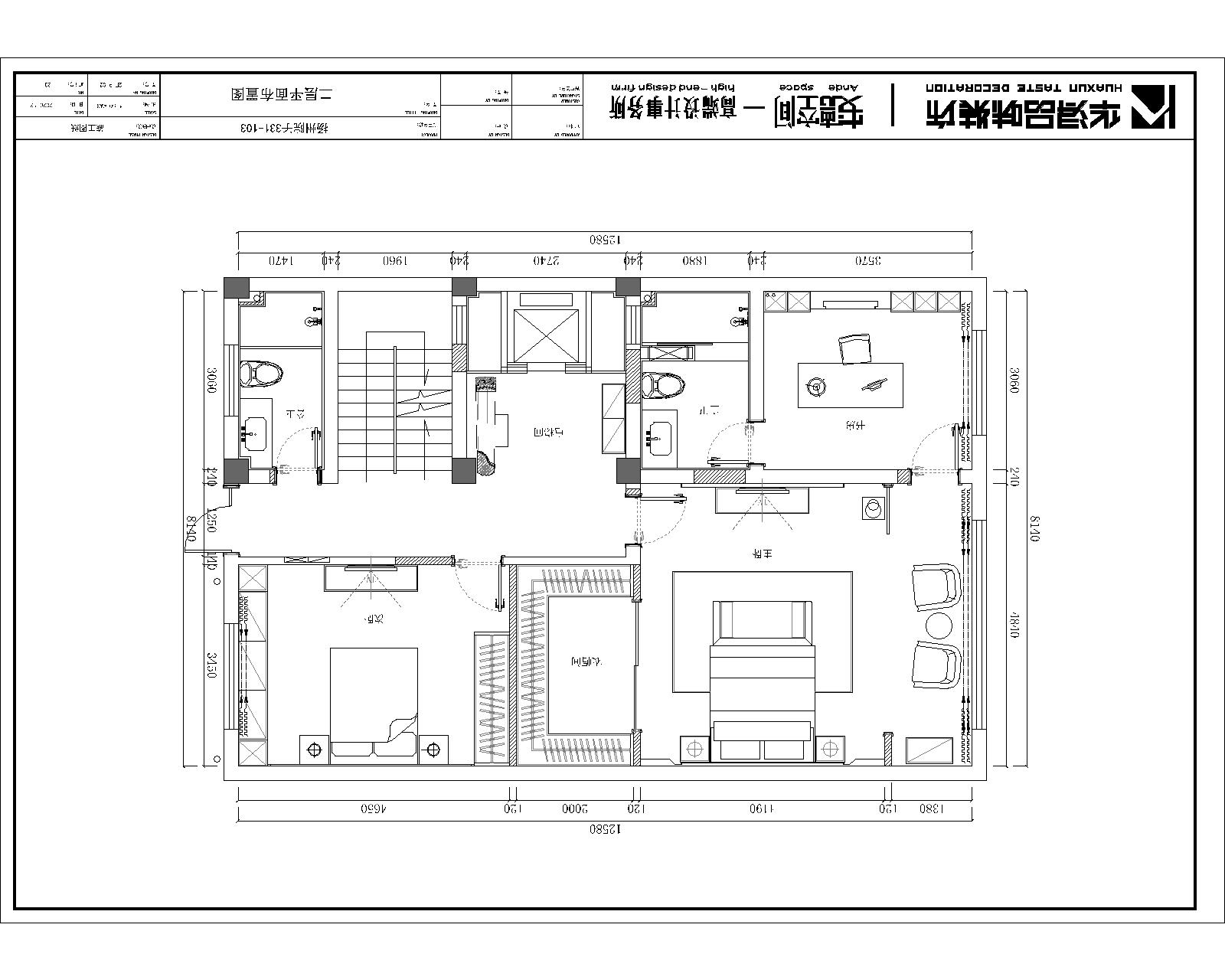
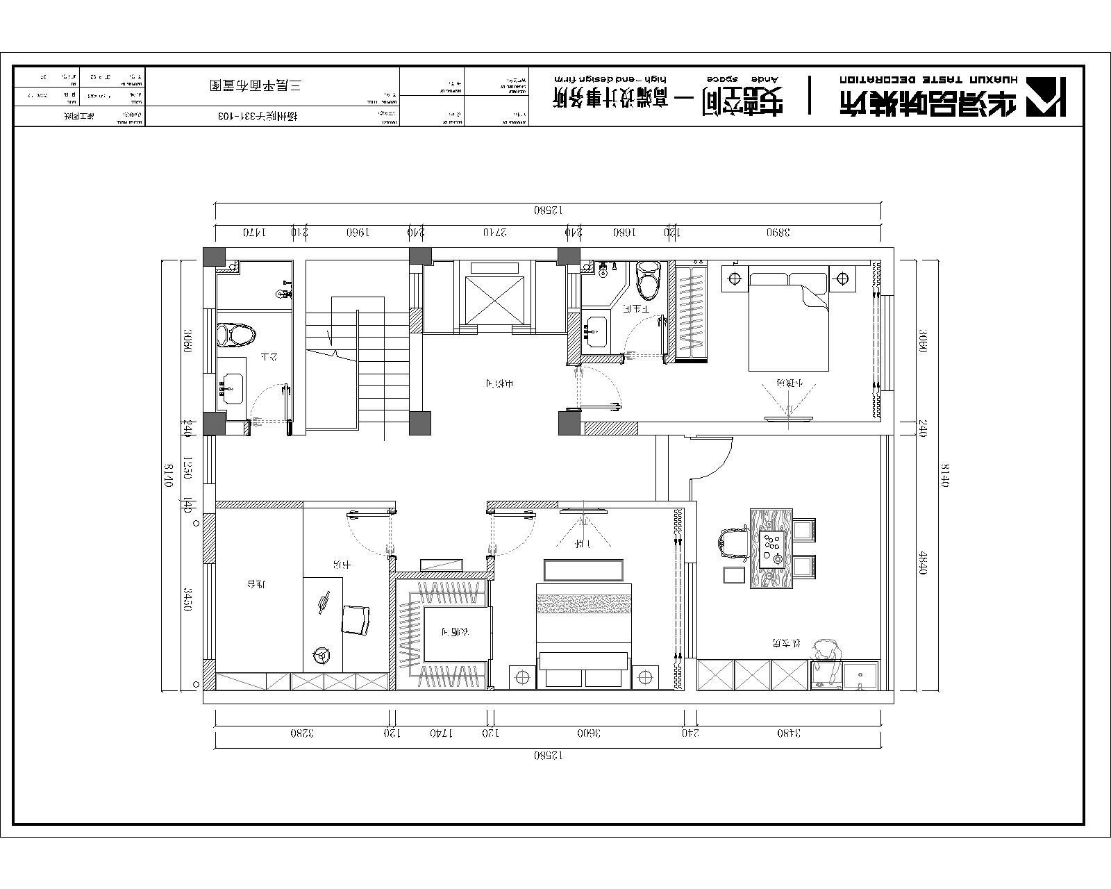
  • 首先,我们考虑到业主的需求,将主卧室、客厅、餐厅和厨房等主要区域设置在一层。而楼上的四个卧室则是业主用于接待客人或家庭成员住宿的区域。厨房和餐厅相连,方便业主在家里享受美食之旅。客厅和餐厅均设有大型落地窗,可让采光充足的自然光线进入室内,营造出宜人的氛围。 为了突出别墅的豪华和舒适,在设计中,我们选择了高档的建筑材料和家具来装饰和装修。墙壁和地面均采用了大理石材质,同时地面放置柔软的地毯加强人们行走时的舒适感。厨房内设有全套高品质不锈钢厨具和花岗岩台面,为业主提供出色的烹饪体验。卧室内装有舒适的特制床、高档床上用品,使业主享受到高品质的睡眠。
  • 图片
  • 图片
  • 图片
  • 图片
  • 图片
  • 图片
  • 图片
  • 图片
  • 图片
  • 图片
  • 图片
  • 图片
  • 图片
  • 图片
  • 图片
  • 图片
  • 图片
  • 图片
  • 图片
  • 图片
  • 图片
  • 图片
  • 图片
  • 图片
  • 图片
  • 上一个 下一个
    《金腾奖优秀作品年鉴》 私宅丨地产丨餐饮丨酒店丨办公丨商业丨公共丨产品丨公益丨人气 jintengAWARD(小金_金腾奖组委会) 广州市海珠区琶洲大道68号华新中心21楼
    金腾奖视频号 金腾奖小红书号 监制:闫虹
    统筹:吴佳佳
    运营:朱倩仪 王赫萱 张芷莹 胡岚恩 小金
    新媒体:王贝贝 严洁 侯乐 鹅姐
    经纪:刘译遥 石征 曹凯月
    技术:张桐 黄天佑
    最终解释权归金腾奖主办方所有