Jingshouhuakai
作品详情
  • Details of the work 标题横线
    头像或者logo
    图片 黄松佳
    城市:扬州
    公司: 华浔品味装饰集团
    参赛作品: 静守花开
    空间类型:公寓(150㎡以下)
    个人/公司简介:
    姓名:黄松佳 英文名:Kevin 个人简历: 香港室内设计师协会专业会员 国际大学生空间设计大赛特邀专业导师 中国注册室内设计师 中国室内设计师协会顾问 国家优秀设计师! 荣获奖项: 荣获中国十佳住宅设计师优秀奖 被评为全国住宅装饰装修行业优秀设计师 荣获法国双面神创新设计大赛奖 荣获金创意奖国际空间设计大赛获奖作品强全国巡展----迪拜站 荣获第三届金创意国际空间设计大赛“十大精英设计师奖” 荣获国际环艺创新设计作品大赛(别墅空间)一等奖 荣获国际环艺创新设计作品大赛(餐厅空间)一等奖 荣获第五届中国国际空间环境艺术设计大赛筑巢奖“别墅空间优秀创意奖” 荣获第十届中国国际室内设计双年展“蔚雅·品味空间创意奖” 荣获CIDA中国室内设计奖居住空间·住宅设计创意奖 获得第六届中国国际空间环境艺术设计大赛筑巢奖“别墅空间优秀奖” 2019届金马克杯中国国际设计赛(工装)一等奖 设计理念: 设计源于生活,细节成就品质!在有限空间,做无限设计,追求完美的生活态度,追求品味的生活概念,灵感自由释放!一切随心,用心去感悟空间!
    设计说明 | Design Instruction
  • 奢雅的艺术魅力 本案奢的质地与雅的气质,体现在每个细节及用材中。南北通透的大厅让空间更敞亮,家人互动更温馨。 旋转而上的楼梯,让空间更具延伸感,通过光影、材质、曲线感的设计,更显时尚与雅致。 为考虑拓宽空间,设计师巧借空间借景观,将厨房设为开放式,并以L形岛台为狭长的通道增添情趣。进入客厅超大落地玻璃窗让人与自然相融合,让家里的爱宠猫咪沐浴阳光之下随意撒欢。悬空的电视背景墙更是让原本2个不算宽阔的空间相连接,若隐若现,让每个空间形似互通又保持神秘。 主卧配套的衣帽间、精致的梳妆台,配以各种氛围灯,让空间更浪漫、安逸。 女孩房设计,将淡粉与珍珠白相融合,营造出公主风,屋内造型收纳柜既实用又美观,无数心爱之物置于此,时刻陪伴。 楼上家庭活动区片片梦幻帘,给空间增加一丝朦胧之美。结束一天的奔波,于家中浅酌慢饮,观影交流,惬意舒爽!
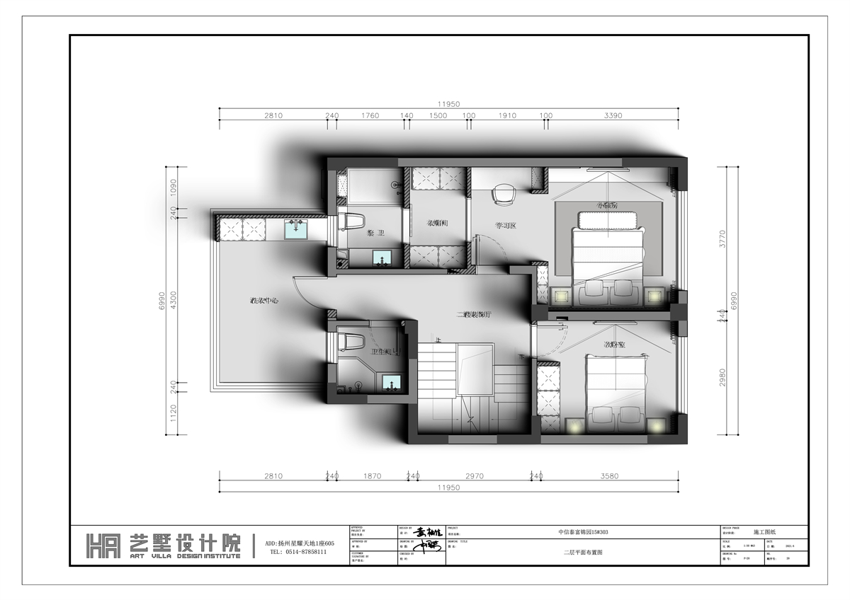
  • 图片
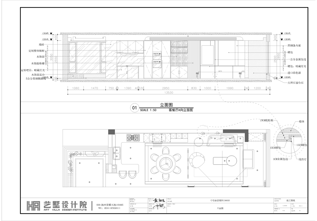
  • 图片
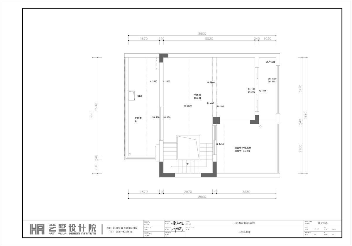
  • 图片
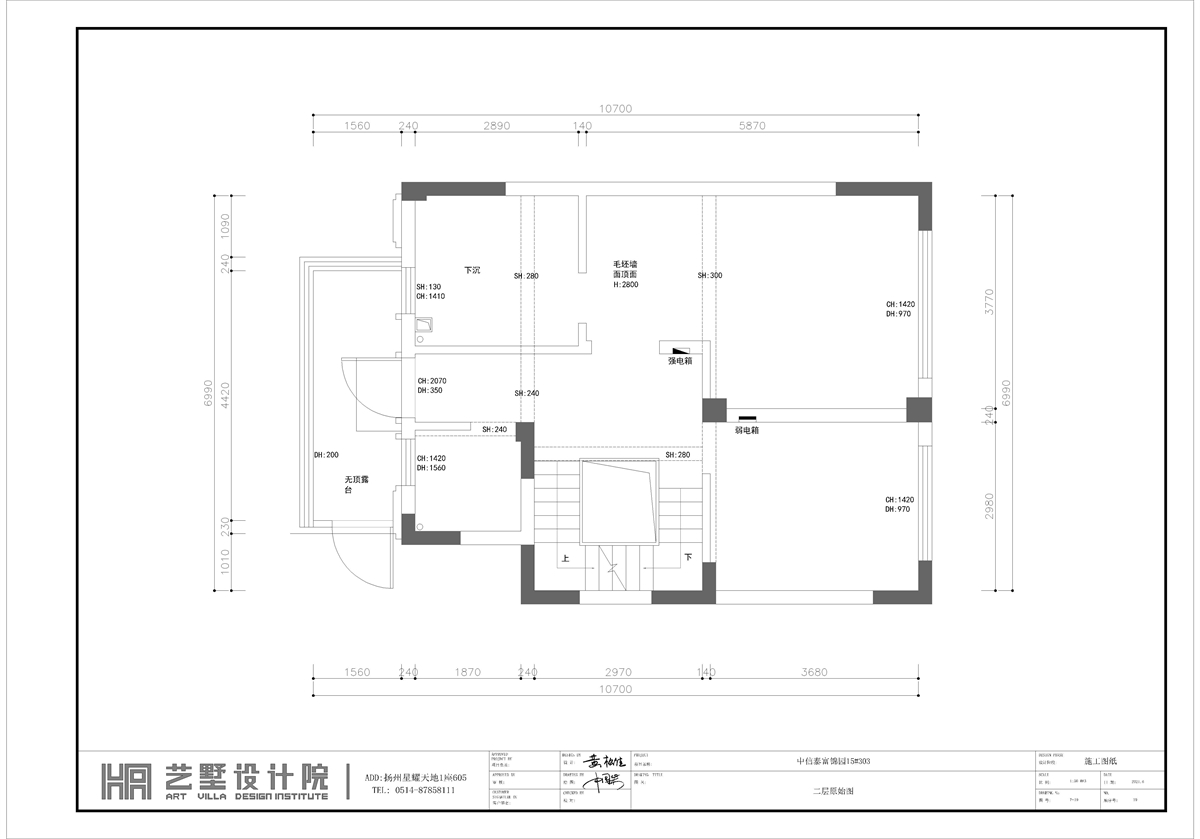
  • 图片
  • 图片
  • 图片
  • 图片
  • 图片
  • 图片
  • 图片
  • 图片
  • 图片
  • 图片
  • 图片
  • 图片
  • 图片
  • 图片
  • 图片
  • 图片
  • 图片
  • 图片
  • 图片
  • 图片
  • 图片
  • 图片
  • 图片
  • 图片
  • 图片
  • 图片
  • 图片
  • 图片
  • 图片
  • 图片
  • 图片
  • 图片
  • 图片
  • 图片
  • 图片
  • 图片
  • 图片
  • 图片
  • 图片
  • 图片
  • 图片
  • 图片
  • 图片
  • 图片
  • 图片
  • 图片
  • 图片
  • 上一个 下一个
    《金腾奖优秀作品年鉴》 私宅丨地产丨餐饮丨酒店丨办公丨商业丨公共丨产品丨公益丨人气 jintengAWARD(小金_金腾奖组委会) 广州市海珠区琶洲大道68号华新中心21楼
    金腾奖视频号 金腾奖小红书号 监制:闫虹
    统筹:吴佳佳
    运营:朱倩仪 王赫萱 张芷莹 胡岚恩 小金
    新媒体:王贝贝 严洁 侯乐 鹅姐
    经纪:刘译遥 石征 曹凯月
    技术:张桐 黄天佑
    最终解释权归金腾奖主办方所有