Tianhe New City
作品详情
  • Details of the work 标题横线
    头像或者logo
    图片 黄强 华浔品味装饰集团特约推荐
    城市:烟台
    公司: 无
    参赛作品: 天和新城
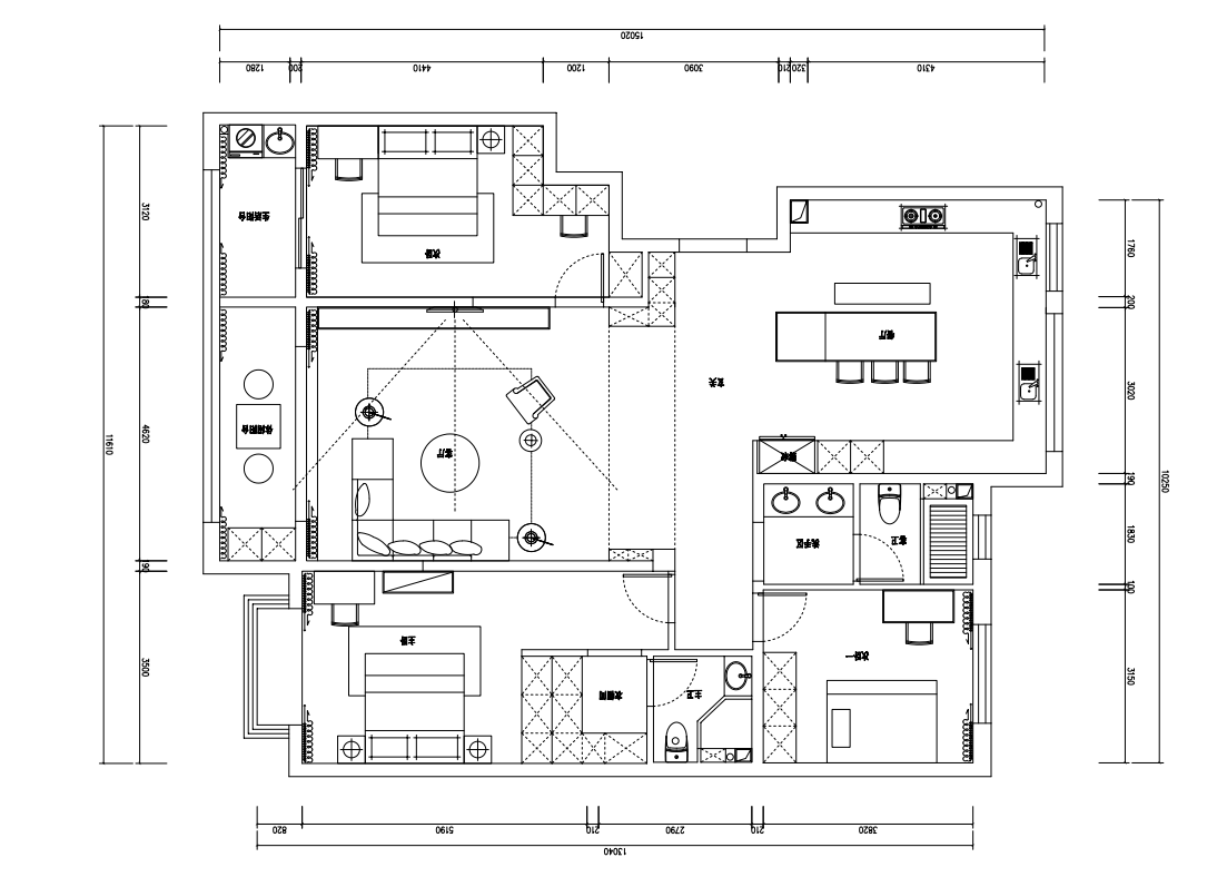
    空间类型:公寓(150㎡以下)
    个人/公司简介:
    从业9年 2011年毕业于江西南昌大学 中国建筑学会室内设计分会会员 2015 烟台室内设计师协会大赛二等奖 2016 年筑巢奖样板间设计类提名奖 2018 年国际空间设计大赛最佳住宅建筑设计入围奖 2019 中国设计·卓越青年城市榜(烟台地区)十强设计师 设计理念:设计的本质是解决问题,能够用简单的方式解决复杂问题的设计就是好的设计 设计应该能够尽可能多的传递对生活的热爱和欢乐的情绪
    设计说明 | Design Instruction
  • 设计说明: 在这个信息迅速发展的时代,人们在住的方面不仅仅是满足于遮风挡雨,而是对居住的环境条件和装修有了莫大的要求。室内设计是根据建筑物的使用性质、所处环境和相应标准,运用物质技术手段和建筑美学原理,创造功能合理、舒适优美、满足人们物质和精神生活需要的室内环境。这一空间环境既具有使用价值,满足相应的功能要求,同时也反映了历史文脉、建筑风格、环境气氛等精神因素。
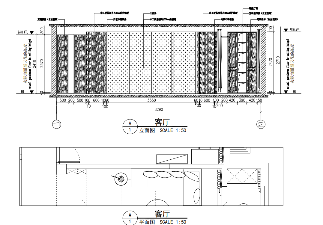
  • 图片
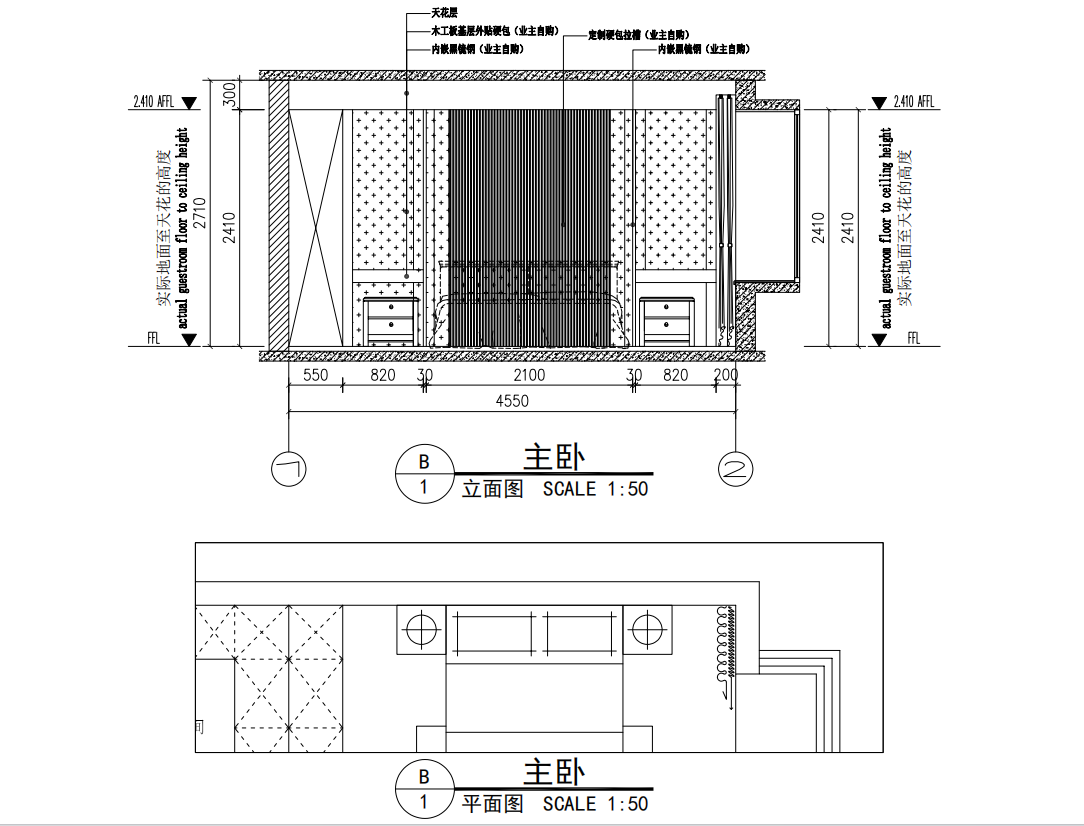
  • 图片
  • 图片
  • 图片
  • 图片
  • 图片
  • 图片
  • 图片
  • 图片
  • 图片
  • 图片
  • 图片
  • 图片
  • 图片
  • 图片
  • 图片
  • 图片
  • 图片
  • 图片
  • 图片
  • 图片
  • 图片
  • 图片
  • 图片
  • 图片
  • 图片
  • 图片
  • 图片
  • 图片
  • 图片
  • 图片
  • 图片
  • 图片
  • 上一个 下一个
    《金腾奖优秀作品年鉴》 私宅丨地产丨餐饮丨酒店丨办公丨商业丨公共丨产品丨公益丨人气 jintengAWARD(小金_金腾奖组委会) 广州市海珠区琶洲大道68号华新中心21楼
    金腾奖视频号 金腾奖小红书号 监制:闫虹
    统筹:吴佳佳
    运营:朱倩仪 王赫萱 张芷莹 胡岚恩 小金
    新媒体:王贝贝 严洁 侯乐 鹅姐
    经纪:刘译遥 石征 曹凯月
    技术:张桐 黄天佑
    最终解释权归金腾奖主办方所有