xiri
作品详情
  • Details of the work 标题横线
    头像或者logo
    图片 焦巍 华浔品味装饰集团特约推荐
    城市:烟台
    公司: 烟台华浔品味装饰
    参赛作品: 熙日
    空间类型:公寓(150㎡以下)
    个人/公司简介:
    从业14年 中国室内装饰协会会员 专注于室内设计2006-2010年毕业于山东轻工业艺术设计学院 曾游学日本、法国、意大利等进修于清华大学美术学院、意大利H&A米兰国际设计院 设计作品:飞龙金滩熙园、佰和荣筑、金科博翠山、中冶沁海云墅、中华城、绿城、滨湖万丽、梧桐墅、翠湖山晓、天马相城、海鑫花园、...... 职业生涯里程表: 2009~2010湖南长沙天玺装饰实习助理 2010~2012哈尔滨尊典装饰主任设计师 2012~2015哈尔滨尚峰装饰设计部经理 2015~2019哈尔滨鸣雀整装首席设计师 2019~至今烟台华浔品味装饰首席设计师 获奖: 2013年获得黑龙江新晚报“我最喜爱的设计师二等奖 2016年获得哈尔滨设计师优秀奖 2017年连续三个季度获得公司开工冠军 2018年获得鸣雀服务之星奖 2011烟台十大青年杰出设计师 设计理念:艺术是生活的升华,设计是艺术的体现
    设计说明 | Design Instruction
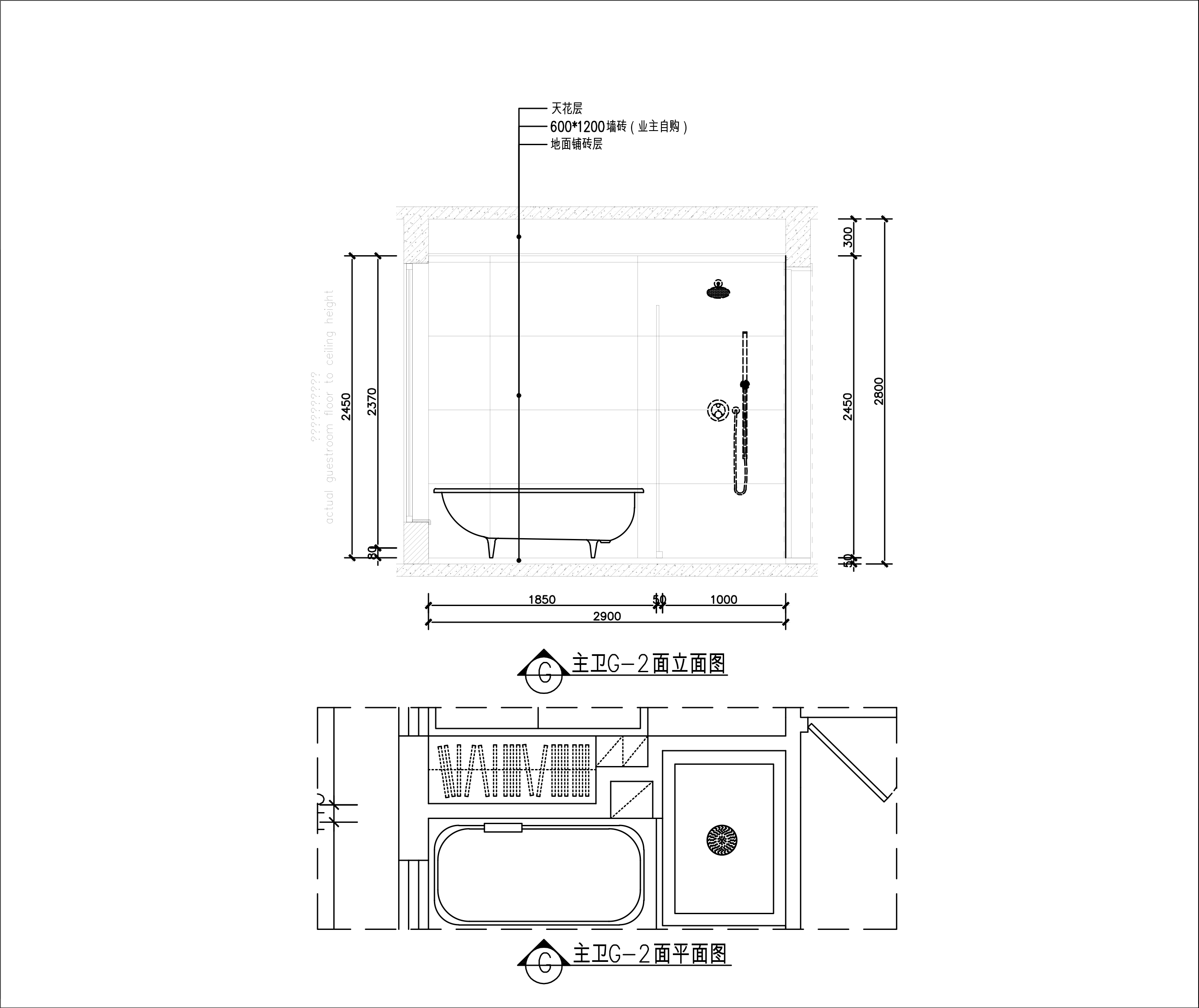
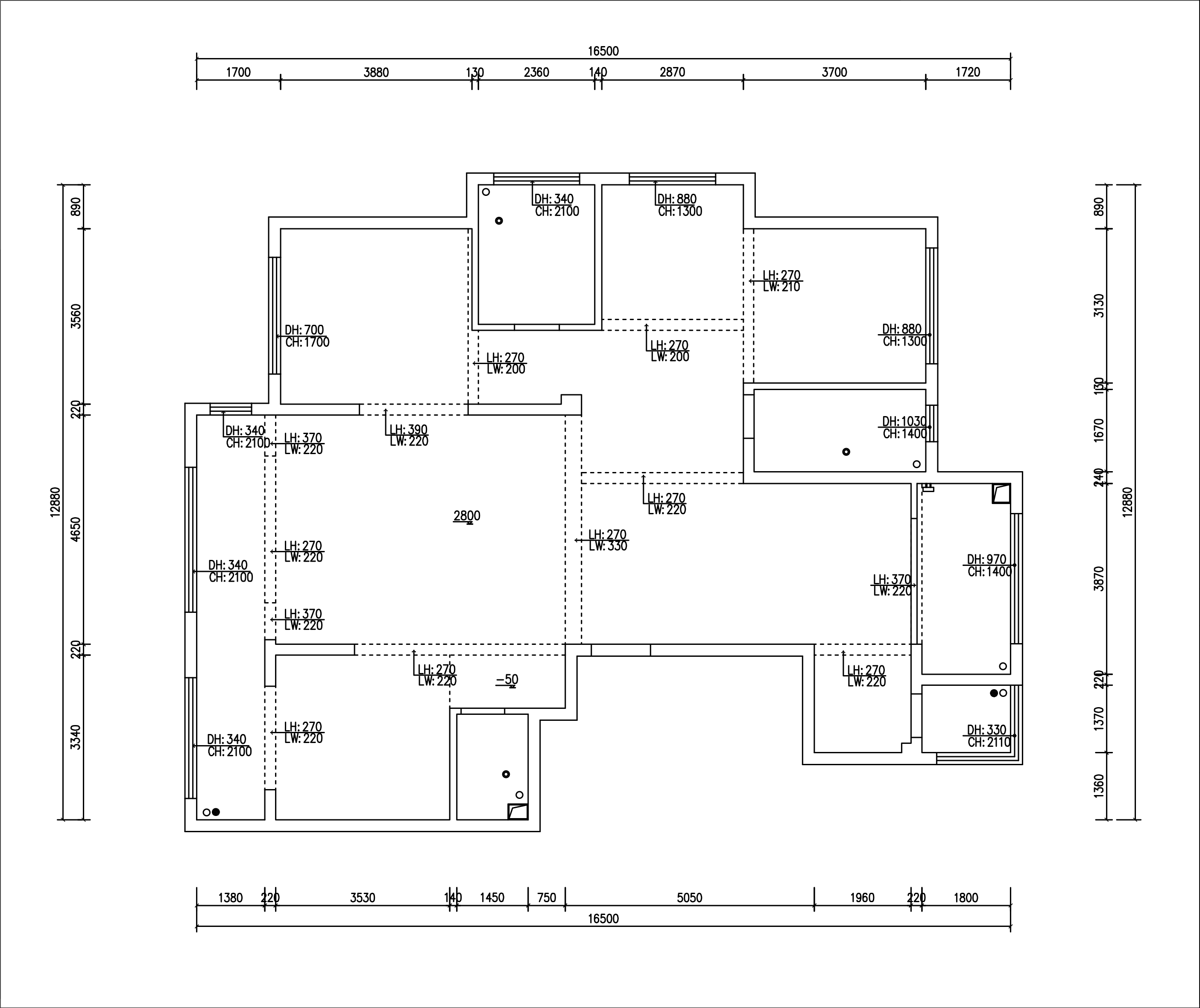
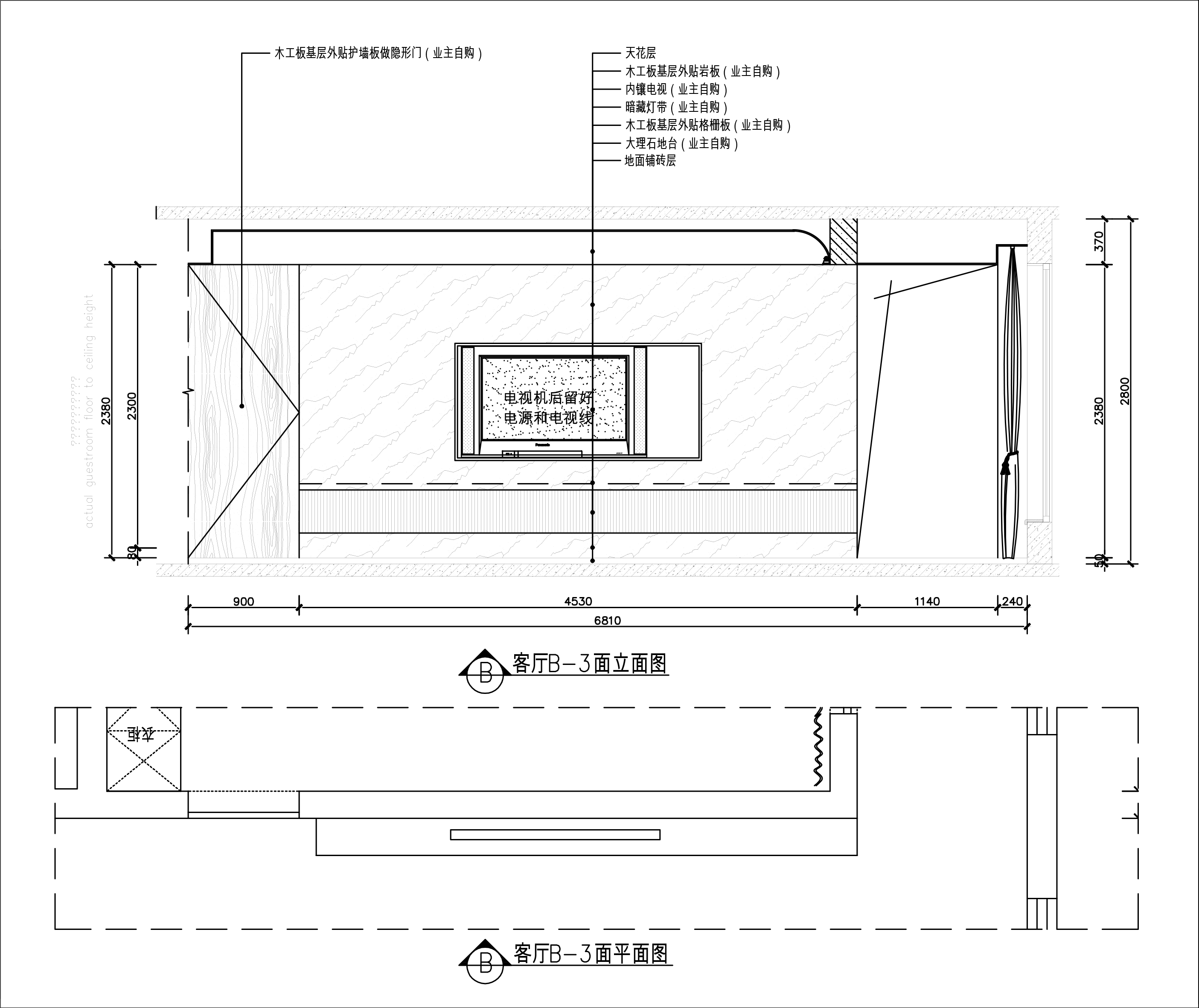
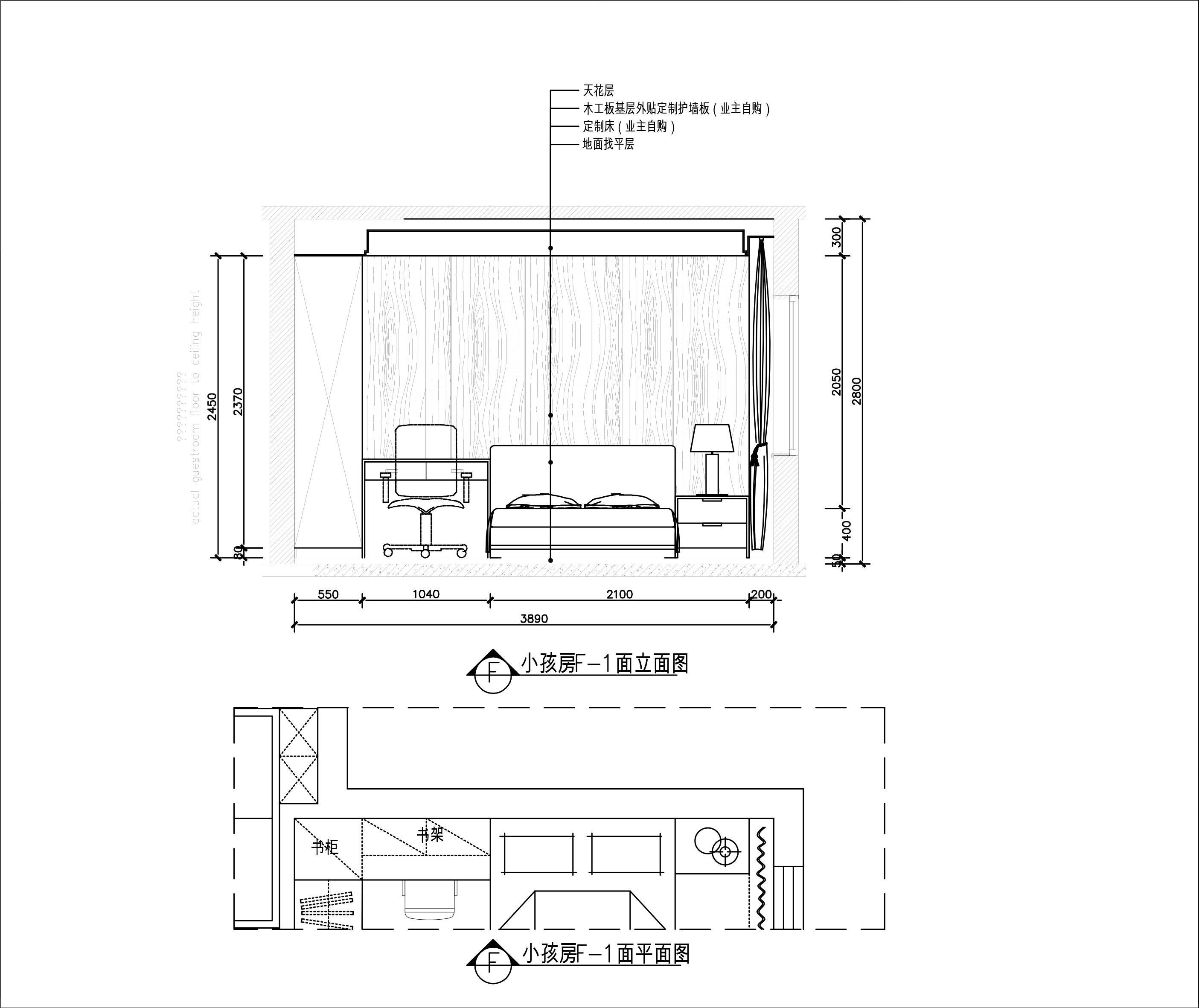
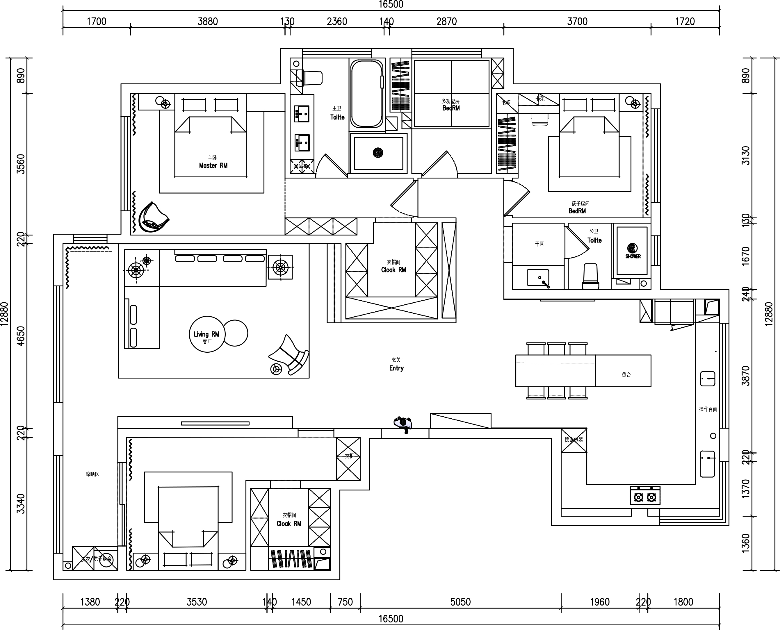
  • 这一套房子属于业主的度假养老房,它兼顾了休闲、收纳、学习办公等功能,原有格局厨房空间略小,本人利用了北向的阳台空间进行扩充,使厨房原有位置挪到进门视野之外,同时原有厨房的位置进行了西厨改造,这样也拉伸了整个餐厅的视野,远处一线海景尽在眼底,在就餐的过程感受到放松。 原有客房的洗手间因为没有窗户而改造了一个衣帽间,这样大大增加的收纳功能,同时公卫做了三段式分离,可同时满足三代人共享的舒适空间。 设计整体风格为意式极简,采用的是混油墙板+科技木皮墙板+实木木皮墙面+原木柜子,运用的是现代最环保的材料。 原有房子的梁比较厚重,所以采用了全部无主灯设计,并且弧形灯带造型衔接层高的差距感,让整体感的层次感比较好。
  • 图片
  • 图片
  • 图片
  • 图片
  • 图片
  • 图片
  • 图片
  • 图片
  • 图片
  • 图片
  • 图片
  • 图片
  • 图片
  • 图片
  • 图片
  • 图片
  • 图片
  • 图片
  • 图片
  • 图片
  • 图片
  • 图片
  • 图片
  • 图片
  • 图片
  • 图片
  • 图片
  • 图片
  • 图片
  • 图片
  • 图片
  • 图片
  • 图片
  • 图片
  • 图片
  • 图片
  • 上一个 下一个
    《金腾奖优秀作品年鉴》 私宅丨地产丨餐饮丨酒店丨办公丨商业丨公共丨产品丨公益丨人气 jintengAWARD(小金_金腾奖组委会) 广州市海珠区琶洲大道68号华新中心21楼
    金腾奖视频号 金腾奖小红书号 监制:闫虹
    统筹:吴佳佳
    运营:朱倩仪 王赫萱 张芷莹 胡岚恩 小金
    新媒体:王贝贝 严洁 侯乐 鹅姐
    经纪:刘译遥 石征 曹凯月
    技术:张桐 黄天佑
    最终解释权归金腾奖主办方所有