Apollo
作品详情
  • Details of the work 标题横线
    头像或者logo
    图片 于蓝俪
    城市:北京
    公司: 独立设计师
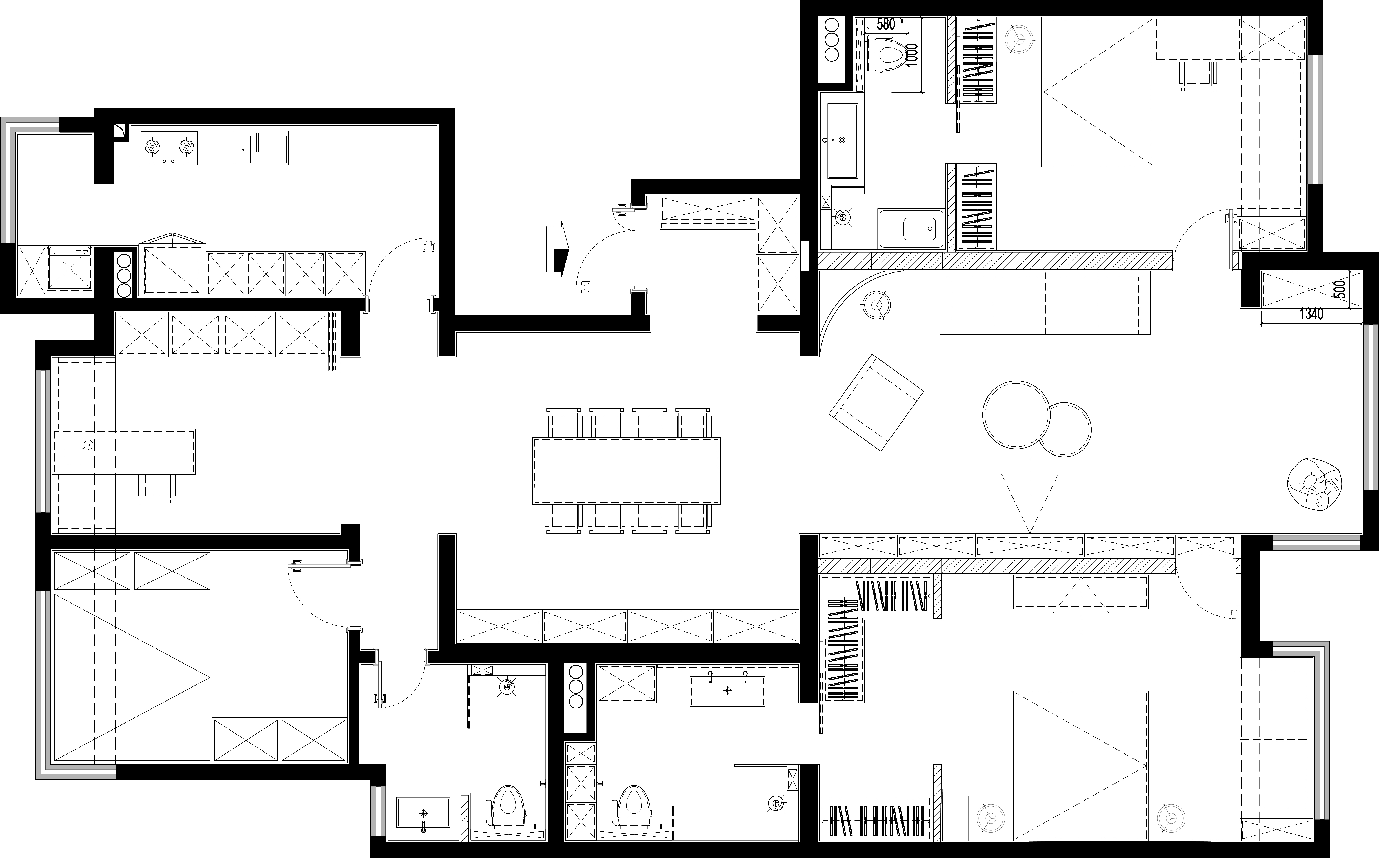
    参赛作品: 太阳公元
    空间类型:公寓(150㎡以下)
    个人/公司简介:
    个十大新锐室内设计师 国家高级室内注册设计师 国家高级室内配饰软装设计师 北京电视台生活+栏目特约设计师 时尚家居TRENDSHOME--最时尚家居创意奖 2015年北京电视台全国设计大赛获得银奖及最佳色彩奖 中央电视台二套《交换空间》栏目·旅游卫视《时尚家居》 北京电视台《生活+》栏目《超强设计》 特约设计师 时尚家居TRENDSHOME--最时尚家居创意奖 2017中国室内设计新势力全国榜《最佳新人奖》 2017中国室内装饰协会双年展《最佳设计奖》 2018品牌女性高峰论坛 《杰出女性设计师奖》 2018居然设计家杯室内设计大赛 《金奖》 于蓝俪国际空间装饰设计(北京)有限公司创始人&设计总监 合建集团易阳国际空间设计公司&设计总监&设计顾问
    设计说明 | Design Instruction
  • 在这个快速变化的时代,室内设计理念也在不断演变。注重以人为本,创新与可持续性并重,以创造出舒适、美观、实用和环保的室内空间。 相信每个空间都应该反映出其主人的个性和品味。我将根据客户的兴趣和喜好,为他们打造出独一无二的室内空间。同时注重将艺术元素融入设计中,以提升空间的美感和质感。 紧跟科技发展的步伐,将最新的科技成果运用于室内设计中。智能家居、虚拟助手等高科技产品的运用,将使设计更具科技感和未来感,同时也能提高生活的便利性和舒适度。 本案当中业主是个医生,喜欢干净整洁的现代风格,在我的设计中,尊重并体现了业主的个人喜好和审美观念。通过与业主的深入沟通,了解他们的需求和期望,将这些需求和期望融入到设计中。
  • 图片
  • 图片
  • 图片
  • 图片
  • 图片
  • 图片
  • 图片
  • 图片
  • 图片
  • 图片
  • 图片
  • 图片
  • 图片
  • 图片
  • 图片
  • 图片
  • 图片
  • 图片
  • 图片
  • 图片
  • 图片
  • 图片
  • 上一个 下一个
    《金腾奖优秀作品年鉴》 私宅丨地产丨餐饮丨酒店丨办公丨商业丨公共丨产品丨公益丨人气 jintengAWARD(小金_金腾奖组委会) 广州市海珠区琶洲大道68号华新中心21楼
    金腾奖视频号 金腾奖小红书号 监制:闫虹
    统筹:吴佳佳
    运营:朱倩仪 王赫萱 张芷莹 胡岚恩 小金
    新媒体:王贝贝 严洁 侯乐 鹅姐
    经纪:刘译遥 石征 曹凯月
    技术:张桐 黄天佑
    最终解释权归金腾奖主办方所有