qingsheyuxing
作品详情
  • Details of the work 标题横线
    头像或者logo
    图片 张慧芳 华浔品味装饰集团特约推荐
    城市:无锡
    公司: 华浔品味装饰无锡分公司
    参赛作品: 轻奢于形,优雅于心
    空间类型:公寓(150㎡以下)
    个人/公司简介:
    设计师:张慧芳 华浔品味装饰无锡分公司首席设计师 中国建筑装饰协会注册设计师 中国室内设计协会会员 设计理念:设计要做到艺术性和功能性的完美结合,让表象上的设计具有更丰富的涵义。
    设计说明 | Design Instruction
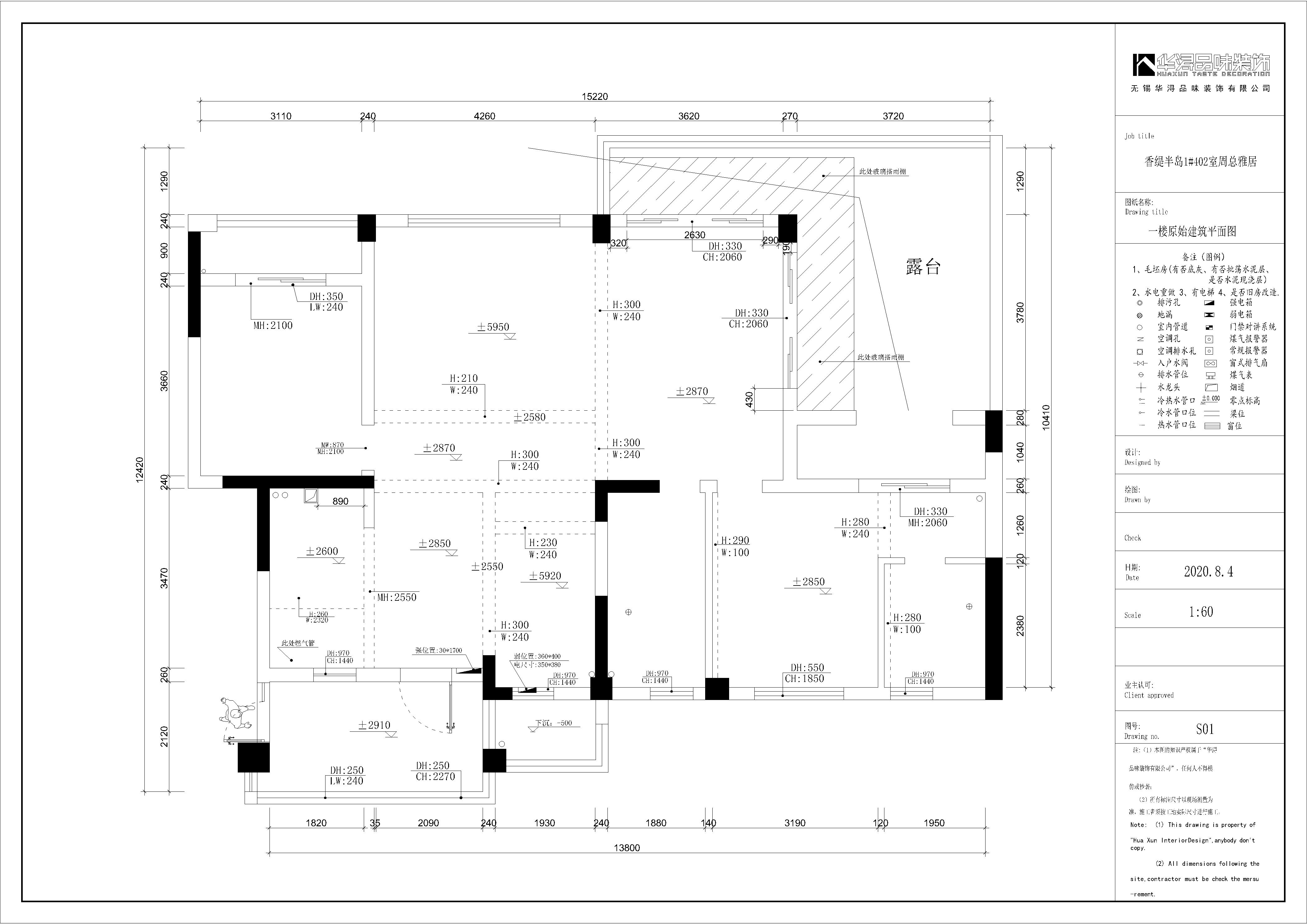
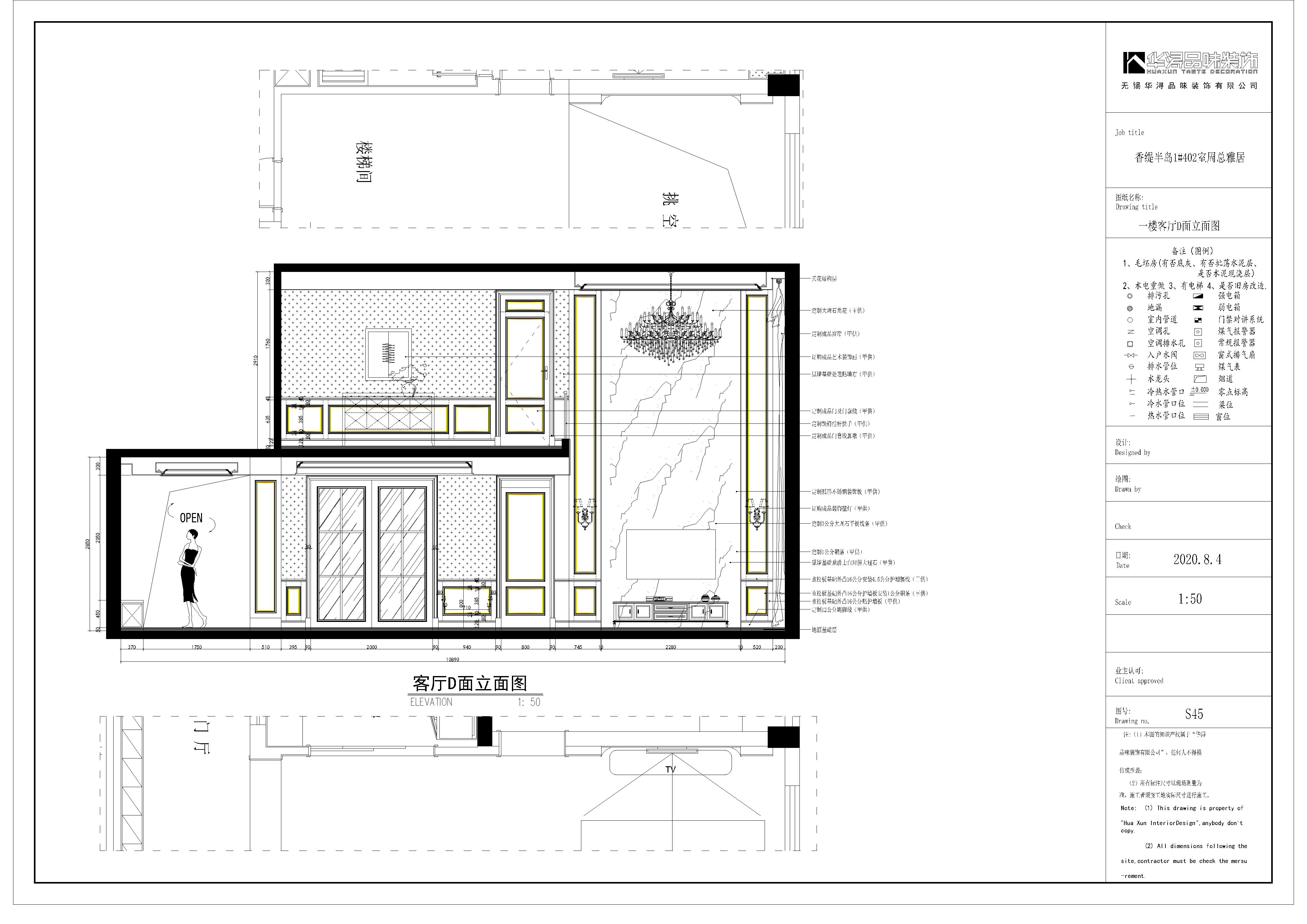
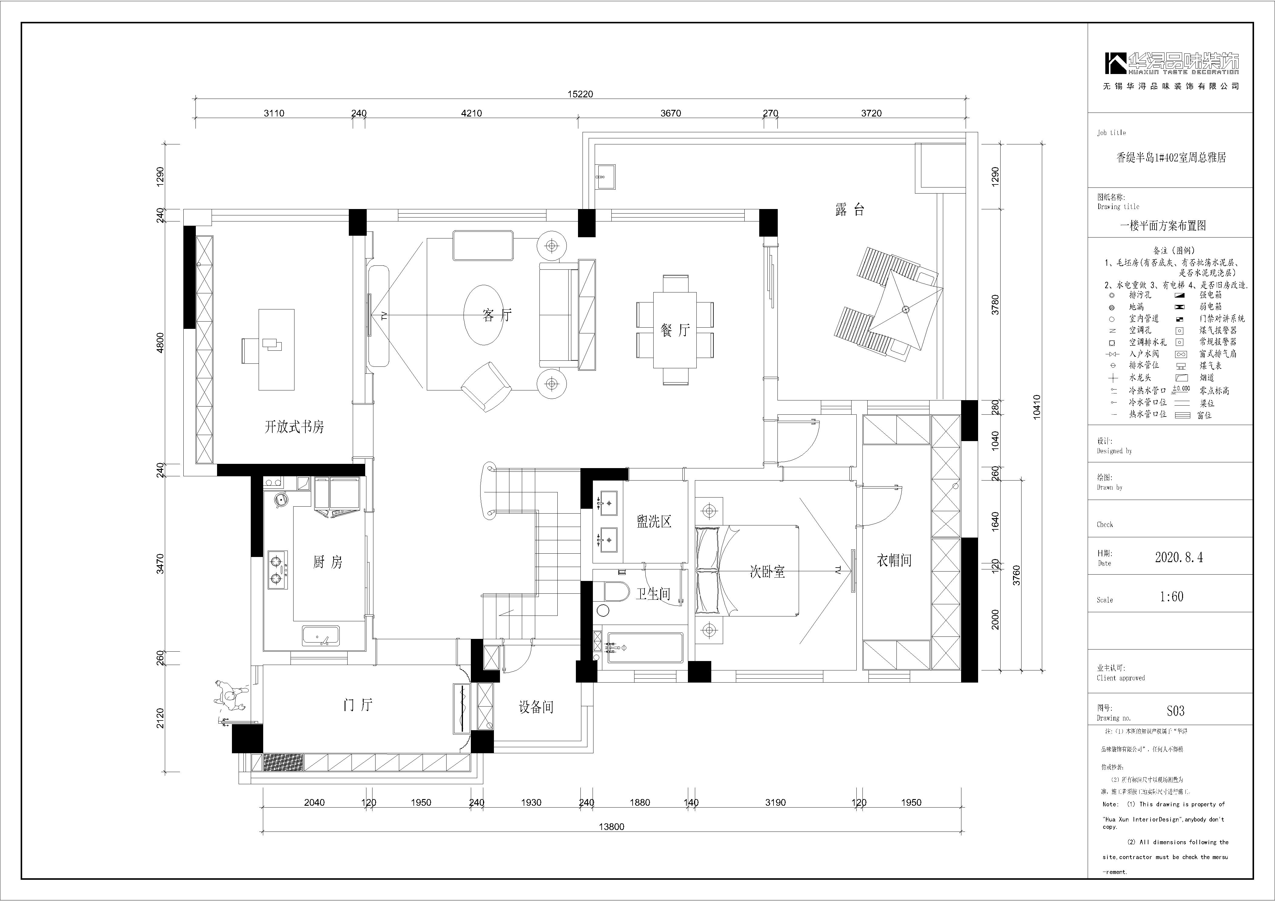
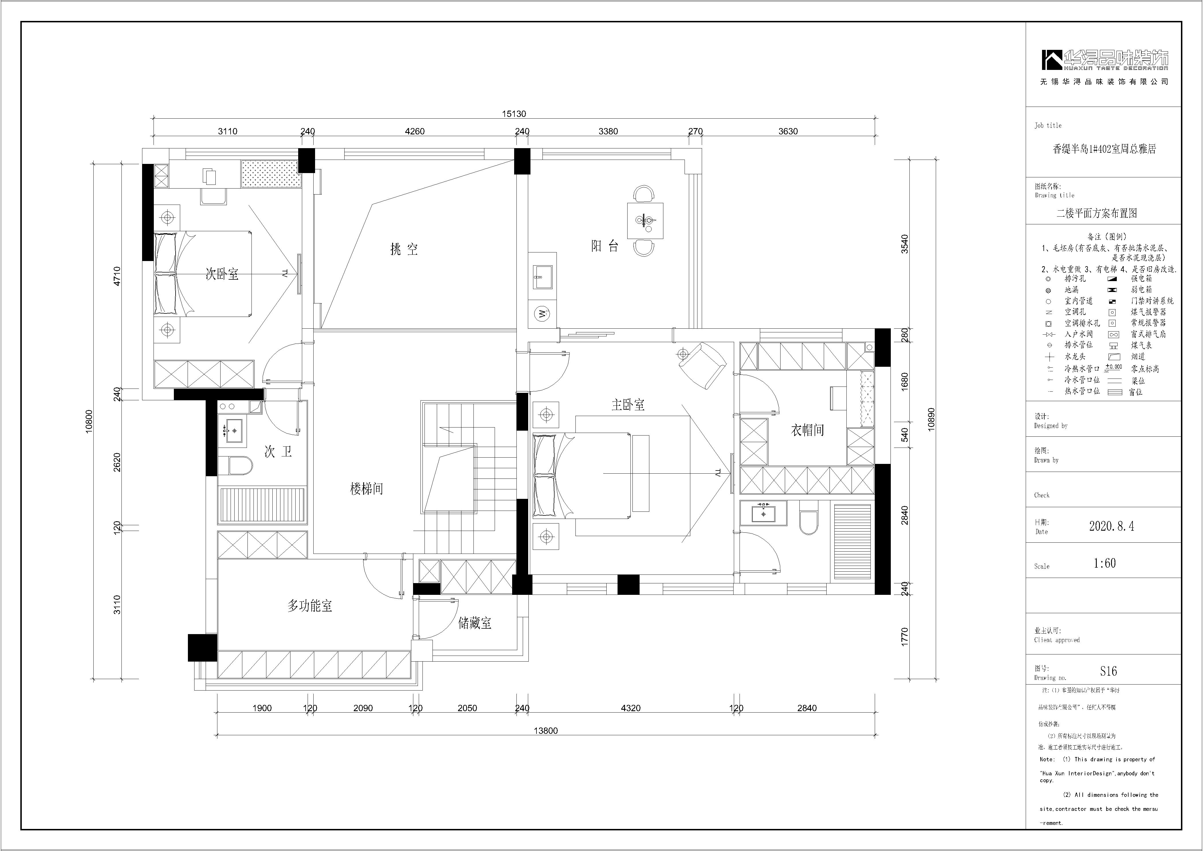
  • 项目名称:轻奢于形,优雅于心 地址:无锡市惠山区 面积:200平方 风格:美式轻奢 设计说明:女业主是个温柔优雅的女性,希望家的氛围是阳光美好、惬意精致的。整体空间以素雅的色彩为基调,配合美式风格护墙板、以及简约美式的家具和精美的装饰摆件,局部点缀石材、金属、玻璃水晶等元素,完美地诠释了现代美式的奢雅魅力。慵懒的周末,明媚阳光穿透落地窗,给室内空间镀上了点点光晕,在挑空大厅里喝着小酒时伴随着留声机里缓缓流淌的音乐让人忍不值扭起了小腰。 卧室延续大厅配色,在软装上用少许金属以及温馨布艺装点,烘托出简约而典雅的卧室氛围。在格局上更重视的是实用与舒适,在尽可能少改动的前提下,缩小卫生间空间得以拥有属于自己的独立衣帽间,晨起投进这里的第一缕日光,是一天内收获的第一份好心情。简约居家强调生活的本质,让身处于此倍感舒适温柔。
  • 图片
  • 图片
  • 图片
  • 图片
  • 图片
  • 图片
  • 图片
  • 图片
  • 图片
  • 图片
  • 图片
  • 图片
  • 图片
  • 图片
  • 图片
  • 图片
  • 图片
  • 上一个 下一个
    《金腾奖优秀作品年鉴》 私宅丨地产丨餐饮丨酒店丨办公丨商业丨公共丨产品丨公益丨人气 jintengAWARD(小金_金腾奖组委会) 广州市海珠区琶洲大道68号华新中心21楼
    金腾奖视频号 金腾奖小红书号 监制:闫虹
    统筹:吴佳佳
    运营:朱倩仪 王赫萱 张芷莹 胡岚恩 小金
    新媒体:王贝贝 严洁 侯乐 鹅姐
    经纪:刘译遥 石征 曹凯月
    技术:张桐 黄天佑
    最终解释权归金腾奖主办方所有