Su Jian
作品详情
  • Details of the work 标题横线
    头像或者logo
    图片 韩少华 华浔品味装饰集团特约推荐
    城市:烟台
    公司: 山东烟台华浔品味装饰
    参赛作品: 素·简
    空间类型:公寓(150㎡以下)
    个人/公司简介:
    中国室内装饰协会会员 专注于室内设计和园林景观 2005-2009年毕业于南华大学艺术设计学院 2009年进修于庐山西海国际艺术学院 2009-2016年江苏常州华浔专家设计师 2017至今山东烟台华浔总监设计师 获奖情况: 烟台祥隆上市里杯二等奖 澳门金莲花杯国际设计邀请赛铜奖 烟台十大青年杰出设计师 设计项目(烟台):天越湾/龙湖菩提海湾/红邦宝第/万科御龙山/天马相城/桃园一品/世贸海湾/中海紫御公馆/佰和荣筑/梧桐墅
    设计说明 | Design Instruction
  • 业主有居家办公,学习的空间需求,设计师规划出来一个大吧台。它兼顾了就餐、书房、办公等功能,是一个放松的自在之所。开放而简洁的立面构成,用分割线条感对空间维度进行简单的立意,赋予空间简约雅致的气质。一层与地下室通过滑梯相连,形成空间中有趣的设置,既有水平动线,也有垂直动线,并且还是流动式的,极大的丰富空间的趣味性以及交互性。 一步一景,人生时光,方寸之间对生活的期待与想象融合其中。越深入到室内,就会发现这个空间变得越来越舒适和让人为之着迷。 最佳视野给客餐厅,南北走向带来室外明亮的自然光线,对空间有明显的延伸效果。全开放的空间,设计师对空间尺寸进行严格把控,合理规划家具尺寸,重塑了空间层次与关系。艺术坐具错落摆放,亦实用亦可赏玩。 二楼承载着公共空间与个人空间自然分区的功能,当夜静静降临,就使动与静、日与夜,巧妙分离。它们可相依亦可独立,进入到内部空间,就是这一家三口的个人专属空间。
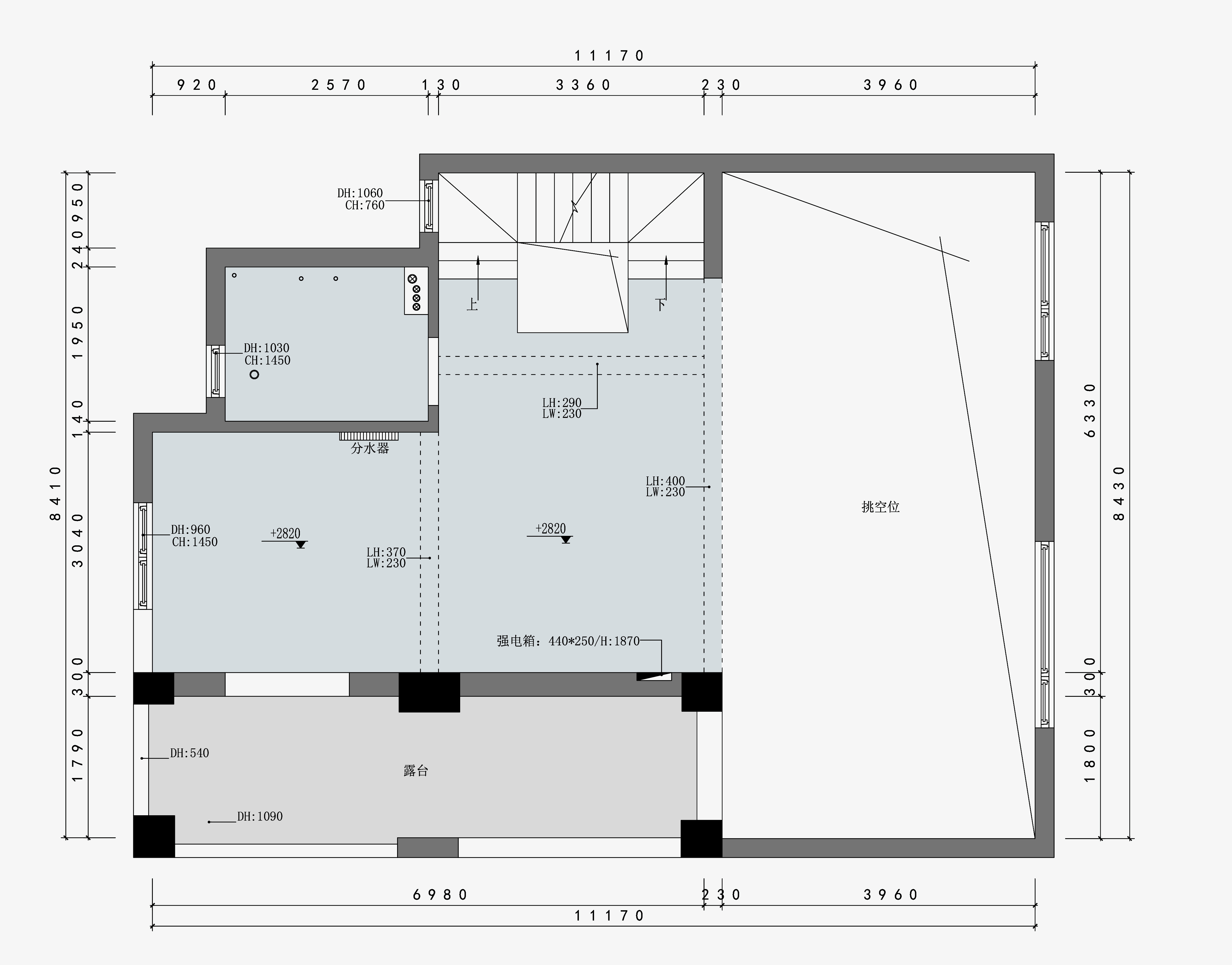
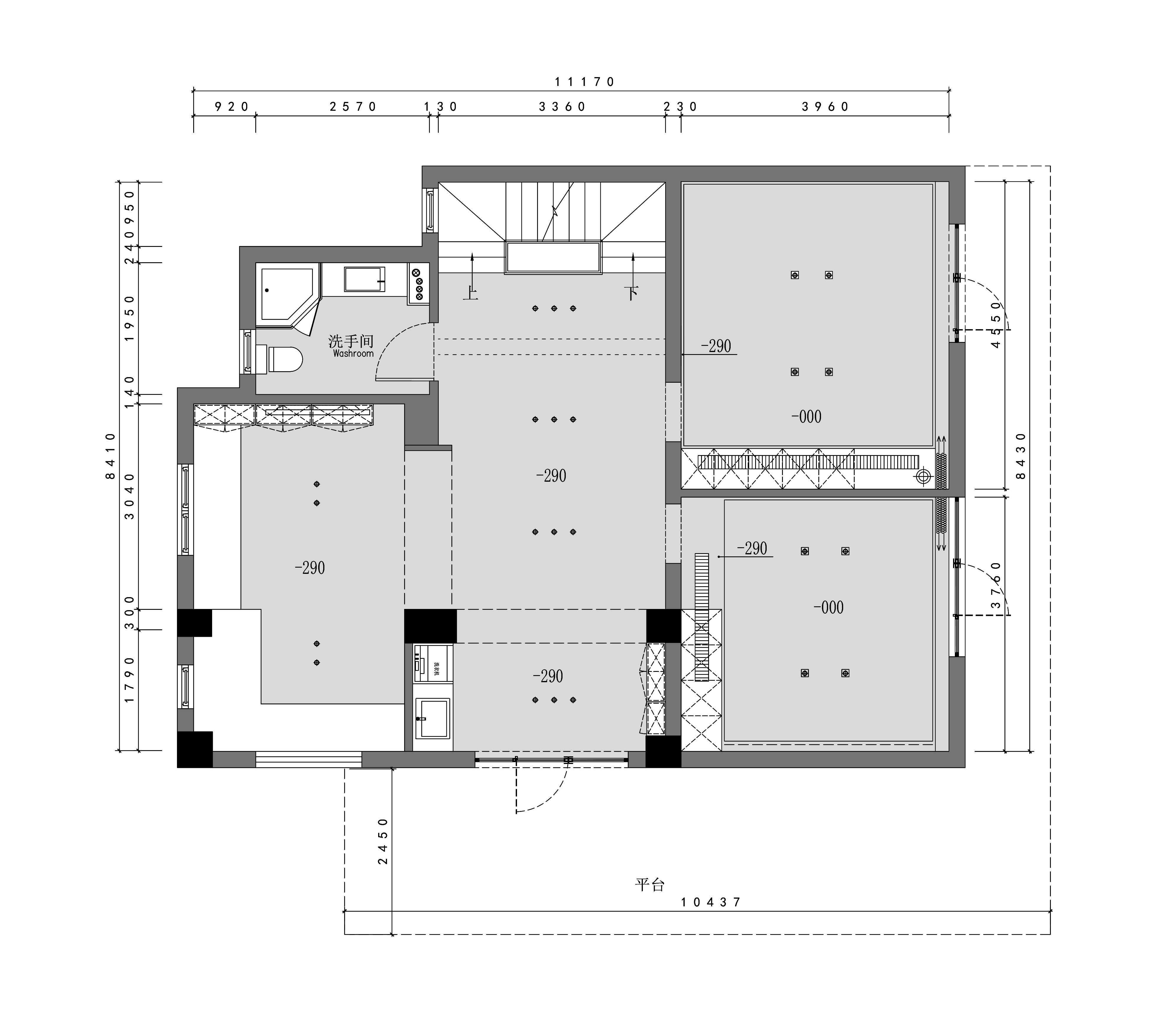
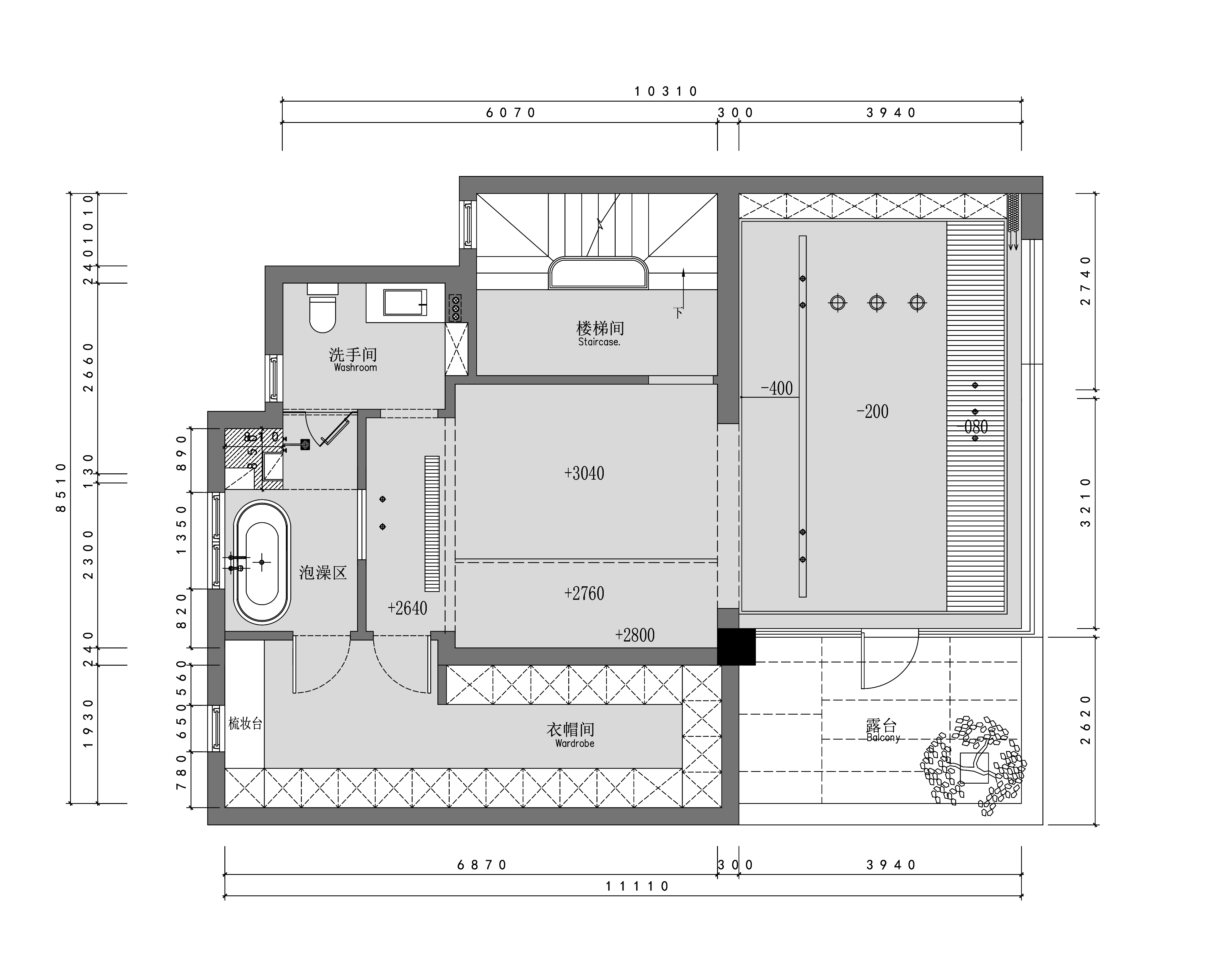
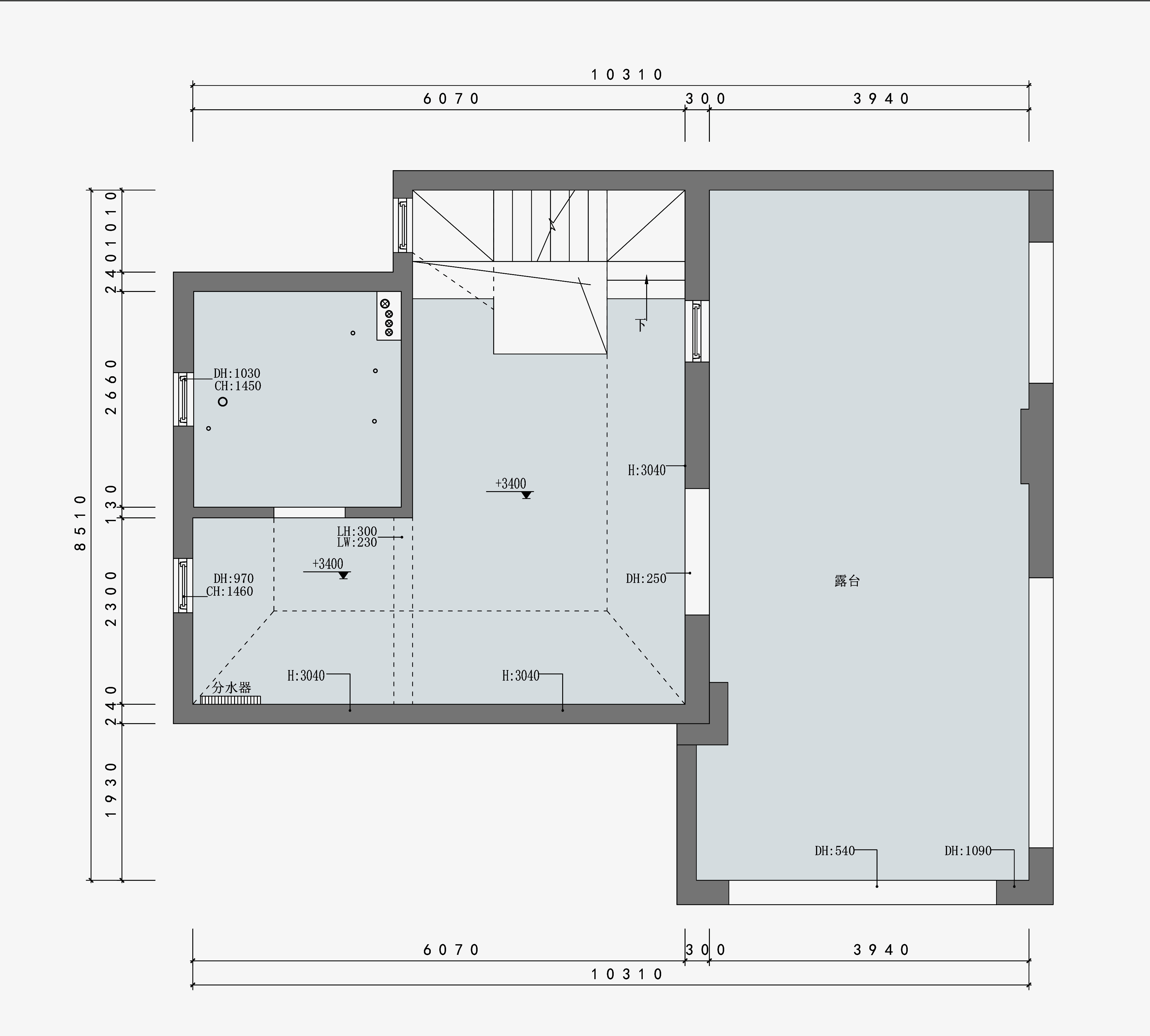
  • 图片
  • 图片
  • 图片
  • 图片
  • 图片
  • 图片
  • 图片
  • 图片
  • 图片
  • 图片
  • 图片
  • 图片
  • 图片
  • 图片
  • 图片
  • 图片
  • 图片
  • 图片
  • 图片
  • 图片
  • 图片
  • 图片
  • 图片
  • 图片
  • 图片
  • 图片
  • 图片
  • 上一个 下一个
    《金腾奖优秀作品年鉴》 私宅丨地产丨餐饮丨酒店丨办公丨商业丨公共丨产品丨公益丨人气 jintengAWARD(小金_金腾奖组委会) 广州市海珠区琶洲大道68号华新中心21楼
    金腾奖视频号 金腾奖小红书号 监制:闫虹
    统筹:吴佳佳
    运营:朱倩仪 王赫萱 张芷莹 胡岚恩 小金
    新媒体:王贝贝 严洁 侯乐 鹅姐
    经纪:刘译遥 石征 曹凯月
    技术:张桐 黄天佑
    最终解释权归金腾奖主办方所有