jingmishiguang
作品详情
  • Details of the work 标题横线
    头像或者logo
    图片 李新 华浔品味装饰集团特约推荐
    城市:无锡
    公司: 华浔品味装饰无锡分公司
    参赛作品: 静谧时光
    空间类型:公寓(150㎡以下)
    个人/公司简介:
    公司名称:无锡华浔品味装饰公司 设计师姓名:李新 设计师职称:主任设计师 简介:注册室内设计师 中国建筑装饰注册设计师 高级软装搭配设计师
    设计说明 | Design Instruction
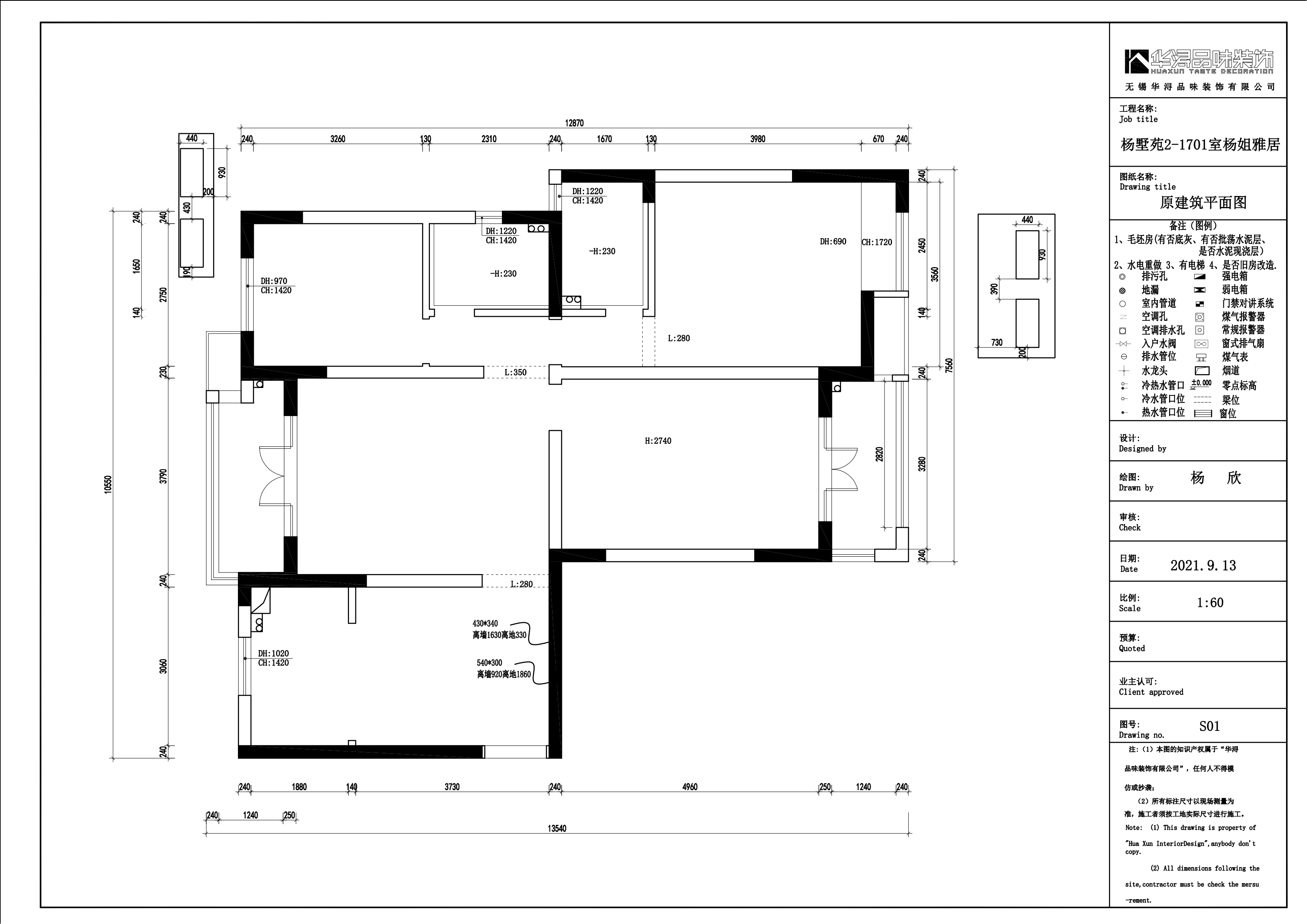
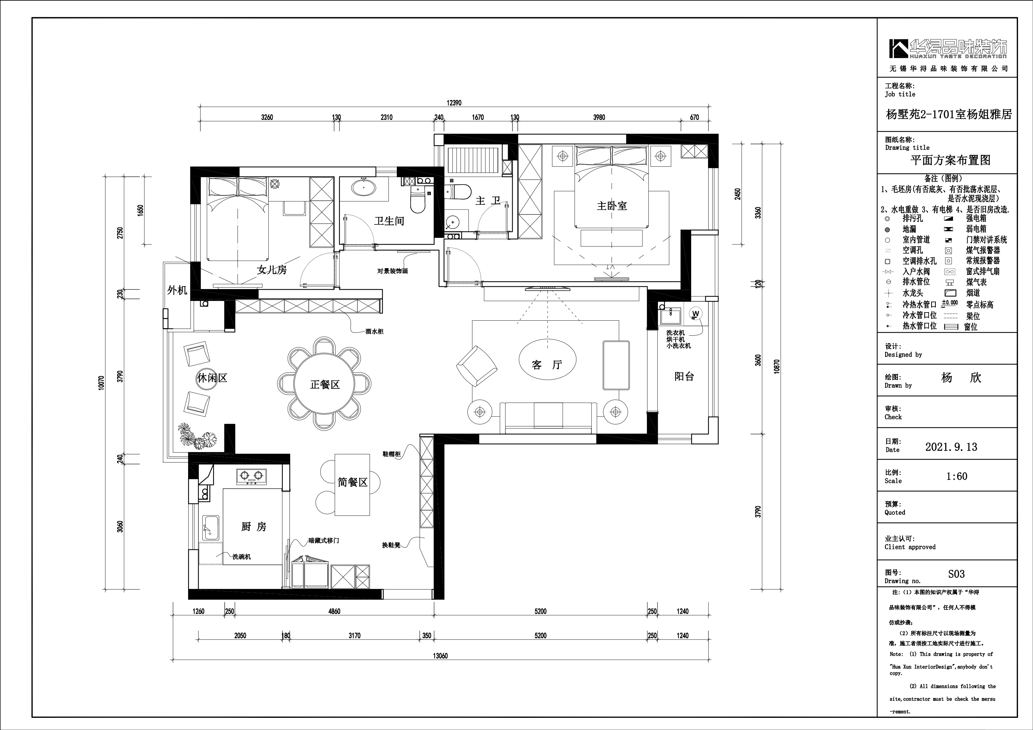
  • 案例名称:静谧时光 地址;无锡市惠山区 案例风格:现代简约 案例面积:124平方米 设计说明:原始户型三房两卫,但是客厅朝北。根据客户的需求,一家三口常住,希望客厅采光视野要好,结合女业主的烘焙爱好,希望操作空间富裕。重新调整之后的方案,减少一个南向房间,客厅南移使得整个空间南北通透,丰富厨房空间做了中西厨,有一个灵活多用的岛台空间,整个公共空间做到最大化。 随着人们在旅游中感受到简约的魅力,简约但并不简单的装修风格。当疲惫的身心对家的依赖愈发强烈,人们想要的是轻松、自由的环境,现代简约风格自然就成为家居设计的一种风尚。注重大小色块间的组合,地域性的后期配饰融入设计风格之中。
  • 图片
  • 图片
  • 图片
  • 图片
  • 图片
  • 图片
  • 图片
  • 图片
  • 图片
  • 图片
  • 图片
  • 图片
  • 图片
  • 图片
  • 图片
  • 上一个 下一个
    《金腾奖优秀作品年鉴》 私宅丨地产丨餐饮丨酒店丨办公丨商业丨公共丨产品丨公益丨人气 jintengAWARD(小金_金腾奖组委会) 广州市海珠区琶洲大道68号华新中心21楼
    金腾奖视频号 金腾奖小红书号 监制:闫虹
    统筹:吴佳佳
    运营:朱倩仪 王赫萱 张芷莹 胡岚恩 小金
    新媒体:王贝贝 严洁 侯乐 鹅姐
    经纪:刘译遥 石征 曹凯月
    技术:张桐 黄天佑
    最终解释权归金腾奖主办方所有