Shika Today
作品详情
  • Details of the work 标题横线
    头像或者logo
    图片 鸿鹄设计
    城市:上海
    公司:鸿鹄设计
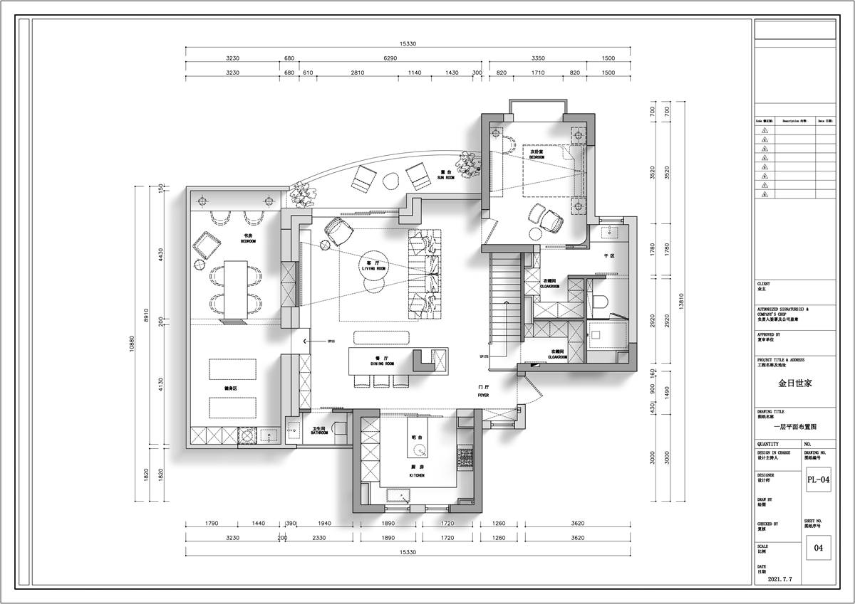
    参赛作品: 今日世家
    空间类型:公寓(150㎡以下)
    个人/公司简介:
    2022 Ariston Design Award 国际室内设计大赛-温度设计机构奖 Ariston Design Award 国际室内设计大赛180强 40 UNDER 40设计元中国(上海)设计杰出青年 第九届设计本年度大赛-年度最具人气设计师奖 Hi-Design第十届室内设计大赛2022年度全国赛区“设计精英奖” \“优秀奖” DAIKIN“第十四届大金内装设计大赛”-上海赛区优胜奖 好好住年度推荐装修设计机构榜 营造家FUTURE私宅坐标人物 住小帮2022【安心优选】设计机构 2021 设计纪元2021-40 UNDER 40中国设计杰出青年奖 IHIDA国际人居空间设计奖--优秀住宅空间奖 第八届日立室内设计大赛华东区新锐奖 M+中国高端室内设计大赛TOP100 营造家奖年度设计TOP500 PCHOUSE AWARD中国私宅设计全国TOP100杰出设计机构 PCHOUSE AWARD中国私宅设计上海TOP10杰出设计机构 2020 国际空间设计'艾特奖'公寓设计优秀奖、入围奖 设计本年度最受业主喜爱设计师 营造家奖华东赛区TOP150 2019 第九届'筑巢奖'别墅空间金奖 设计源·世界观丨华东赛区精英人物(梁志天颁发) 中国室内设计年度评选金堂奖“优秀住宅公寓设计” 营造家奖年度人气设计机构 2018 “巅峰设计力ICON20”巅峰设计力 设计公司 大众点评家居全国TOP4人气奖 大众点评家居最佳创意空间奖 大众点评新锐设计师最佳软装搭配奖 M+中国高端室内设计大赛年度优秀设计师 微博十大家居影响力新锐大V奖·鸿鹄设计 中国室内设计明星设计大赛“中国好宅”实景组银奖 大金内装设计大赛全国美宅设计(别墅)银奖 、公寓银奖、铜奖 大金内装设计大赛上海生活艺术(别墅)金奖 、公寓银奖 大金内装设计大赛上海美宅设计(别墅)银奖 第二届中国室内设计新势力榜上海区TOP10  腾讯家居年度设计时尚盛典·金藤奖 中国室内设计年度潜力设计师 营造家奖最佳厨房设计奖、最佳大户型入围奖、最佳小户型入围奖 大金内装设计大赛全国生活艺术公寓铜奖 第六届日立室内设计大赛全国二等奖(公寓组)  2017 荣获 40 under 40 中国设计杰出青年 设计源·世界观丨华东赛区精英人物(梁志天颁发) 第8届Idea-Tops国际空间设计大赛上海赛区金奖、铜奖 大金内装设计大赛全国美宅设计公寓组铜奖 大金内装设计大赛上海地区美宅设计金奖、银奖、别墅铜奖 大金内装设计大赛上海赛区空间设计奖 PChouse设计风尚奖、创新风格设计奖 家装‘匠筑美作’杯全国新锐设计师 2016 大金内装设计大赛上海区公寓组金奖、银奖 篱笆网装修频道2016年度优质商户·鸿鹄设计 2015 央视【交换空间】栏目特邀企业 2013 第四届中国国际环境艺术设计大赛(筑巢奖)优秀奖 2012 2011-2012年第二届国际环艺创新设计大赛一等奖(住宅空间类) 2011 第六届上海学院杯居住环境大赛别墅类金奖 2010 中国样板房大赛最佳规划奖 2009 上海鸿鹄设计成立
    设计说明 | Design Instruction
  • 本案为老屋翻新,接手时处于毛胚屋状态,露台的采光条件较佳,原先客厅、餐厅配置各自独立。若希望空间放大、明亮宽阔,来自大露台的光线需一路引入公共区域。屋主是一对夫妻,有时会在家里工作,期望放大空间增加采光。 设计创意:整合客餐厅,重新分配阳光房与厨房的大小,阳光房结合健身区家政区机能。设定黑色灰色元素,加上大量的白色,在地板、餐桌、厨具搭配比较清淡的原木色泽,以此色彩基调编织构成空间设计。 设计风格陈述:整体设计简洁利落,在墙面、顶面等区域上进行留白,给人留下想象的空间。在空间中,以实现功能为基础,注重实用性功能性。在设计中将元素简化,更加关注功能布局及动线的合理性。
  • 图片
  • 图片
  • 图片
  • 图片
  • 图片
  • 图片
  • 图片
  • 图片
  • 图片
  • 图片
  • 图片
  • 图片
  • 图片
  • 图片
  • 图片
  • 图片
  • 图片
  • 图片
  • 图片
  • 图片
  • 图片
  • 图片
  • 图片
  • 上一个 下一个
    《金腾奖优秀作品年鉴》 私宅丨地产丨餐饮丨酒店丨办公丨商业丨公共丨产品丨公益丨人气 jintengAWARD(小金_金腾奖组委会) 广州市海珠区琶洲大道68号华新中心21楼
    金腾奖视频号 金腾奖小红书号 监制:闫虹
    统筹:吴佳佳
    运营:朱倩仪 王赫萱 张芷莹 胡岚恩 小金
    新媒体:王贝贝 严洁 侯乐 鹅姐
    经纪:刘译遥 石征 曹凯月
    技术:张桐 黄天佑
    最终解释权归金腾奖主办方所有