温居
作品详情
  • Details of the work 标题横线
    头像或者logo
    图片 周庆远 顶层特约推荐
    城市:北京
    公司: 独立设计师
    参赛作品: 温居
    空间类型:公寓(150㎡以下)
    个人/公司简介:
    姓名:周庆远 从业时间: 7年 职位:室内主案设计师 曾获奖项: 2017年获得“易阳杯设计优秀设计师”称号 2021 年国际环艺创新设计作品大赛别墅类“华鼎奖”---金奖 2021 年度中国室内设计百强新锐设计师 2022年第六届CBDA住宅产业(红鼎)创新大赛住宅室内空间设计红鼎优秀作品。 2023年入选APSDA-2023亚太空间设计年度评选-十大精英设计师(北京) 2023年入选APSDA-2023 亚太空间设计评选 “十大精英设计师(北京) 2023年 获第十五届CBDA 照明应用设计大赛北部大区分站赛济南站“照明组家居空间三等奖” 擅长风格: 现代/极简/新中式/现代美式/轻奢等 主要作品: 中海墅 格拉斯小镇一期 鸿坤林语墅/ 北辰墅院/通州天鸿颐景/ 牛驼孔雀城 翡翠城别墅 / 丽景长安 /兴创屹墅/香格里拉宴会厅 润泽御府 / 格拉斯小镇 / 远洋LAVIE 等
    设计说明 | Design Instruction
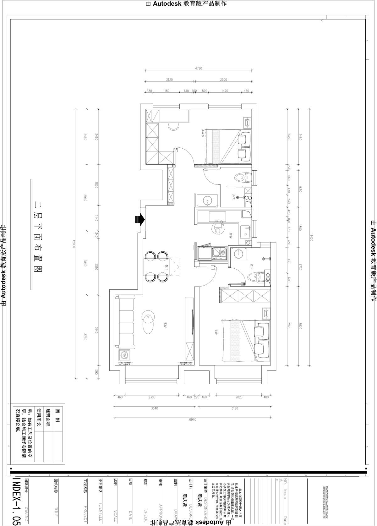
  • 项目名称:江山风华 项目地址:大兴 项目面积:90平米 项目风格:现代简约 1.客厅餐厅之间相通相连,让视觉空间显得通透大气。餐厅融入金属边框元素,顶面线性灯带的空间线条勾勒出轻缓的氛围。金属质感的餐厅吊灯点缀其间,让高级感和清透感同时凝炼表面,悬浮吊顶的隐藏的灯带见光不见灯,也是客厅的主要光源之一,细腻的纹路氤氲出优雅的艺术意境。客厅背景墙木饰面中嵌入的线性灯槽也让整个空间多了一些层次感。 2. 厨房以灰白为主要基调,上方辅以原木橱柜,没有过多繁复的装饰,在简炼之中追求质感,让生活呈现出简约随性的状态,在保证美感的基础上增强质感与空间的互动,地板、壁橱、高柜和方面使用的开放格让真个厨房的利用率达到最高,真正做到服务于生活。 3. 简奢温柔的卧室空间,墙面设计就是在做减法,床头背景采用业主喜爱的脏粉色来给主卧室定基调,阳光透过窗棂洒落进来,倚靠舒适的飘窗上听着自己喜欢的音乐,这种生活场景,让空间散发着一种愉悦的氛围。 4 男孩房由原来的两个小房间合二为一,为的就是让孩子有个相对舒适宽敞的睡眠环境,也能拥有宽敞的衣帽间和学习的书桌,床头的小车摆件,为空间带来了灵动感与生机,让人在此觅得男孩子的活泼童真。
  • 图片
  • 图片
  • 图片
  • 图片
  • 图片
  • 图片
  • 图片
  • 图片
  • 图片
  • 图片
  • 图片
  • 图片
  • 图片
  • 图片
  • 图片
  • 上一个 下一个
    《金腾奖优秀作品年鉴》 私宅丨地产丨餐饮丨酒店丨办公丨商业丨公共丨产品丨公益丨人气 jintengAWARD(小金_金腾奖组委会) 广州市海珠区琶洲大道68号华新中心21楼
    金腾奖视频号 金腾奖小红书号 监制:闫虹
    统筹:吴佳佳
    运营:朱倩仪 王赫萱 张芷莹 胡岚恩 小金
    新媒体:王贝贝 严洁 侯乐 鹅姐
    经纪:刘译遥 石征 曹凯月
    技术:张桐 黄天佑
    最终解释权归金腾奖主办方所有