Lixiangdejia
作品详情
  • Details of the work 标题横线
    头像或者logo
    图片 蒋少龙
    城市:邵阳
    公司: 华浔品味装饰集团
    参赛作品: 理想的家
    空间类型:公寓(150㎡以下)
    个人/公司简介:
    设计师介绍: 蒋少龙(中国室内高级建筑师) 证书编号:ZB21006552 川美学院环境艺术景观设计系毕业,后进修于庐山西海国际艺术学院 广东川美设计总设计师 获得的部分相关设计大赛奖项情况: 2008年获得中国首届"联盟杯"室内设计大赛三等奖 2008年获得首届”东鹏杯”中国别墅.酒店设计精英邀请大赛入围奖 2009年获华浔品味集团“金笔设计师” 2009年获得重庆地区卫浴空间设计竞赛优秀奖 2009年获得第二届中国重庆“艺邦杯” 2010年获得第二届中国重庆“家装金笔设计师”优秀奖术学院 15-16年中国室内100强资深专家设计师 17年广东省百佳室内设计师 代表作:凤凰城,豪进,保利,誉山国际,锦绣新天地,合生帝景山庄。 设计师工作理念阐述 空间设计要有建设性的破坏;要有创造性的文化;要有个性的生命力;更要跳出原建筑的框架与传统设计的磁场......这一切都是以人为本,让家有文化。有思想。
    设计说明 | Design Instruction
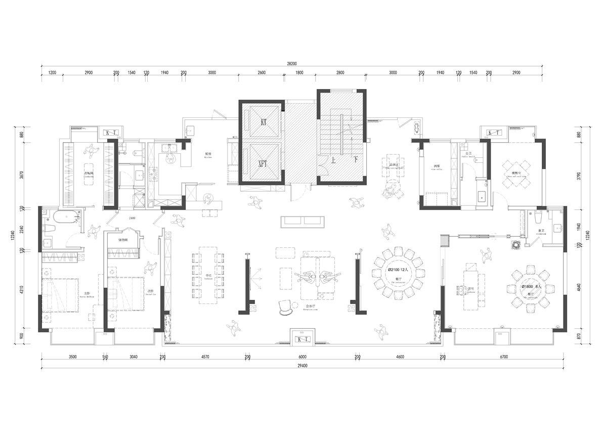
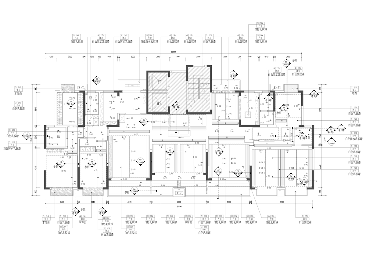
  • 理想的家 理想的生活并不是奢华的生活,理想的“家”也不需要多奢华,或许理想的“家”也不仅仅是一个方便的家,不一定方便就会幸福,我觉得理想的家是能给人自豪感的。-原研哉 项目位于湖南邵阳,史称“宝庆”,位于湘中偏西南,资江上游,北障雪峰之险,南屏越城岭之秀,资水流贯全境,入户的前厅环境如空间的前花园。优美的环境极大地提升了家的舒适度和档次。经过沟通了解业主对空间的需求,打造出能充分感受休闲、舒服、放松感的家氛围。利用空间结合收纳一体化打造,让生活与周围的自然互融为一体。 业主是个大家庭,希望拥有一个互动家庭公共功能区域,成为一种现代生活方式的表达。打破拘谨,开阔的空间视觉使人身心舒畅,也延伸出更多的互动方式。除了客厅之外的其它空间都连通,不同空间的人可随时相呼应答,均衡了家的亲密感,各自做喜欢的事,同时也能互相陪伴。 精简的空间,有种安静的力量,沉浸在当下的感受。打开音响,让舒适立体的音质按摩耳朵;空间的转换适与当下,与三两好友品酒;或是在书海里徜徉精神世界的美妙,亦或享受西厨烘焙的乐趣。打造全身心沉浸式生活场景与体验的空间,静享惬意生活。 原本的空间结构是完全隔离的,通过打开墙体与造型之间的结合,使得每个区域之间的互动与机能性更强,也提升了空间的整体性。实现了从平面到立体的空间连通。 当下智能手机时代,使得人与人之间情感的距离越来越淡,我们希望能陪伴家人更多的时间,单独设置家族聚餐的空间,推拉门与墙面相结合,使空间动静区分。 设计不一定要很强调所谓的风格,空间更没有既定的界限,而我们更应该是探讨它未来更多的可能性,这是为未来人居的生活方式进行努力,我们想这样的过程并不是结果,但是这个行为是必然性的。
  • 图片
  • 图片
  • 图片
  • 图片
  • 图片
  • 图片
  • 图片
  • 图片
  • 图片
  • 图片
  • 图片
  • 图片
  • 图片
  • 图片
  • 图片
  • 图片
  • 图片
  • 图片
  • 图片
  • 图片
  • 图片
  • 图片
  • 图片
  • 图片
  • 图片
  • 图片
  • 图片
  • 图片
  • 图片
  • 图片
  • 图片
  • 图片
  • 图片
  • 图片
  • 图片
  • 图片
  • 图片
  • 图片
  • 图片
  • 图片
  • 图片
  • 图片
  • 图片
  • 图片
  • 图片
  • 图片
  • 图片
  • 图片
  • 图片
  • 图片
  • 图片
  • 图片
  • 图片
  • 图片
  • 图片
  • 图片
  • 图片
  • 图片
  • 图片
  • 图片
  • 图片
  • 图片
  • 图片
  • 图片
  • 图片
  • 图片
  • 图片
  • 图片
  • 图片
  • 图片
  • 图片
  • 图片
  • 图片
  • 图片
  • 图片
  • 图片
  • 图片
  • 图片
  • 图片
  • 上一个 下一个
    《金腾奖优秀作品年鉴》 私宅丨地产丨餐饮丨酒店丨办公丨商业丨公共丨产品丨公益丨人气 jintengAWARD(小金_金腾奖组委会) 广州市海珠区琶洲大道68号华新中心21楼
    金腾奖视频号 金腾奖小红书号 监制:闫虹
    统筹:吴佳佳
    运营:朱倩仪 王赫萱 张芷莹 胡岚恩 小金
    新媒体:王贝贝 严洁 侯乐 鹅姐
    经纪:刘译遥 石征 曹凯月
    技术:张桐 黄天佑
    最终解释权归金腾奖主办方所有