wanlishidai
作品详情
  • Details of the work 标题横线
    头像或者logo
    图片 冷凌峰 华浔品味装饰集团特约推荐
    城市:广州市
    公司: 广州华浔品味装饰集团上饶市分公司
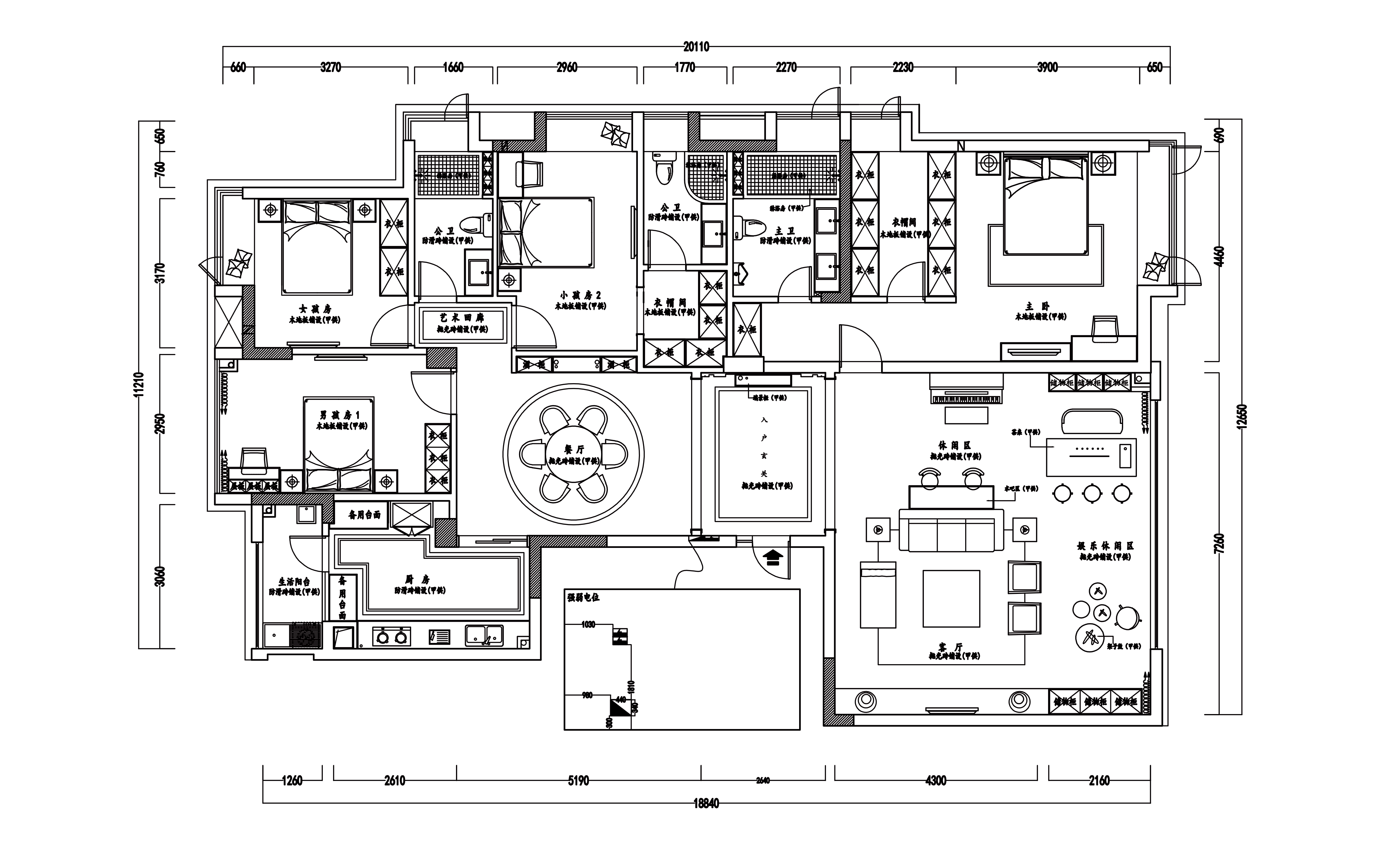
    参赛作品: 万力时代
    空间类型:公寓(150㎡以下)
    个人/公司简介:
    设计二部总监 从业经验:12年 毕业于广州美术学院 环境艺术设计 亚太室内(高级)注册设计师 APDC国际交流中心会员 IFDA国际室内装饰协会会员 2008年开始从事室内设设计 2008年至2010年担任专家设计师 2011年至2015年担任首席设计师 2016年至今担任设计总监并且多次荣获“室内优秀设计师奖”优秀设计总监奖” 曾在广州、赣州、清远.等地从事室内设计工作。 国家高级注册室内设计师 IFDA国际室内装饰协会会员 08年在广州清远华潯品味装饰公司 担任设计师助理。 10年加入广州华浔品味装饰赣州分公司 担任专家设计师。 12年3月加入广州华浔品味装饰上饶分公司 担任首席设计师。 15年5月至16年底在广州华浔品味装饰上饶分公司 担任首席设计师。 17年初至今在广州华浔品味装饰集团上饶市分公司担任设计二部总监。工作年限10年。 个人成就:2009年获得广州清远设计界十大创新奖。 2009年获得广州清远设计界十大新锐奖。 2012年获得华浔集团优秀员工。 2012年获得华浔集团优秀设计师。 2013年获得华浔集团优秀设计师。 2015你获得上饶室内设计优秀设计师奖。 2016年获得上饶室内设计优秀作品奖。 2016年得到一位客户给我及公司的一封感谢信。 2017你获得上饶室内设计优秀设计师奖。 2018年获得华浔集团优秀设计师及优秀员工。 2018你获得上饶室内设计优秀设计师奖。 设计作品: 广州:恒大金碧天下,恒大银湖城,半山别墅等。 赣州:龙居苑别墅,塞纳春天,时间公园别墅,金鹏怡和园等。 上饶:拉菲庄园,中央公园,滨江花园,海博蓝庭,米兰春天,紫阳名星广场,中航城.万达华府.万历时代,信江府,信州府,御墅湾,清水湾,滨江御景,三清玫瑰园.德兴丽都嘉园别墅,友邦一号公馆.等。 擅长风格:简美、简欧、新古典、后现代、新中式、现代轻奢、洛可可、美式田园、工业风等等、、、、 设计理念:设计=生活+品位,让爱你的人更爱家,设计的核心是一种创造,用心灵去感受。
    设计说明 | Design Instruction
  • 基于传统的人文生活习性前提下,首先解决客户基本的需求,及正常的采光及空气流通性,让自然光线气流成为居住者和空间最好的连接,将阳台纳入客厅,让公共区域更加宽广,引入自然光,让整个室内充满阳光的气息,而且那么大的落地窗不看看外面的风景岂不是白瞎了?背景墙摈弃繁杂的墙面造型,选择通过材质、色调的对比运用,丰富空间层次。 •在客厅家具定位和选材上,更注重将舒适体验放在首位,沙发的亲肤和柔软性,也强调了摊着舒服的重要,这本就是一个让人安静下来的空间设计亮点 •入户门厅用暖灰木纹包裹着门洞,由下至上,包裹佳整个玄关天花,木质的细腻温柔悄然攀上 本案采用现代风格,结合轻奢主义打造意式简约空间,因简约中透着奢华与时尚,具有空间宽敞、内外通透的特质。 整体运用了木饰面、墙板以及岩板、大理石等不同材质的碰撞,整体空问精致感十足。空间上最大限度引入自然光,通过线条的简单碰撞,融合内敛木色色块与金属间的和谐统一,打造出高雅奢华的家居风格.
  • 图片
  • 图片
  • 图片
  • 图片
  • 图片
  • 图片
  • 图片
  • 图片
  • 图片
  • 图片
  • 图片
  • 图片
  • 图片
  • 图片
  • 图片
  • 图片
  • 图片
  • 图片
  • 图片
  • 图片
  • 图片
  • 图片
  • 图片
  • 图片
  • 图片
  • 图片
  • 图片
  • 图片
  • 上一个 下一个
    《金腾奖优秀作品年鉴》 私宅丨地产丨餐饮丨酒店丨办公丨商业丨公共丨产品丨公益丨人气 jintengAWARD(小金_金腾奖组委会) 广州市海珠区琶洲大道68号华新中心21楼
    金腾奖视频号 金腾奖小红书号 监制:闫虹
    统筹:吴佳佳
    运营:朱倩仪 王赫萱 张芷莹 胡岚恩 小金
    新媒体:王贝贝 严洁 侯乐 鹅姐
    经纪:刘译遥 石征 曹凯月
    技术:张桐 黄天佑
    最终解释权归金腾奖主办方所有