wenxishoufu
作品详情
  • Details of the work 标题横线
    头像或者logo
    图片 周露 华浔品味装饰集团特约推荐
    城市:丽水
    公司: 广东华浔品味装饰集团(青田店)
    参赛作品: 温溪首府
    空间类型:公寓(150㎡以下)
    个人/公司简介:
    广东华浔品味装饰集团(青田店) 周露
    设计说明 | Design Instruction
  • 此项目地址不是在传统的大城市,而是来至于一个安逸的小县城 浙江省丽水市青田县,地理位置位于瓯江,县城安逸狭小,二十分钟可以逛完整个市区,到处都是国外建筑风貌,简称中国的小欧洲,结合地理位置的悠闲舒适性和人文,打造了一个简单舒适的空间,设计手法运用点线面的设计手法打破已有空间,重新组合营造空间的趣味性和舒适性。运用最简单的材质和颜色组合,符合现代年轻人的定位,业主两夫妻年纪大概40岁,长期在国外做生意,对于设计要求喜欢沉稳、创新的设计理念。材质选择和颜色要求业主也比较配合设计落地,整个空间硬装以浅灰地砖、深灰木饰面、令人醒目的奢石、沉着稳重的深胡桃木色以及浅色调的软装把整个空间连贯一起。
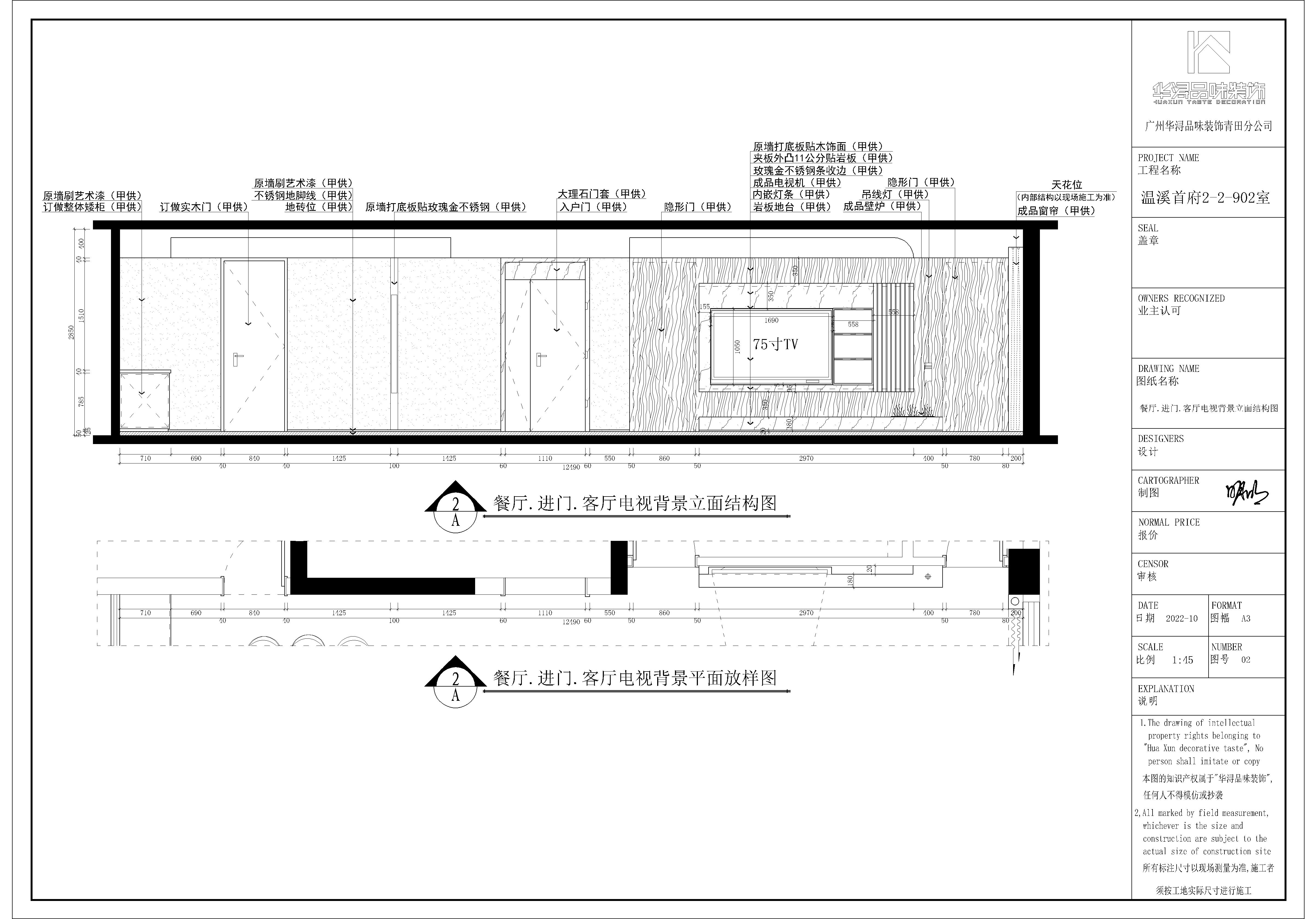
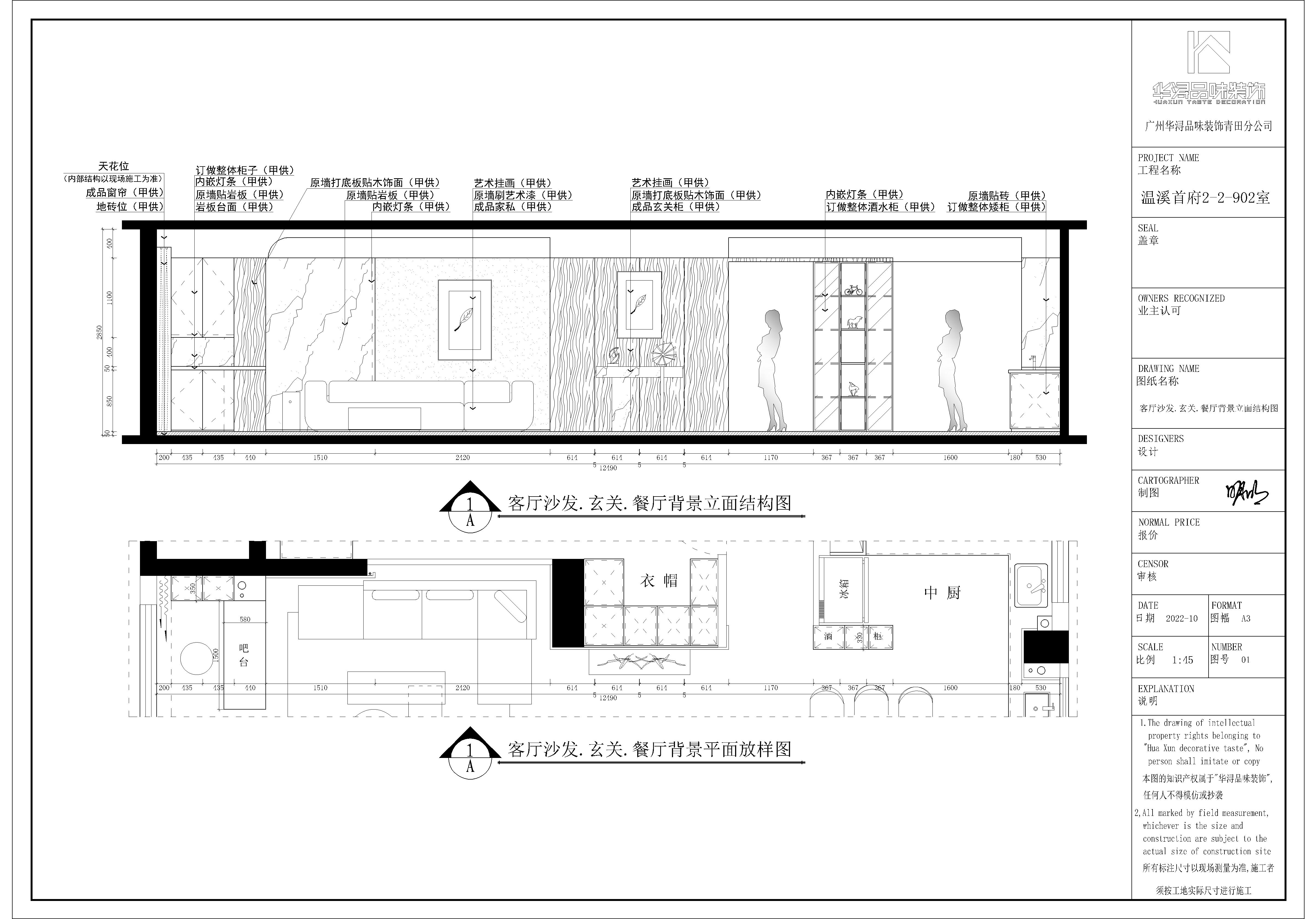
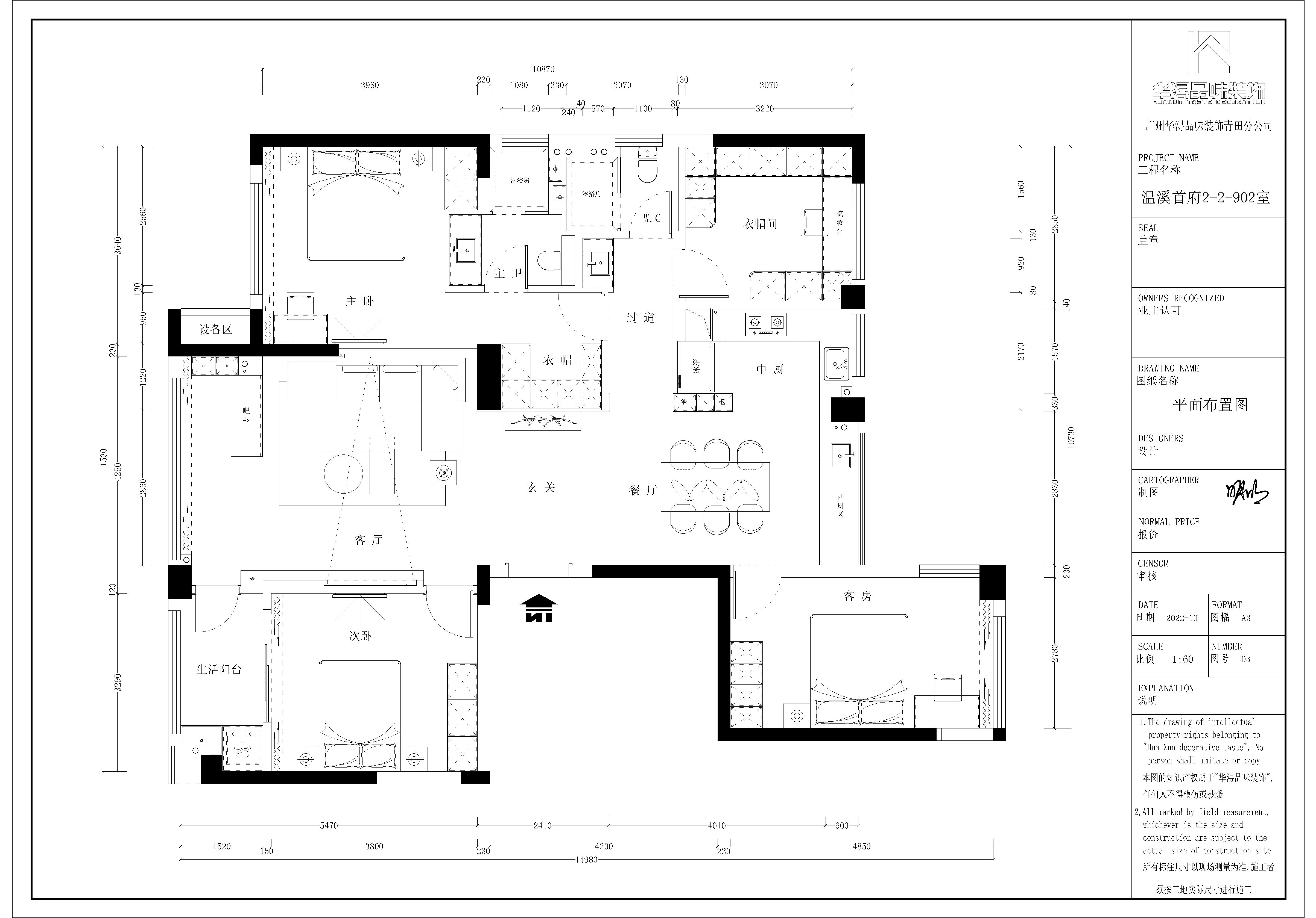
  • 图片
  • 图片
  • 图片
  • 图片
  • 图片
  • 图片
  • 图片
  • 图片
  • 图片
  • 图片
  • 图片
  • 图片
  • 图片
  • 图片
  • 图片
  • 图片
  • 图片
  • 图片
  • 图片
  • 图片
  • 图片
  • 图片
  • 图片
  • 图片
  • 图片
  • 图片
  • 图片
  • 图片
  • 图片
  • 图片
  • 图片
  • 图片
  • 图片
  • 图片
  • 图片
  • 图片
  • 图片
  • 图片
  • 图片
  • 图片
  • 上一个 下一个
    《金腾奖优秀作品年鉴》 私宅丨地产丨餐饮丨酒店丨办公丨商业丨公共丨产品丨公益丨人气 jintengAWARD(小金_金腾奖组委会) 广州市海珠区琶洲大道68号华新中心21楼
    金腾奖视频号 金腾奖小红书号 监制:闫虹
    统筹:吴佳佳
    运营:朱倩仪 王赫萱 张芷莹 胡岚恩 小金
    新媒体:王贝贝 严洁 侯乐 鹅姐
    经纪:刘译遥 石征 曹凯月
    技术:张桐 黄天佑
    最终解释权归金腾奖主办方所有