Weimeipinge
作品详情
  • Details of the work 标题横线
    头像或者logo
    图片 刘辉
    城市:绍兴
    公司: 广东华浔品味装饰(柯桥)分公司
    参赛作品: 唯美品格
    空间类型:公寓(150㎡以下)
    个人/公司简介:
    刘辉 设计经验;12年以上 擅长空间:现代 新中 所在地:浙江 绍兴 设计理念:人为生活而设计,设计为生活而存在 个人简介: 广东华浔品味装饰(柯桥)分公司设计一组总监。 【代表作品】山水人家\\\\白鹭金滩\\\\唯美品格\\\\御江山\\\\永利中央公馆\\\\金色丽都\\\\金地\\\\华著\\\\舜江花园\\\\金色家园\\\\鉴湖景园\\\\大越府\\\\檀院多案例
    设计说明 | Design Instruction
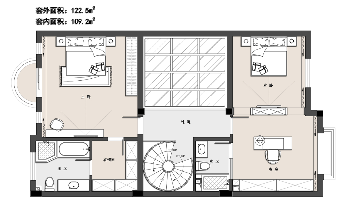
  • 项目地址:唯美品格·丹桂园 建筑面积:486㎡ 设计风格:现代风 开门见山的开放式客厅,着重公共空间的功能和社交属性,围绕家庭共处、亲子阅读交流,打造满足未来可能性的人居空间,大面积的窗户把阳光引入空间。 建筑是故事的容器,私宅尤其如此,人们把全部的经历与情感投注到空间里,把它变成无限温柔与美好的所在。 在中国人的文化里,用餐就是烟火人间,一张圆桌是最熟悉的团圆之意。 黑色的圆桌颇有东方文化的雅致与内敛,又融入了当代流行的无主灯理念,简洁大方,落地窗将大自然盎然春意引入室内,所谓 “宁可食无肉,不可使居无翠。”
  • 图片
  • 图片
  • 图片
  • 图片
  • 图片
  • 图片
  • 图片
  • 图片
  • 图片
  • 图片
  • 图片
  • 图片
  • 图片
  • 图片
  • 图片
  • 图片
  • 图片
  • 图片
  • 图片
  • 图片
  • 图片
  • 图片
  • 图片
  • 图片
  • 图片
  • 图片
  • 图片
  • 图片
  • 图片
  • 图片
  • 图片
  • 图片
  • 图片
  • 图片
  • 图片
  • 图片
  • 图片
  • 图片
  • 图片
  • 图片
  • 图片
  • 图片
  • 图片
  • 图片
  • 图片
  • 图片
  • 图片
  • 图片
  • 图片
  • 图片
  • 图片
  • 图片
  • 图片
  • 图片
  • 图片
  • 图片
  • 图片
  • 图片
  • 图片
  • 图片
  • 图片
  • 图片
  • 图片
  • 图片
  • 图片
  • 图片
  • 图片
  • 图片
  • 图片
  • 图片
  • 图片
  • 图片
  • 图片
  • 图片
  • 图片
  • 图片
  • 图片
  • 图片
  • 图片
  • 图片
  • 图片
  • 图片
  • 图片
  • 图片
  • 图片
  • 图片
  • 图片
  • 图片
  • 图片
  • 图片
  • 图片
  • 图片
  • 图片
  • 上一个 下一个
    《金腾奖优秀作品年鉴》 私宅丨地产丨餐饮丨酒店丨办公丨商业丨公共丨产品丨公益丨人气 jintengAWARD(小金_金腾奖组委会) 广州市海珠区琶洲大道68号华新中心21楼
    金腾奖视频号 金腾奖小红书号 监制:闫虹
    统筹:吴佳佳
    运营:朱倩仪 王赫萱 张芷莹 胡岚恩 小金
    新媒体:王贝贝 严洁 侯乐 鹅姐
    经纪:刘译遥 石征 曹凯月
    技术:张桐 黄天佑
    最终解释权归金腾奖主办方所有