Quiet on one side, elegant on the other
作品详情
  • Details of the work 标题横线
    头像或者logo
    图片 林蒙 华浔品味装饰集团特约推荐
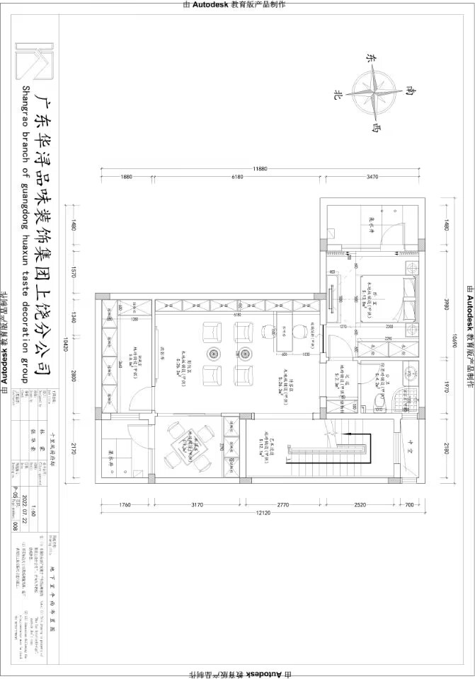
    城市:上饶市
    公司: 上饶华浔品味装饰
    参赛作品: 一方安静 一方闲雅
    空间类型:公寓(150㎡以下)
    个人/公司简介:
    毕业学校:江西理工大学 从业经验:10年 中国注册室内设计师 工作经历: 2010年就业南京元洲装饰公司 2019年就业于上饶华浔品味装饰 设计理念:设计就是以人为本,遵循自然法则,缔造经典室内家居生活; 设计案列:友邦一号公馆大平层 亿升滨江花园大平层 紫阳明星广场 现代城 米兰春天 中粮广场 融辉城 友邦一号 御景天下 天宇星城复式楼 尊品公园道 凡尔赛 紫阳名邸 滨江御景别墅 临湖自建别墅 国际公馆别墅 上饶县自建别墅 万力时代大平层 十里风荷别墅等
    设计说明 | Design Instruction
  • 本案例为多进院落式徽派合院别墅,一般坐北朝南,倚山面水。布局以中轴线对称分列,面阔三间,中为厅堂,两侧为室,厅堂前方称"天井",采光通风,亦有"四水归堂"的吉祥如意韵味。 业主骨子里清静自然,寄情于山水独爱古朴徽派建筑,一直追求“采菊东篱下,悠然见南山”的古朴生活方式,设计师结合现代元素与中式风格特点,融合到整个设计空间中形成一幅富有层次的视觉盛宴。
  • 图片
  • 图片
  • 图片
  • 图片
  • 图片
  • 图片
  • 图片
  • 图片
  • 图片
  • 图片
  • 图片
  • 图片
  • 图片
  • 图片
  • 上一个 下一个
    《金腾奖优秀作品年鉴》 私宅丨地产丨餐饮丨酒店丨办公丨商业丨公共丨产品丨公益丨人气 jintengAWARD(小金_金腾奖组委会) 广州市海珠区琶洲大道68号华新中心21楼
    金腾奖视频号 金腾奖小红书号 监制:闫虹
    统筹:吴佳佳
    运营:朱倩仪 王赫萱 张芷莹 胡岚恩 小金
    新媒体:王贝贝 严洁 侯乐 鹅姐
    经纪:刘译遥 石征 曹凯月
    技术:张桐 黄天佑
    最终解释权归金腾奖主办方所有