Ronghui City
作品详情
  • Details of the work 标题横线
    头像或者logo
    图片 刘晨 华浔品味装饰集团特约推荐
    城市:上饶
    公司: 广东华浔品味装饰集团上饶公司
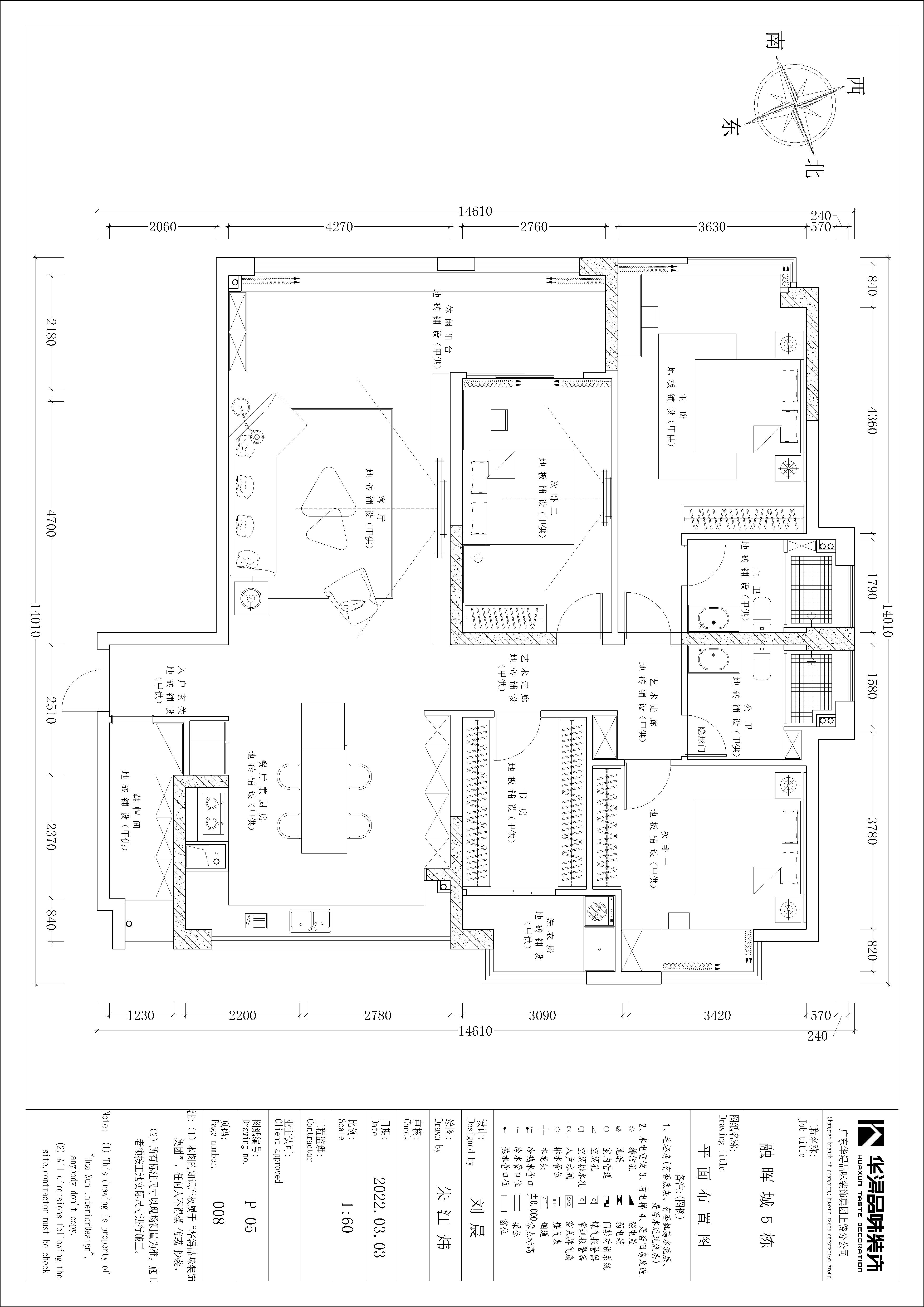
    参赛作品: 融晖城
    空间类型:公寓(150㎡以下)
    个人/公司简介:
    从业经验:10年 毕业于桂林电子科技大学 环境艺术设计与平面设计专业 双学士学位 现任广东华浔品味装饰集团上饶公司设计总监 高级室内设计师 中国室内装饰协会会员(CIDA) 进修于华浔&米兰HOAA国际设计中心 期间荣获2012、2013、2014年度“华浔全国优秀设计师”。并多次赴欧洲各国游学,学习当地的人文设计理念。 设计理念:用心生活,用心设计! 工作经历: 2009年 南昌华浔品味装饰 助理设计师 2010-2011年 赣州华浔品味装饰 专家设计师 2012-2014年 上饶华浔品味装饰 设计主管 2015-2018年 上饶华浔品味装饰 首席设计师 2019年至今 上饶华浔品味装饰 设计总监 个人作品: 赣州:中航城、时间公园别墅、塞纳春天、隐龙山庄别墅、金鹏怡和园等。 上饶:拉菲庄园别墅、三清玫瑰园、恒大翡翠华庭、紫阳名星广场、滨江花园、友邦一号公馆、万力时代等。
    设计说明 | Design Instruction
  • 构建一所好的家宅,一半以上取决于设计师是否设计了一个好“模型”:结构简单、功能齐全,与业主个性化的生活方式相匹配。作为一名80后,本案的业主在生活场景的营建上有着更多自己的看法和要求。 业主喜欢黑白灰调,所以设计师在做设计时,着重选用这种风格的调子。在简约与潮流的平衡之间,寻找一种更为高级的生活方式。
  • 图片
  • 图片
  • 图片
  • 图片
  • 图片
  • 图片
  • 图片
  • 图片
  • 图片
  • 图片
  • 图片
  • 图片
  • 图片
  • 图片
  • 图片
  • 图片
  • 图片
  • 上一个 下一个
    《金腾奖优秀作品年鉴》 私宅丨地产丨餐饮丨酒店丨办公丨商业丨公共丨产品丨公益丨人气 jintengAWARD(小金_金腾奖组委会) 广州市海珠区琶洲大道68号华新中心21楼
    金腾奖视频号 金腾奖小红书号 监制:闫虹
    统筹:吴佳佳
    运营:朱倩仪 王赫萱 张芷莹 胡岚恩 小金
    新媒体:王贝贝 严洁 侯乐 鹅姐
    经纪:刘译遥 石征 曹凯月
    技术:张桐 黄天佑
    最终解释权归金腾奖主办方所有