fulinxintiandi
作品详情
  • Details of the work 标题横线
    头像或者logo
    图片 冷绪月 华浔品味装饰集团特约推荐
    城市:泉州
    公司: 华浔品味装饰泉州分公司
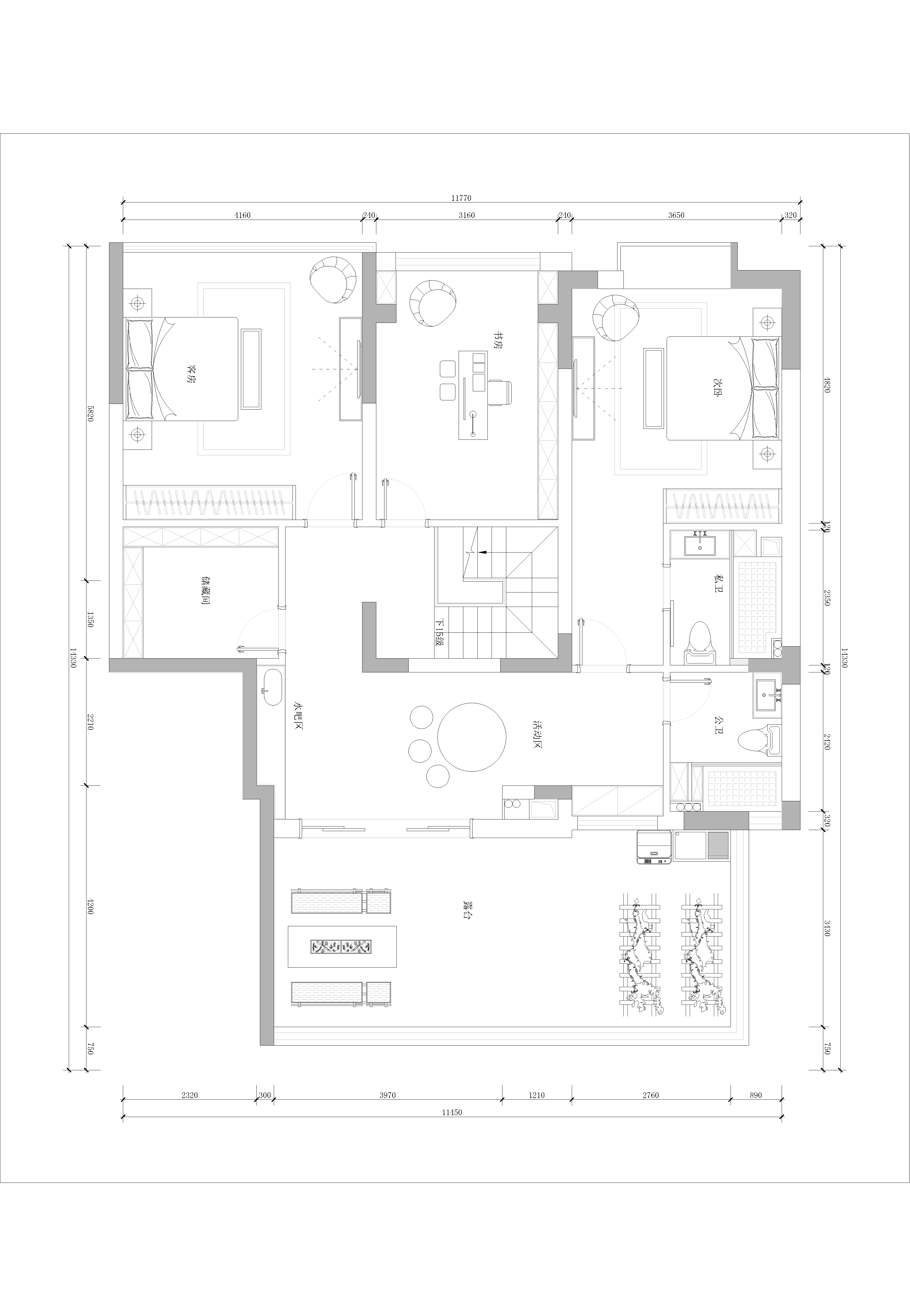
    参赛作品: 富临新天地
    空间类型:公寓(150㎡以下)
    个人/公司简介:
    职衔: 华浔品味装饰泉州分公司设计总监 设计理念: 以人为本,人与自然环境相结合。 获奖荣誉: 毕业于武汉大学 从事室内设计20年以上 空间研究师 中国杰出青年室内设计师 国家注册高级设计师 CIID室内装饰学会会员 IFDA国际室内设计师协会注册高级设计师 中国杰出青年设计师 高级室内设计师 多次被华浔集团评为优秀设计总监 评为厦门十佳设计师 评为泉州十佳设计师 华浔集团金牌设计师 中国室内优秀设计师 2009年获厦门《海峡导报》最佳设计奖 2011年获厦门《海峡导报》最具创新设计 2017- -2018荣获“中国区100大杰出青年设计师 WYDF2017年度中国区100大杰出设计青年 金住奖-2020中国(泉州)十大居住空间设计师 2021“ 泉州好设计”优秀设计师
    设计说明 | Design Instruction
  • 设计说明:美式奶油风的奶油色是一种淡淡的奶咖色,在米白色与奶咖色之间的色系,奶油色是一个低饱和度的配色风格。 在此基础上,再搭配米色、暖灰色、原木色等其他饱和度比较低的色彩,最后再用一些带有重色的家具、木料或墨绿的植物,起到对比和突出的视觉效果,奶油色可以和现代极简,侘寂,日式,法式等灵活的结合。 整体空间的硬装,简单干净直爽 软装却是温柔,质感细腻的高级感 软硬装相互协调,色调统一 造型和材质上凸显可爱软萌的气质
  • 图片
  • 图片
  • 图片
  • 图片
  • 图片
  • 图片
  • 图片
  • 图片
  • 图片
  • 图片
  • 图片
  • 图片
  • 图片
  • 图片
  • 图片
  • 图片
  • 图片
  • 图片
  • 图片
  • 上一个 下一个
    《金腾奖优秀作品年鉴》 私宅丨地产丨餐饮丨酒店丨办公丨商业丨公共丨产品丨公益丨人气 jintengAWARD(小金_金腾奖组委会) 广州市海珠区琶洲大道68号华新中心21楼
    金腾奖视频号 金腾奖小红书号 监制:闫虹
    统筹:吴佳佳
    运营:朱倩仪 王赫萱 张芷莹 胡岚恩 小金
    新媒体:王贝贝 严洁 侯乐 鹅姐
    经纪:刘译遥 石征 曹凯月
    技术:张桐 黄天佑
    最终解释权归金腾奖主办方所有